ᐅ Fenster Brüstungshöhe 130 im Schlafzimmer / Arbeitszimmer?
Erstellt am: 23.11.21 17:37
A
audiophiloneA
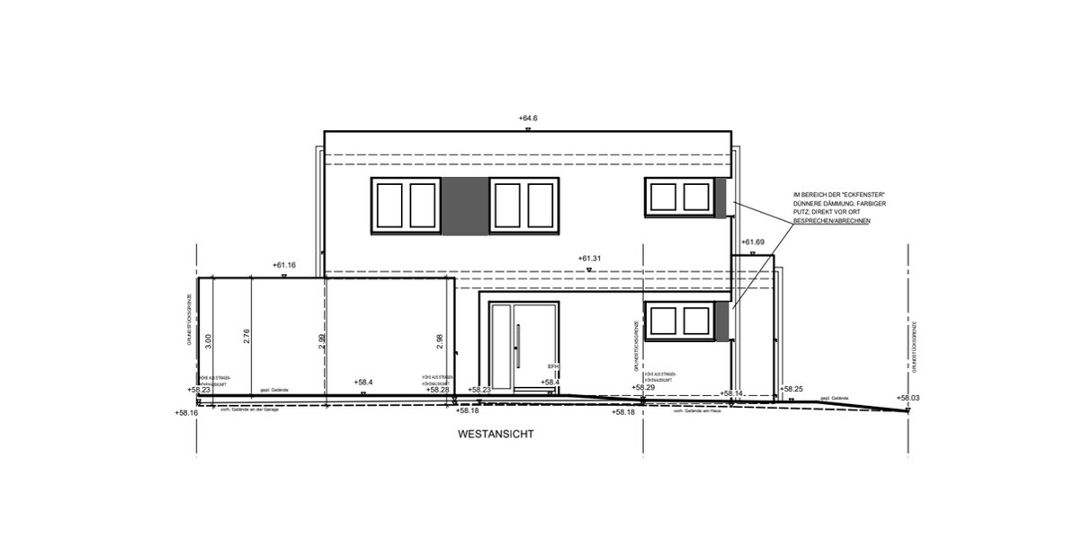
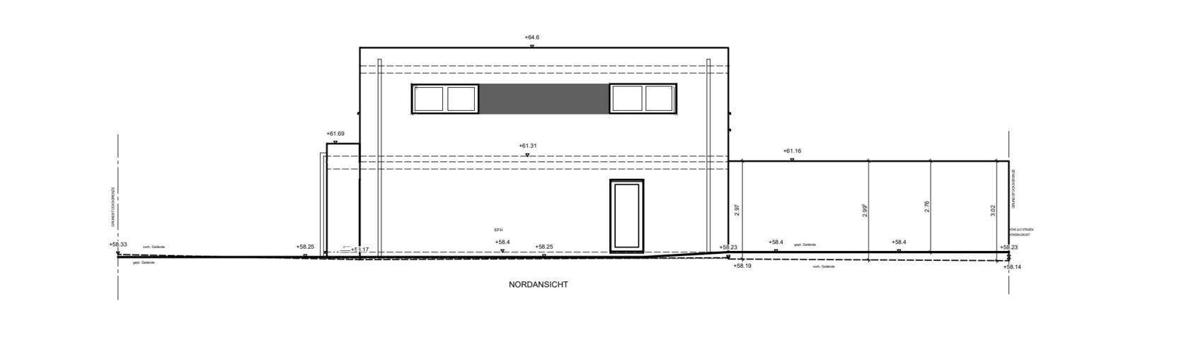
audiophilone23.11.21 17:37Moin... und zwar haben wir folgendes Problem. Da wir nicht zu viele verschiedene Fensterhöhen am Haus haben wollen und auch irgendwie den Übergang von 130 Brüstungshöhe auf ein niedriges Fenster im selben Raum bzw. am Übergang zu den Seiten nicht wirklich schön finden stehen wir vor dem oben genannten Problem. Eigentlich weiss ich gar nicht ob es wirklich ein Problem ist.




H
hampshire23.11.21 17:44Ich würde immer von innen nach außen bauen. Wenn die Fenster gut in die Räume passen ist es richtig. Wenn den Räumen ein anderes Format oder eine andere Brüstungshöhe besser steht, würde ich lieber mehr unterschiedliche Fenster an der Fassade wählen oder eine andere Lösung finden, die allen Gesichtspunkten gerecht wird.
H
hampshire23.11.21 17:54Könnt ihr aufgrund des Flachdachs auch mit Licht von oben arbeiten? Dann wird es in den Räumen heller und die Fensterlinien außen bleiben in der gewünschten Klarheit und Proportion.
A
audiophilone23.11.21 17:55Ja allen Gesichtspunkten gerecht zu werden ist nicht einfach und genau da ist unser Problem. @ypg Aber meinst du nicht ein 265cm und ein 201 Fenster bringen nicht genug Licht rein?
A
audiophilone23.11.21 17:56@hampshire Auf die Idee von oben bin ich noch gar nicht gekommen...wüßte aber auch nicht so recht wie genau das funktionieren sollte.
Ähnliche Themen