B
Bauherren201406.01.15 15:52Entschuldige, wenn ich noch einmal meinen Senf dazugebe:
Meiner Meinung nach geht Ihr die Planung falsch an. So wie ich das verstanden habt, habt Ihr Euch ein Haus nach Euren Vorstellungen, mit der von Euch gewünschten Ausstattung, Aufteilung planen lassen inkl. einer überdachten Doppelgarage und einer überdachten Terrasse und habt dann gemerkt, dass das bei Eurem Budget nicht machbar ist. Und jetzt rudert Ihr in eine völlig andere Richtung.
So wie ich das sehe, ist Euer Budget deutlich begrenzt.
Auf der anderen Seite generiert Ihr aber wieder Kosten, die eigentlich nicht sein müssten:
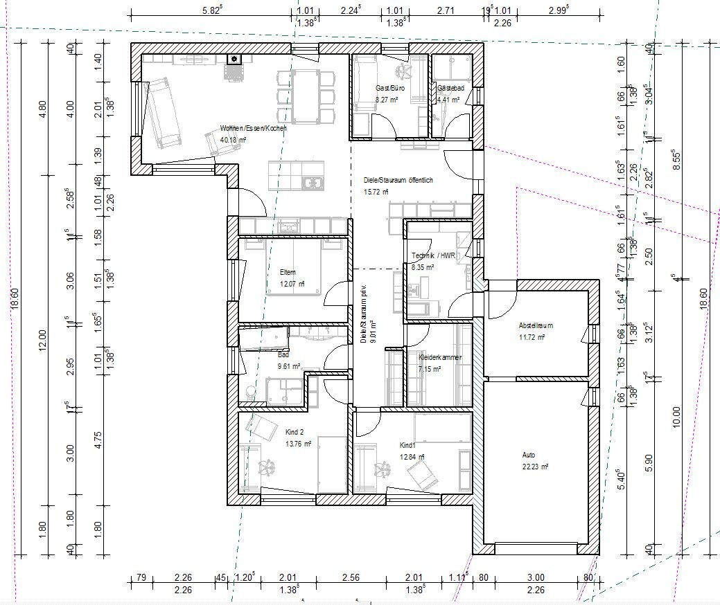
Ihr wollt einen Winkelbungalow, der vermutlich die teuerste Variante darstellt, um die angegebenen 127 m² Wohnfläche zu erreichen (berichtigt mich, falls ich falsch liege).
Nebenbei habt Ihr dadurch höhere Kosten für die Erdarbeiten.
Ihr wollt eine überdachte Garage mit Abstellraum, die zusätzliche Kosten generiert. - Warum keine Fertiggarage, die Du hinstellen kannst, wo Du willst, wenn das Geld knapp ist? Oder erst mal nur Stellplätze...
Ihr verliert Euch teilweise in Details (Gäste-WC an der Terrasse, die Problematik der Ankleidezimmer...) und vergesst, auf das große Ganze zu schauen.
Gerade bei knappem Budget sollte man sich überlegen, was wirklich gebraucht wird?
Welche Zimmer brauche ich wirklich und wie groß müssen diese wirklich sein? Brauche ich wirklich 2 Bäder, oder reicht eines? Brauche ich das Arbeitszimmer wirklich? Ist es nicht doch sinnvoller, den Kindern mehr Platz einzuräumen und dafür an anderer Stelle zu sparen? Muss ich das Elternzimmer wirklich nach Westen ausrichten oder sollte ich nicht vielleicht doch den Kindern ein bißchen mehr Tageslicht gönnen?.... etc..... Das sind alles nur Beispiele und das soll keineswegs heißen, dass Ihr das so machen müsst, aber ihr solltet Euch wirklich überlegen, was wichtig ist und worauf man vielleicht verzichten kann, damit Ihr am Ende ein Haus habt, in dem Ihr Euch alle! wohlfühlen könnt.
Meiner Meinung nach geht Ihr die Planung falsch an. So wie ich das verstanden habt, habt Ihr Euch ein Haus nach Euren Vorstellungen, mit der von Euch gewünschten Ausstattung, Aufteilung planen lassen inkl. einer überdachten Doppelgarage und einer überdachten Terrasse und habt dann gemerkt, dass das bei Eurem Budget nicht machbar ist. Und jetzt rudert Ihr in eine völlig andere Richtung.
So wie ich das sehe, ist Euer Budget deutlich begrenzt.
Auf der anderen Seite generiert Ihr aber wieder Kosten, die eigentlich nicht sein müssten:
Ihr wollt einen Winkelbungalow, der vermutlich die teuerste Variante darstellt, um die angegebenen 127 m² Wohnfläche zu erreichen (berichtigt mich, falls ich falsch liege).
Nebenbei habt Ihr dadurch höhere Kosten für die Erdarbeiten.
Ihr wollt eine überdachte Garage mit Abstellraum, die zusätzliche Kosten generiert. - Warum keine Fertiggarage, die Du hinstellen kannst, wo Du willst, wenn das Geld knapp ist? Oder erst mal nur Stellplätze...
Ihr verliert Euch teilweise in Details (Gäste-WC an der Terrasse, die Problematik der Ankleidezimmer...) und vergesst, auf das große Ganze zu schauen.
Gerade bei knappem Budget sollte man sich überlegen, was wirklich gebraucht wird?
Welche Zimmer brauche ich wirklich und wie groß müssen diese wirklich sein? Brauche ich wirklich 2 Bäder, oder reicht eines? Brauche ich das Arbeitszimmer wirklich? Ist es nicht doch sinnvoller, den Kindern mehr Platz einzuräumen und dafür an anderer Stelle zu sparen? Muss ich das Elternzimmer wirklich nach Westen ausrichten oder sollte ich nicht vielleicht doch den Kindern ein bißchen mehr Tageslicht gönnen?.... etc..... Das sind alles nur Beispiele und das soll keineswegs heißen, dass Ihr das so machen müsst, aber ihr solltet Euch wirklich überlegen, was wichtig ist und worauf man vielleicht verzichten kann, damit Ihr am Ende ein Haus habt, in dem Ihr Euch alle! wohlfühlen könnt.
Ich konnte es wieder mal nicht lassen und habe mich mal an zwei Beispielen versucht.
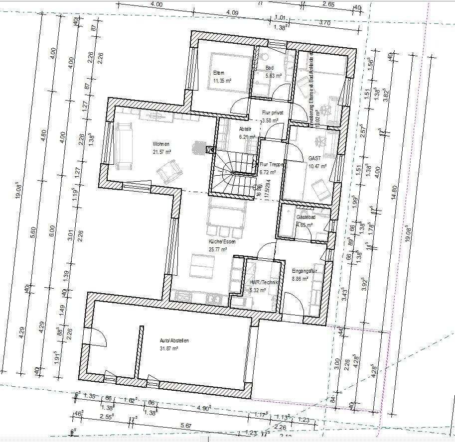
Variante 1 - Wohnfläche 114 qm im EG:
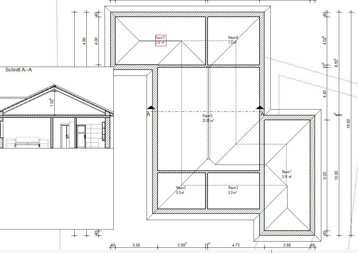
EG-Grundriss nach Ausbau DG
OG-Grundriss 1. Ausbaustufe:
OG-Grundriss nach Ausbau DG mit Treppe





Variante 1 - Wohnfläche 114 qm im EG:
- Garage wieder von Ost befahrbar, Zuweg auch gleichzeitig Zuweg zur Eingangstür ... optimierte Schneeschiebbedingungen. Einfahrt so lang, dass dort auch mal ein Auto stehen kann.
- Kinderzimmer nach Osten .. evtl. mit Verbindungstür/Durchgang. Kind 1 kann bei Ausbau des DG dann zum erweiterten Elternbad/Ankleidezimmer werden. Kind 2 kann dann reines Gästezimmer werden. Der Elterntrakt kann dann auch mit einer Tür abgetrennt werden.
- schrankraum für ca. 700 cm Schrank .. hier kann dann schon eine Bodentreppe mit integriert werden. Später kleiner Schrankraum und Treppenhaus
- Gästebad ... etwas ungünstig mit dem Eingang Richtung Diele
- Hauswirtschaftsraum/Technikraum ohne Garagenzugang, weil Garagentor und Eingangstür quasi direkt über Eck daneben sind. Vorteil, keine Besonderheiten wg. thermischer Hülle etc.
- Kochen / Essen mit großem Terrassenzugang und um die Ecke Wohnen mit Kamin
- Im DG könnten durch die Gaube 2 große Kinder/Jugendzimmer und ein Bad ausgebaut werden. Weiterhin würde noch Abstellfläche bleiben.
- Dachneigung ca. 35°, Garage 25°
EG-Grundriss nach Ausbau DG
OG-Grundriss 1. Ausbaustufe:
OG-Grundriss nach Ausbau DG mit Treppe
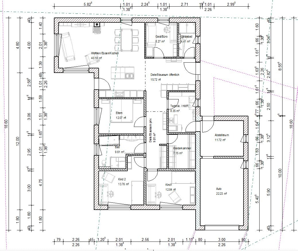
Und dann Variante 2:
Hier Grundausbau 140 qm Wohnfläche - Dachausbau eigentlich nicht geplant, maximal Stauraum mit Bodentreppe, die im Flur sein kann.
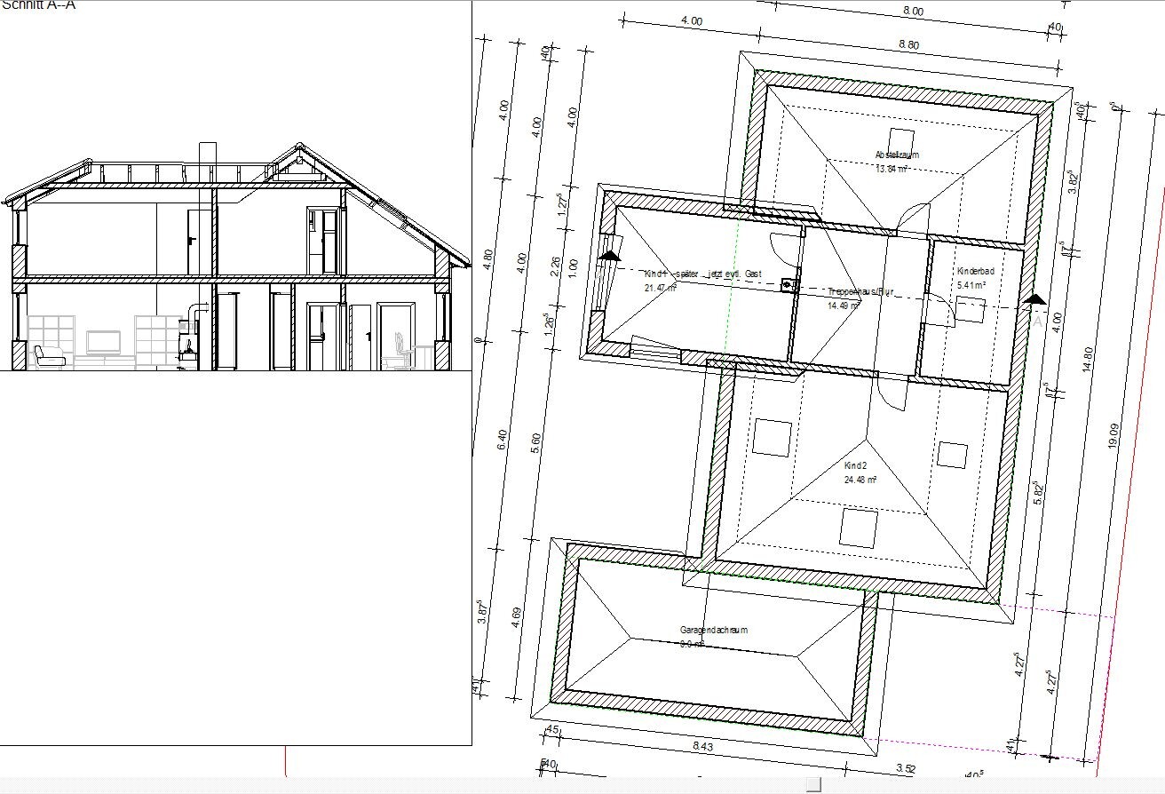
Dach mit Schnitt





Hier Grundausbau 140 qm Wohnfläche - Dachausbau eigentlich nicht geplant, maximal Stauraum mit Bodentreppe, die im Flur sein kann.
- Kinderzimmer im Süden
- Schrankraum und Flurschränke ca. 700 cm
- Großer Dielenschrank
- Extra Gäste/Bürozimmer
- größeres Familienbad mit Dusche und Wanne
- Garage von Süden befahrbar, Hauseingang im Osten, Durchgang von Garage in Hauswirtschaftsraum
Dach mit Schnitt
Ähnliche Themen