So meine Lieben,
wir kommen so langsam nun wirklich zum Ende und haben auch denke ich jetzt einen guten Grundriss. Was sagt ihr?
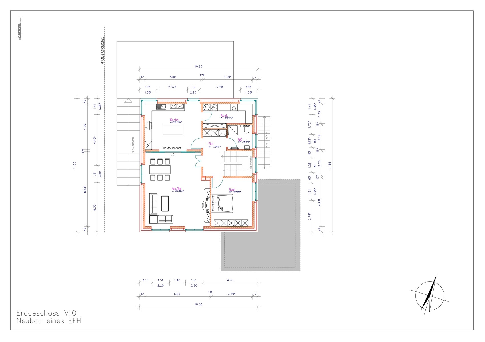
Wir haben uns jetzt bewusst für das Wohnzimmer zur Straße und Seite hin und für die Küche in Richtung Garten entschieden. Es erscheint uns sinnvoller den direkten Zugang aus der Küche zum Garten zu haben als aus dem Wohnzimmer. Der Weg aus dem Wohnzimmer durch die Schiebetür zum Garten ist ja dann auch nicht weit.
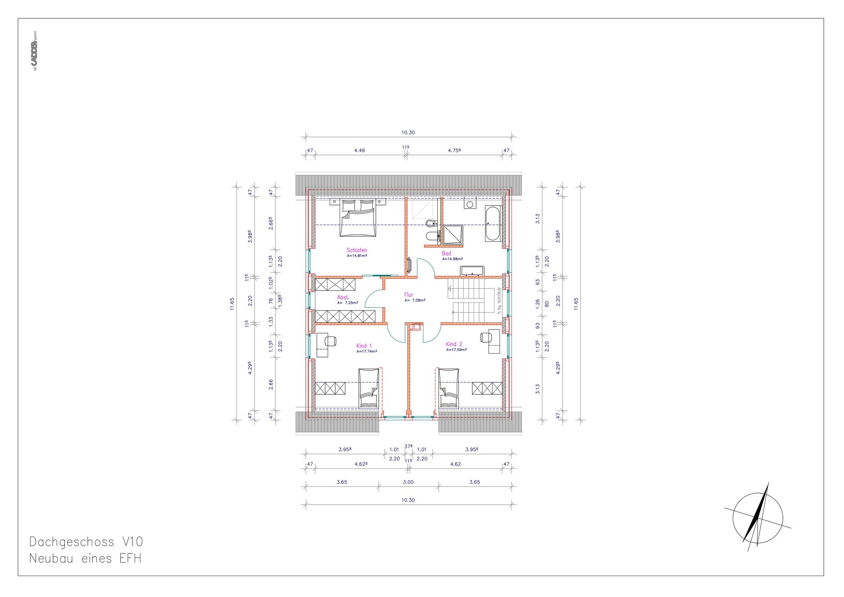
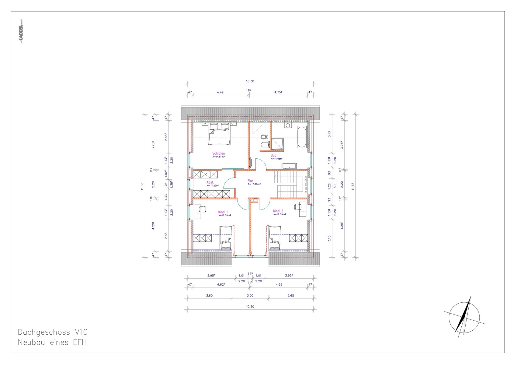
Oben haben wir nun auch gespiegelt und die Gaube nach vorne gepackt für mehr Licht in den Kinderzimmern.
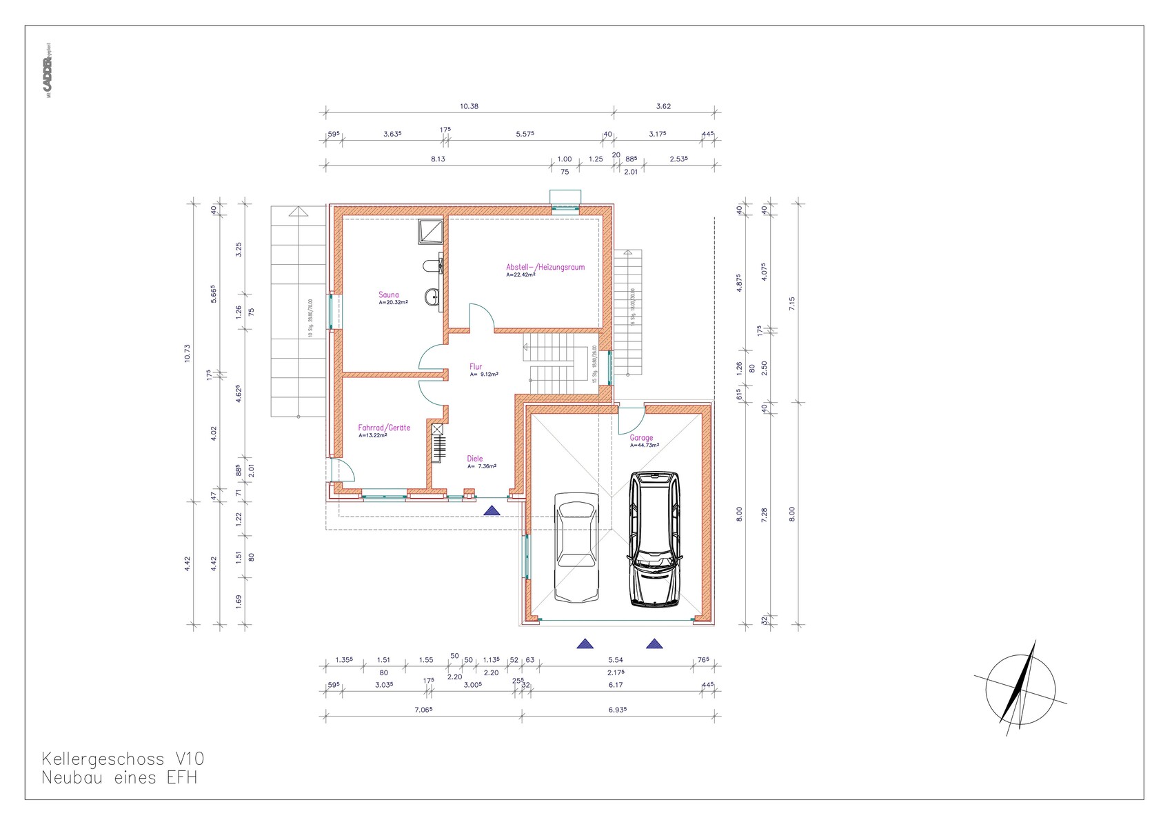
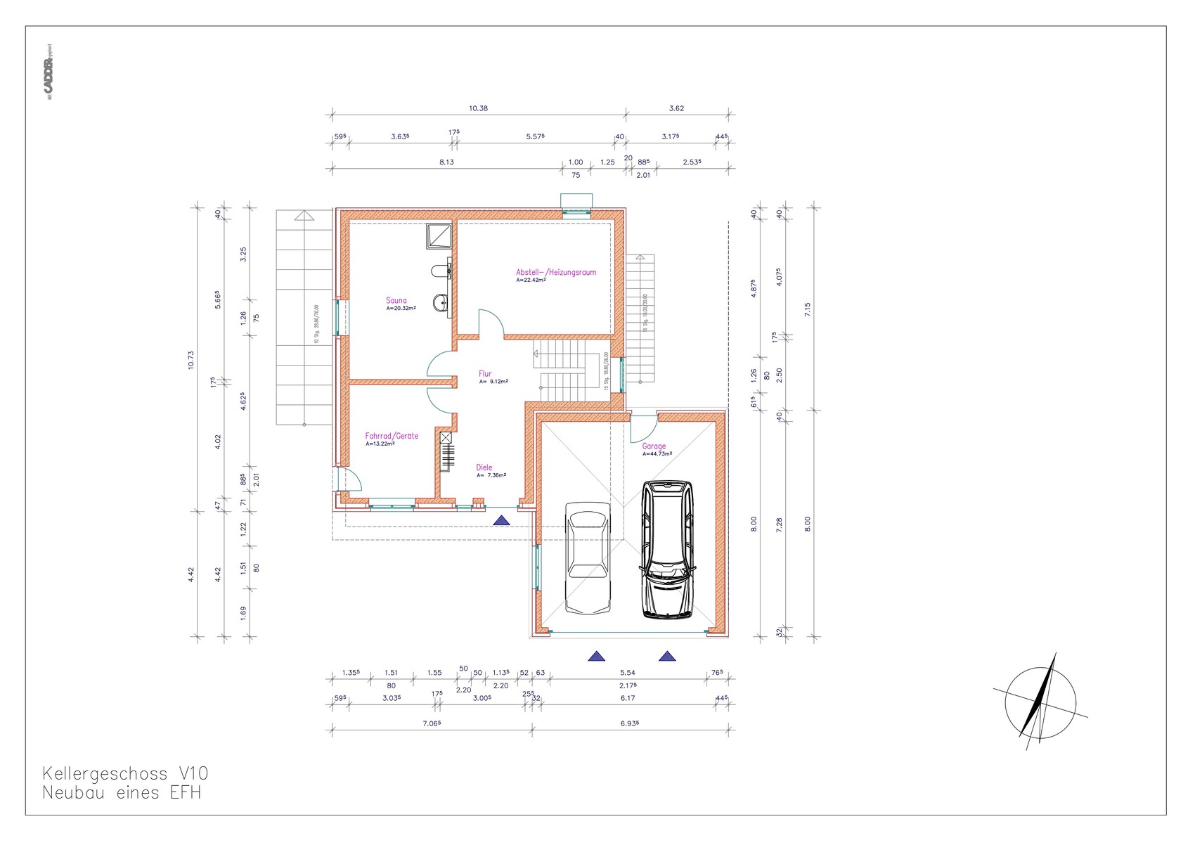
Der Keller wird komplett ausgebaut, aber dafür verzichten wir auf den Ausbau des Spitzbodens. In den Kinderzimmern werden dafür die Decken nach oben hin nicht verkleidet, also man wird zum Teil die Dachbalken sehen.
Die Küche ist auch schon grob geplant und passt super rein.
Noch irgendwelche Anregungen?
Ich hoffe mit Hilfe des Lageplans und des Höhenplans könnt ihr euch ein gutes Bild machen.
LG


wir kommen so langsam nun wirklich zum Ende und haben auch denke ich jetzt einen guten Grundriss. Was sagt ihr?
Wir haben uns jetzt bewusst für das Wohnzimmer zur Straße und Seite hin und für die Küche in Richtung Garten entschieden. Es erscheint uns sinnvoller den direkten Zugang aus der Küche zum Garten zu haben als aus dem Wohnzimmer. Der Weg aus dem Wohnzimmer durch die Schiebetür zum Garten ist ja dann auch nicht weit.
Oben haben wir nun auch gespiegelt und die Gaube nach vorne gepackt für mehr Licht in den Kinderzimmern.
Der Keller wird komplett ausgebaut, aber dafür verzichten wir auf den Ausbau des Spitzbodens. In den Kinderzimmern werden dafür die Decken nach oben hin nicht verkleidet, also man wird zum Teil die Dachbalken sehen.
Die Küche ist auch schon grob geplant und passt super rein.
Noch irgendwelche Anregungen?
Ich hoffe mit Hilfe des Lageplans und des Höhenplans könnt ihr euch ein gutes Bild machen.
LG
Ähnliche Themen