ᐅ Grundriss Einfamilienhaus 2 Vollgeschosse 195 qm Satteldach in Bayern
Erstellt am: 24.09.24 21:47
S
SliPkNoT1848S
SliPkNoT184824.09.24 21:47Hallo zusammen,
das Forum hat uns schon zahlreiche gute Tipps und Kritiken mitgegeben die nun in unseren Grundriss eingeflossen sind, dafür bedanken wir uns ganz herzlich. Anbei der Entwurf unseres Architekten der uns schon sehr gut gefällt. Wir freuen uns über eure Anregungen und euer Feedback.
Bebauungsplan/Einschränkungen
Größe des Grundstücks: 853m
Hang: nein
Grundflächenzahl: GF: max 200 qm
Geschossflächenzahl: 2 Vollgeschosse
Baufenster, Baulinie und -grenze: siehe Bilder
Randbebauung: nein
Anzahl Stellplatz: 2
Geschossigkeit: 2 Vollgeschosse
Dachform: Satteldach 28°
Stilrichtung: klassisch modern
Ausrichtung: NO/SW
Maximale Höhen/Begrenzungen: FH 9m
weitere Vorgaben
Anforderungen der Bauherren
Stilrichtung, Dachform, Gebäudetyp: einfach, klassisch, Satteldach, 2 Vollgeschosse
Keller, Geschosse: kein Keller, 2 Vollgeschosse
Anzahl der Personen, Alter 5 Personen, 2 Erwachsene und 3 Kinder 3,5,7
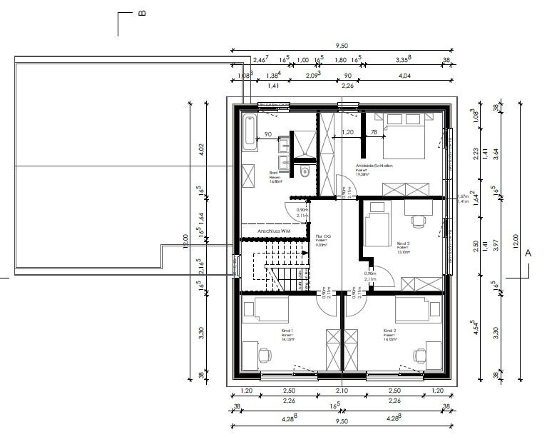
Raumbedarf im EG: Hauswirtschaftsraum+Technik, Gäste-WC, Speisekammer, AZ, Küche, Esszimmer, Wohnzimmer – OG: Bad, Eltern-Schlafzimmer, 3x Kinderzimmer
Büro: Familiennutzung oder Homeoffice? HO (ggf. perspektivisch Eltern-Schlafzimmer)
Schlafgäste pro Jahr: 0
offene oder geschlossene Architektur: offen
konservativ oder moderne Bauweise: klassisch modern
offene Küche, Kochinsel: offene Küche
Anzahl Essplätze: 8
Kamin: nein
Musik/Stereowand: nein
Balkon, Dachterrasse: Terrassenüberdachung vorgesehen
Garage, Carport: Doppelgarage mit Abstellraum
Nutzgarten, Treibhaus: nein
weitere Wünsche/Besonderheiten/Tagesablauf, gern auch Begründungen, warum dieses oder das nicht sein soll: unsicher ob Hauswirtschaftsraum im EG oder im OG (beides möglich) |
Hausentwurf
Von wem stammt die Planung: Architekt
Was gefällt besonders? Warum? Zugang Garage in Technikraum | viele Einbauschränke | offene Gestaltung | Speisekammer
Was gefällt nicht? Warum? Anordnung der Fenster | bodentiefe Fenster im OG | Ausrichtung TV im WZ | ggf zu niedrige Höhe Treppe DG zu Decke | keine Fenster DG (Wand oder Dachfenster) | eventuell zu dunkel im Bereich Treppe EG
Preisschätzung laut Architekt/Planer: 680.000 EUR
Persönliches Preislimit fürs Haus, inkl. Ausstattung: 750.000 EUR
favorisierte Heiztechnik: Infarotheizung oder Wärmepumpe
Wenn Ihr verzichten müsst, auf welche Details/Ausbauten
-könnt Ihr verzichten: großer Technikraum
-könnt Ihr nicht verzichten:
Warum ist der Entwurf so geworden, wie er jetzt ist? ZB
Mix aus Vorlage aus dem Internet und Einfluss/Wünsche von uns










das Forum hat uns schon zahlreiche gute Tipps und Kritiken mitgegeben die nun in unseren Grundriss eingeflossen sind, dafür bedanken wir uns ganz herzlich. Anbei der Entwurf unseres Architekten der uns schon sehr gut gefällt. Wir freuen uns über eure Anregungen und euer Feedback.
Bebauungsplan/Einschränkungen
Größe des Grundstücks: 853m
Hang: nein
Grundflächenzahl: GF: max 200 qm
Geschossflächenzahl: 2 Vollgeschosse
Baufenster, Baulinie und -grenze: siehe Bilder
Randbebauung: nein
Anzahl Stellplatz: 2
Geschossigkeit: 2 Vollgeschosse
Dachform: Satteldach 28°
Stilrichtung: klassisch modern
Ausrichtung: NO/SW
Maximale Höhen/Begrenzungen: FH 9m
weitere Vorgaben
Anforderungen der Bauherren
Stilrichtung, Dachform, Gebäudetyp: einfach, klassisch, Satteldach, 2 Vollgeschosse
Keller, Geschosse: kein Keller, 2 Vollgeschosse
Anzahl der Personen, Alter 5 Personen, 2 Erwachsene und 3 Kinder 3,5,7
Raumbedarf im EG: Hauswirtschaftsraum+Technik, Gäste-WC, Speisekammer, AZ, Küche, Esszimmer, Wohnzimmer – OG: Bad, Eltern-Schlafzimmer, 3x Kinderzimmer
Büro: Familiennutzung oder Homeoffice? HO (ggf. perspektivisch Eltern-Schlafzimmer)
Schlafgäste pro Jahr: 0
offene oder geschlossene Architektur: offen
konservativ oder moderne Bauweise: klassisch modern
offene Küche, Kochinsel: offene Küche
Anzahl Essplätze: 8
Kamin: nein
Musik/Stereowand: nein
Balkon, Dachterrasse: Terrassenüberdachung vorgesehen
Garage, Carport: Doppelgarage mit Abstellraum
Nutzgarten, Treibhaus: nein
weitere Wünsche/Besonderheiten/Tagesablauf, gern auch Begründungen, warum dieses oder das nicht sein soll: unsicher ob Hauswirtschaftsraum im EG oder im OG (beides möglich) |
Hausentwurf
Von wem stammt die Planung: Architekt
Was gefällt besonders? Warum? Zugang Garage in Technikraum | viele Einbauschränke | offene Gestaltung | Speisekammer
Was gefällt nicht? Warum? Anordnung der Fenster | bodentiefe Fenster im OG | Ausrichtung TV im WZ | ggf zu niedrige Höhe Treppe DG zu Decke | keine Fenster DG (Wand oder Dachfenster) | eventuell zu dunkel im Bereich Treppe EG
Preisschätzung laut Architekt/Planer: 680.000 EUR
Persönliches Preislimit fürs Haus, inkl. Ausstattung: 750.000 EUR
favorisierte Heiztechnik: Infarotheizung oder Wärmepumpe
Wenn Ihr verzichten müsst, auf welche Details/Ausbauten
-könnt Ihr verzichten: großer Technikraum
-könnt Ihr nicht verzichten:
Warum ist der Entwurf so geworden, wie er jetzt ist? ZB
Mix aus Vorlage aus dem Internet und Einfluss/Wünsche von uns
SliPkNoT1848 schrieb:
offene GestaltungFinde ich jetzt nicht. Ja, Allraum ist offen. Aber bis man da hingelangt, ist halt ein Weg, der vom Eingang aus nicht einladend ist. Ich würde wohl die Treppe nach planoben verlagern, dass man nach planunten den Flur gleich öffnen kann.S
SliPkNoT184825.09.24 06:03ypg schrieb:
Finde ich jetzt nicht. Ja, Allraum ist offen. Aber bis man da hingelangt, ist halt ein Weg, der vom Eingang aus nicht einladend ist. Ich würde wohl die Treppe nach planoben verlagern, dass man nach planunten den Flur gleich öffnen kann.Meinst du mit nach planoben verlagern in den Bereich von WC und Speisekammer und dementsprechend WC und Speisekammer nach unten?SliPkNoT1848 schrieb:
Meinst du mit nach planoben verlagern in den Bereich von WC und Speisekammer und dementsprechend WC und Speisekammer nach unten?Naja, ich würde es nicht 1:1 tauschen. Und die Treppe ist firstseitig ja grundsätzlich immer gut aufgehoben.Generell bedeutet eine Verlagerung immer eine Umplanung.
Mir persönlich würde es einfach nicht behagen, so wie es ist. Der Eingang und der Hauswirtschaftsraum ist ja vom Haus durch den Zwischenbau getrennt, und da ist mir halt die ganze Flursituation zu trennend und lang und deshalb nicht offen hinsichtlich Attraktivität des Allraumes, wo man sich aufhält, allerdings für den Alltagsablauf auch der Flur störend sein kann
SliPkNoT1848 schrieb:
eventuell zu dunkel im Bereich Treppe EGIch würde wohl auch den Allraum nicht lang planen, sondern als L, denn SW ist ja nun mal auch Garten und eigentlich die bessere Raumlage zur Gartennutzung. Die optimale Terrassenlage hinsichtlich Sonnenausrichtung wäre in meinen Augen derzeit dort, wo Chillbereich/TV und Büro ist.
Zudem muss man ja auch bedenken, dass im Allraum 5 Personen leben, die sich nicht mal optisch aus dem Weg gehen können. So eine L-Form garantiert Dir immer eine Ecke, wo man eine Situation hinverlagern kann: Küchenarbeiten und um die Ecke können Kinder ungestörter TV schauen. Ist Besuch da, so können andere Bewohner auch noch etwas ungestörter den Raum nutzen. Ich erlebe es bei unseren Kindern, die mit eigenen Kindern und Nichten sich zwar mit uns im Allraum aufhalten, aber wir uns nicht akustisch und optisch auf die Füße treten.
Wenn die Kids etwas älter sind, könnten die sich mit Freunden Pizza machen, während die Eltern TV schauen können, ohne sich beobachtet zu fühlen.
Der Hausentwurf ist ansonsten flüssig, Fenster im SW OG kann man verkleinern, also mit Brüstung. Ich allerdings würde da nochmal diesen Anbau mit dem Eingang in Kombi mit dem Allraum überdenken.
Ähnliche Themen