Hausbau - Ratgeber
Bauherrenhilfe
- Bauherrenhilfe vor Vertragsabschluss
-- Warum einen unabhängigen Baubetreuer?
-- Vertragsgrundlagen
-- Bausumme
-- Zahlungsplan zur Kostenkontrolle
-- Pflichten des Bauherren vor Vertragsabschluss
-- Unterlagen beim Hausbau vor Vertragsabschluss
- Bauherrenhilfe nach Vertragsabschluss
-- Bauantrag bei Behörden
-- Bau-Genehmigungsverfahren bei Baubehörden
-- Bauspezifische Versicherungen
-- Bauzeitenplan
-- Baubeginn - die Letzten Pflichten der Bauherrschaft
- Bauherrenhilfe während der Bauzeit
- Gewährleistungsansprüche
- Bauabnahme
Baufinanzierung
- Baufinanzierung - Allgemeine Fragen
- Kreditarten
- Kredit-Konditionen
- Bausparen
- Staatliche Förderungen
- Verkehrswert
- Haushaltsrechnung und Bonität
Hausbau Planung
- Haustypen
- Hausbau Vorbereitungsarbeiten
- Das Baugrundstück
- Baugrund beim Hausbau
- Baurecht
- Gebäudeschutz
- Erdarbeiten und Wasserhaltung
- Stützmauern
- Einfriedung
- Untergeschoss
- Kanalisation
- Tragende Elemente
- Nichttragende Innenwände
- Fundation / Fundament
- Deckenkonstruktionen
- Dächer
- Kaminanlagen
- Treppen Rampen Leitern
- Dachbeläge und Spengler
- Fenster
- Sonnen und Wetterschutz
- Aussenputze
- Einbauten, Küchen, Türen
- Bodenbeläge und Unterlagsböden
- Parkett
- Gips, Wand, Decke
Haustechnik und Energie
- Heiztechnik
- Lüftung und Klimatechnik
- Sanitärtechnik
- Elektrotechnik
- Erneuerbare Energie
Whirlpools / Jacuzzi
Hausbau Magazin
- Baufinanzierung trotz Krise?
- Das Blockhaus
- Moderne Dämmstoffe im Vergleich
- Erker Vor- und Nachteile
- Glasflächen beim Hausbau
- Günstig ein Haus Bauen
- Mediterraner Hausbaustil
- Mehrgenerationenhaus
- Moderne Architektur
- Gartengestaltung leicht gemacht
- Traditioneller Ziegelbau
- Villa als höchster Traum
- Im Eigenheim Ruhestand geniessen
- Altbau sanieren
- Kauf einer Holzgarage
- Immobilienmakler
- Arbeitshandschuhe für den Winter
- Zuhause verschönern
- Outdoor-Plissees
- Schlafzimmer planen
- Terrassenüberdachung
- Wohngebäudeversicherung
- Zaunarten und Eigenschaften
- Hauseingang gestalten
- Der perfekte Grundriss
- Sparsamer heizen im Altbau
- Einfamilienhaus smart finanzieren
- Planung einer PV-Anlage
- Neues Haus
- Immobilienfinanzierung
- Installation einer Photovoltaikanlage
- Asbest erkennen und entfernen
- Gartenpflege im Frühling – worauf achten
- Sauna im Fokus - Wellness zuhause
- Erfolgreich vermieten
- Die perfekte Winterbekleidung
- Das Niedrigenergiehaus
- Der April und seine Stürme
- Architektonische Vielfalt
- Ökologisch und nachhaltig bauen
- Das perfekte Schlafzimmer
- Nachhaltige Energieversorgung
- Zukunftsorientiert bauen
- Nachhaltigkeit beim Hausbau
- Tiny Houses
- Wärmepumpen als nachhaltige Heizvariante
- Maßgeschneiderten Kleiderschrank
- Der richtige Baukredit
- Ratgeber für erfolgreichen Hausbau
- Haus als Altersvorsorge
Do-it-yourself Anleitungen
- Verlegeanleitung für Bodenbeläge und Parkett
- Bodenbeläge und Parkett reinigen und pflegen
- Malerarbeiten am Haus
- Garten Tipps
- Umzug und Reinigung

ᐅ Meinungen zu Einfamilienhaus Grundriss

Erstellt am: 14.09.15 08:23
F
Final
F
Final
14.09.15 08:23
Wir sind gerade an der Planung für unseren Grundriss und wollte gerne nochmal eine andere Meinung hören:

Größe des Grundstücks 472qm (16 * 29,5)
Hang nein (Grundstück liegt aber 1m unterhalb der Straße)
Grundflächenzahl 0,4
Geschossflächenzahl 0,8
Baufenster, Baulinie und -grenze: 5m Abstand Straße, 16m breit und 14m tief
Randbebauung: nein (Garage erlaubt)
Anzahl Stellplatz: 2
Geschossigkeit: 2
Dachform: 20-45 Grad oder Flachdach
Stilrichtung: keine Vorgaben
Ausrichtung: egal
Maximale Höhen/Begrenzungen: unbekannt
weitere Vorgaben: Oberfächenversickerung

Anforderungen der Bauherren
"Standard" Satteldach ohne Besonderheiten
Wohnfläche ~130 qm
Personen: 2 + 1 Kind (1 weiteres geplant)
mit Keller (erstens wollen wir gerne einen und zweitens wurde gesagt, dass bei einem tiefer liegenden Grundstück keinen Sinn macht ohne zu bauen)
Gästezimmer als Familienbüro und für Gäste (~ 1 Mal alle 2 Monate) genutzt
keine offene Küche
kein Kamin

Hausentwurf
Entwurf stammt vom Planer des Generalübernehmers
Das Haus würde ~20 Grad nach rechts gedreht auf dem Grundstück stehen
Drempel ist 75 cm
Dachneigung ist 45 Grad
Die Garage ist links vom Haus geplant

-------------

EG:
Die Speisekammer ist als Abstellraum für Staubsauger ect. gedacht, wobei wir mittlerweile eher dazu tendieren sie ganz rauszunehmen, um mehr Platz in der Diele für Garderobe ect. zu haben, evtl. wird das sonst zu eng(?) Und im Gäste zimmer für diese Sachen zu reservieren.

Küche sollte eigentlich groß genug sein oder sollte man die etwas nach unten vergrößern, wenn die Speisekammer wegkommt?

Gäste-WC ist zwar klein, aber kenne die Größe von meinen Eltern und finde die ausreichend.

Wir hätten auch noch gerne ein Fenster im Wohnzimmer rechts am esstisch.

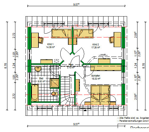
DG:
Unsicher sind wir uns bei der unterschiedlichen Größe der Kinderzimmer, aber finden das noch im Rahmen?

Vielen Dank schonmal im Voraus.
D
Doc.Schnaggls
14.09.15 08:55
Hallo,

kann es sein, dass die Anhänge (Grundrisse) fehlen?

Grüße,

Dirk
F
Final
14.09.15 09:17
Doc.Schnaggls schrieb:
Hallo,

kann es sein, dass die Anhänge (Grundrisse) fehlen?

Grüße,

Dirk
Ohje 🙁 vor lauter Text schreiben vergessen gehabt, jetzt aber als Anhang dabei, danke für den Hinweis.

Grundriss eines Erdgeschosses mit Wohnzimmer, Küche, Essbereich, Diele und Gästezimmer


2D-Grundriss-Obergeschoss mit Schlafzimmer, zwei Kinderzimmern und Bad
W
Watcher78
14.09.15 09:29
Fehlt das nicht auch noch der KG Grundriss ?
L
Legurit
14.09.15 09:50
  • Verzichte bitte auf die Speisekammer und nutz das auch als Garderobe - sonst wird du da nicht glücklich. Kinder haben viele viele Schuhe und brauchen auch etwas Platz um die anzuziehen. Ohne Speisekammer könntet ihr planunten eine Schuhbank stellen und Planoben einen Schrank und Spiegel.
  • Bitte auch diese 45°-Wand entfernen und zwar zu Gunsten der Küche. Dann könnt ihr in die Ecke bequem einen Hochschrank stellen, der die Speisekammer ablöst (mal ehrlich, so viel Konserven lagert man eh nicht)
  • Im OG solltet ihr das mit dem Bett tunlichst ausprobieren, nicht dass ihr euch da den Kopf stoßt.
  • Weiterhin würde ich alle 45° Ecken dort entfernen; zugunsten der Kinderzimmer und zu ungunsten des Schlafzimmers (hoffe es ist verständlich, was ich denke 😀) -> Tür im Schlafzimmer würde ich ruhig nach planunten aufgehen lassen, dann habt ihr kein Verlust an Schrankfläche. Flur OG etwa so:


Vereinfachte Grundriss-Skizze eines Hauses mit wenigen Linien Wänden Türen
D
Doc.Schnaggls
14.09.15 09:54
Hallo,

wenn Ihr ohnehin darüber nachdenkt, die Speisekammer im EG wegzulassen, würde ich, an Eurer Stelle, darüber nachdenken, einen Teil dieser Speisekammer in Form einer Dusche dem WC im EG zuzuschlagen.

Bei geschätzten 6 Übernachtungsbesuchen pro Jahr wollte ich nicht jedes Mal mein Bad mit den Besuchern teilen müssen.

Ein zusätzliches Fenster rechts vom Esstisch finde ich auch sinnvoll.

So wie derzeit Eingang und Treppenantritt geplant sind, lauft Ihr auch grundsätzlich durch den Schmutzbereich an der Tür nach oben in den Schlafbereich. Mir fällt allerdings auf die Schnelle auch keine alternative Lösungsmöglichkeit ein, wenn die Raumplanung so bleiben soll.

Im Bad im DG würde ich noch über ein zweites Waschbecken nachdenken - für vier Personen (wie von Euch geplant) finde ich nur ein Waschbecken etwas knapp.

Grüße,

Dirk

Edit: Ich persönlich würde die 45° Ecken unbedingt drin lassen - das lockert die sonst sehr rechtwinklige Architektur deutlich auf. Wir haben im DG auch die Zugänge zu den Kinderzimmern im 45° Winkel gebaut und sehen dies nach wie vor, wie im Übrigen auch alle bisherigen Besucher, als optisches Highlight.
speisekammergrundstückküchegaragegarderobefensteresstischkinderzimmerplanuntentür