Meinung zu Grundriss

4,30 Stern(e) 3 Votes
Zuletzt aktualisiert 20.11.2025
Sie befinden sich auf der Seite 2 der Diskussion zum Thema: Meinung zu Grundriss
>> Zum 1. Beitrag <<

8

86bibo

Euch muss es gefallen. Für meinen Geschmack opfert ihr jedoch viel Platz im Wohnzimmer, der nicht genutzt wird. Selbst wenn jetzt dort die Kinder spielen, wie lange wird das so sein?
 
B

Bauexperte

@ wirausa

Helma® - ein Massivhausanbieter. Dein OG, wie Deine Ansichten sind typische Vi-2000 Entwürfe.




Bauexperte
 
B

Bamue89

Hallo erst einmal,

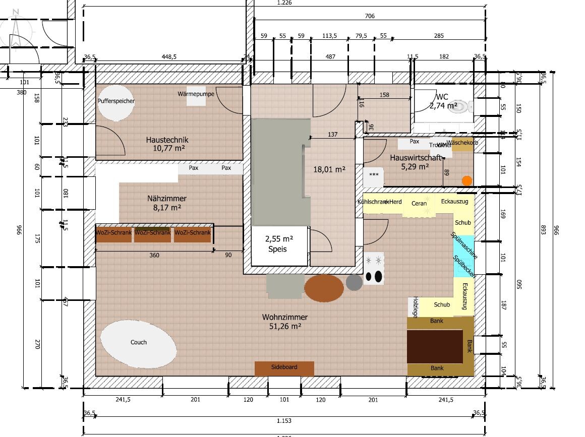
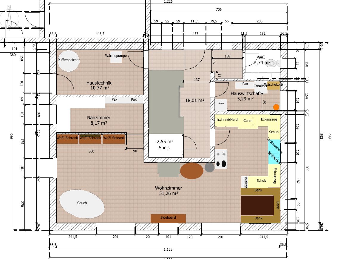
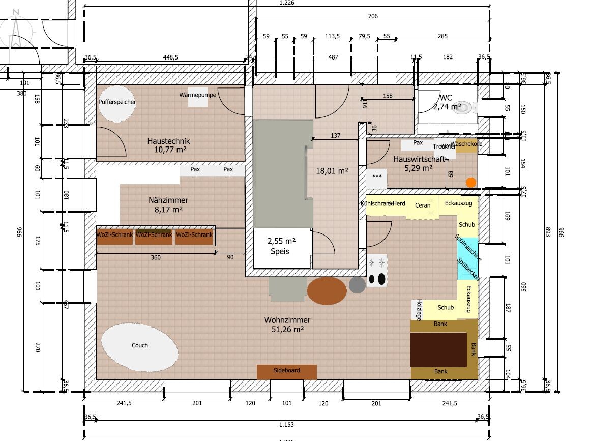
kann den ersten Eindruck meiner Vorredner nur bestätigen. Hier sind viele größere und kleinere Fehler in der Planung. Sicherlich ein schöner Gedanke, den ideellen Wert der Küche zu erhalten aber bitte nicht so ... Ich kann mir das Haus in seiner Nutzung überhaupt nicht vorstellen. Erkenne keine klare Linie in der Planung. Alleine der Flur. Man kann so schöne Eindrücke mit Sichtachsen erwecken, welche hier 0 vorhanden sind. Der Grundriss ist wirklich nur anhand vermeintlicher Nutzbarkeit eurerseits entstanden. Hier fehlt komplett das Gefühl für Raumgrößen. Das Wohnzimmer ist von der qm- Anzahl nen Traum aber vom Schnitt ne riesen Katastrophe. Warum ist die Tür zur Küche da ? Laufe ich da etwas am Herd vorbei ? Wie gesagt ich kann es mir als Außenstehender überhaupt nicht vorstellen und irgendeine Ästhetik in der Planung entdecken, sorry.

Bitte schnell alle Wünsche aufschreiben und ab zum Architekten, das war nix.

trotzdem liebe Grüße

 
Y

ypg

Hmm, was soll denn das gleich neben der Küchentür sein, auf dem Weg in den Riesenraum?
Anhang anzeigen 9459
Das scheint der Herd zu sein - so ganz stand-alone, ohne Ablage.

@TE: es ist ein Unterschied, ob man von einer offenen Küche spricht und sie beim Durchgehen zum WZ streift oder durch diese gehen _muss_. Da bleibt keine überraschende Pkätzchenbäckerei ein Geheimnis, jeder notwendige Gang durch eine dadurch nicht mehr heimelige Küche... Die nutzlose Mitte des WZ/Ess kann man sich schönreden (->Spielecke), aber somit verkommt diese Verkehrsfläche einfach nur zur Stolperfalle durch Playmobil und Lego.
Einreihend die Aussagen von den anderen Usern...
Es gibt wirklich durchdachtere Grundrisse.

Und mal Hand aufs Herz: jede Ikea-Küche kann man an jedem Ort wieder anders aufbauen - das sollte mit Eurer Küche auch passieren können. Mir scheint sie auch nicht gerade ideal, aber das ist mein Empfinden.... Plan gibt ja auch nicht gerade Details her.

P.s. Wenn im DG eine Zukünftige Wohnung geplant wird oder auch nur ein Wohnraum, dann sollten dort gleich anständige Fenster verbaut werden anstatt der Notfenster.
 
C

Curly

Hallo,

ich kenne mich mit "landhausoptik" jetzt nicht so aus, aber muss man für diese Optik solche Minifenster einbauen? Wenn man von Norden euer Haus betritt, schaut man auf eine Wand. Durch die Minifenster wird dann dieser Gang zur Küche auch noch sehr dunkel sein. Das wirkt nicht sehr einladend und muss doch in einem Neubau nicht sein. Warum macht ihr den Eingang ins Wohnzimmer nicht geradeaus, so kommt von der Südseite auch noch Licht in den Flur? Wieso plant ihr diese eckbank an der Küche, kommt da noch ein "richtiger" Essplatz in die Mitte des Wohnzimmers? Ihr wollt doch mit Besuch nicht auf einer Eckbank sitzen, bei der jeder aufstehen muss, wenn einer mal den Tisch verlassen will, oder? Kinder spielen nur ganz kurze Zeit im Wohnzimmer der Eltern, danach sieht man sie fast nie wieder im Wohnzimmer :) .

LG
Sabine
 
Zuletzt aktualisiert 20.11.2025
Im Forum Grundrissplanung / Grundstücksplanung gibt es 2535 Themen mit insgesamt 87978 Beiträgen


Ähnliche Themen zu Meinung zu Grundriss
Nr.ErgebnisBeiträge
1Offene Küche bereut oder doch das Non plus Ultra? - Seite 10104
2Kombination Fliesen und Parkett im Wohnzimmer mit offener Küche - Seite 330
3Grundrissplanung Wohnzimmer-Küche 18
4Fliesen oder Vinyl in Küche und Flur 19
5Wohnen/Essen/Küche: Wie wohnt ihr oder werdet ihr wohnen? - Seite 852
6Wohnzimmer Grundrissplanungs-Ideen? - Seite 239
7Grundriss Einfamilienhaus - Problemfall Küche 20
8Wohnzimmer: Wie Sofa, TV und Schränke stellen? - Seite 432
9Grundriss für 150qm Einfamilienhaus mit Wohnzimmer nach Norden - Seite 321
10Küche: geschlossen oder offen? Welche Raumaufteilung? - Seite 286
11Geschlossene oder offene Küche ? 11
12Planung Wohnraum & Küche eines Doppelhaushälfte in Nürnberg 13
13Probleme bei der aufteilung Küche, Essen , Wohnen 16
14Grundriss Halboffene Küche mit großem Essbereich - Detailfragen 12
15Beleuchtung in Diele und Küche: Deckeneinbau-Strahler benötigt? - Seite 219
16Esstisch in einer kleinen Küche 49
17Türanschlag zum Wohn/-Essbereich und Beleuchtung Küche 13
18IKEA Metod Küche - Ideen / Anregungen zum Plan? 29
19Planungsbeginn neue Küche 22
20Ikea Metod und Herd auf Höhe 50cm anbringen möglich? - Seite 213

Oben