ᐅ Lichte Raumhöhe und Fensterhöhe. Standard des Anbieters 262.50cm
Erstellt am: 07.12.17 13:20
C
chrisw81B
baumann4208.12.17 11:19"Hallo, wir planen grad ein Haus mit Satteldach (38° "
aha, dann wird ein Raum von ca. 11,5 x 4 m geplant ? nicht grad
eine Meisterleistung so einen Schlauch !!!
schon al ein Haus "geplant" ?
aha, dann wird ein Raum von ca. 11,5 x 4 m geplant ? nicht grad
eine Meisterleistung so einen Schlauch !!!
schon al ein Haus "geplant" ?
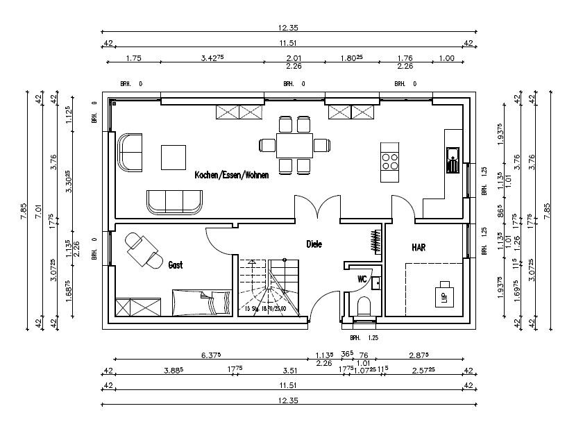
Die ursprüngliche Planung sieht sogar nur 11,5 x 3,7 vor! Ich möchte aber auf jeden Fall so umplanen, dass ich im Wohnzimmer und Esszimmer auf etwa 4,20 bis 4,30 Breite komme. Bei der Küche sind ja dann 4m ok (verjüngt sich quasi zur Küche hin). Wenn es doch zu schlauchig ist, kann man auch die Küche noch abteilen durch eine Trockenbauwand.
Was ich daran gut finde:
1) Man kann auch von der Küche nach Süden raustreten, bei den Standard L-Grundrissen muss man von der Küche immer durch das Esszimmer raus.
2) durch die geringe Breite des Hauses wird die Firsthöhe gering. Bei 1,5 m Kniestock und 38° Dachneigung bleiben wir dann unter den geforderten 8,5 m Firsthöhe. Das ist bei einer "Standard"Breite von 10m etc. kaum zu schaffen.
Ich versuche aber, den Grundriss noch so zu verändern, dass die Breite etwas mehr und die Länge weniger wird...
Hier mal der ursprüngliche Grundriss:

Was ich daran gut finde:
1) Man kann auch von der Küche nach Süden raustreten, bei den Standard L-Grundrissen muss man von der Küche immer durch das Esszimmer raus.
2) durch die geringe Breite des Hauses wird die Firsthöhe gering. Bei 1,5 m Kniestock und 38° Dachneigung bleiben wir dann unter den geforderten 8,5 m Firsthöhe. Das ist bei einer "Standard"Breite von 10m etc. kaum zu schaffen.
Ich versuche aber, den Grundriss noch so zu verändern, dass die Breite etwas mehr und die Länge weniger wird...
Hier mal der ursprüngliche Grundriss:
chrisw81 schrieb:
1) Man kann auch von der Küche nach Süden raustreten, bei den Standard L-Grundrissen muss man von der Küche immer durch das Esszimmer raus.Das ist nicht wahr .. beim L kann man auch gut den Wohnbereich dorthin planen, wo im Standard die Küche ist und umgekehrt. Dann hat der Wohnbereich die Ruhe und die Küche liegt an der Terrasse.Und, 376 cm Breite bei einem 1151 cm langem Raum ist schon wirklich sehr schmal. Da sollte man Möbel (Tisch, Küche) dann auch mal mit realistischen Maßen eintragen. Insbesondere wenn eine sinnvolle Kücheninsel gedacht ist, an der man auch vorbeimöchte. Bleiben gerade so 180 cm.
Ich selber habe hier einen ca. 720 cm langen Raum, der ist ist aber 410 cm tief. (Nur Küche und Tisch mit Ostfriesensofa). Gut 30 cm schmaler hätte mich z. B. in der Küchenplanung doch eingeschränkt.
Dein Maß von 2,26m für die Höhe der Fenster wird das Rohbaumaß sein, d.h. es gehen noch 16-18cm für den Estrich davon ab und eure Fenster werden ca. 2,10m hoch werden. Wir haben 2,70m Raumhöhe und die Fenster sind 2,33m hoch. Ich finde die Maße sehr schön, es sieht sehr luftig aus.
LG
Sabine
LG
Sabine
Curly schrieb:
Dein Maß von 2,26m für die Höhe der Fenster wird das Rohbaumaß sein,Das kann sein, muß es aber nicht. Häufig muß man Schnittzeichnungen bemühen, weil es in Grundrissen nicht angegeben wird, worauf sich das Maß bezieht.Curly schrieb:
Dein Maß von 2,26m für die Höhe der Fenster wird das Rohbaumaß sein, d.h. es gehen noch 16-18cm für den Estrich davon ab und eure Fenster werden ca. 2,10m hoch werden. Wir haben 2,70m Raumhöhe und die Fenster sind 2,33m hoch.Für Rollladenkasten wird gern mit etwa 30 cm Höhe gerechnet, wenn sie mit dem Fenster verbunden geliefert werden sollen. Etwa 30 bis 40 cm Abstand zur Decke ist ein gutes Maß, wenn die Fenster nicht hochgerutscht aussehen oder die Decke optisch herunterziehen sollen.In jedem Fall rate ich dazu, Raumhöhe und Fensterhöhe immer gekoppelt anzupassen. In der Raumhöhe um ca. 20 cm mehr zu nehmen (da müssen es übrigens nicht 12,5-cm-Schritte sein) und die Fensterhöhe im Standardmaß zu lassen, hätte eben den beschriebenen Effekt, dem Licht eine Schattenschwelle in den Weg zur Decke zu stellen.
https://www.instagram.com/11antgmxde/
https://www.linkedin.com/company/bauen-jetzt/
Ähnliche Themen