Hausbau - Ratgeber
Bauherrenhilfe
- Bauherrenhilfe vor Vertragsabschluss
-- Warum einen unabhängigen Baubetreuer?
-- Vertragsgrundlagen
-- Bausumme
-- Zahlungsplan zur Kostenkontrolle
-- Pflichten des Bauherren vor Vertragsabschluss
-- Unterlagen beim Hausbau vor Vertragsabschluss
- Bauherrenhilfe nach Vertragsabschluss
-- Bauantrag bei Behörden
-- Bau-Genehmigungsverfahren bei Baubehörden
-- Bauspezifische Versicherungen
-- Bauzeitenplan
-- Baubeginn - die Letzten Pflichten der Bauherrschaft
- Bauherrenhilfe während der Bauzeit
- Gewährleistungsansprüche
- Bauabnahme
Baufinanzierung
- Baufinanzierung - Allgemeine Fragen
- Kreditarten
- Kredit-Konditionen
- Bausparen
- Staatliche Förderungen
- Verkehrswert
- Haushaltsrechnung und Bonität
Hausbau Planung
- Haustypen
- Hausbau Vorbereitungsarbeiten
- Das Baugrundstück
- Baugrund beim Hausbau
- Baurecht
- Gebäudeschutz
- Erdarbeiten und Wasserhaltung
- Stützmauern
- Einfriedung
- Untergeschoss
- Kanalisation
- Tragende Elemente
- Nichttragende Innenwände
- Fundation / Fundament
- Deckenkonstruktionen
- Dächer
- Kaminanlagen
- Treppen Rampen Leitern
- Dachbeläge und Spengler
- Fenster
- Sonnen und Wetterschutz
- Aussenputze
- Einbauten, Küchen, Türen
- Bodenbeläge und Unterlagsböden
- Parkett
- Gips, Wand, Decke
Haustechnik und Energie
- Heiztechnik
- Lüftung und Klimatechnik
- Sanitärtechnik
- Elektrotechnik
- Erneuerbare Energie
Whirlpools / Jacuzzi
Hausbau Magazin
- Baufinanzierung trotz Krise?
- Das Blockhaus
- Moderne Dämmstoffe im Vergleich
- Erker Vor- und Nachteile
- Glasflächen beim Hausbau
- Günstig ein Haus Bauen
- Mediterraner Hausbaustil
- Mehrgenerationenhaus
- Moderne Architektur
- Gartengestaltung leicht gemacht
- Traditioneller Ziegelbau
- Villa als höchster Traum
- Im Eigenheim Ruhestand geniessen
- Altbau sanieren
- Kauf einer Holzgarage
- Immobilienmakler
- Arbeitshandschuhe für den Winter
- Zuhause verschönern
- Outdoor-Plissees
- Schlafzimmer planen
- Terrassenüberdachung
- Wohngebäudeversicherung
- Zaunarten und Eigenschaften
- Hauseingang gestalten
- Der perfekte Grundriss
- Sparsamer heizen im Altbau
- Einfamilienhaus smart finanzieren
- Planung einer PV-Anlage
- Neues Haus
- Immobilienfinanzierung
- Installation einer Photovoltaikanlage
- Asbest erkennen und entfernen
- Gartenpflege im Frühling – worauf achten
- Sauna im Fokus - Wellness zuhause
- Erfolgreich vermieten
- Die perfekte Winterbekleidung
- Das Niedrigenergiehaus
- Der April und seine Stürme
- Architektonische Vielfalt
- Ökologisch und nachhaltig bauen
- Das perfekte Schlafzimmer
- Nachhaltige Energieversorgung
- Zukunftsorientiert bauen
- Nachhaltigkeit beim Hausbau
- Tiny Houses
- Wärmepumpen als nachhaltige Heizvariante
- Maßgeschneiderten Kleiderschrank
- Der richtige Baukredit
- Ratgeber für erfolgreichen Hausbau
- Haus als Altersvorsorge
Do-it-yourself Anleitungen
- Verlegeanleitung für Bodenbeläge und Parkett
- Bodenbeläge und Parkett reinigen und pflegen
- Malerarbeiten am Haus
- Garten Tipps
- Umzug und Reinigung

ᐅ Jetzt auch von mir einen Grundriss

Erstellt am: 10.11.14 21:22
X
Xinette
X
Xinette
10.11.14 21:22
Da Ihr ja bei vielen Grundrissen so tolle Ideen und Vorschläge habt, möchte ich unseren ersten Vorschlag auch mal Online stellen.
Wir brauchen 3 KZ. Wir wollen 2 Badezimmer. 1 braucht nur eine Dusche haben.
Wir wollen aber auch ein Gästezimmer haben.
Das Schlafzimmer soll im Zwerchgiebel sein. da unser Grundstück so gelegen ist, das man von dort einen Traumblick hat.
Was gefällt uns selber nicht:
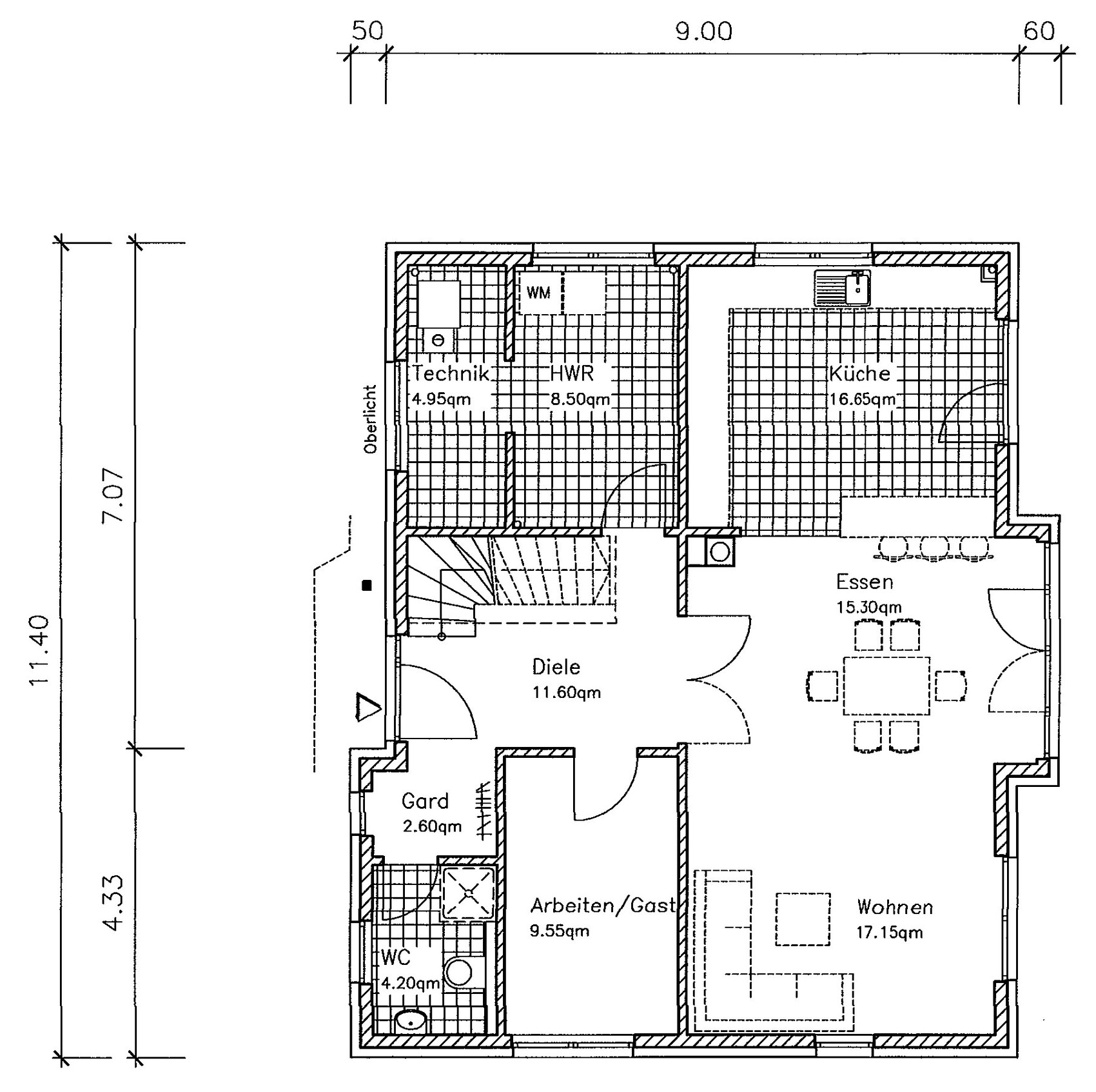
Der Kamin ist total blöd. Er steht so kurz vor dem Ende der Küchenzeile. Wir hätten ihn gerne weiter in Richtung Wohnbereich. Frage ist nur wie kann man das ganze oben verändern. Im Moment sind wir mit 172 m2 dabei. Zur Not würden wir auch etwas größer bauen.

Glg Xinette
X
Xinette
10.11.14 21:25
Hier sind die Grundrisse

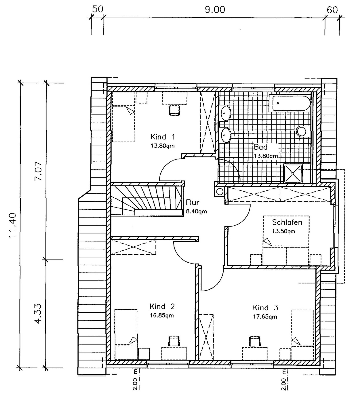
Grundriss eines Obergeschosses mit Flur, Bad und drei Kinderzimmer


Grundriss eines Hauses mit Küche, Essbereich, Wohnzimmer, Diele, Technikraum und WC
L
Legurit
10.11.14 21:45
Abstand vom Bett zum Schrank ist zu klein würde ich tippen.
Fläche neben der Treppe wirkt unglücklich
Küche ist sehr groß für die Möblierung
Eingang genau neben Treppenaufgang (haben viele, ist wohl aber schmutztechnisch nicht ideal)
Garderobe für 3 Kinder ggf. zu klein und wird von einer offenen Tür versperrt - habt ihr mehr als 2 Gäste gibt es ggf. Stau.
Wohnen im Verhältnis etwas klein (wobei es ja offen ist)
Kamin ist wirklich etwas verloren dort.
Bad oben ist ggf. etwas groß.
M
milkie
10.11.14 22:10
BeHaElJa's Anmerkungen bestätige ich.

Ich würde die Treppe umplatzieren. Direkt neben der Haustür bedeutet, dass der Straßenschmutz auch nach oben getragen wird.
Dadurch ändert sich dann der komplette Grundriss, deshalb spreche ich keine Verbesserungsvorschläge an.
X
Xinette
10.11.14 22:17
Habt Ihr ein Beispiel für eine andere Treppe und drei KZ plus ein Schlafzimmer im OG? Bei allen Vorzeichnungen sind wir nämlich immer wieder auf diese Treppenform gekommen. Sonst passt es oben nicht.
GLG Xinette
Y
ypg
10.11.14 22:19
Ich erkenne die Handschrift 😉. Landhaus 170 mit freier Planung.
Mir gefällt er auch nicht. Aus oben genannten Gründen. Die haben lieblos die Wände verschoben.
Wie ist denn Euer Grundstück? Vlt bietet sich ein seitlicher Eingang mit einer 2/4gewendelten Treppe in der Mitte der langen Seite besser an?

Gruss Yvonne
treppeschlafzimmergrundstückkamineingang