Hallo liebe Forengemeinde,
wir sind nun schon seit einiger Zeit in der Planungsphase mit unserem Architekten und ich denke langsam könnte es an der Zeit sein, ein paar andere Fachmänner und Fachfrauen über unseren bisherigen Entwurf drüberschauen zu lassen. 😉
Bebauungsplan/Einschränkungen:
Größe des Grundstücks: ca. 1200 qm
Hang: leicht (10%) Richtung SW
Bebauungsplan: §34 Ortskernlage
Anforderungen der Bauherren:
Klassischer Stil, Satteldach, jedoch kein 4-eckiger "Kasten" 😉
2 Vollgeschosse mit Keller
Anzahl der Personen, Alter: bisher 3 (36, 34, 1) + x?
Büro: Familiennutzung, ggf. später mal Homeoffice
Schlafgäste pro Jahr: weniger
offene Küche, Kochinsel
Holzofen wegen Raumgefühl, Primärheizung über Erdwärmepumpe
Balkon, Dachterrasse: nicht unbedingt
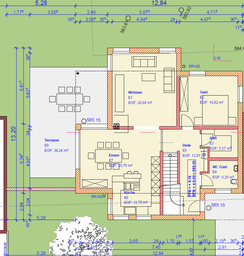
Unser EG gefällt uns eigentlich schon ganz gut, lediglich die Fensteraufteilung im WZ könnte noch überarbeitet werden und eine Dusche muss noch rein. Technik ist komplett im KG untergebracht.
Wo uns im Moment leider die Ideen ausgehen, ist bei der Gestaltung des OG.
Was sollte rein:
- Schlafzimmer
- Ankleide
- mind. 2 Kinderzimmer
- Bad mit WC, evtl. auch zus. separates WC
- ebenfalls wünschenswert wäre ein Durchgang Schlafzimmer -> Ankleide -> Bad
Eigentlich nicht so schwierig, meint man 🙄
Aber irgendwie leiden wir bereits zu sehr unter "Betriebsblindheit" und uns fällt einfach keine gescheite Lösung ein!
Was meint ihr dazu? Wie würdet ihr den oberen Stock aufteilen?
Gruß,
hasa222


wir sind nun schon seit einiger Zeit in der Planungsphase mit unserem Architekten und ich denke langsam könnte es an der Zeit sein, ein paar andere Fachmänner und Fachfrauen über unseren bisherigen Entwurf drüberschauen zu lassen. 😉
Bebauungsplan/Einschränkungen:
Größe des Grundstücks: ca. 1200 qm
Hang: leicht (10%) Richtung SW
Bebauungsplan: §34 Ortskernlage
Anforderungen der Bauherren:
Klassischer Stil, Satteldach, jedoch kein 4-eckiger "Kasten" 😉
2 Vollgeschosse mit Keller
Anzahl der Personen, Alter: bisher 3 (36, 34, 1) + x?
Büro: Familiennutzung, ggf. später mal Homeoffice
Schlafgäste pro Jahr: weniger
offene Küche, Kochinsel
Holzofen wegen Raumgefühl, Primärheizung über Erdwärmepumpe
Balkon, Dachterrasse: nicht unbedingt
Unser EG gefällt uns eigentlich schon ganz gut, lediglich die Fensteraufteilung im WZ könnte noch überarbeitet werden und eine Dusche muss noch rein. Technik ist komplett im KG untergebracht.
Wo uns im Moment leider die Ideen ausgehen, ist bei der Gestaltung des OG.
Was sollte rein:
- Schlafzimmer
- Ankleide
- mind. 2 Kinderzimmer
- Bad mit WC, evtl. auch zus. separates WC
- ebenfalls wünschenswert wäre ein Durchgang Schlafzimmer -> Ankleide -> Bad
Eigentlich nicht so schwierig, meint man 🙄
Aber irgendwie leiden wir bereits zu sehr unter "Betriebsblindheit" und uns fällt einfach keine gescheite Lösung ein!
Was meint ihr dazu? Wie würdet ihr den oberen Stock aufteilen?
Gruß,
hasa222
Ich sehe auch ein Problem mit der Treppe, aber in erster Linie ein gestalterisches.
Das Haus wird nicht gerade klein, wenn ich allerdings zur Haustüre rein komme, muss ich Angst haben, jemandem die Türe drauf zu schlagen, der gerade von der Treppe runter kommt.
Der Eingang gefällt mir persönlich gar nicht.
Ich würde wohl versuchen, irgendwie die Treppe gerade zu machen, dafür wird sie 1 - 2 M nach Planoben geschoben.
Dadurch wird auch ein Direkter Zugang zur Küche möglich. Der Slalom vom Auto zur Küche nervt euch nach ein Paar Wochen mit Einkäufen möglicherweise - mich würde es richtig ärgern.
Man müsste sich dann natürlich Gedanken über den Zugang zum Ess-/Wohnbereich machen, da die Treppe ja nach planoben rutscht, allerdings seh ich das nicht so als Problem.
Ich hab das mal versucht, bisschen darzustellen.
Außenwände sind so gut es ging, nach den Maßen aus deinem Plan.
Ich habe den Antritt der Treppe aum ca. 1,70 von der Planunteren Wand weg geschoben, somit sind noch 60cm für die Küchenzeile/Garderobe und 1,10 für den Durchgang und Türe zur Treppe vorhanden.
Die Grüne Wand hab ich bisschen nach planoben geschoben, damit noch der Zugang zum Ess/Wohnbereich rein passt.
Auf diese Garderobennische in der Diele hab ich bewusst verzichtet, weil ich finde, dass der Raum dadurch sehr schlauchig wird. Wobei ne Diele mit 22m² schon ne Ansage ist, allerdings gibt´s die Grundfläche des Hauses auch her.
Mein Cousin z.g. hat in seiner Diele nen Kicker stehen, find ich klasse 😉
Dadurch entsteht auch der Vorteil, dass man die Türe zum Gästezimmer weiter nach planrechts schieben kann, somit ist hinter der Türe Platz für nen schrank und man läuft auf ebendiesen nicht gleich zu, wenn man die Türe öffnet.
Ich würde wohl die Rot markierte Außenwand noch nach Planoben schieben, damit sie - wie in deinem Plan in einer Linie mit der grünen Wand ist.
Evtl wäre es auch eine Überlegung wert, die Treppe um 180° zu drehen, allerdings muss man dafür dann mal nen Plan fürs OG machen.

Das Haus wird nicht gerade klein, wenn ich allerdings zur Haustüre rein komme, muss ich Angst haben, jemandem die Türe drauf zu schlagen, der gerade von der Treppe runter kommt.
Der Eingang gefällt mir persönlich gar nicht.
Ich würde wohl versuchen, irgendwie die Treppe gerade zu machen, dafür wird sie 1 - 2 M nach Planoben geschoben.
Dadurch wird auch ein Direkter Zugang zur Küche möglich. Der Slalom vom Auto zur Küche nervt euch nach ein Paar Wochen mit Einkäufen möglicherweise - mich würde es richtig ärgern.
Man müsste sich dann natürlich Gedanken über den Zugang zum Ess-/Wohnbereich machen, da die Treppe ja nach planoben rutscht, allerdings seh ich das nicht so als Problem.
Ich hab das mal versucht, bisschen darzustellen.
Außenwände sind so gut es ging, nach den Maßen aus deinem Plan.
Ich habe den Antritt der Treppe aum ca. 1,70 von der Planunteren Wand weg geschoben, somit sind noch 60cm für die Küchenzeile/Garderobe und 1,10 für den Durchgang und Türe zur Treppe vorhanden.
Die Grüne Wand hab ich bisschen nach planoben geschoben, damit noch der Zugang zum Ess/Wohnbereich rein passt.
Auf diese Garderobennische in der Diele hab ich bewusst verzichtet, weil ich finde, dass der Raum dadurch sehr schlauchig wird. Wobei ne Diele mit 22m² schon ne Ansage ist, allerdings gibt´s die Grundfläche des Hauses auch her.
Mein Cousin z.g. hat in seiner Diele nen Kicker stehen, find ich klasse 😉
Dadurch entsteht auch der Vorteil, dass man die Türe zum Gästezimmer weiter nach planrechts schieben kann, somit ist hinter der Türe Platz für nen schrank und man läuft auf ebendiesen nicht gleich zu, wenn man die Türe öffnet.
Ich würde wohl die Rot markierte Außenwand noch nach Planoben schieben, damit sie - wie in deinem Plan in einer Linie mit der grünen Wand ist.
Evtl wäre es auch eine Überlegung wert, die Treppe um 180° zu drehen, allerdings muss man dafür dann mal nen Plan fürs OG machen.
Die Treppe ist hier:
sehr wohl ein Problem wg. Durchgangshöhe. Denn das OG ist ja kleiner und setzt auf der gestrichelten Linie auf. Weshalb halt erst über der 4. Stufe Kopffreiheit herrscht. Abgesehen davon stimme ich zu .. mit der Haustür fällt man auf die Treppe 😉
Bei der Umgestaltung von @matte1987, die ich im Ansatz erstmal gut finde, wird die Haustür sehr in die Ecke gequetscht, damit eben der Garderobenplatz entsteht.
Die insgesamt 659 cm für Garderobe, Auslaufbereich, Treppe und WZ-Einganzg (Treppenabgang in den Keller) ergeben:
659-170 f. Eingangsbereich - 110 für WZ-Durchgang = 379 cm ..Ok, bei Geschosshöhe (ungleich Raumhöhe) 280 cm ..
sehr wohl ein Problem wg. Durchgangshöhe. Denn das OG ist ja kleiner und setzt auf der gestrichelten Linie auf. Weshalb halt erst über der 4. Stufe Kopffreiheit herrscht. Abgesehen davon stimme ich zu .. mit der Haustür fällt man auf die Treppe 😉
Bei der Umgestaltung von @matte1987, die ich im Ansatz erstmal gut finde, wird die Haustür sehr in die Ecke gequetscht, damit eben der Garderobenplatz entsteht.
Die insgesamt 659 cm für Garderobe, Auslaufbereich, Treppe und WZ-Einganzg (Treppenabgang in den Keller) ergeben:
659-170 f. Eingangsbereich - 110 für WZ-Durchgang = 379 cm ..Ok, bei Geschosshöhe (ungleich Raumhöhe) 280 cm ..
Ähnliche Themen