Hausbau - Ratgeber
Bauherrenhilfe
- Bauherrenhilfe vor Vertragsabschluss
-- Warum einen unabhängigen Baubetreuer?
-- Vertragsgrundlagen
-- Bausumme
-- Zahlungsplan zur Kostenkontrolle
-- Pflichten des Bauherren vor Vertragsabschluss
-- Unterlagen beim Hausbau vor Vertragsabschluss
- Bauherrenhilfe nach Vertragsabschluss
-- Bauantrag bei Behörden
-- Bau-Genehmigungsverfahren bei Baubehörden
-- Bauspezifische Versicherungen
-- Bauzeitenplan
-- Baubeginn - die Letzten Pflichten der Bauherrschaft
- Bauherrenhilfe während der Bauzeit
- Gewährleistungsansprüche
- Bauabnahme
Baufinanzierung
- Baufinanzierung - Allgemeine Fragen
- Kreditarten
- Kredit-Konditionen
- Bausparen
- Staatliche Förderungen
- Verkehrswert
- Haushaltsrechnung und Bonität
Hausbau Planung
- Haustypen
- Hausbau Vorbereitungsarbeiten
- Das Baugrundstück
- Baugrund beim Hausbau
- Baurecht
- Gebäudeschutz
- Erdarbeiten und Wasserhaltung
- Stützmauern
- Einfriedung
- Untergeschoss
- Kanalisation
- Tragende Elemente
- Nichttragende Innenwände
- Fundation / Fundament
- Deckenkonstruktionen
- Dächer
- Kaminanlagen
- Treppen Rampen Leitern
- Dachbeläge und Spengler
- Fenster
- Sonnen und Wetterschutz
- Aussenputze
- Einbauten, Küchen, Türen
- Bodenbeläge und Unterlagsböden
- Parkett
- Gips, Wand, Decke
Haustechnik und Energie
- Heiztechnik
- Lüftung und Klimatechnik
- Sanitärtechnik
- Elektrotechnik
- Erneuerbare Energie
Whirlpools / Jacuzzi
Hausbau Magazin
- Baufinanzierung trotz Krise?
- Das Blockhaus
- Moderne Dämmstoffe im Vergleich
- Erker Vor- und Nachteile
- Glasflächen beim Hausbau
- Günstig ein Haus Bauen
- Mediterraner Hausbaustil
- Mehrgenerationenhaus
- Moderne Architektur
- Gartengestaltung leicht gemacht
- Traditioneller Ziegelbau
- Villa als höchster Traum
- Im Eigenheim Ruhestand geniessen
- Altbau sanieren
- Kauf einer Holzgarage
- Immobilienmakler
- Arbeitshandschuhe für den Winter
- Zuhause verschönern
- Outdoor-Plissees
- Schlafzimmer planen
- Terrassenüberdachung
- Wohngebäudeversicherung
- Zaunarten und Eigenschaften
- Hauseingang gestalten
- Der perfekte Grundriss
- Sparsamer heizen im Altbau
- Einfamilienhaus smart finanzieren
- Planung einer PV-Anlage
- Neues Haus
- Immobilienfinanzierung
- Installation einer Photovoltaikanlage
- Asbest erkennen und entfernen
- Gartenpflege im Frühling – worauf achten
- Sauna im Fokus - Wellness zuhause
- Erfolgreich vermieten
- Die perfekte Winterbekleidung
- Das Niedrigenergiehaus
- Der April und seine Stürme
- Architektonische Vielfalt
- Ökologisch und nachhaltig bauen
- Das perfekte Schlafzimmer
- Nachhaltige Energieversorgung
- Zukunftsorientiert bauen
- Nachhaltigkeit beim Hausbau
- Tiny Houses
- Wärmepumpen als nachhaltige Heizvariante
- Maßgeschneiderten Kleiderschrank
- Der richtige Baukredit
- Ratgeber für erfolgreichen Hausbau
- Haus als Altersvorsorge
Do-it-yourself Anleitungen
- Verlegeanleitung für Bodenbeläge und Parkett
- Bodenbeläge und Parkett reinigen und pflegen
- Malerarbeiten am Haus
- Garten Tipps
- Umzug und Reinigung

ᐅ Ideen für Bad-Grundriss gesucht

Erstellt am: 19.06.16 21:24
E
EA-Tec
EA-Tec19.06.16 21:24
Hallo Hausbau-Forum,

vorab: es geht um eine Wohnung, kein Haus! Da ich kein Eigentumswohnung-Forum gefunden habe, hoffe ich dass ich mich trotzdem an euch wenden darf!

Ich hab' das Problem, dass ich diese Woche Bescheid geben muss, wie wir das Bad haben möchten. Der Rohbau steht, die Innenwände sind (größtenteils) noch frei definierbar.

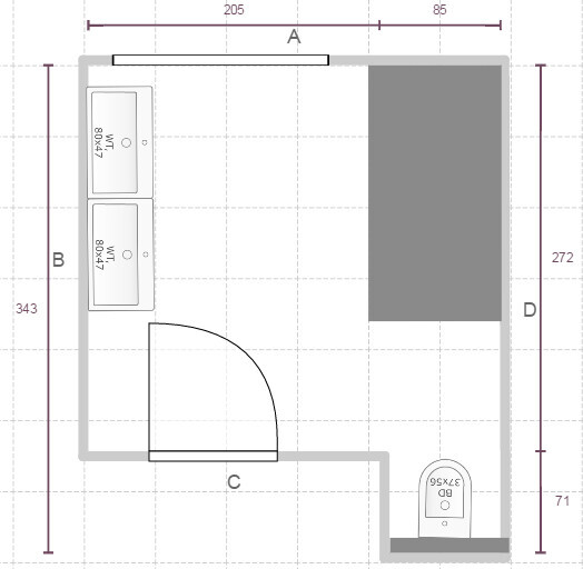
Alles ist soweit geklärt, lediglich das Badezimmer bereitet uns Kopfschmerzen. Wir haben zwei Möglichkeiten, siehe Anhänge. Wichtig ist, dass die Länge von 2,72m und die Breite von 3m fix sind. Also bei dem Entwurf mit der WC-Ecke die Wände A und B.

Das Blöde ist eigentlich das Fenster: es ist 1,51m (!) breit und hat einen Stulp, d.h. zwei Öffnungsmöglichkeiten (ungefähr 1,10m und 40cm), sowie eine Brüstungshöhe von 1,43m. Die Höhe des Fensters hab' ich im Moment nicht greifbar, dürften aber etwa 60cm sein. Ich fahr' diese Woche nochmal hin, und mess' das aus.

Wir wollen keine Badewanne, sondern eine möglichst große, bodenebene Dusche. Unten (also wo die WC-Schüssel ist) angrenzend ist das Gäste-Bad. Die Dusche im Hauptbad soll wiederum nicht zu groß sein, d.h. nicht unnötig Platz einnehmen.

Insgesamt benötigen wir einen waschtisch (Breite 1,60m), die WC-Schüssel, die Dusche sowie einen schrank für Handtücher und anderen Kleinkram.

Nun die Frage(n):
- Welcher Grundriss ist, euren Erfahrungen nach, besser/praktikabler?
- Macht eine 1,80m lange und 1m breite Dusche Sinn, oder ist das "too much"...? Das Grau ausgemalte soll die Dusche mit 1,80x1m darstellen.
- Welche Ideen habt ihr, was sonst noch umgesetzt werden könnte, bzw. was besser gemacht werden könnte?

Bitte nicht zu sehr auf die falschen Details im Grundriss achten (wie z.B. die falsch gedrehten Waschtische), bei der Grundrissänderung ging einiges schief, und ich hatte keinen Nerv alles nochmal richtig zu stellen.

Vielen lieben Dank im Voraus!!

Grundriss eines rechteckigen Raums mit Türöffnung und Beschriftungen A, B, C, D


Kleiner Badgrundriss mit Tür, Sanitäranlagen und Raumaufteilung
Y
ypg
19.06.16 22:16
Hallo, natürlich bist auch Du hier völlig richtig mit Deiner Wohnung 🙂

Welchen Raum gilt es jetzt zu beachten? Mit oder ohne Toilettennische?

Und welche Raumbreite gilt? Es sind zwei verschiedene angegeben, zusätzlich deine 3 Meter...
EA-Tec19.06.16 22:50
Hi,

super, das freut mich! :-)

Sehe gerade, dass die Bilder verdreht wurden - sollten eigentlich beide im gleichen Winkel hochgeladen werden.

Also die Wand von der Tür Richtung Fenster wird 2,72 m lang sein, die kann ich nicht ändern. Die Parallelwand jedoch schon (da kann ich z.B. die Toilettennische rein setzen). Die Wand vom Fenster ist nicht änderbar, die bleibt mit 3m so wie ist, bzw. wäre rein theoretisch änderbar, dann jedoch zu Lasten des Schlafzimmers.

Also, 272x300 sind die im Architekten-Vorschlag eingezeichneten Maße des Bades.

Setzen wir die Toilettennische um, geht dies zu Lasten des Abstellraumes, sowie ein klein wenig zu Lasten des Gästebades (hier jedoch vernachlässigbar).

Am Liebsten wäre es wenn wir eine große Dusche, sowie 160cm Waschtisch und Toilette vernünftig in den Grundriss ohne Nische umsetzen können.

Wir überlegen seit Tagen hin und her, und malen/zeichnen und rechnen, aber irgendwann ist der Kopf voll, so dass man keine neuen Ideen mehr hat, bzw. die Ideen sich permanent wiederholen.
Y
ypg
20.06.16 00:33
Die Tür ist verschiebbar?
EA-Tec20.06.16 01:59
Leider nicht.
Y
ypg
20.06.16 07:56
ypg schrieb:
Die Tür ist verschiebbar?

Ich frage, weil sie auf beiden Plänen andere Positionen hat.
Hier mal eine grobe Skizze

2D-Grundrissskizze eines kleinen Hauses mit Küche, Wohnzimmer und Bad


Warum braucht man 2 von übergroßen Waschbecken? Die nehmen viel zu viel Platz für Nothing weg, statt dessen wäre Ablagefläche von Nutzen.
duschefenstertoilettennischewohnungwaschtischgrundrisstür