C
Capri199011.02.22 11:27Hallo zusammen 🙂
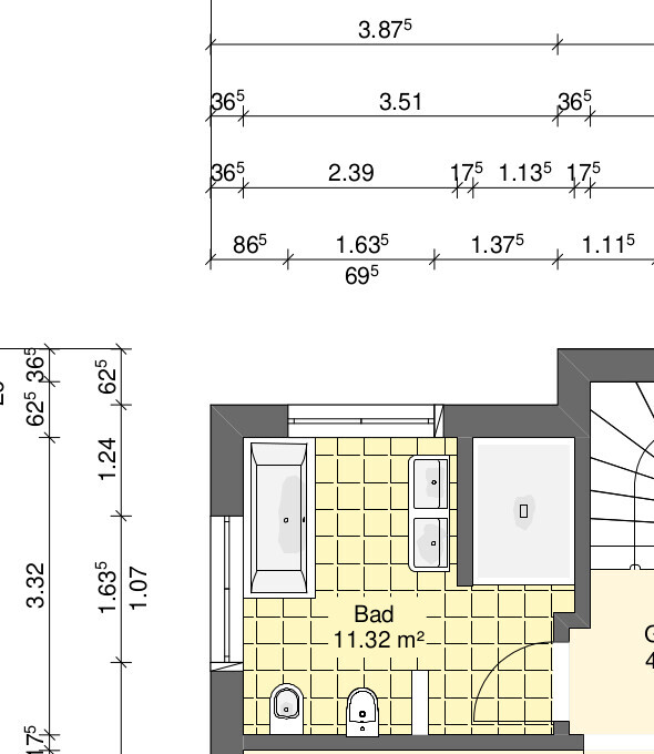
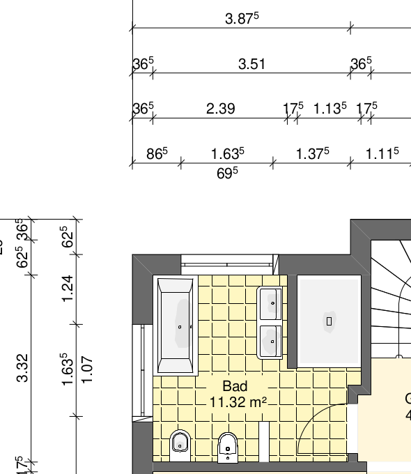
wir sind eine 3 köpfige Familie im Landkreis Regensburg und derzeit sind wir in der Plangsphase unseres Hauses.
Bei der Badplanung sind wir uns noch nicht sicher, ob es nicht noch Optimierungen gibt.

Über Anregungen/Verbesserungsvorschläge wären wir sehr dankbar 🙂
Norden ist oben 🙂
Danke 🙂
wir sind eine 3 köpfige Familie im Landkreis Regensburg und derzeit sind wir in der Plangsphase unseres Hauses.
Bei der Badplanung sind wir uns noch nicht sicher, ob es nicht noch Optimierungen gibt.
Über Anregungen/Verbesserungsvorschläge wären wir sehr dankbar 🙂
Norden ist oben 🙂
Danke 🙂
Mir würde der Platz für einen Hängeschrank fehlen zum Lagern von Handtücher usw.
Vielleicht das waschbecken mit dem WC tauschen damit man nicht diese Stummelwand braucht. Und so trotzdem noch einen geschützten direkten Blick hat.
Zusätzlich die Öffnungsrichtung der Tür änderen und schön wäre Platz für einen Schrank.
Vielleicht das waschbecken mit dem WC tauschen damit man nicht diese Stummelwand braucht. Und so trotzdem noch einen geschützten direkten Blick hat.
Zusätzlich die Öffnungsrichtung der Tür änderen und schön wäre Platz für einen Schrank.
B
Bertram10011.02.22 12:10Ich mag so halbhohe Mäuschen und würde auf keinen Fall WC und Waschbecken tauschen. Ich habe gerade keinen Vorschlag, aber irgendwie habt ihr viel Lauffläche die man nicht anderweitig nutzen kann. Ich würde kein extra Bidet installieren sondern lieber Platz für einen kleine Schrank lassen.
Ich würde ebenfalls die Waschbeckenposition mit WC/Bidet tauschen und das Mäuerchen sparen.
Dabei geht es mir nicht um das Mäuerchen, sondern weil ich es immer ungeschickt finde zum Waschbecken erst kilometerweit laufen zu müssen. Das Waschbecken wird ja regelmäßig auch "zwischendurch" genutzt, dafür ist es aus meiner Sicht wesentlich praktischer das Becken in der Nähe der Tür zu haben.
Es wirkt beim eintreten auch offener/freundlicher, als direkt auf einen Wandstummel zu schauen.
Dann hätte man durch den Positionswechsel auch genug Platz für ordentliche Möbellösungen.
Edit: Wenn man die Tür auch leicht Richtung Dusche verschiebt, hätte man weiteren Platz dahinter um z.B. irgendwelche Handtuchhalter (oder bei Bedarf einen Handtuchheizkörper o.ä) zu haben...
Dabei geht es mir nicht um das Mäuerchen, sondern weil ich es immer ungeschickt finde zum Waschbecken erst kilometerweit laufen zu müssen. Das Waschbecken wird ja regelmäßig auch "zwischendurch" genutzt, dafür ist es aus meiner Sicht wesentlich praktischer das Becken in der Nähe der Tür zu haben.
Es wirkt beim eintreten auch offener/freundlicher, als direkt auf einen Wandstummel zu schauen.
Dann hätte man durch den Positionswechsel auch genug Platz für ordentliche Möbellösungen.
Edit: Wenn man die Tür auch leicht Richtung Dusche verschiebt, hätte man weiteren Platz dahinter um z.B. irgendwelche Handtuchhalter (oder bei Bedarf einen Handtuchheizkörper o.ä) zu haben...
Ich würde das Bidet weglassen, und stattdessen ein Dusch-WC kaufen. Haben wir auch, ist super 🙂 Das hat dann evtl. sogar noch mehr Funktionen, je nachdem welches man kauft.
Dann hättest du da etwas platz für zb. einen Hochschrank, oder eine Handtuchheizkörper. Beides schadet auf keinen Fall. Sonst finde ich den Plan eigentlich ganz schön, würde mir auch gefallen.
Dann hättest du da etwas platz für zb. einen Hochschrank, oder eine Handtuchheizkörper. Beides schadet auf keinen Fall. Sonst finde ich den Plan eigentlich ganz schön, würde mir auch gefallen.
Ähnliche Themen