Hrundrissplanung für ein Passiv-Einfamilienhaus Erdgeschoss

4,40 Stern(e) 5 Votes
Zuletzt aktualisiert 21.12.2025
Sie befinden sich auf der Seite 2 der Diskussion zum Thema: Hrundrissplanung für ein Passiv-Einfamilienhaus Erdgeschoss
>> Zum 1. Beitrag <<

kaho674

kaho674

Besser immer jpg einstellen. Nicht jeder kann pdf öffnen.

Detaillierter Haus-Grundriss mit Schlafzimmer, Bad, Büro, Gästezimmer und Balkon

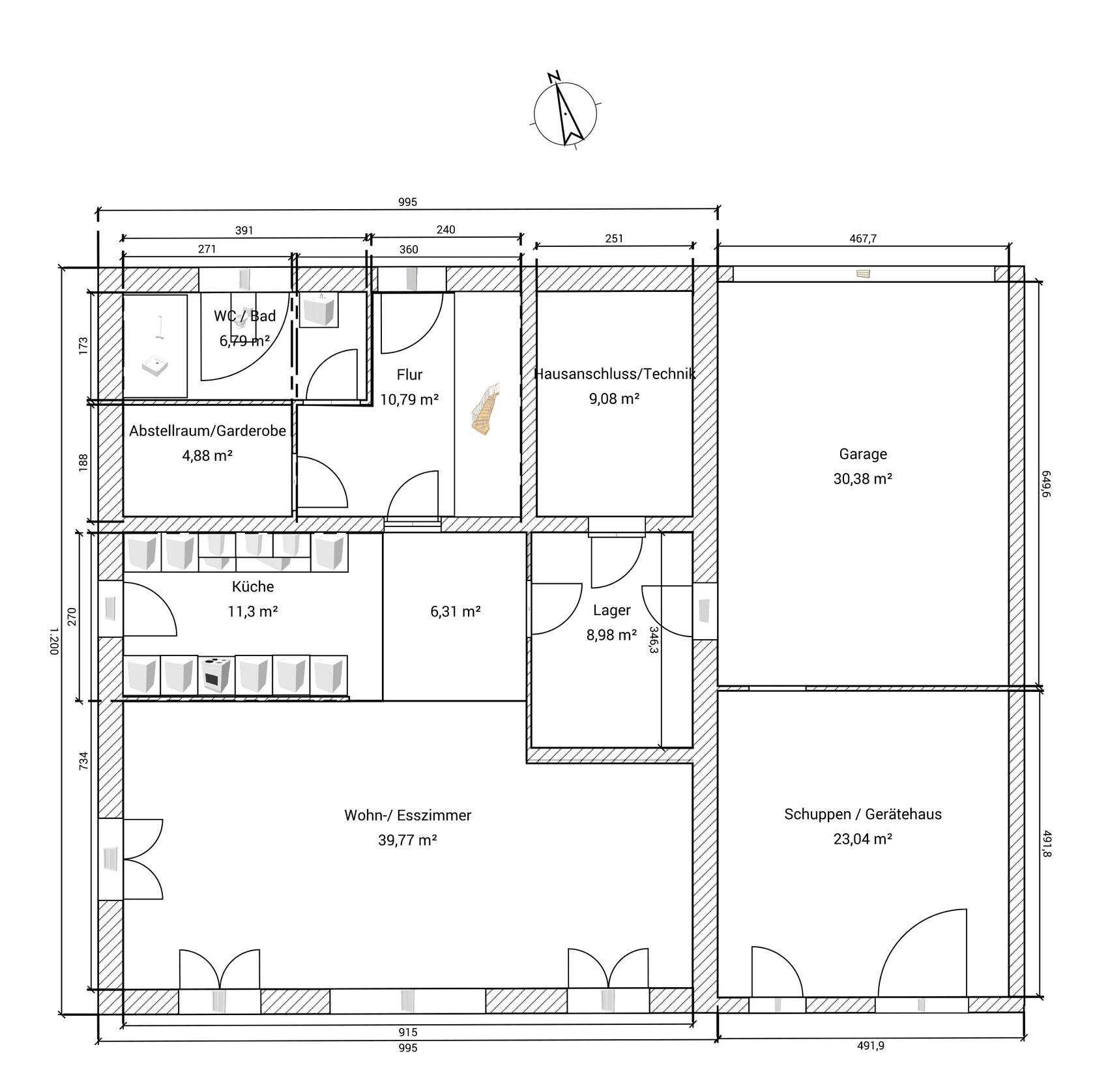
Grundrissplan eines Hauses mit Garage, Wohn- und Esszimmer, Küche, Flur, Bad und Abstellraum

Ob dieses Staffelgeschoss als einstöckig gilt, hab ich so meine zweifel. Da weiß ypg und 11ant sicher mehr.
Zum Grundriss: viel Fläche geht hier als Lager, Abstellraum, Technikraum und Schuppen drauf. Hast Du so viel Gerümpel?
Dagegen viel zu klein ist der Wäscheraum. Der Antritt der Treppe ist mir auch nicht ganz klar. Das Schlafzimmer ist unglücklich geschnitten. Man fällt beim Reinkommen über's Bett und kann keine Nachttische aufstellen. Die Wände sind teilweise so dünn - was sind das für Wandstärken?
Tür zum Kinderzimmer kann nach planlinks verschoben werden und Wand des Büros nach planunten, um den Flur zu verkleinern. Aber das lohnt nur, wenn das ganze überhaupt diskussionswürdig wird.
 
Zuletzt bearbeitet:
D

DoubleBig

Danke für das Feedback.

Das, was jetzt Lager ist, war ursprünglich als Hauswirtschaftsraum gedacht, diese Funktion ist aber durch das verschieben der Waschmaschinen ins OG entfallen, nun ist der Raum als Lagerraum z.B. für Vorräte, Tiefkühlschrank usw. vorgesehen, da es keinen Keller geben wird und als Durchgangsraum zur Garage. Der Technikrum wird die Hausanschlüsse, Warmwasserspeicher für Solar, Elektroverteilung, Kontrollierte-Wohnraumlüftung und Serverschrank aufnehmen, damit ist der so, wie ich das sehe bereits an der Kapazitätsgrenze.
Der Abstellraum zwischen Bad und Küche ist bisher nur ein Lückenfüller, leider fehlt mir hier noch eine bessere Lösung.
Der Wäscheraum ist nur für Waschmaschine, Trockner und evtl. ein Bügelbrett geplant, viel mehr muss der Raum nicht leisten.
Im Schlafzimmer könnte ich das West-Fenster weglassen, und könnte diese Wand dann für das Bett nutzen, dann ist mehr Platz zur Tür...
Mit dem Bereich zwischen Kinderzimmer und Büro hast du recht, ob ich die Wand dort verschieben kann weiß ich noch nicht, da ich hier eine tragende Wand geplant habe, die direkt über der Wand im EG Steht und das Dach (Beton Flachdach) tragen soll, das ist dann davon abhängig, ob das dann statisch passt, das sind bisher nur meine Überlegungen. Wenn ich die Wand verschieben kann, ohne damit auf statische Probleme zu stoßen, dann würde ich das machen.

Zu den Wandstärken, Tragende Wände habe ich vorerst mir 25cm Trockenbau mit 8cm geplant, das kann sich natürlich noch ändern, je nachdem welcher Baustoff am ende verwendet wird.
 
Zuletzt aktualisiert 21.12.2025
Im Forum Grundrissplanung / Grundstücksplanung gibt es 2552 Themen mit insgesamt 88537 Beiträgen


Ähnliche Themen zu Hrundrissplanung für ein Passiv-Einfamilienhaus Erdgeschoss
Nr.ErgebnisBeiträge
1Größe vom Schlafzimmer und Kinderzimmer - Seite 238
2Kinderzimmer und Schlafzimmer - Welche Größe ist zu empfehlen? - Seite 256
3Schallschutztür Schlafzimmer / Kinderzimmer 23
4Extra-Bad vom Schlafzimmer oder doch Abstellraum? 29
5Abluft im Schlafzimmer - Zuluft im Abstellraum - Seite 224
6Planung eines Kapitänsgiebelhauses auf Eckgrundstück 35
7Idee Schlafzimmer - Bett / Schrank Anordnung 32
8Einfamilienhaus mit 156 m² Grundfläche (2 Kinderzimmer + Homeoffice) 21
9was für Farben für das Schlafzimmer ? - Seite 344
10Grundriss Haus / Grundstück 28
11Gestaltung Schlafzimmer 35
12Grundrissplanung für schmales Grundstück, 2. Versuch. 14
13Grundrissplanung Einfamilienhaus (Stadtvilla) ca.140m² (3 Kinderzimmer) - Seite 742
14Keine Fußbodenheizung im Schlafzimmer? - Seite 322
15Einfamilienhaus ~190qm, drei Kinderzimmer, ohne Keller - Feedback wäre mega - Seite 219
16Neubau Einfamilienhaus 160-170qm, 3 Kinderzimmer 39
17Badewanne im Schlafzimmer - was haltet ihr davon? - Seite 435
18Optimierung 150m² Einfamilienhaus @ 470m² & 19m schmalem Grundstück - Seite 220
19Planung 130 qm Einfamilienhaus auf 500 qm Grundstück - Seite 324
20Einrichtung Ankleidezimmer Tür zum Badezimmer - Seite 334

Oben