Hallo,
wir sind gerade in der finalen Grundrissplanung für unser Haus und würden gerne eure Meinungen und Ideen dazu hören.
Bebauungsplan/Einschränkungen
Größe des Grundstücks: 650 m²
Hang: nein
Grundflächenzahl: 0,3
Geschossflächenzahl:
Baufenster, Baulinie und -grenze: siehe Plan
Randbebauung: Doppelcarport an Grundstücksgrenze
Anzahl Stellplatz: 2
Geschossigkeit: 2 zwingend
Dachform: Sattel- oder Krüppelwalmdach, Dachneigung zw. 30-50°
Stilrichtung: Friesenhaus
Ausrichtung: traufständig mit Friesengiebel
Maximale Höhen/Begrenzungen: keine
Anforderungen der Bauherren
Stilrichtung, Dachform, Gebäudetyp: 2 geschossiges Einfamilienhaus, Verblendsteine, Friesengiebel
Keller, Geschosse: kein Keller, 2 Geschosse
Anzahl der Personen, Alter: 2 Erw., 1 Kind, 1 Kind in Planung
Raumbedarf im EG, OG: jeweils ca. 70 m²
Büro: Familiennutzung oder Homeoffice? Zimmer "Gast" im EG als kombiniertes Arbeit- und Gästezimmer angedacht, kein Homeoffice
Schlafgäste pro Jahr: 5-10
offene oder geschlossene Architektur: eher geschlossen
konservativ oder moderne Bauweise: konservativ
offene Küche, Kochinsel: halboffen, keine Kochinsel
Anzahl Essplätze: 6-8
Kamin: ja
Musik/Stereowand: nein
Balkon, Dachterrasse: nein
Garage, Carport: Doppelcarport
Nutzgarten, Treibhaus: nein
Hausentwurf
Von wem stammt die Planung: Planer eines Bauunternehmens (Heinz von Heiden)
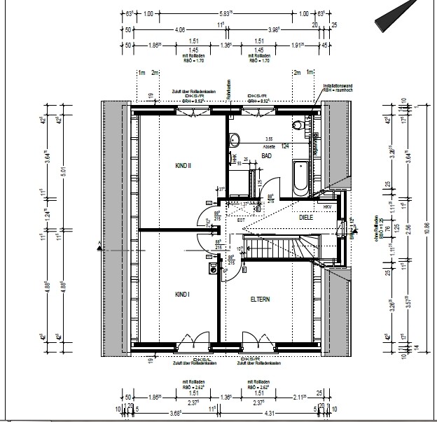
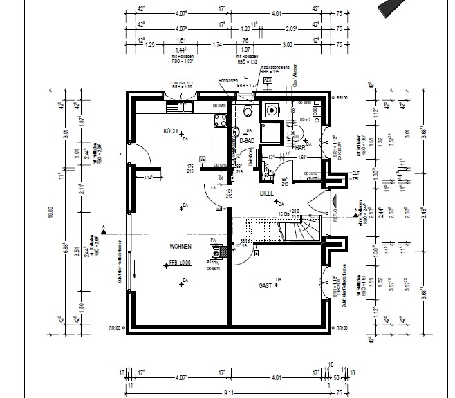
Was gefällt besonders? Warum?: kleiner überdachter Eingangsbereich, halboffener Wohn/Ess-Bereich mit Schiebetür, große Schiebetür im EG, bodentiefe Fenster im OG an Süd-Ost-Seite
Was gefällt nicht? Warum?: kleiner Hauswirtschaftsraum und zu großes Bad im OG, Treppe war ursprünglich um 180° gedreht angedacht
Preisschätzung lt Architekt/Planer: ca. 200 T€
Persönliches Preislimit fürs Haus, inkl Ausstattung: 250 T€
favorisierte Heiztechnik: Erdgas und Solarthermie
Wir freuen uns auf eure Kommentare. Falls noch Details fehlen, bitte einfach anmerken.
Eine grundsätzliche Frage habe ich noch: Die Projektplanerin der Hausbau-Firma hat mir mitgeteilt, dass das Ausstiegsfenster für den Schornsteinfeger nicht eingezeichnet wird, da dies nicht für den Bauantrag relevant ist. Stimmt das?
Grüße






wir sind gerade in der finalen Grundrissplanung für unser Haus und würden gerne eure Meinungen und Ideen dazu hören.
Bebauungsplan/Einschränkungen
Größe des Grundstücks: 650 m²
Hang: nein
Grundflächenzahl: 0,3
Geschossflächenzahl:
Baufenster, Baulinie und -grenze: siehe Plan
Randbebauung: Doppelcarport an Grundstücksgrenze
Anzahl Stellplatz: 2
Geschossigkeit: 2 zwingend
Dachform: Sattel- oder Krüppelwalmdach, Dachneigung zw. 30-50°
Stilrichtung: Friesenhaus
Ausrichtung: traufständig mit Friesengiebel
Maximale Höhen/Begrenzungen: keine
Anforderungen der Bauherren
Stilrichtung, Dachform, Gebäudetyp: 2 geschossiges Einfamilienhaus, Verblendsteine, Friesengiebel
Keller, Geschosse: kein Keller, 2 Geschosse
Anzahl der Personen, Alter: 2 Erw., 1 Kind, 1 Kind in Planung
Raumbedarf im EG, OG: jeweils ca. 70 m²
Büro: Familiennutzung oder Homeoffice? Zimmer "Gast" im EG als kombiniertes Arbeit- und Gästezimmer angedacht, kein Homeoffice
Schlafgäste pro Jahr: 5-10
offene oder geschlossene Architektur: eher geschlossen
konservativ oder moderne Bauweise: konservativ
offene Küche, Kochinsel: halboffen, keine Kochinsel
Anzahl Essplätze: 6-8
Kamin: ja
Musik/Stereowand: nein
Balkon, Dachterrasse: nein
Garage, Carport: Doppelcarport
Nutzgarten, Treibhaus: nein
Hausentwurf
Von wem stammt die Planung: Planer eines Bauunternehmens (Heinz von Heiden)
Was gefällt besonders? Warum?: kleiner überdachter Eingangsbereich, halboffener Wohn/Ess-Bereich mit Schiebetür, große Schiebetür im EG, bodentiefe Fenster im OG an Süd-Ost-Seite
Was gefällt nicht? Warum?: kleiner Hauswirtschaftsraum und zu großes Bad im OG, Treppe war ursprünglich um 180° gedreht angedacht
Preisschätzung lt Architekt/Planer: ca. 200 T€
Persönliches Preislimit fürs Haus, inkl Ausstattung: 250 T€
favorisierte Heiztechnik: Erdgas und Solarthermie
Wir freuen uns auf eure Kommentare. Falls noch Details fehlen, bitte einfach anmerken.
Eine grundsätzliche Frage habe ich noch: Die Projektplanerin der Hausbau-Firma hat mir mitgeteilt, dass das Ausstiegsfenster für den Schornsteinfeger nicht eingezeichnet wird, da dies nicht für den Bauantrag relevant ist. Stimmt das?
Grüße
H
HolzBaumHaus16.07.17 17:27Freedark schrieb:
kleiner Hauswirtschaftsraum und zu großes Bad im OGHol die Waschmaschine&Co in das erste Stockwerk und du hast im Hauswirtschaftsraum mehr Platz.ypg schrieb:
Ist das Friesenhaus denn hier ein 2-Geschosser?
Mir sieht es, auch trotz Giebel, nach 1 1/2-geschossig aus.
Gruß, YvonneP.s. Die Dusche im EG kann man besser planen.
Ansonsten ist es halt ein Standardgrundriss... warum ist SO kein Fenster? Gibt es ein Grundstück? Lage?
Und Friesenhaus ist vorgeschrieben laut Bebauungsplan? Das mag ich in Kombi 2-Geschosser nicht glauben.
Gruß, Yvonne
Zunächst möchte ich mich für die Rückmeldungen bedanken.
Also wie auch auf den Zeichnungen zu sehen ist, sind es keine 2 Vollgeschosse, sondern eben Erd- und Dachgeschoss.
Es wäre dann wohl ein 1 1/2-Geschosser. Habe nur gemerkt, dass die Bezeichnungen variieren, je nachdem wen man fragt.
@ypg
Welche Idee hättest du denn wegen der Dusche? Auf der SO-Seite sind keine Fenster, weil wir lieber Stellfläche für eine Couch im Wohnzimmer und ein größeren Regal im Arbeits-/Gästezimmer haben wollen.
Also wie auch auf den Zeichnungen zu sehen ist, sind es keine 2 Vollgeschosse, sondern eben Erd- und Dachgeschoss.
Es wäre dann wohl ein 1 1/2-Geschosser. Habe nur gemerkt, dass die Bezeichnungen variieren, je nachdem wen man fragt.
@ypg
Welche Idee hättest du denn wegen der Dusche? Auf der SO-Seite sind keine Fenster, weil wir lieber Stellfläche für eine Couch im Wohnzimmer und ein größeren Regal im Arbeits-/Gästezimmer haben wollen.
Du kannst aber keinen 1 1/2-Geschösser bauen, wo 2-Geschossig vorgeschrieben ist!
Dusche packt man nach außen, hier an die Außenwand, damit der Hauswirtschaftsraum möglichst effektiv zu nutzen ist.
In der Nische wird kaum eine Heizung eingebaut werden, da man da nicht mehr für nötige Wartungen überall rankommt.
Gruß, Yvonne
Dusche packt man nach außen, hier an die Außenwand, damit der Hauswirtschaftsraum möglichst effektiv zu nutzen ist.
In der Nische wird kaum eine Heizung eingebaut werden, da man da nicht mehr für nötige Wartungen überall rankommt.
Gruß, Yvonne
Ähnliche Themen