Hausentwurf Stadtvilla, 2 Vollgeschosse, Doppelgarage

4,90 Stern(e) 8 Votes
Zuletzt aktualisiert 20.11.2025
Sie befinden sich auf der Seite 5 der Diskussion zum Thema: Hausentwurf Stadtvilla, 2 Vollgeschosse, Doppelgarage
>> Zum 1. Beitrag <<

F

Familie_B

Da wir momentan leider in der Arbeit sowie privat sehr beschäftigt sind, versuche ich, sobald ich wieder etwas Luft habe, auf eure Fragen einzugehen und mir nochmals genaue Gedanken zu machen, wie ich es mir vorstelle und falls ich schon die ein oder andere Idee habe teile ich sie euch natürlich mit.
Wünsche euch noch einen schönen Abend
 
S

Spunk

Naja, so schlecht ist ja auch wieder nicht... aber ich habe mal meine gesammelten Bilder aus anderen Freds angehängt
So mal zum Vergleichen und Ideen bekommen. Die Freds zu den Bildern musste aber selbst heraussuchen, oder vielleicht erinnert sich jmd.

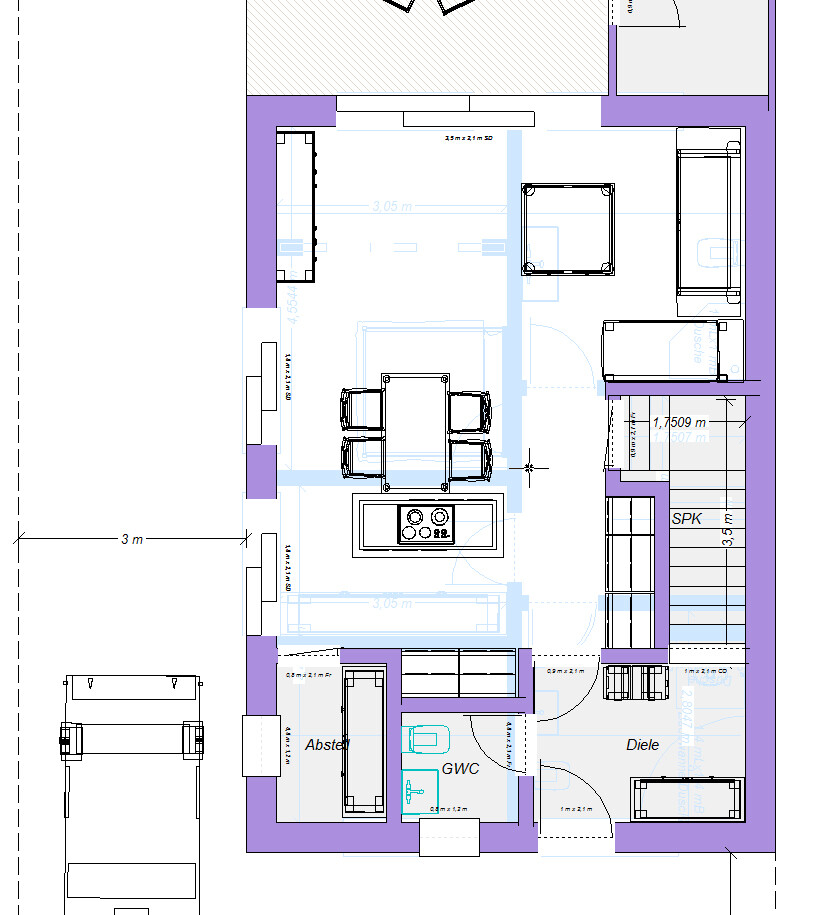
Grundriss eines Wohnbereichs: Küche mit Insel, Essplatz, Sofa, Diele und Treppenaufgang.


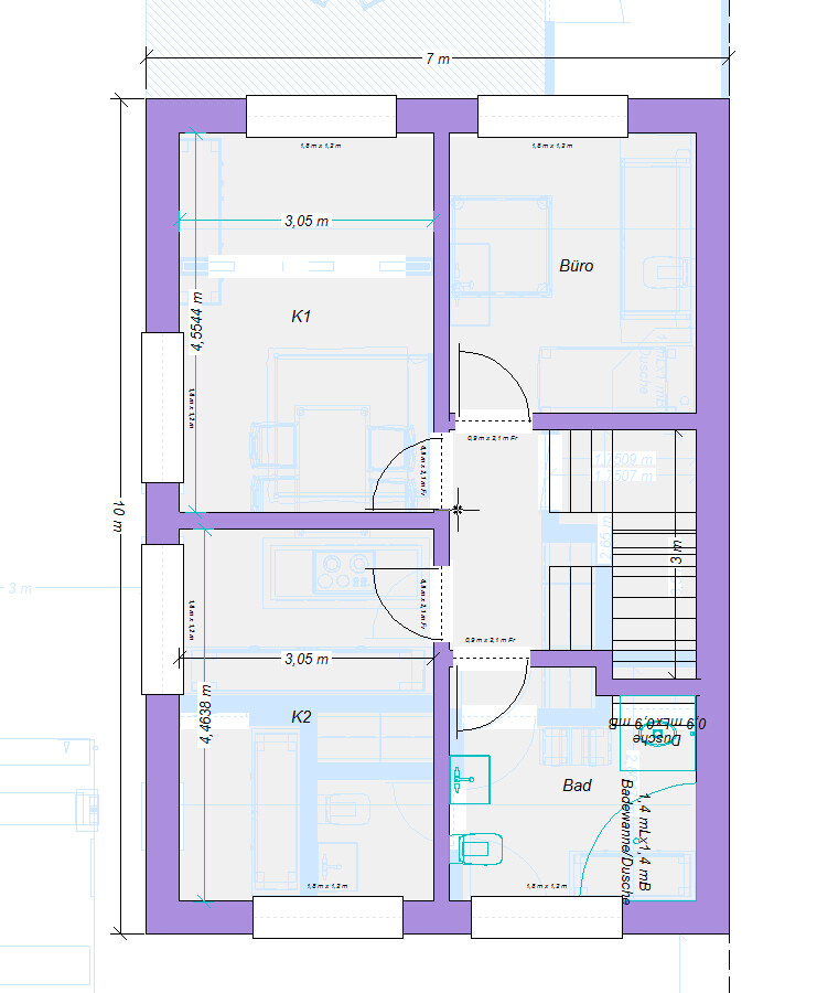
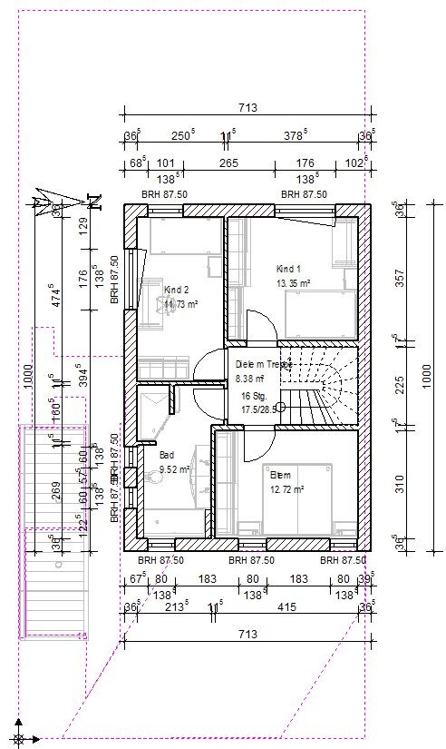
Grundriss: zwei Zimmer (K1, K2), Büro, Bad, Flur, Treppenhaus, Möbel.


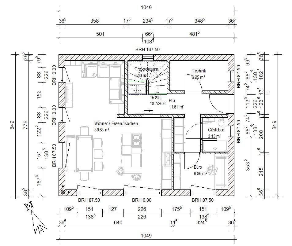
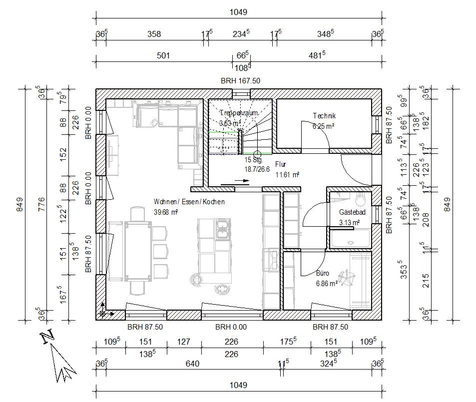
Grundriss eines Hauses: offener Wohn-/Ess-/Kochbereich, Büro, GästeWC, Flur, Treppe, Technikraum.


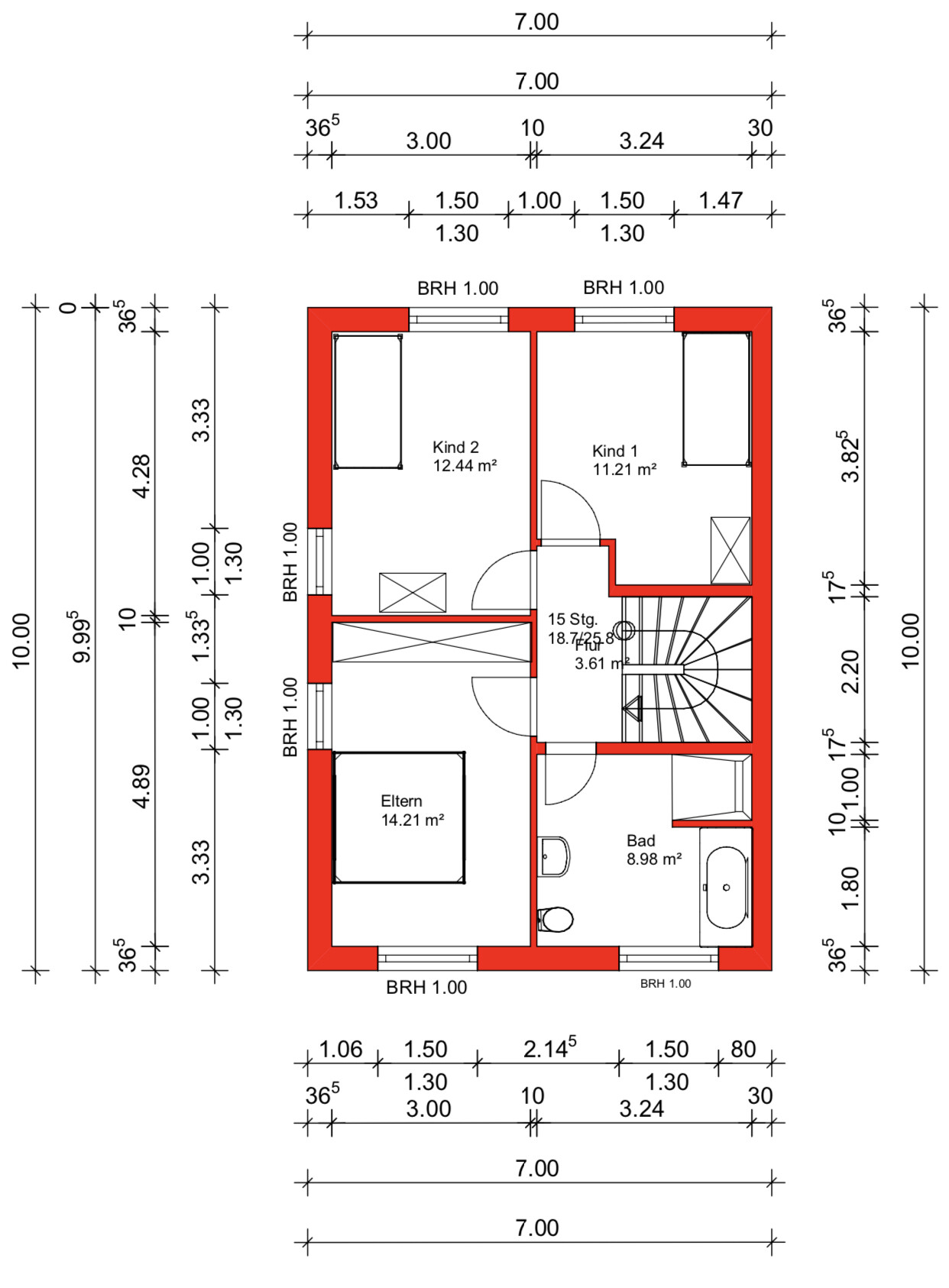
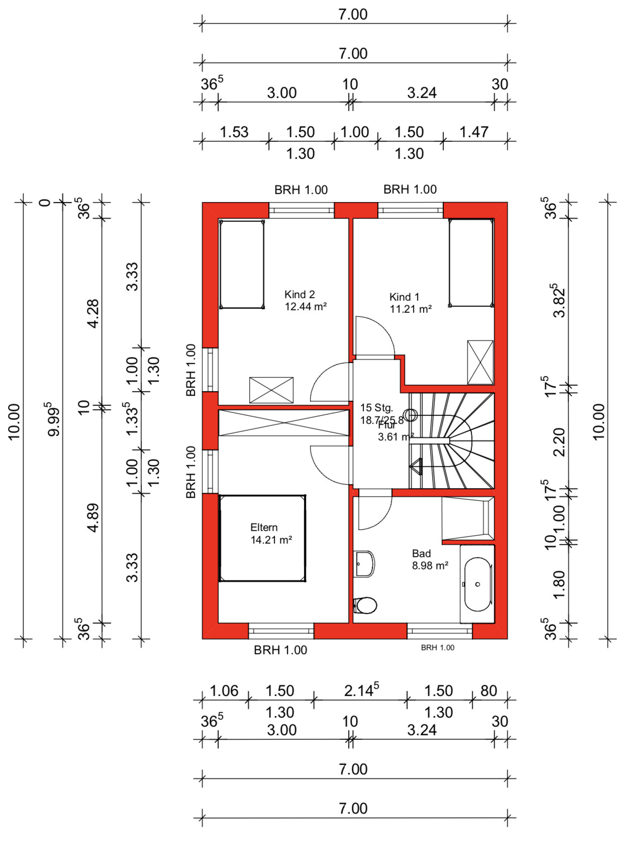
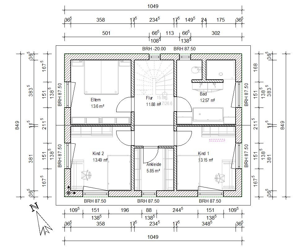
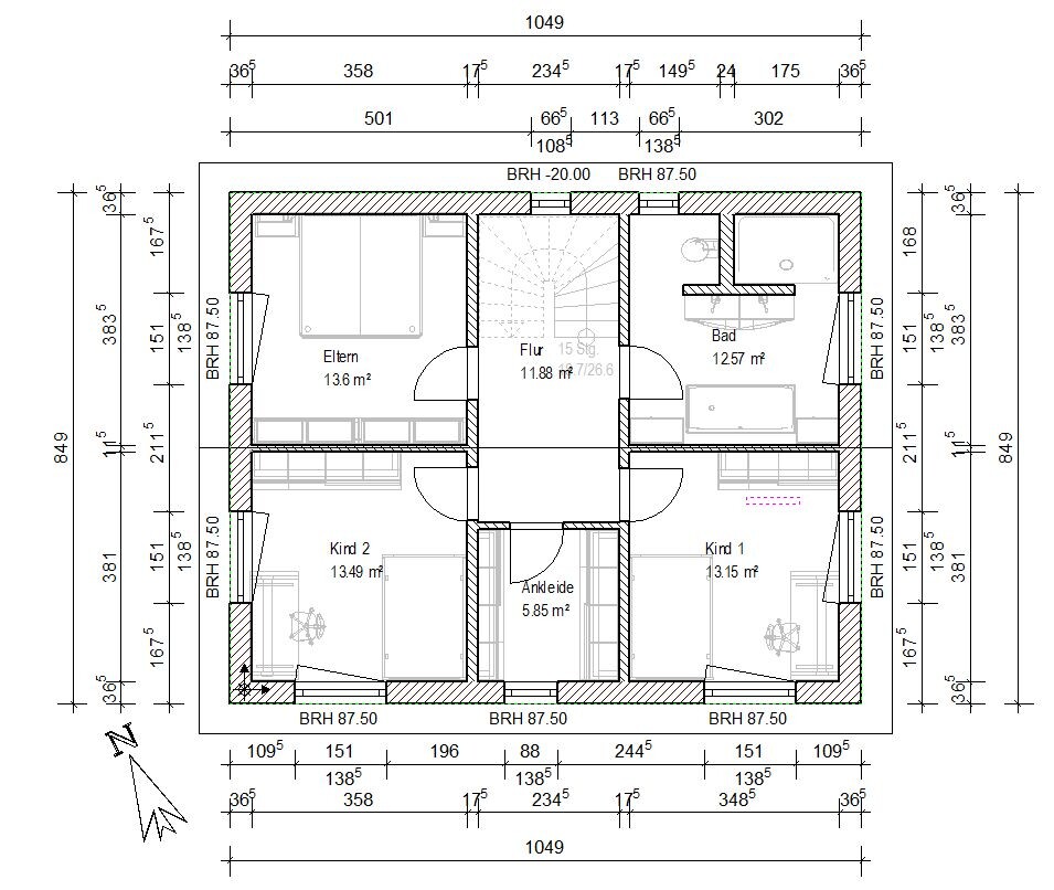
Grundriss eines Obergeschosses: Flur, Bad, Eltern, zwei Kinderzimmer, Ankleide, Nordpfeil.


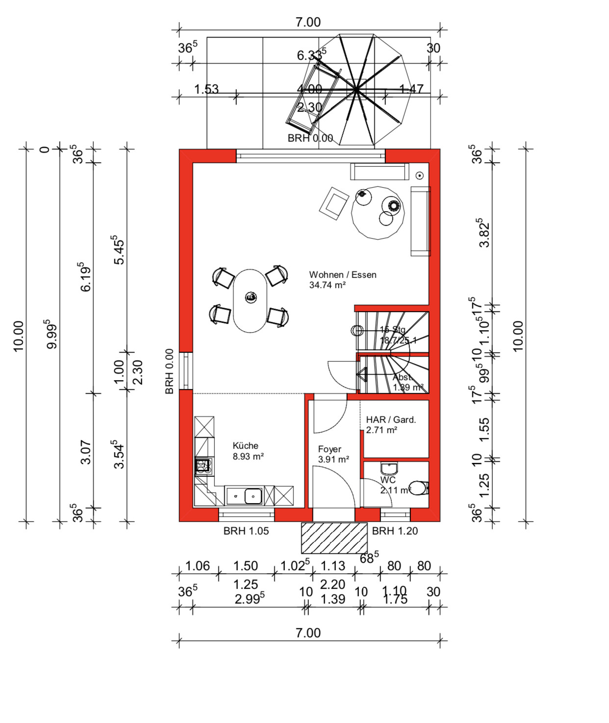
Grundriss eines Wohn- und Essbereichs mit Küche, Flur, WC, Treppenhaus; rote Außenwände.


Grundriss eines Hauses: Elternzimmer, zwei Kinderzimmer, Bad, Flur und Treppenhaus.


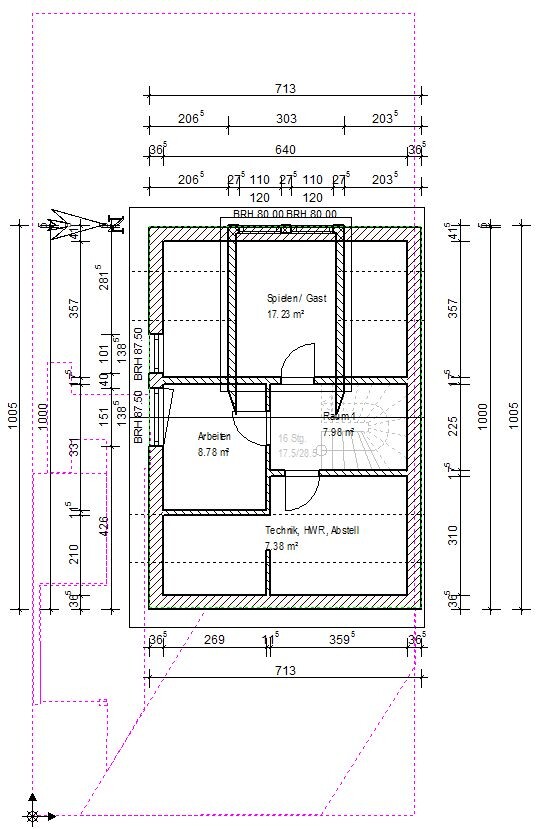
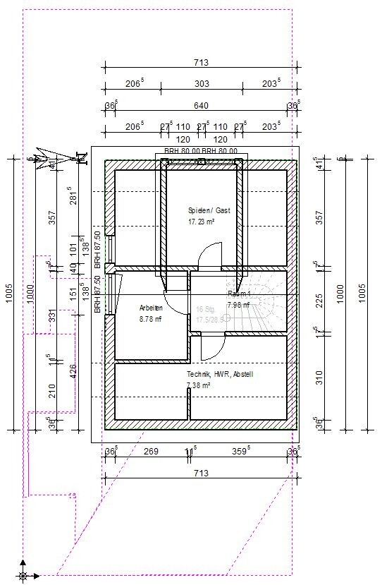
Grundriss eines Gebäudes mit Arbeitszimmer, Technik/HWR und Spiel-/Gastbereich.


Grundriss eines Hauses mit drei Zimmern (Eltern, Kind 1, Kind 2), Bad, Diele und Treppe.


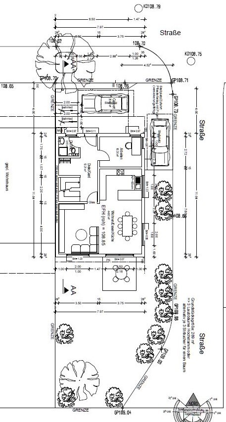
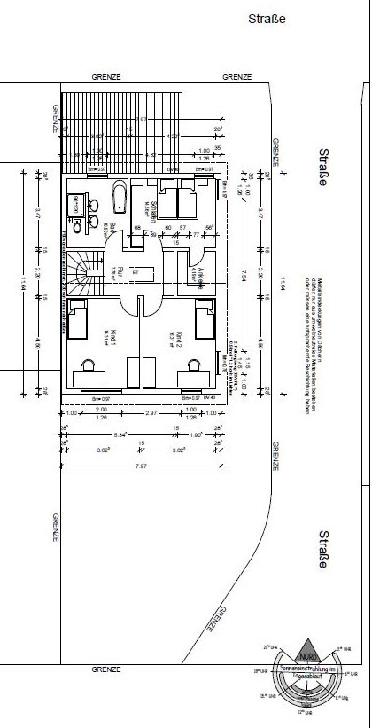
Grundriss eines Hauses mit Innenräumen, Hof, Einfahrt, Garten und Straßenzugang.


Grundriss eines Hauses mit Innenräumen, Treppe und Straßengrenze.
 
S

Spunk

Naja, der Entwurf vom TE is ja auch mehr alleinstehendes Doppelhaus
Das nimmt sich jetzt nicht viel. Ist jedes etwas anders, von 7 x 10 bis 8,5 x 11
 
11ant

11ant

Naja, der Entwurf vom TE is ja auch mehr alleinstehendes Doppelhaus
Das hast Du schön gesagt ...
Das nimmt sich jetzt nicht viel.
... aber einen wesentlichen Unterschied zwischen den ein/angebauten und dem freistehenden Reihenendhaus sehe dennoch - nämlich die vierte Fensterseite. Immerhin hast Du mich motiviert, noch mal nach dem Entwurf von @RobsonMKK zu graben:
https://www.hausbau-forum.de/threads/vorschlaege-zum-Grundriss.15130/page-13#post-173659 bzw.
 
Zuletzt aktualisiert 20.11.2025
Im Forum Grundrissplanung / Grundstücksplanung gibt es 2535 Themen mit insgesamt 87978 Beiträgen


Ähnliche Themen zu Hausentwurf Stadtvilla, 2 Vollgeschosse, Doppelgarage
Nr.ErgebnisBeiträge
1Grundriss erster Entwurf - Meinungen erwünscht 21
2Entwurf Grundriss Bungalow Meinungen 22
3Einfamilienhaus-Grundriss Entwurf 23
4Entwurf Grundriss: Planung Erdgeschoss - Seite 227
5Planung Grundriss / Erster Entwurf für erstes Feedback 32
6Unser Grundriss-Entwurf, eure Meinungen 20
7Entwurf des Planers für unser Einfamilienhaus 48
8Bauen mit GU - Angebot vom GU inkl. Entwurf 22
9Ideen zu Entwurf für Einfamilienhaus mit Keller - Seite 347
10Entwurf - alle Richtungen bei Neubau vom Einfamilienhaus 91
11Entwurf Einfamilienhaus mit Garage/Carport - bitte um Bewertung 22
12Entwurf Grundriss Bungalow - Eure Meinungen bitte! 14
13Grundriss-Entwurf Stadtvilla Feedback - Seite 213
14Planung unseres Einfamilienhaus - Was meint ihr zum Entwurf? - Seite 656
15Einfamilienhaus als Reihenmittelhaus an Hanglage - Entwurf - Seite 318
16Erster Entwurf Einfamilienhaus 150m² mit Keller 38
17Grundriss-Entwurf Stadtvilla mit Doppelgarage - Seite 238
18Haus-Entwurf Einfamilienhaus - Zukünftig als Zweifamilienhaus trennbar - Seite 572
191. Entwurf Grundriss Einfamilienhaus 150 qm 50
20Erster Entwurf des Grundrisses für 150m2 Haus 31

Oben