Menü
Foren
Neue Beiträge
Foren durchsuchen
Kredit
Werbung
Ratgeber
Über Uns
Tags / Keywords
Anmelden
Registrieren
Aktuelles
Suche
Suche
Überall
Themen
Dieses Forum
Dieses Thema
Nur Titel durchsuchen
Von:
Neue Beiträge
Foren durchsuchen
Menü
Anmelden
Registrieren
Foren
Hausbau Planung
Grundrissplanung / Grundstücksplanung
JavaScript ist deaktiviert. Für eine bessere Darstellung aktiviere bitte JavaScript in deinem Browser, bevor du fortfährst.
Hausentwurf Stadtvilla, 2 Vollgeschosse, Doppelgarage
4,90 Stern(e)
8 Votes
Erstellt am
1 März 2020
Zuletzt aktualisiert 05.10.2025
Sie befinden sich auf der Seite 6 der Diskussion zum Thema:
Hausentwurf Stadtvilla, 2 Vollgeschosse, Doppelgarage
>> Zum 1. Beitrag <<
Y
ypg
8 März 2020
Teilen
#31
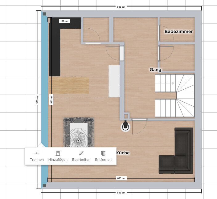
Ich seh das EG eher so:
Vorherige
1
2
3
4
5
6
Erste
Vorherige
6 von 6
Wechsle zu Seite
Weiter
Um antworten zu können musst du eingeloggt sein.
Teilen:
Facebookx
Twitter
Reddit
Pinterest
Tumblr
WhatsApp
E-Mail
Link
Zuletzt aktualisiert 05.10.2025
Im Forum
Grundrissplanung / Grundstücksplanung
gibt es
2510 Themen
mit insgesamt
87152 Beiträgen
Foren
Hausbau Planung
Grundrissplanung / Grundstücksplanung