Haus ohne Garage und Keller? Ausbau Dachboden? Fresswarze?

4,80 Stern(e) 4 Votes
Zuletzt aktualisiert 19.11.2025
Sie befinden sich auf der Seite 8 der Diskussion zum Thema: Haus ohne Garage und Keller? Ausbau Dachboden? Fresswarze?
>> Zum 1. Beitrag <<

B

Bamue89

Hm ich weis auch net so recht. irgendwie gefallen mir diese Stadtvilla - Block - Grundrisse überhaupt nicht. Was natürlich Geschmackssache ist. Aber es scheint doch so als ob sie letzten Endes doch alle gleich aufgebaut sind. Deshalb versuche doch einen bestehenden und funktionierenden Blockhaus- Grundriss als Grundlage zu nehmen und nicht selbst herum zu basteln. Es wurden einige Dinge angesprochen, die dir jeder vernünftige Architekt um die Ohren hauen würde. Aber dem GU ist es doch am Ende herzlich egal, was er da für dich hinzaubert. Hauptsache du bist zufrieden und er bekommt sein Geld. Hast dir mal ein paar Musterhäuser angeschaut ? Ich finde das bringt sehr viel Erkenntnis !

lg
 
G

Grym

Es soll keine Stadtvilla mehr werden, sondern ein eher breites Haus mit irgendwas zwischen 140 und 200 cm Kniestock und Satteldach. Optisch zB wie ein Kampa Oslo.


Musterhäuser schauen wir uns noch und noecher an, nicht nur den Musterhauspark Dresden, waren in Chemnitz und werden auch nach Leipzig und evtl. Berlin fahren in den nächsten Wochen.
 
Musketier

Musketier

Warum das OG nicht einfach etwas aufräumen? Nur damit die beiden Kinderzimmer identisch groß sind, schaffst du 3 tote Ecken, die weder den Kinderzimmern noch dem Flur gut tun.
Der Flur im EG geht übrigens gar nicht. Stell dir vor du kommst ins Haus und rechts wirst du von der Wand bedrängt und links von der Treppe.


Grundriss eines Wohnhauses: KiZi 1, KiZi 2, Bad, Flur; rote Linien markieren Wände.
 
G

Grym

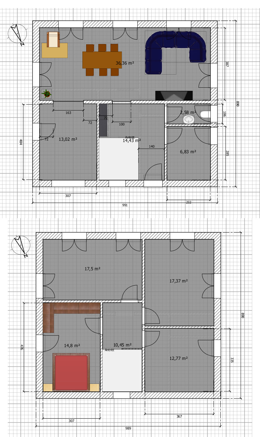
so, jetzt aber:


Zweistöckiger Grundriss: Obergeschoss mit Esstisch und U-Sofa, Bad; Untergeschoss mit Schlafzimmern.


Statt der Flurschränke könnte dort natürlich noch eine Tür hin, aber ist die wirklich, wirklich notwendig?

Die Fenster sind vielleicht sogar zu viele bzw. könnten einige davon auch festverglast werden. Der Terrassenzugang etwa sollte mittig im Wohnzimmer erfolgen, die anderen Fenster könnten halt trotzdem normale Fenster bleiben, falls wir doch mal den Möbelplan ändern.

Anstatt der Öffnung zum Wohnbereich ist dort eigentlich aber auch Platz für eine Tür.
 
G

Grym

Dann dürfte das hier also erst mal der finale Grobentwurf sein auf welchem basierend die GÜs ihre individuellen Anpassungen machen können. Küche habe ich doch offen gemacht, evtl. könnte das statisch durch einen Stahlträger gelöst werden.


Grundriss eines Hauses: Räume, Türen, Treppen, Möbel, Terrasse, Fenster.
 
Zuletzt aktualisiert 19.11.2025
Im Forum Garage / Carport gibt es 598 Themen mit insgesamt 6009 Beiträgen


Ähnliche Themen zu Haus ohne Garage und Keller? Ausbau Dachboden? Fresswarze?
Nr.ErgebnisBeiträge
1Schalter für Rollläden am Fenster oder an der Tür? 38
2Fenster Stadtvilla 1,26x1,45 optisch ein Fehler ? 10
3Nicht-bodentiefe Fenster im Wohnzimmer unmodern? Welche Vorhänge? - Seite 217
4Treppe im Flur, Grundriss steht eigentlich schon :o( - Seite 320
5Hauseingang mit Flur oder ohne 15
6Fenster / Türen / Garderobe 13
7Doppelflügeltür / Pendeltür zum Wohnzimmer 13
8Wohnzimmer: Wie Sofa, TV und Schränke stellen? - Seite 432
9Neubau einer ca. 8x11 Doppelhaushälfte, Einschätzung Grundriss und Fenster - Seite 635
10OG Stadtville optimieren. Fenster Bodentief 104
11Kleinstmögliches Fenster für Lüftung Hauswirtschaftsraum 22
12Haus von 1988 sanieren - Fenster und Haustüre? 15
13Grundrissfrage, Treppe, Fenster, Ausrichtung 12
14Grundrissplanung für Stadtvilla mit 168 qm - Wer hat Ideen? 47
15Bodentiefe Fenster - wie Sofa stellen? - Seite 212
16Grundriss Stadtvilla - Kinderzimmern mit Bodentiefen Fenstern - Seite 225
17Grundrissoptimierung Stadtvilla + Aufschüttüberlegung - Seite 521277
18Stadtvilla 170m² auf 567 m² Grundstück 77
19Hausentwurf Stadtvilla, 2 Vollgeschosse, Doppelgarage 30
20Stadtvilla ca 200qm mit Anbau 35

Oben