Haus ohne Garage und Keller? Ausbau Dachboden? Fresswarze?

4,80 Stern(e) 4 Votes
Zuletzt aktualisiert 18.11.2025
Sie befinden sich auf der Seite 13 der Diskussion zum Thema: Haus ohne Garage und Keller? Ausbau Dachboden? Fresswarze?
>> Zum 1. Beitrag <<

G

Grym

So...

Fensterplanung natürlich noch nicht abgeschlossen. 2 Vollgeschosse und als Dach kommt ein Walmdach mit 25 Grad Dachneigung darauf.

Wenn der begehbare Schrank weg fällt, könnte man stattdessen dort einen großen 3,xx-Meter Schrank hinbauen und das kleinere Kinderzimmer noch etwas größer machen. Aber trotz Eckform denke ich mal, dass 17qm nicht zu wenig sind.

Zwischen Bad und Kinderzimmer wäre noch Platz für eine Abstellkammer, evtl. Abstellkammer mit Waschmaschine und Trockner. Sinnvoll? Notwendig? Größe? Zuleitung zum Hauswirtschaftsraum wäre auch von dort in jedem Fall kurz.


Grundriss eines Büros: großer Aufenthaltsraum mit blauer Couch, Essbereich, Flur, Treppe, WC



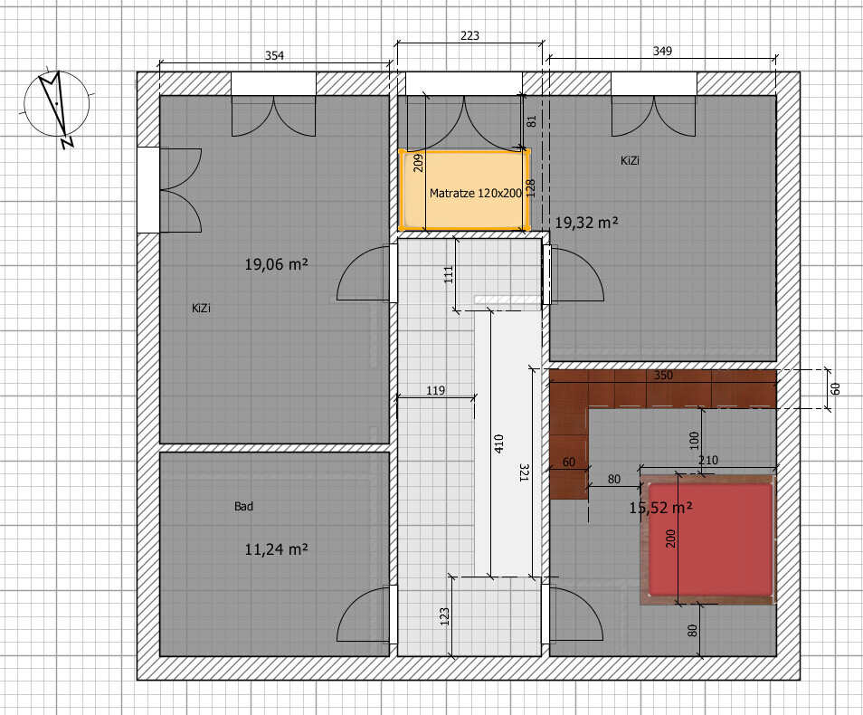
Grundriss eines Wohnungsplans: zwei KiZi, Bad, Flur, Schlafzimmer, Schiebetüren, Maße.
 
N

nordanney

Bei zwei so überdimensionierten Kinderzimmern würde ich lieber ein Kinderbad einplanen. Zugang zum Elternbad nur über das Schlafzimmer. Also wieder umplanen.

... oder einfach mal zum Architekten und es ordentlich machen... (schon mal gezählt, der wievielte Entwurf es von Dir ist?)
 
kbt09

kbt09

Hmm .. die Küche wird immer kleiner, seltsame Maße von 85 cm in der Küchenecke oben rechts. Und dann ein Sitztresen von 40 cm Tiefe? Wo ist Spüle, Kochfeld? Da bleibt ja kaum noch Arbeitsfläche. Weg aus Küche Richtung Terrassenzugang ist ein Slalom.

Schlafzimmer im OG .. 53 cm tiefer Schrank, die 80 cm Durchgang zum Bett werden dann aber bei einem Raum mit Rohbaumaß von 332 cm Breite nicht klappen. Denn ein Bett mit 200 cm langer Matratze sollte man schon mit 210 cm einplanen.
Und der Schrankbereich mit 113 cm Tiefe .. da sollte man dann eher die Wand weglassen. Das wird doch nichts.

Die Treppe hat eine Lauflänge von ca. 370 cm .. zu hoch sollte die Geschosshöhe dann aber nicht werden. Auftrittstiefe von ca. 26,75 cm ergibt Max. 14 Stufen.

Das Kinderzimmer mit der Ecke .. so eine Nische ist ja eigentlich prädestiniert für eine zurückgezogene Bettdecke, allerdings so richtig paßt das typische 140er Jugendbett eben auch nicht dorthin.
 
G

Grym

Frau sagt: Ich putze keine 3 Bäder. Und ich sehe auch keinen Sinn in einem zusätzlichen Bad. Die Kinderzimmer dagegen finde ich gerade angemessen, hatte eher Sorge, dass das kleinere zu klein ist. Natürlich verbringen Kleinkinder wenig Zeit in den Zimmern, aber mit der Zeit benötigt man den Platz neben Bett und diversen Schränken auch für wirklich großen Schreibtisch (Neben den schriftlichen Hausaufgaben ist ja auch ein PC aus einem Kinderzimmer ab einem gewissen Alter nicht mehr weg zu denken - also Schreibtisch sicher mindestens 200cm damit beides Platz findet plus Leselampe, ein paar Unterlagen), irgendwann sicher auch eigener Fernseher, eigene Couch und Platz für eventuelle Hobbys (Geige, Boxsack, Bücherregal, Staffelei, usw.). Meine Schwester hatte sowas wie einen kleinen runden Esstisch in ihrem Zimmer gehabt, da konnte sich Kaffeeklatsch mit Freundinnen in ihrem Zimmer machen. Was die Kinder halt wollen...

ach ja und wirklich haufenweise Pflanzen hatte meine Schwester auch. In einem 25qm-Kinderzimmer kann man sich halt entfalten. Ich hatte noch ein wenig mehr und würde nicht sagen, dass da großartig Platz verschwendet war. Ich konnte halt auch mal ein Dutzende Freunde einladen und nicht nur zu zweit oder dritt im Zimmer sein. Was dagegen fast nie passiert ist, dass ich vor einem verschlossenen Bad stand. Und in diesem Ausnahmefall gab es ja das Gäste-WC für dringende Probleme.

Daher: Die Kinderzimmer sind keinesfalls zu groß, wir machen uns eher Sorgen ob zu klein für ein Kind ab 11/12 Jahren, aber ich denke 17 und 19 qm passen schon noch. Ein drittes Sanitärzimmer möchten wir nicht. Es sind jetzt wirklich die Zimmer dort eingeplant, wo diese geplant sind, d.h. eben auch das Büro/Fitness-Ding im EG. Und oben sollen 2 Kinderzimmer, 1 Schlafzimmer, 1 Bad hin und sonst nichts. Das Schlafzimmer so groß wie nötig, das Bad nicht zu klein und der Rest möglichst fair an 2 Kinderzimmer verteilt. Optional wie gesagt, daher die Frage, ein Abstellraum oder Abstell-/Waschraum.
 
G

Grym

Hmm .. die Küche wird immer kleiner, seltsame Maße von 85 cm in der Küchenecke oben rechts.
Die Küche soll so groß wie nötig und so klein wie möglich werden. Wie gesagt, ein funktionaler Raum zur Zubereitung von Speisen und kein Aufenthaltsraum. Die 85cm ergeben sich aus den heilig geforderten 320cm für den Essbereich. Ich habe mir selbst noch nicht 100 Prozent überlegt, was dort hin soll, aber mir fällt auf, dass Side-by-Side Kühlschränke etwa 89-91cm groß sind. Dann werden wir die Stelle wohl auf ziemlich exakt dieses Maß plus ein 5-10cm Spielraum ergänzen und dann kommt dort der Kühlschrank hin.Und wahrscheinlich einfach ein offener Durchgang statt Tür, Wohnzimmer ist ja auch offen zum Flur, da brauche ich dort nicht zu machen.

Der Tisch ist übrigens exemplarisch dargestellt falls mal Besuch da ist. Wir werden dort natürlich nicht permanent 8 Stühle herumstehen lassen.

Und dann ein Sitztresen von 40 cm Tiefe?
Das ist das Standard-Maß in meinem Programm. Sicherlich kann man da mehr machen. Die exakte Küchenplanung macht ja sowieso das Küchenstudio.

Wo ist Spüle, Kochfeld? Da bleibt ja kaum noch Arbeitsfläche.
Arbeitsfläche ist zunächst einmal die Theke. Frag mich jetzt auch nicht warum, aber meine Frau hat als herausragendes Merkmal einer Theke dargestellt, dass man dort im Sitzen arbeiten kann und meinetwegen Salat schälen und zubereiten. Ich glaube kaum, dass sich jemals jemand von uns dort dran setzen wird und Kaffee trinken wird. Es ist auch eher optisches Raumtrenner-Gimmick und eben Arbeitsfläche. Der Bar-Hocker wandert dann dafür natürlich auch mal auf die andere Seite. Je nach Bedarf.

Die genau Küchenplanung haben wir wie gesagt noch nicht, aber eine U-Form mit 320x180 ohne Kühlschrank und ohne Fenster in diesem Bereich sollte doch einiges hergeben.

Weg aus Küche Richtung Terrassenzugang ist ein Slalom.
Wäre jetzt auch kein Problem, aber wie gesagt, der Tisch ist für Familiengroßbesuch dargestellt. Normalerweise eher 4 Stühle und wenn Freunde da sind, dann sitzen wir immer auf der Couch (haben auch jetzt schon eine ähnlich große Couch wie eingezeichnet, blöderweise genau verkehrt herum).

Schlafzimmer im OG .. 53 cm tiefer Schrank, die 80 cm Durchgang zum Bett werden dann aber bei einem Raum mit Rohbaumaß von 332 cm Breite nicht klappen. Denn ein Bett mit 200 cm langer Matratze sollte man schon mit 210 cm einplanen.
Gut, da kommen noch 16-18cm dazu.

Und der Schrankbereich mit 113 cm Tiefe .. da sollte man dann eher die Wand weglassen. Das wird doch nichts.
Werde ich mal prüfen. Ja, wahrscheinlich.

Die Treppe hat eine Lauflänge von ca. 370 cm .. zu hoch sollte die Geschosshöhe dann aber nicht werden. Auftrittstiefe von ca. 26,75 cm ergibt Max. 14 Stufen.
Ich habe im Internet gelesen Auftrittstiefe 23 cm ok, 26 cm gut und das was ich genommen habe, war 26cm und so viele Stufen wie von der Treppenbauer-Webseite vorgeschlagen. Die Treppe hat natürlich oben wie unten noch Potential auf Verlängerung und wird in jedem Fall eher bequem gewählt. Also wird die vielleicht auch 380, 390, ... Detailplanung durch GÜ.

Das Kinderzimmer mit der Ecke .. so eine Nische ist ja eigentlich prädestiniert für eine zurückgezogene Bettdecke, allerdings so richtig paßt das typische 140er Jugendbett eben auch nicht dorthin.
Schreibtisch könnte dort auch hin mit Blick Richtung Fenster und nach draußen. Das Fenster muss ja nur 1x jährlich zum reinigen geöffnet werden. Wir werden irgend eine Art der Lüftung verbauen, ob zentral oder dezentral, und daher möchte ich mindestens ein öffenbares Fenster pro Zimmer, aber mehr muss es nicht sein. Oder es wird Hobby-Bereich wie eben eine Staffelei oder Lese-Ecke mit Blick in den Garten oder Stuhl und Geige oder was auch immer das Hobby wird...
 
G

Grym

Hier noch mal neue Zeichnungen mit den Änderungen...


Grundriss eines Bürogebäudes mit Treppe, WC, Terrasse und Sitzbereich


Grundriss einer Wohnung: zwei Kinderzimmer, Bad, Flur, markierte Matratze 120x200.


Das Bett ist jetzt nur ein Beispiel. Könnte auch ein Schreibtisch mit Blick Richtung Garten sein (Fenster dann nicht zum öffnen, aber gibt ja noch mind. ein anderes Fenster). Oder eben, je nach Hobby, eine Lese-Ecke, ein Sitzplatz mit Geige, ein Boxsack, eine Staffelei usw...
 
Zuletzt aktualisiert 18.11.2025
Im Forum Garage / Carport gibt es 598 Themen mit insgesamt 6009 Beiträgen


Ähnliche Themen zu Haus ohne Garage und Keller? Ausbau Dachboden? Fresswarze?
Nr.ErgebnisBeiträge
1Kinderzimmer und Schlafzimmer - Welche Größe ist zu empfehlen? - Seite 356
2Größe vom Schlafzimmer und Kinderzimmer - Seite 338
3Umbau Kinderzimmer - Fenster in zwei Fenster aufteilen? 20
4Ein erster Grundriss unseres Architekten...Eure Meinung bitte - Seite 327
5Schallschutztür Schlafzimmer / Kinderzimmer 23
6Idee Schlafzimmer - Bett / Schrank Anordnung 32
7Fenster Brüstungshöhe 130 im Schlafzimmer / Arbeitszimmer? - Seite 493
8 Küchenplanung mit tiefen Fenster - Seite 643
9Grundriss Einfamilienhaus geplant, Fenster gefallen uns - Seite 343
10Einrichtung Kinderzimmer - Wie sollen wir die gestalten? 15
11Grundrissplanung Einfamilienhaus (Stadtvilla) ca.140m² (3 Kinderzimmer) - Seite 242
12Keine Fußbodenheizung im Schlafzimmer? - Seite 322
13Kinderzimmer planen / Bettgrößen - Seite 236
14OG Stadtville optimieren. Fenster Bodentief - Seite 13104
15Frontansicht Fenster sind suboptimal und müssen optimiert werden - Seite 990
16Kinderzimmer Richtung Norden - eure Meinung? - Seite 213
17Gestaltung Schlafzimmer 35
18Extra-Bad vom Schlafzimmer oder doch Abstellraum? - Seite 329
19Grundriss Stadtvilla / Anordnung Fenster, Feedback erwünscht - Seite 216
20Grundriss Neubau Einfamilienhaus: Fenster/Türen/Innenwände Größe/Anordnung ok? - Seite 220

Oben