ᐅ Haus-Entwurf Einfamilienhaus - Zukünftig als Zweifamilienhaus trennbar
Erstellt am: 28.11.16 13:36
P
Paulus16Paulus16 schrieb:
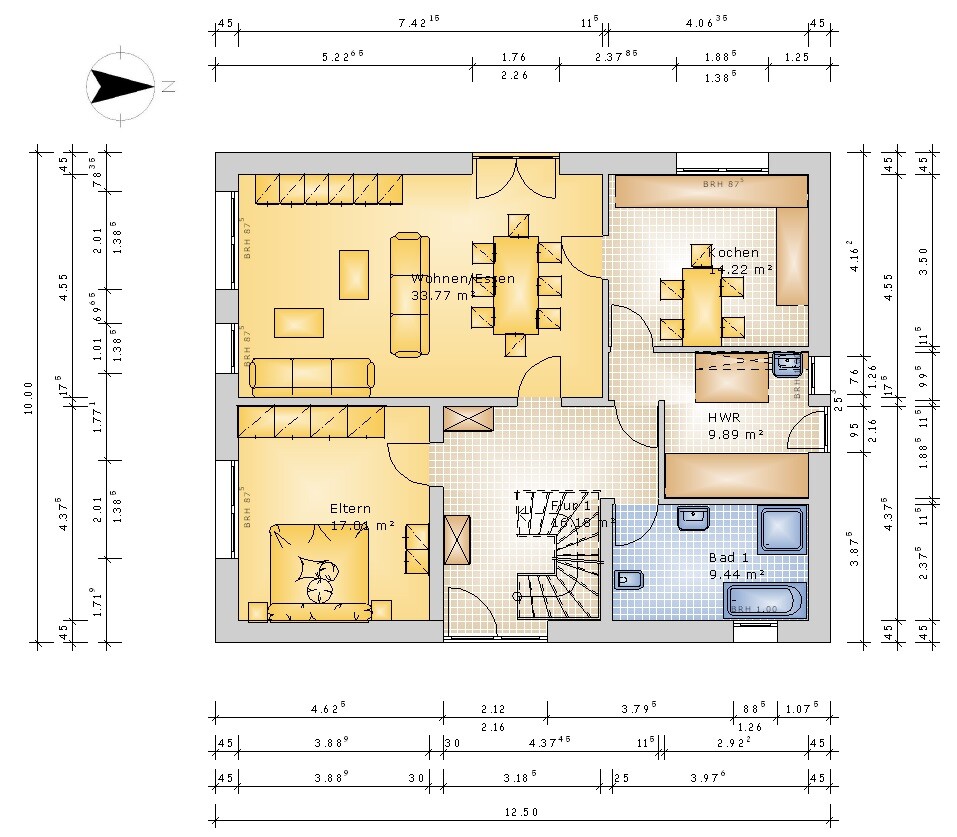
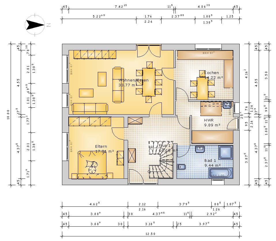
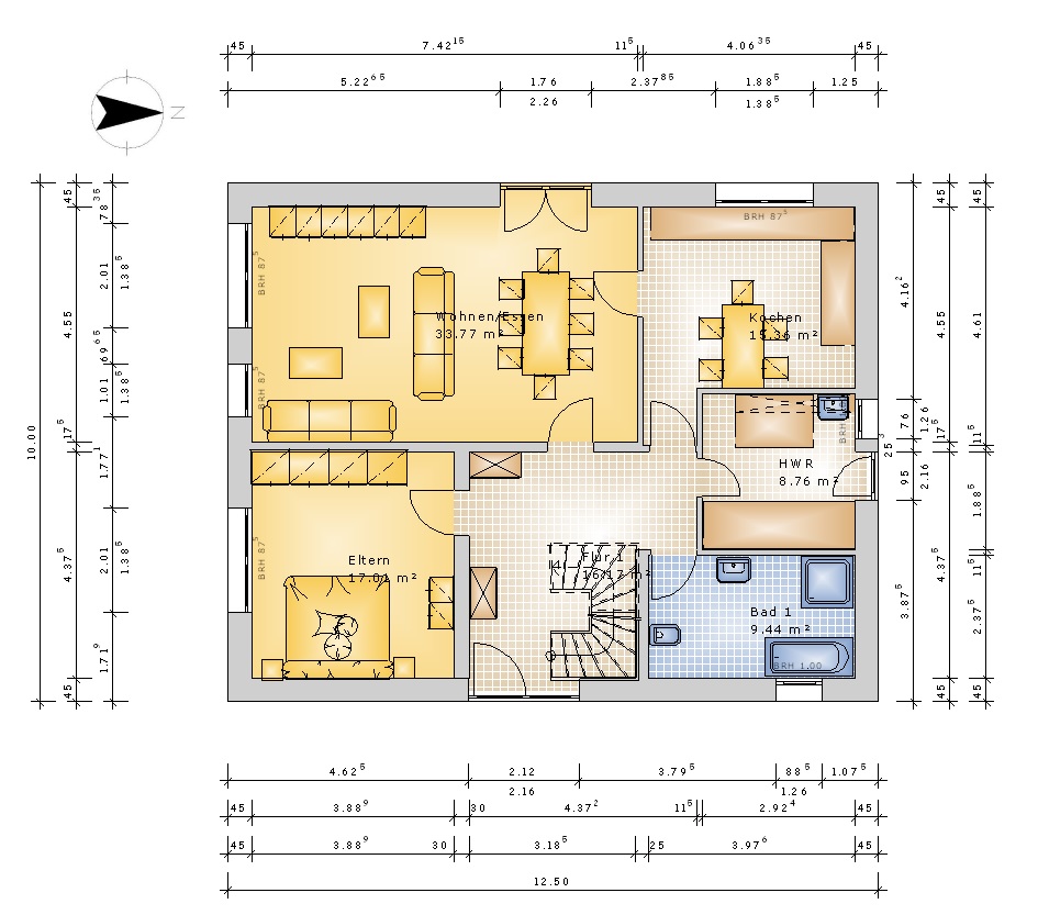
-Die Türenkonstellation Diele-Hauswirtschaftsraum-Küche finde ich auch etwas merkwürdig. Nur möchte ich den Hauswirtschaftsraum nicht enger machen, weil ich dann eine Tür in der breiten Wand des Hauswirtschaftsraum (gegenüber der Hausnebentür) öffnen muss. Was meinst du?Würde ich auf jeden Fall überdenken.
Zum einen die Außentür weglassen bringt einiges an weitere Stellfläche im Hauswirtschaftsraum, zum anderen: wer möchte denn auf dem Weg in die Küche in den Hauswirtschaftsraum schauen. Da vergeht einem doch die Lust, wenn man immer an unaufgeräumte Technik vorbeiläuft?? Macht es Euch schön und eine Tür vor dem Hauswirtschaftsraum.
Machbar? Ich denke schon, allerdings wurde ja vieles erwähnt, was bedacht werden sollte.
Aber die Euphorie kann man bei mir mit diesem Haus nicht wecken. Ich möchte nicht das ganze Leben in einem Kompromiss hausen oder mit einem so schwerwiegendem Kompromiss leben, wenn die Ursache des Kompromisses eh als sehr unwahrscheinlich gilt. Dafür wäre mir mein Geld zu schade und mir das Wohnen an sich zu wichtig!
Danke Yvonne. Die Idee mit der Nebentür haben wir aus dem Haus, das wir jetzt bewohnen. Wir finden die Idee sehr praktisch, und es geht um eine Nebentür, nicht um den Haupteingang.
Was ich mit Kompromiss meine bezieht sich auf die Zeit nach einer evtl. möglichen Trennung. Was ist deiner Meinung nach negativ im aktuellen Grundriss, wenn es nachher nicht getrennt wird? Es würde mich freuen, Ideen oder Vorschläge deinerseits zu lesen.
Was ich mit Kompromiss meine bezieht sich auf die Zeit nach einer evtl. möglichen Trennung. Was ist deiner Meinung nach negativ im aktuellen Grundriss, wenn es nachher nicht getrennt wird? Es würde mich freuen, Ideen oder Vorschläge deinerseits zu lesen.
Es ist eine Idee mit der Aussennebentür, aber es gibt so viele Ideen... die meisten braucht man nicht, einige will man gern, andere fallen wegen dem Budget oder dem Platzangebot weg.
Wenn man Stellfläche an den Wänden braucht, fallen erst mal Außentüren weg. Und zwar dort, wo die Stellfläche gebraucht wird, bei Euch im Hauswirtschaftsraum. Die Wäsche kann man auch zur Not woanders raustragen, zumindest würde ich nie die Küche so defensiv durch den HWE nach hinten betreten wollen. Dann fällt eher diese Nebentür raus - wie Du sagst: es ist nur eine Nebentür.
Im Wohn- und Küchenbereich sind mir wiederum die Außenzugänge zu wenig.
Der große Kompromiss ist hier zu sehen: fehlende Großzügigkeit im EG, da schon in getrennte Wohnungen gedacht wird. Man hat unten den Wohncharakter einer Wohnung, aber nicht von einem Haus.
Die Treppe ist im Bereich des Schmutzfanges angeordnet, bedeutet: man tritt ständig auf Strümpfen oder barfuß durch die Schmutzansammlung, die durch Betreten des Hauses von außen nicht aus bleibt.
Kompromiss durch diese Wohnungsanordnung ist auch der Weg von Schlafzimmer zum Bad am Eingang vorbei. Da fällt Intimität völlig raus.
Ich bin auch kein Freund davon, das sofa mittig zu stellen, wenn der Raum nicht die entsprechende Größe aufweist. Man schaut immer nur auf eine zu nahe Wand... hinter dem Sofa keine Wand zu haben, empfindet man auch eher als unbehaglich... (fehlender Höhleneffekt)
Aber um hier noch mehr in Details zu gehen, fehlen grundsätzliche Informationen von Grundstück etc.
Aber wenn es genau das ist, was ihr wollt, also den Fokus auf Funktionalität, dann passt es.
Bei drei Kindern hat man sicherlich andere Prioritäten als Großzügigkeit
Grüsse
Wenn man Stellfläche an den Wänden braucht, fallen erst mal Außentüren weg. Und zwar dort, wo die Stellfläche gebraucht wird, bei Euch im Hauswirtschaftsraum. Die Wäsche kann man auch zur Not woanders raustragen, zumindest würde ich nie die Küche so defensiv durch den HWE nach hinten betreten wollen. Dann fällt eher diese Nebentür raus - wie Du sagst: es ist nur eine Nebentür.
Im Wohn- und Küchenbereich sind mir wiederum die Außenzugänge zu wenig.
Der große Kompromiss ist hier zu sehen: fehlende Großzügigkeit im EG, da schon in getrennte Wohnungen gedacht wird. Man hat unten den Wohncharakter einer Wohnung, aber nicht von einem Haus.
Die Treppe ist im Bereich des Schmutzfanges angeordnet, bedeutet: man tritt ständig auf Strümpfen oder barfuß durch die Schmutzansammlung, die durch Betreten des Hauses von außen nicht aus bleibt.
Kompromiss durch diese Wohnungsanordnung ist auch der Weg von Schlafzimmer zum Bad am Eingang vorbei. Da fällt Intimität völlig raus.
Ich bin auch kein Freund davon, das sofa mittig zu stellen, wenn der Raum nicht die entsprechende Größe aufweist. Man schaut immer nur auf eine zu nahe Wand... hinter dem Sofa keine Wand zu haben, empfindet man auch eher als unbehaglich... (fehlender Höhleneffekt)
Aber um hier noch mehr in Details zu gehen, fehlen grundsätzliche Informationen von Grundstück etc.
Aber wenn es genau das ist, was ihr wollt, also den Fokus auf Funktionalität, dann passt es.
Bei drei Kindern hat man sicherlich andere Prioritäten als Großzügigkeit
Grüsse
Das kannst du gar nicht mehr ändern, da die 10 Minuten Änderungszeit vorbei sind.
Du kannst nur in einem neuen Beitrag hier die richtigen Bilder hochladen. Macht auch mehr Sinn, dann sieht sie jeder noch, denn man klickert ja meist den Thread an und landet dann beim ersten ungelesenem Beitrag und nicht bei Beitrag 10.
Du kannst nur in einem neuen Beitrag hier die richtigen Bilder hochladen. Macht auch mehr Sinn, dann sieht sie jeder noch, denn man klickert ja meist den Thread an und landet dann beim ersten ungelesenem Beitrag und nicht bei Beitrag 10.
Danke Yvonne für deine Antwort. Jetzt ist deine Idee bei mir angekommen. Wir möchten einen praktischen, funktionellen und einfachen Grundriss haben. Dadurch wirkt er vielleicht zu konservativ.
Danke kbt09.
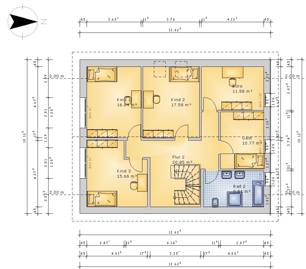
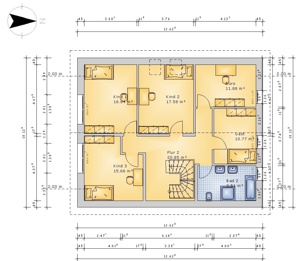
Die Bilder nochmals. Für Erdgeschoss werde ich 2 Bilder hochladen, das zweite Bild mit der Küche direkt aus dem Flur zu erreichen ist. Meine bessere Hälfte findet diese Variante besser, da man nicht durch den Hauswirtschaftsraum muss, um in die Küche rein zu gehen. Was meint ihr?



Danke kbt09.
Die Bilder nochmals. Für Erdgeschoss werde ich 2 Bilder hochladen, das zweite Bild mit der Küche direkt aus dem Flur zu erreichen ist. Meine bessere Hälfte findet diese Variante besser, da man nicht durch den Hauswirtschaftsraum muss, um in die Küche rein zu gehen. Was meint ihr?
Ähnliche Themen