Bebauungsplan/Einschränkungen
Größe des Grundstücks: 774 m²
Hang: 13%, wie im Übersichtsplan eingezeichnet
Grundflächenzahl: 0,4
Geschossflächenzahl: 0,5
Baufenster, Baulinie und -grenze: 11 x 15 m, wie im Übersichtsplan
Geschossigkeit: 2 Vollgeschosse
Dachform: Satteldach, 30° Neigung
Ausrichtung: Firstrichtung NO-SW
Anforderungen der Bauherren
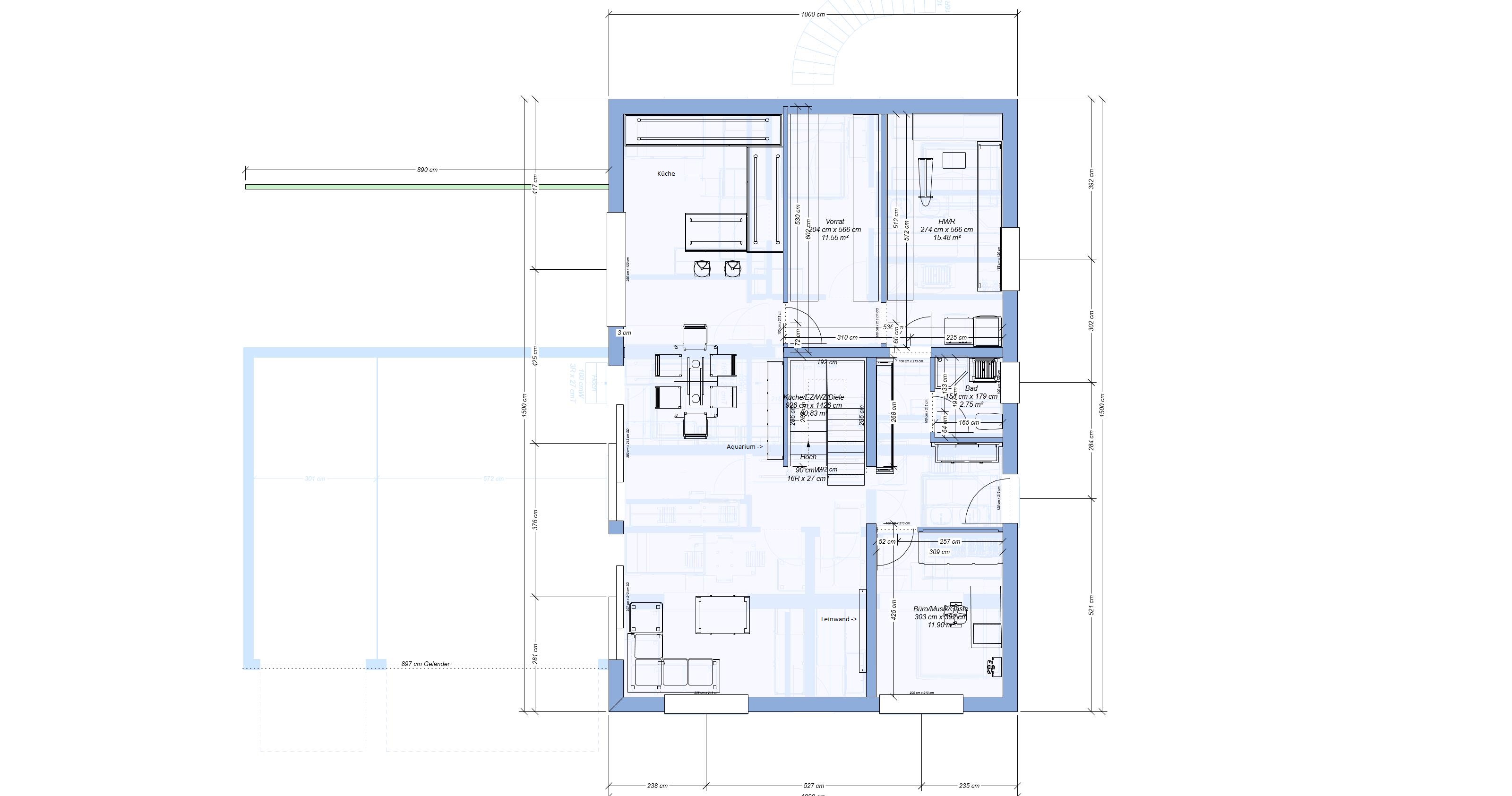
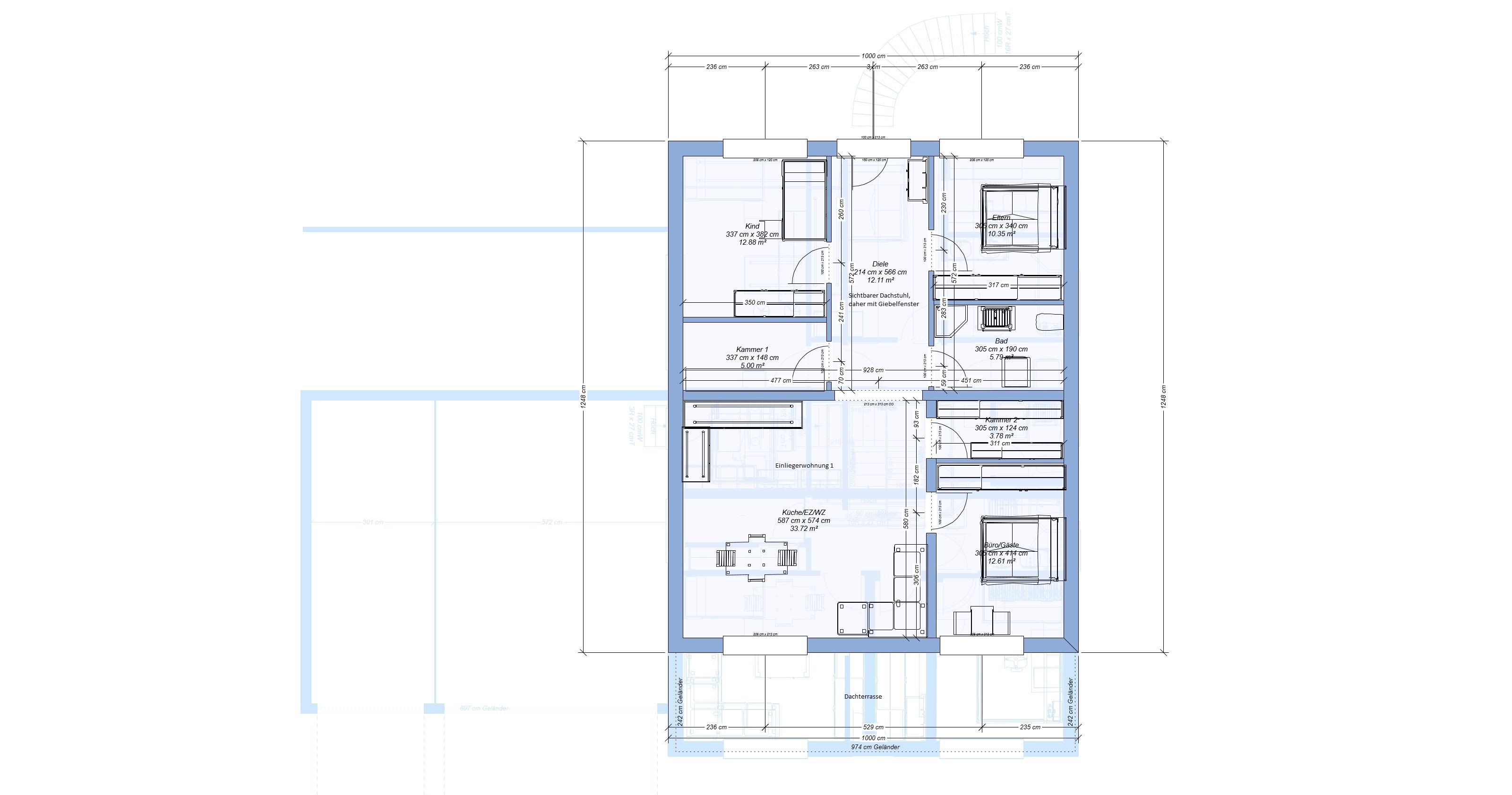
Stilrichtung, Dachform, Gebäudetyp: Hauptwohnung mit 2 Einliegerwohnungen (eine im DG, eine kleinere im UG)
Keller, Geschosse: UG, EG, OG, DG (Dachgeschoss)
Anzahl der Personen, Alter: 1975m, 1980w, 2007m (wohnt meist beim Partner aus erster Ehe), 2009w, 2019m, (Voraus. 2020m/w)
Raumbedarf im EG, OG: ab 200 m²
Büro: Familiennutzung
Schlafgäste pro Jahr: Abgesehen von Hausbewohner 2007m ca. 6
offene oder geschlossene Architektur: offen
konservativ oder moderne Bauweise: modern
offene Küche, Kochinsel: ja
Anzahl Essplätze: 6
Kamin: Nein
Musik/Stereowand: Heimkinoanlage im Wohnzimmer
Balkon, Dachterrasse: Im DG für Einliegerwohnung 1
Garage, Carport: 3 Garagen, 2 Stellplätze
Nutzgarten, Treibhaus: Auf den Garagen soll ein ebener Garten entstehen, mit Rasen und ein paar Büschen ringsherum.
weitere Wünsche/Besonderheiten/Tagesablauf, gern auch Begründungen, warum dieses oder das nicht sein soll:
Hausentwurf
Von wem stammt die Planung: Do-it-Yourself
Was gefällt besonders? Warum? Grundstück mit deutlichem Gefälle, trotzdem ebener Garten auf den Garagen. Einliegerwohnung 1 mit extra Zugang von oben.
Persönliches Preislimit fürs Haus, inkl Ausstattung: 1 Mio EUR in größerer Stadt in Bayern
Favorisierte Heiztechnik: Wärmepumpe mit Photovoltaik auf der nach SW ausgerichteten Dachfläche
Wenn Ihr verzichten müsst, auf welche Details/Ausbauten könnt Ihr verzichten: Giebelfenster im DG
Warum ist der Entwurf so geworden, wie er jetzt ist? Wir möchten das (teure) Grundstück möglichst effektiv ausnutzen
Was ist die wichtigste/grundlegende Frage zum Grundriss in 130 Zeichen zusammengefasst? Wo sind Fehler? Verbesserungsvorschläge? Ist die Wasserleitungssituation zu den Bädern und Küchen ausreichend oder muss ich sie umplanen?
Leider schaffe ich es in diesem Architekturprogramm nicht, das Gelände ordentlich einzuzeichnen. Bei Bedarf kann ich noch eine Schnittzeichnung einscannen, damit es verständlicher wird. Der Garten links am Haus und oben am Haus mit der außen liegenden Treppe werden sicher noch ganz anders gestaltet. Bisher ist auch noch gar keine Rasenfläche eingezeichnet.
Vielen, lieben Dank für viele inspirierende Ideen im voraus










Größe des Grundstücks: 774 m²
Hang: 13%, wie im Übersichtsplan eingezeichnet
Grundflächenzahl: 0,4
Geschossflächenzahl: 0,5
Baufenster, Baulinie und -grenze: 11 x 15 m, wie im Übersichtsplan
Geschossigkeit: 2 Vollgeschosse
Dachform: Satteldach, 30° Neigung
Ausrichtung: Firstrichtung NO-SW
Anforderungen der Bauherren
Stilrichtung, Dachform, Gebäudetyp: Hauptwohnung mit 2 Einliegerwohnungen (eine im DG, eine kleinere im UG)
Keller, Geschosse: UG, EG, OG, DG (Dachgeschoss)
Anzahl der Personen, Alter: 1975m, 1980w, 2007m (wohnt meist beim Partner aus erster Ehe), 2009w, 2019m, (Voraus. 2020m/w)
Raumbedarf im EG, OG: ab 200 m²
Büro: Familiennutzung
Schlafgäste pro Jahr: Abgesehen von Hausbewohner 2007m ca. 6
offene oder geschlossene Architektur: offen
konservativ oder moderne Bauweise: modern
offene Küche, Kochinsel: ja
Anzahl Essplätze: 6
Kamin: Nein
Musik/Stereowand: Heimkinoanlage im Wohnzimmer
Balkon, Dachterrasse: Im DG für Einliegerwohnung 1
Garage, Carport: 3 Garagen, 2 Stellplätze
Nutzgarten, Treibhaus: Auf den Garagen soll ein ebener Garten entstehen, mit Rasen und ein paar Büschen ringsherum.
weitere Wünsche/Besonderheiten/Tagesablauf, gern auch Begründungen, warum dieses oder das nicht sein soll:
- Ebenerdiger Familienzugang durch die Garage über eine Rampe ins UG. Eingang für Gäste rechts ins EG.
- Zugang für Einliegerwohnung 1 direkt ins DG über außenliegende Treppe. Für diese Wohneinheit besteht ein extra Zugang von oben (Norden) mit Garage und Stellplatz (siehe Übersichtsplan)
- Einliegerwohnung 2 mit direktem Zugang über den Privatweg ins UG und Garage links an der Grundstücksgrenze
- Da wir eine große Familie sind steht momentan ständig Wäsche im Wohnzimmer. Das soll sich ändern, deswegen ein großzügiger Hauswirtschaftsraum (mit eingezeichnetem Bügelbrett) im EG und extra Belüftungssystem?
- Den Privatweg nutzen nur wir und ein weiteres, dahinterliegendes Grundstück. Ringsherum stehen ziemlich viele Bäume, ein Ausblick besteht daher nicht wirklich.
- Große Glasschiebetüren vom Esszimmer auf die Terrasse/Garten.
- Gute Schalldämmung zwischen den DG/OG und EG/UG
Hausentwurf
Von wem stammt die Planung: Do-it-Yourself
Was gefällt besonders? Warum? Grundstück mit deutlichem Gefälle, trotzdem ebener Garten auf den Garagen. Einliegerwohnung 1 mit extra Zugang von oben.
Persönliches Preislimit fürs Haus, inkl Ausstattung: 1 Mio EUR in größerer Stadt in Bayern
Favorisierte Heiztechnik: Wärmepumpe mit Photovoltaik auf der nach SW ausgerichteten Dachfläche
Wenn Ihr verzichten müsst, auf welche Details/Ausbauten könnt Ihr verzichten: Giebelfenster im DG
Warum ist der Entwurf so geworden, wie er jetzt ist? Wir möchten das (teure) Grundstück möglichst effektiv ausnutzen
Was ist die wichtigste/grundlegende Frage zum Grundriss in 130 Zeichen zusammengefasst? Wo sind Fehler? Verbesserungsvorschläge? Ist die Wasserleitungssituation zu den Bädern und Küchen ausreichend oder muss ich sie umplanen?
Leider schaffe ich es in diesem Architekturprogramm nicht, das Gelände ordentlich einzuzeichnen. Bei Bedarf kann ich noch eine Schnittzeichnung einscannen, damit es verständlicher wird. Der Garten links am Haus und oben am Haus mit der außen liegenden Treppe werden sicher noch ganz anders gestaltet. Bisher ist auch noch gar keine Rasenfläche eingezeichnet.
Vielen, lieben Dank für viele inspirierende Ideen im voraus
Dürft ihr so groß bauen? Bin mir mit der Geschossflächenzahl nicht ganz sicher
Wollt ihr wirklich unter und über euch Mieter haben?
Was passiert wenn in einer Wohnung Mietnomaden sind? Renovierungsbedürftige Wohnung, Monatelang keine Mietzahlungenß
Wo ist euer Privatgarten?
Der Süden ist mit Privatweg, Stellplatz voll
Einliegerwohnung Unten
Würde dem Minibad die Türe Schlafzimmer, Bad streichen.
Finde 2 Eingänge unpraktisch. Die Schuhe und Jacken der Kinder sind immer beim anderen Eingang. - Die werden vermutlich die Haustüre am Meisten nutzen.
Es fehlen ein paar Maße. Zeichnet mal bei euch die Möbel im Maßstab ein. z.B. den Esstisch mit besetzten Stühlen - das wird sehr eng
Das Sofa wirkt recht klein
Direkter Terrassenzugang von der Küche ist wichtiger als vom Wohnzimmer. Kaffee auf der Terrasse, Grillen, die Kinder wollen was trinken, alles geht zur Küche
Einliegerwohnung Oben
Ich würde den Eingang seitlich Planen über euren, damit ihr den Garten hinten für euch habt.
Wollt ihr wirklich unter und über euch Mieter haben?
Was passiert wenn in einer Wohnung Mietnomaden sind? Renovierungsbedürftige Wohnung, Monatelang keine Mietzahlungenß
Wo ist euer Privatgarten?
Der Süden ist mit Privatweg, Stellplatz voll
Einliegerwohnung Unten
Würde dem Minibad die Türe Schlafzimmer, Bad streichen.
Finde 2 Eingänge unpraktisch. Die Schuhe und Jacken der Kinder sind immer beim anderen Eingang. - Die werden vermutlich die Haustüre am Meisten nutzen.
Es fehlen ein paar Maße. Zeichnet mal bei euch die Möbel im Maßstab ein. z.B. den Esstisch mit besetzten Stühlen - das wird sehr eng
Das Sofa wirkt recht klein
Direkter Terrassenzugang von der Küche ist wichtiger als vom Wohnzimmer. Kaffee auf der Terrasse, Grillen, die Kinder wollen was trinken, alles geht zur Küche
Einliegerwohnung Oben
Ich würde den Eingang seitlich Planen über euren, damit ihr den Garten hinten für euch habt.
- Geschossflächenzahl: Ich komme auf auf 387 m², das müsste knapp reichen (glaube ich)
- Mietnomaden sind tatsächlich ein Risiko..
- Der Privatgarten ist auf den Garagen geplant, das kam offenbar bei den Plänen nicht so ganz rüber. Der Garten soll sich dann bis zu der Abstützungsmauer erstrecken (sieht man auf dem 3D-Bild "Süd" ganz gut). Deswegen ist das Niveau des UG auch 50 cm höher als das der Garagen, damit wir eine solche Erddeckung auf die Garagen bringen können und trotzdem ebenerdig in den Garten können.
- Minibad unten schau ich mir noch mal an, wird vielleicht wirklich etwas eng mit den beiden Türen..
- 2 Eingänge: Wir werden sowieso nur den unteren Eingang durch die Garagen nutzen. Der obere Eingang ist nur für Besuch. Das ist ein Kompromiss, wir brauchen mit den kleinen Kindern unbedingt einen ebenerdigen Zugang, was bei der Hanglage nicht so einfach ist.
- Esstisch werde ich mal ausmessen. Auch das Sofa ist nur ein Demosofa vom Programm. Ich muss unsere aktuellen Möbel noch vermessen. Vielleicht ist aber auch noch ein bisschen Geld übrig für eine neue, größere Wohnlandschaft.
- Direkter Zugang von der Küche zur Terrasse ist eine gute Idee, da werde ich noch mal nachgrübeln..
- Einliegerwohnung oben: Der Garten hinten/oben ist für die obere Einliegerwohnung gedacht. Dort wollen wir gar nicht hin. Vielleicht werden wir das auch aufschütten, damit sie direkt ins DG ohne Treppe können und den Garten nutzen können. Der Hang müsste auch dafür ausreichend sein. Dann hat natürlich das Elternschlafzimmer im OG kein richtiges Fenster mehr, sondern nur einen Schacht mit Fenster..
haydee schrieb:
Dürft ihr so groß bauen? Bin mir mit der Geschossflächenzahl nicht ganz sicher
Wollt ihr wirklich unter und über euch Mieter haben?
Was passiert wenn in einer Wohnung Mietnomaden sind? Renovierungsbedürftige Wohnung, Monatelang keine Mietzahlungenß
Wo ist euer Privatgarten?
Der Süden ist mit Privatweg, Stellplatz voll
Einliegerwohnung Unten
Würde dem Minibad die Türe Schlafzimmer, Bad streichen.
Finde 2 Eingänge unpraktisch. Die Schuhe und Jacken der Kinder sind immer beim anderen Eingang. - Die werden vermutlich die Haustüre am Meisten nutzen.
Es fehlen ein paar Maße. Zeichnet mal bei euch die Möbel im Maßstab ein. z.B. den Esstisch mit besetzten Stühlen - das wird sehr eng
Das Sofa wirkt recht klein
Direkter Terrassenzugang von der Küche ist wichtiger als vom Wohnzimmer. Kaffee auf der Terrasse, Grillen, die Kinder wollen was trinken, alles geht zur Küche
Einliegerwohnung Oben
Ich würde den Eingang seitlich Planen über euren, damit ihr den Garten hinten für euch habt.Ähnliche Themen