kaladrial schrieb:
Hauptfrage wäre also, welche Hausform den leichten Hang am besten berücksichtigt. In der bisherigen Grundrissplanung bleiben wir immer fast quadratischZeig´ mal die Grundrissplanung. Bist Du sicher, daß Du von der "Hauptstraße" bzw. der Einmündung der Sch*******le in die "Hauptstraße" in Dein Grundstück einfahren darfst ?https://www.instagram.com/11antgmxde/
https://www.linkedin.com/company/bauen-jetzt/
K
kaladrial10.11.20 12:11Mir war bis jetzt nicht bewusst, dass es da Beschränkungen bzgl. Einmündung gibt. Ich schätze, dass dann ein gewisser Abstand zur Hauptstraße gewählt werden muss?
Von der Hauptstraße selbst wird man nicht aufs Grundstück fahren dürfen, da ist nämlich noch ein Radweg davor.
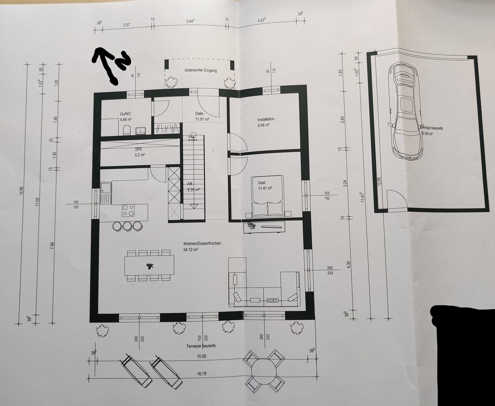
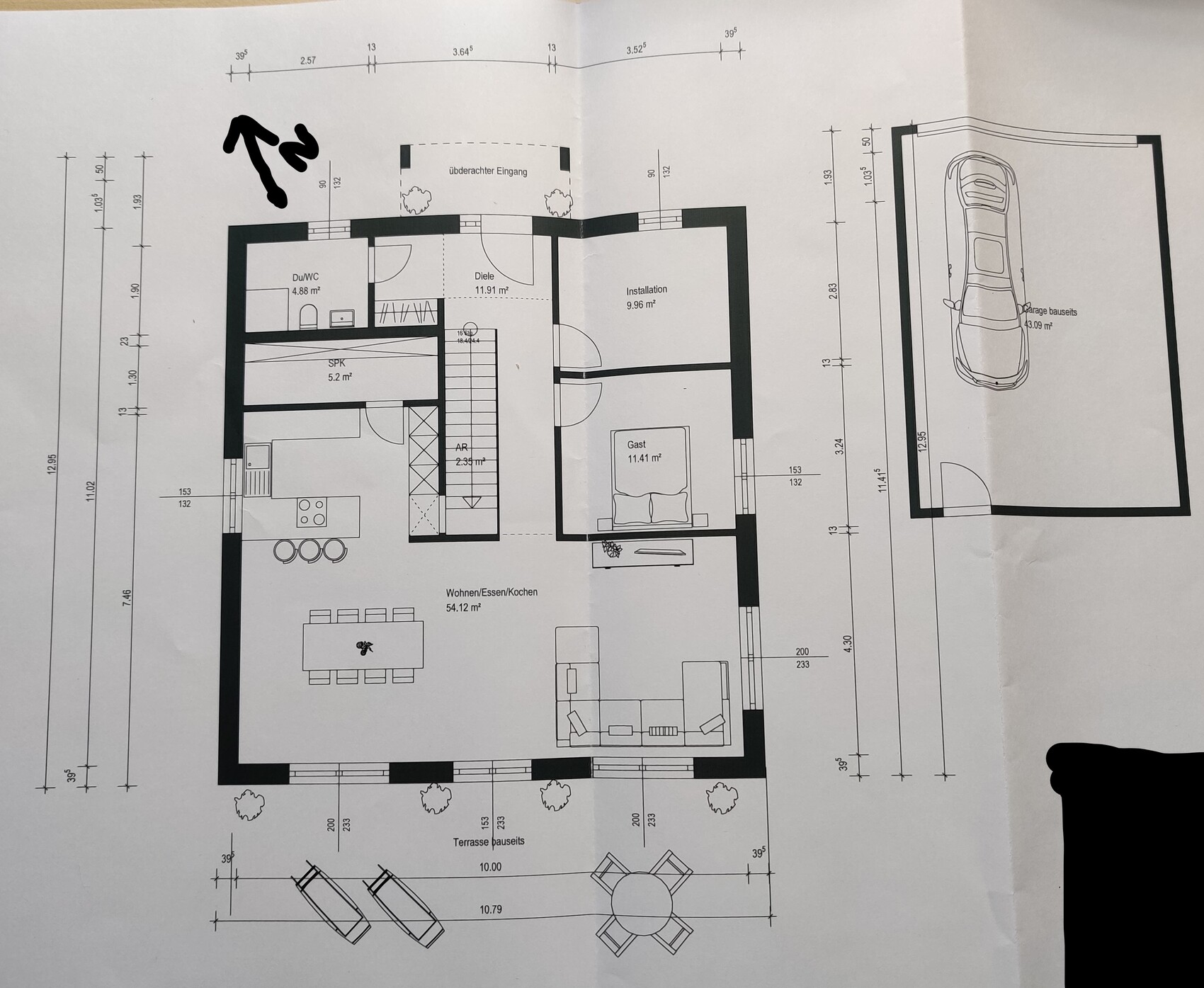
Den aktuellen Grundriss habe ich angehangen: Das Elternbad wird allerdings verändert: Die Tür zum Flur sowie das T-Bad werden noch entfernt.


Von der Hauptstraße selbst wird man nicht aufs Grundstück fahren dürfen, da ist nämlich noch ein Radweg davor.
Den aktuellen Grundriss habe ich angehangen: Das Elternbad wird allerdings verändert: Die Tür zum Flur sowie das T-Bad werden noch entfernt.
In Beitrag #18 hattest Du mich mit den unterschiedlichen Einzeichnungen von Haus und Garage in "Lageplan" und "Hausausrichtung" verwirrt. Nach Deinem Hinweis, die Maßstäblichkeit nicht für bare Münze zu nehmen, tat ich dies doch mit der Lagedarstellung. Da sah es aus, als solle die Garage von der "Spitze" an der Einmündung befahren werden (aber das ginge ja auch gar nicht, denn da trennt ja der Streifen mit dem Bänkchen und dem "Willkommen in Dingsda" Schild Dein Grundstück vom direkten Straßenanschluß. Von der Sch*******le (= offenbar Anliegerstraße) wie nun hier im Grundriss eingezeichnet sehe ich kein Problem. An der anderen Stelle hätte dem ein "Sichtdreieck" entgegenstehen können (und daß ich die "Hauptstraße" für eine Landstraße halte).
https://www.instagram.com/11antgmxde/
https://www.linkedin.com/company/bauen-jetzt/
https://www.instagram.com/11antgmxde/
https://www.linkedin.com/company/bauen-jetzt/
K
kaladrial10.11.20 21:17Ah, verstehe! Damit sind deine Annahmen so auch alle korrekt, die Hauptstraße ist eine wenig befahrene Landstraße.
Gerne nehmen wir dann Hinweise zu Höhenprofil und dementsprechend Hausform entgegen, falls jemand Lust hat! 🙂 Im aktuellen Grundriss ist die Hausform nun mal fast quadratisch, wir sind da aber grundsätzlich offen andere Formen zu bedenken - nur fehlt uns da etwas das Vorstellungsvermögen.
Gerne nehmen wir dann Hinweise zu Höhenprofil und dementsprechend Hausform entgegen, falls jemand Lust hat! 🙂 Im aktuellen Grundriss ist die Hausform nun mal fast quadratisch, wir sind da aber grundsätzlich offen andere Formen zu bedenken - nur fehlt uns da etwas das Vorstellungsvermögen.
Ja, dann bau´ es meinetwegen so, ich sehe keine groben Patzer (außer daß das Kinderbad nahe des Sofas entwässern wird). Die Höhen sehe ich so undramatisch, daß sich die Hauseinfügung ins Grundstück leicht ausmodellieren lassen sollte. Deine Raummaße und Wandstärken kann ich nicht einordnen. Den Luftraum würde ich weglassen.
https://www.instagram.com/11antgmxde/
https://www.linkedin.com/company/bauen-jetzt/
https://www.instagram.com/11antgmxde/
https://www.linkedin.com/company/bauen-jetzt/
Wird sich so bauen lassen, Entwässerung Kinderbad könnte interessant werden.
Mal ein paar Gedanken unabhängig jeglicher Berücksichtigung der Gegebenheiten des Grundstücks:
- Von der Garage läufst du immer durch den Regen -> Eingang seitlich zwischen Garage und Haus?
- Weg zur Küche und Speisekammer maximal lang.
- Garderobe sehr klein
- langer, schmaler Flur im EG neben der Treppe mit Wand unten quer im Süden
- Elternschlafzimmer im Süden, Kinder ungleichmäßige Ausrichtung,
Vorschlag: Luftraum raus, Eltern und Kind 1 tauschen und den Norden als Elterntrakt nutzen
Mal ein paar Gedanken unabhängig jeglicher Berücksichtigung der Gegebenheiten des Grundstücks:
- Von der Garage läufst du immer durch den Regen -> Eingang seitlich zwischen Garage und Haus?
- Weg zur Küche und Speisekammer maximal lang.
- Garderobe sehr klein
- langer, schmaler Flur im EG neben der Treppe mit Wand unten quer im Süden
- Elternschlafzimmer im Süden, Kinder ungleichmäßige Ausrichtung,
Vorschlag: Luftraum raus, Eltern und Kind 1 tauschen und den Norden als Elterntrakt nutzen
Ähnliche Themen