Hausbau - Ratgeber
Bauherrenhilfe
- Bauherrenhilfe vor Vertragsabschluss
-- Warum einen unabhängigen Baubetreuer?
-- Vertragsgrundlagen
-- Bausumme
-- Zahlungsplan zur Kostenkontrolle
-- Pflichten des Bauherren vor Vertragsabschluss
-- Unterlagen beim Hausbau vor Vertragsabschluss
- Bauherrenhilfe nach Vertragsabschluss
-- Bauantrag bei Behörden
-- Bau-Genehmigungsverfahren bei Baubehörden
-- Bauspezifische Versicherungen
-- Bauzeitenplan
-- Baubeginn - die Letzten Pflichten der Bauherrschaft
- Bauherrenhilfe während der Bauzeit
- Gewährleistungsansprüche
- Bauabnahme
Baufinanzierung
- Baufinanzierung - Allgemeine Fragen
- Kreditarten
- Kredit-Konditionen
- Bausparen
- Staatliche Förderungen
- Verkehrswert
- Haushaltsrechnung und Bonität
Hausbau Planung
- Haustypen
- Hausbau Vorbereitungsarbeiten
- Das Baugrundstück
- Baugrund beim Hausbau
- Baurecht
- Gebäudeschutz
- Erdarbeiten und Wasserhaltung
- Stützmauern
- Einfriedung
- Untergeschoss
- Kanalisation
- Tragende Elemente
- Nichttragende Innenwände
- Fundation / Fundament
- Deckenkonstruktionen
- Dächer
- Kaminanlagen
- Treppen Rampen Leitern
- Dachbeläge und Spengler
- Fenster
- Sonnen und Wetterschutz
- Aussenputze
- Einbauten, Küchen, Türen
- Bodenbeläge und Unterlagsböden
- Parkett
- Gips, Wand, Decke
Haustechnik und Energie
- Heiztechnik
- Lüftung und Klimatechnik
- Sanitärtechnik
- Elektrotechnik
- Erneuerbare Energie
Whirlpools / Jacuzzi
Hausbau Magazin
- Baufinanzierung trotz Krise?
- Das Blockhaus
- Moderne Dämmstoffe im Vergleich
- Erker Vor- und Nachteile
- Glasflächen beim Hausbau
- Günstig ein Haus Bauen
- Mediterraner Hausbaustil
- Mehrgenerationenhaus
- Moderne Architektur
- Gartengestaltung leicht gemacht
- Traditioneller Ziegelbau
- Villa als höchster Traum
- Im Eigenheim Ruhestand geniessen
- Altbau sanieren
- Kauf einer Holzgarage
- Immobilienmakler
- Arbeitshandschuhe für den Winter
- Zuhause verschönern
- Outdoor-Plissees
- Schlafzimmer planen
- Terrassenüberdachung
- Wohngebäudeversicherung
- Zaunarten und Eigenschaften
- Hauseingang gestalten
- Der perfekte Grundriss
- Sparsamer heizen im Altbau
- Einfamilienhaus smart finanzieren
- Planung einer PV-Anlage
- Neues Haus
- Immobilienfinanzierung
- Installation einer Photovoltaikanlage
- Asbest erkennen und entfernen
- Gartenpflege im Frühling – worauf achten
- Sauna im Fokus - Wellness zuhause
- Erfolgreich vermieten
- Die perfekte Winterbekleidung
- Das Niedrigenergiehaus
- Der April und seine Stürme
- Architektonische Vielfalt
- Ökologisch und nachhaltig bauen
- Das perfekte Schlafzimmer
- Nachhaltige Energieversorgung
- Zukunftsorientiert bauen
- Nachhaltigkeit beim Hausbau
- Tiny Houses
- Wärmepumpen als nachhaltige Heizvariante
- Maßgeschneiderten Kleiderschrank
- Der richtige Baukredit
- Ratgeber für erfolgreichen Hausbau
- Haus als Altersvorsorge
Do-it-yourself Anleitungen
- Verlegeanleitung für Bodenbeläge und Parkett
- Bodenbeläge und Parkett reinigen und pflegen
- Malerarbeiten am Haus
- Garten Tipps
- Umzug und Reinigung

ᐅ Grundrissplanungen Einfamilienhaus und Garage

Erstellt am: 29.11.16 11:17
M
MarkusFie
M
MarkusFie
29.11.16 11:17
Hey,
meine Partnerin und ich möchten/werden Bauen.
Grundstück wurde gekauft, und die ersten Architektenpläne stehen auch.

Über ein kurzes Feedback würde ich mich freuen...

Vielen Dank im Voraus
Markus

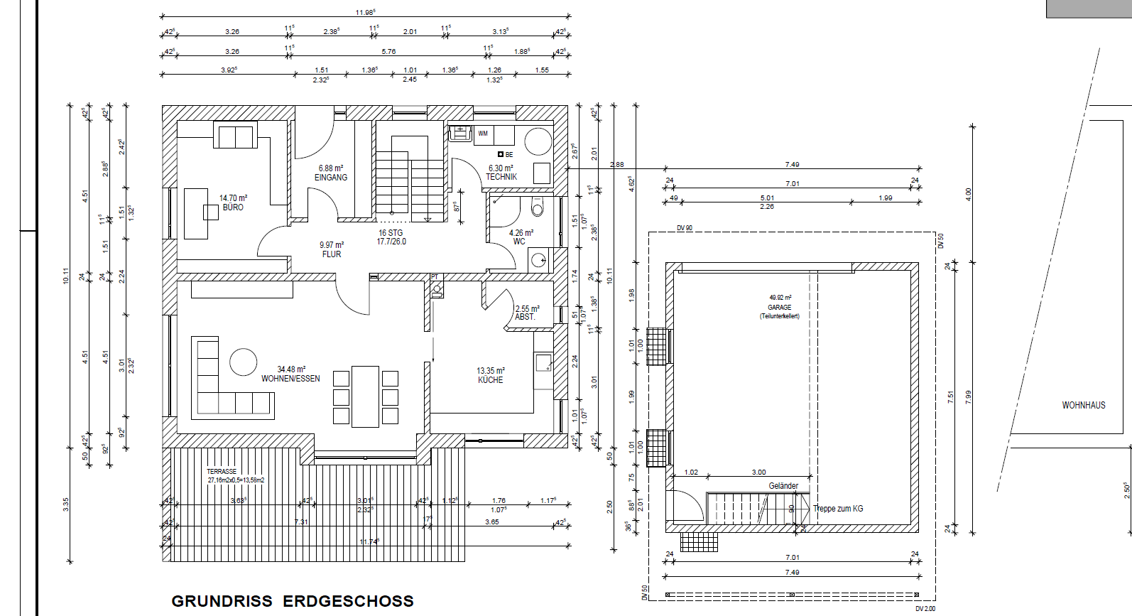
Grundriss Erdgeschoss mit Wohnzimmer, Büro, Küche, Flur und Terrasse.


2D-Grundriss des Dachgeschosses mit Schlafzimmern, Flur und Bad


Architekturzeichnung vier Ansichten eines Hauses: Süd, Ost, West, Nord mit roten Akzenten


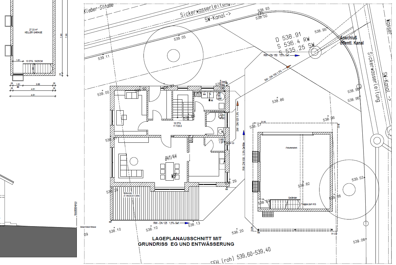
Grundriss und Lageplan eines Hauses mit Gelände und Entwässerung.
M
matte
29.11.16 12:34
EG:

- Wieviel Platz habt ihr im Büro hinter der Türe? Schaut für mich so aus, als ob da kein schrank hin passen würde.
- Abstellkammer in der Küche würd ich streichen, Dafür lässt sich die Küche viel besser möblieren. Ich stell mal die steile These auf, dass ihr in diese kleine Abstellkammer weniger rein bekommt, als wenn ihr die planobere Küchenwand komplett mit hochschränken baut 😉
- Was erhofft ihr euch von dem Erker? Ich verstehe den Wunsch nach bisschen Verschachtelung/Gliederung im Wohn/Essbereich, allerdings ist das mit der 50cm tiefen Fresswarze nicht wirklich erfüllt. Nicht böse sein, aber das ist für mich nichts Halbes und nichts Ganzes
- Wieso so ein großes Fenster im WC?
- Ich würde wohl Eingang und WC tauschen, Die Wege sind bei der momentanen Aufteilung unnötig weit. Wenn ich mir den Weg von der Garage in die Küche ansehe, würde ich mich jedes Mal ärgern, müsste ich mit dem Einkaufskorb so weit gehen.

OG:

- Wie soll die Ankleide funktionieren? der einzige Platz für einen richtigen Kleiderschrank wird durch das Fenster versperrt. Noch dazu ist das Fenster so positioniert, dass an die Planobere Wand auch kein Schrank passt.
- Den Zugangsbereich zu den 2 Kinderzimmer finde ich nicht schön. Ich würde da die Wand gerade ziehen in einer Line zur Wand zwischen Kind 2 und Eltern und die 45° Winkel streichen.
- Soll das Elternschlafzimmer tatsächlich so möbliert werden? Ist zwar möglich, ich glaube allerdings, dass es ziemlich beengend wird, durch die viele Verkehrsfläche, welche nun mal umlaufend notwendig wird.
Ob´s der Ausblick durch das Große Fenster rechtfertigt, kann ich nicht beurteilen.
C
Climbee
29.11.16 12:56
Bitte die Fragen aus dem Thread beantworten, den ypg hier eingestellt hat.

Gebe außerdem Matte recht: WC und Eingang tauschen macht Sinn!

Und ich frage mich echt immer wieder, warum sich die meisten Eltern als Schlafzimmer das Sahneschnittchen gönnen und Kind 2 dann mit einem Nordzimmer abgespeist wird... Kein Wunder, daß die lieben Kleinen immer nur im Wohnzimmer spielen (und dort ewiges Spielzeugchaos herrscht), wenn sie im eigenen Zimmer wie in einer Gruft leben müssen...
Was macht man im Schlafzimmer außer reingehen, ins Bett legen, schlafen, wieder aufstehen... okeh... hin und wieder mal den Versuch der Nachwuchserzeugung, aber sonst???
Brauch ich dafür das beste Südseitenzimmer? Ankleide ebenfalls Südseite???
Kinder spielen im Kinderzimmer, machen Hausaufgabe, halten sich tagsüber drin auf, haben Freunde zu besuch etc.
Das dann in der dunklen Nordgruft?

So mal zur grundsätzlichen Überlegung. Also ich würde OG komplett anders aufteilen.

Die Außenansichten gefallen mir, ehrlich gesagt, auch alle nicht. Langweilig. Da geht mehr. Allein in den Kinderzimmern würde ich bodentiefe Fenster machen.
Südseite wäre mir auch zu wenig Fenster.

Zur Fresswarze hat Matte auch schon alles gesagt, was ich dazu sagen würde.
Y
ypg
29.11.16 13:14
Climbee schrieb:
Und ich frage mich echt immer wieder, warum sich die meisten Eltern als Schlafzimmer das Sahneschnittchen gönnen und Kind 2 dann mit einem Nordzimmer abgespeist wird...

West 😉
Climbee schrieb:
Was macht man im Schlafzimmer außer reingehen, ins Bett legen, schlafen, wieder aufstehen...

Tja, eigentlich wollte ich noch nichts schreiben, bevor ich nicht die Eckdaten kenne.
Aber ich bewundere immer die Illusion, sich vom Bett aus an einem Panoramafenster und dem Ausblick zu erfröhnen. Wir ticken leider anders und erfreuen uns dem abendlichen oder auch sonntag morgendlichem Fernsehprogramm 🙁

Aber mal ehrlich: so ein grosses Fenster im Süden macht in einem Schlafzimmer keinen Spaß! Das ist Fehlplanung, obwohl es natürlich gefühlt ein tolles Nice-to-Have sein soll. Aber es ist nicht wohn- bzw schlaffreundlich. Nicht die Größe, noch brüstungsfrei!
C
Climbee
29.11.16 13:25
ypg schrieb:
West 😉

Auch schön, wenn man einschlafen soll volle Sonneneinstrahlung im Sommer zu haben (und Schulkinder müssen ja auch im Sommer rechtzeitig ins Bett).

Nein, ich bleib dabei, ich find die Raumaufteilung so Essig.
fensterkücheschlafzimmerbettschrankabstellkammerfresswarzeeingangankleidekinderzimmer