ᐅ Grundrissplanung Neubau Einfamilienhaus mit Doppelgarage (Stadtvilla)
Erstellt am: 27.12.19 13:42
M
maxl229
Hallo zusammen,
wir haben in der vergangenen Woche den ersten Entwurfsvorschlag unseres Architekten für den Neubau eines Einfamilienhaus mit Doppelgarage erhalten.
Nachfolgend die Beantwortung des Fragebogens soweit wie möglich.
Wenn ich den ein oder anderen Punkt falsch oder missverständlich ausgefüllt habe, bitte ich dies zu entschuldigen.
Bebauungsplan/Einschränkungen
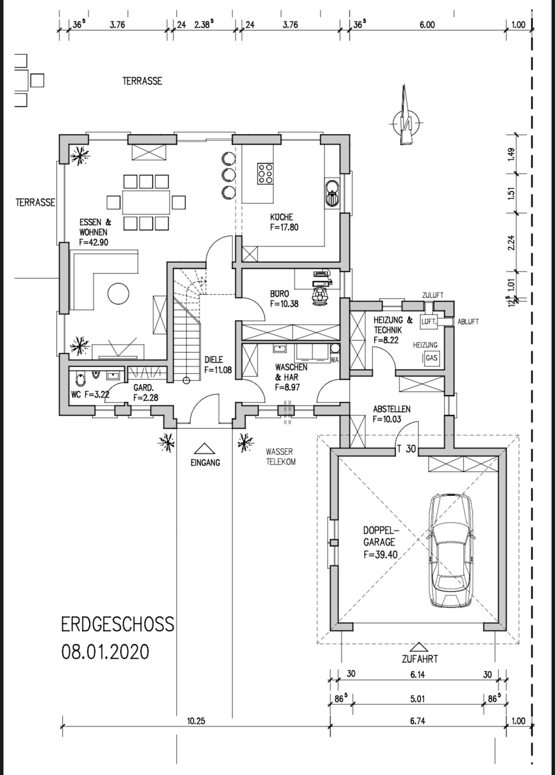
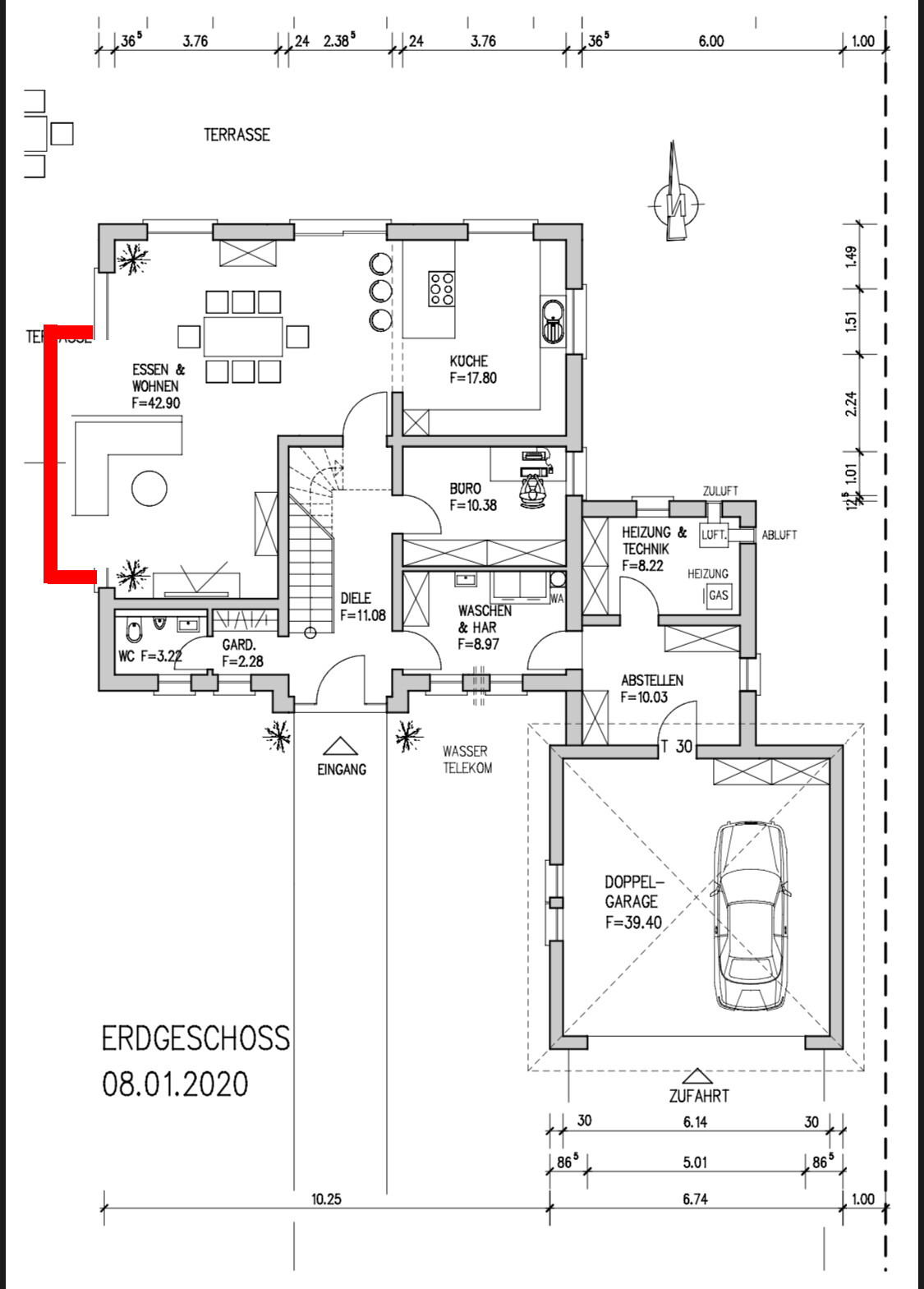
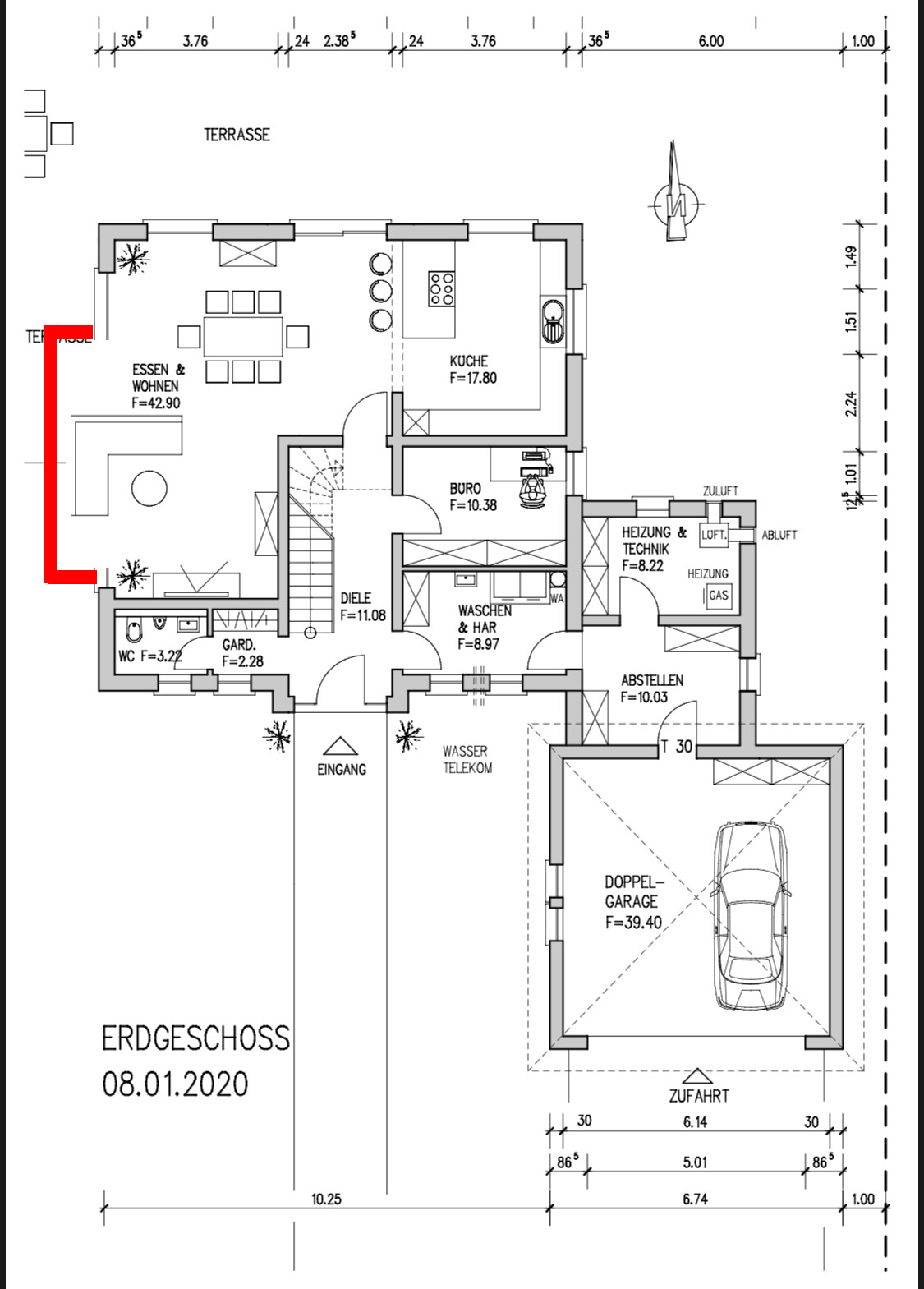
Größe des Grundstücks: 1701qm (Front ca. 27m)
Hang: leicht ansteigend Richtung Norden, jedoch keine Auswirkungen auf Grundriss bzw. Gestaltung
Grundflächenzahl: NA
Geschossflächenzahl: NA
Baufenster, Baulinie und -grenze:
Randbebauung:
Anzahl Stellplatz:
Geschossigkeit:
Dachform: NA
Stilrichtung: NA
Ausrichtung: Norden
Maximale Höhen/Begrenzungen:
weitere Vorgaben: §34
Anforderungen der Bauherren
Stilrichtung, Dachform, Gebäudetyp: Stadtvilla mit Zeltdach / Garage mit Zeltdah
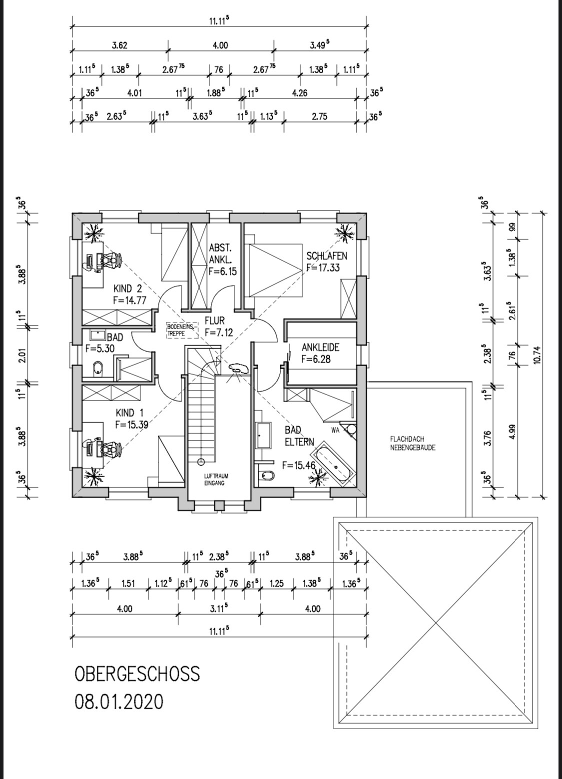
Keller, Geschosse: kein Keller, 2 Vollgeschosse
Anzahl der Personen, Alter: 2, 28
Raumbedarf im EG: Küche, Wohnen+Essen, Büro, Gäste-WC, Vorratsraum, Waschraum
OG: 1 Elternschlafzimmer + Ankleide + Bad, 2 Kinderschlafzimmer + Bad, Abstellraum
Büro: Homeoffice
Schlafgäste pro Jahr: nicht relevant
offene oder geschlossene Architektur: offen
konservativ oder moderne Bauweise: modern
offene Küche, Kochinsel: ja
Anzahl Essplätze: 6
Kamin: nein
Musik/Stereowand: nein
Balkon, Dachterrasse: nein
Garage, Carport: Doppelgarage
Nutzgarten, Treibhaus
Hausentwurf
Von wem stammt die Planung:
-Architekt
Was gefällt besonders? Warum?
Raumaufteilung im OG wurde wie besprochen umgesetzt;
Luftraum im Eingangsbereich wurde von Architekt installiert und für gut befunden
Was gefällt nicht? Warum?
Da unsererseits kein Flachdach auf der Garage erwünscht ist, wurde eine Doppelgarage mit Zeltdach geplant mit anschl. Flachdachanbau, um den direkten Hauszugang zu ermöglichen.
Jedoch wirkt die Gestaltung der Räume Waschen+Trocknen, Heizung+Technik sowie Vorrat+HAR irgendwie unrund.
Wenn möglich würden wir gerne den Vorratsraum mit dem Waschraum tauschen und in die Küche eine Speisekammer installieren.
Dadurch könnte das Nebengebäude etwas verkleinert werden und das Fenster in der Küche vergrößert werden. Ich vermute jedoch, dass wir dann um eine Vergrößerung der Gesamtfläche nicht rum kommen.
Preisschätzung lt Architekt/Planer: ca. 390 TEUR inkl. Lüftungsanlage
Persönliches Preislimit fürs Haus, inkl Ausstattung: Preisschätzung liegt im Budget
favorisierte Heiztechnik: Gas + Solarthermie (im Entwurf wurde eine luftwärmepumpe installiert)
Wenn Ihr verzichten müsst, auf welche Details/Ausbauten
-könnt Ihr verzichten:
-könnt Ihr nicht verzichten:
Was ist die wichtigste/grundlegende Frage zum Grundriss in 130 Zeichen zusammengefasst?
Im Großen und Ganzen wurden unsere Wünsche hinsichtlich Raumaufteilung und Bauweise gut umgesetzt.
Einzig die oben beschriebene Raumaufteilung des Nebengebäude inkl. Vorratsraum wirkt nicht so rund.
Was haltet ihr von unseren Ideen bzw. welche Möglichkeiten der Umgestaltung würdet ihr vornehmen?
Vielen Dank im Voraus für den regen Austausch!
Liebe Grüße
Max






wir haben in der vergangenen Woche den ersten Entwurfsvorschlag unseres Architekten für den Neubau eines Einfamilienhaus mit Doppelgarage erhalten.
Nachfolgend die Beantwortung des Fragebogens soweit wie möglich.
Wenn ich den ein oder anderen Punkt falsch oder missverständlich ausgefüllt habe, bitte ich dies zu entschuldigen.
Bebauungsplan/Einschränkungen
Größe des Grundstücks: 1701qm (Front ca. 27m)
Hang: leicht ansteigend Richtung Norden, jedoch keine Auswirkungen auf Grundriss bzw. Gestaltung
Grundflächenzahl: NA
Geschossflächenzahl: NA
Baufenster, Baulinie und -grenze:
Randbebauung:
Anzahl Stellplatz:
Geschossigkeit:
Dachform: NA
Stilrichtung: NA
Ausrichtung: Norden
Maximale Höhen/Begrenzungen:
weitere Vorgaben: §34
Anforderungen der Bauherren
Stilrichtung, Dachform, Gebäudetyp: Stadtvilla mit Zeltdach / Garage mit Zeltdah
Keller, Geschosse: kein Keller, 2 Vollgeschosse
Anzahl der Personen, Alter: 2, 28
Raumbedarf im EG: Küche, Wohnen+Essen, Büro, Gäste-WC, Vorratsraum, Waschraum
OG: 1 Elternschlafzimmer + Ankleide + Bad, 2 Kinderschlafzimmer + Bad, Abstellraum
Büro: Homeoffice
Schlafgäste pro Jahr: nicht relevant
offene oder geschlossene Architektur: offen
konservativ oder moderne Bauweise: modern
offene Küche, Kochinsel: ja
Anzahl Essplätze: 6
Kamin: nein
Musik/Stereowand: nein
Balkon, Dachterrasse: nein
Garage, Carport: Doppelgarage
Nutzgarten, Treibhaus
Hausentwurf
Von wem stammt die Planung:
-Architekt
Was gefällt besonders? Warum?
Raumaufteilung im OG wurde wie besprochen umgesetzt;
Luftraum im Eingangsbereich wurde von Architekt installiert und für gut befunden
Was gefällt nicht? Warum?
Da unsererseits kein Flachdach auf der Garage erwünscht ist, wurde eine Doppelgarage mit Zeltdach geplant mit anschl. Flachdachanbau, um den direkten Hauszugang zu ermöglichen.
Jedoch wirkt die Gestaltung der Räume Waschen+Trocknen, Heizung+Technik sowie Vorrat+HAR irgendwie unrund.
Wenn möglich würden wir gerne den Vorratsraum mit dem Waschraum tauschen und in die Küche eine Speisekammer installieren.
Dadurch könnte das Nebengebäude etwas verkleinert werden und das Fenster in der Küche vergrößert werden. Ich vermute jedoch, dass wir dann um eine Vergrößerung der Gesamtfläche nicht rum kommen.
Preisschätzung lt Architekt/Planer: ca. 390 TEUR inkl. Lüftungsanlage
Persönliches Preislimit fürs Haus, inkl Ausstattung: Preisschätzung liegt im Budget
favorisierte Heiztechnik: Gas + Solarthermie (im Entwurf wurde eine luftwärmepumpe installiert)
Wenn Ihr verzichten müsst, auf welche Details/Ausbauten
-könnt Ihr verzichten:
-könnt Ihr nicht verzichten:
Was ist die wichtigste/grundlegende Frage zum Grundriss in 130 Zeichen zusammengefasst?
Im Großen und Ganzen wurden unsere Wünsche hinsichtlich Raumaufteilung und Bauweise gut umgesetzt.
Einzig die oben beschriebene Raumaufteilung des Nebengebäude inkl. Vorratsraum wirkt nicht so rund.
Was haltet ihr von unseren Ideen bzw. welche Möglichkeiten der Umgestaltung würdet ihr vornehmen?
Vielen Dank im Voraus für den regen Austausch!
Liebe Grüße
Max
S
Schlenk-Bär05.01.20 21:15@kaho674 : bist Du eigentlich Architektin? Du haust hier einen Grundriss nach dem anderen raus. Und davon gefällt mir vieles besser als ich von unserem Architekt gesehen habe...
Schlenk-Bär schrieb:
@kaho674 : bist Du eigentlich Architektin? Nein, nur bausüchtig. ypg schrieb:
zur Zeit bist nur Du größenwahnsinnig
Doch. Ist mega riesig. Aber wenn Du es so haben möchtest und auch bezahlen kannst, dann ist doch alles gut Hehe, der letzte hat doch ne passable Größe? 12m x 9,45m dürften um die 180 bis 190m² sein. Mit 400K nur für's Haus müsste das klappen, wenn man nicht gerade die berühmten goldenen Wasserhähne will. Hallo zusammen,
anbei ein neuer Entwurf.
Folgende Punkte wurden m.E. verbessert:
- Wohnbereich mit Westausrichtung
- HAR inkl. Waschen mit "Abstellen" ersetzt
An folgenden Punkten hakt es noch:
Dadurch das der Hauseingang bei einer Stadtvilla üblicherweise mittig befindet, lässt sich die Treppe bei der vorhandenen Räumen nicht verändern.
Dies hat zur Folge, dass in diesem Entwurf Wohnzimmer zu klein bzw. Küche zu groß geworden ist. Natürlich wäre ein Tausch beider Räume möglich, was jedoch wieder Nachteile hinsichtlich der Belichtung im WZ zur Folge hätte
Auf jeden Fall muss der Wohnbereich vergrößert werden, wie auch immer..


anbei ein neuer Entwurf.
Folgende Punkte wurden m.E. verbessert:
- Wohnbereich mit Westausrichtung
- HAR inkl. Waschen mit "Abstellen" ersetzt
An folgenden Punkten hakt es noch:
Dadurch das der Hauseingang bei einer Stadtvilla üblicherweise mittig befindet, lässt sich die Treppe bei der vorhandenen Räumen nicht verändern.
Dies hat zur Folge, dass in diesem Entwurf Wohnzimmer zu klein bzw. Küche zu groß geworden ist. Natürlich wäre ein Tausch beider Räume möglich, was jedoch wieder Nachteile hinsichtlich der Belichtung im WZ zur Folge hätte
Auf jeden Fall muss der Wohnbereich vergrößert werden, wie auch immer..
Grundsätzlich könnt ich mir schon vorstellen davon abzurücken.
Du hast ja auch, danke noch mal dafür, einige Alternativen geliefert.
Wirklich zugesagt hat mir aber leider keine so wirklich.
Bei der einen Version ist der Blick beim Essen Richtung Straße und bei der Anderen gefällt mir die Raumaufteilung nicht so ganz..


Du hast ja auch, danke noch mal dafür, einige Alternativen geliefert.
Wirklich zugesagt hat mir aber leider keine so wirklich.
Bei der einen Version ist der Blick beim Essen Richtung Straße und bei der Anderen gefällt mir die Raumaufteilung nicht so ganz..
Ähnliche Themen