Hallo zusammen,
bevor ich das Anliegen weiter erläutere, hier der ausgefüllte Fragenkatalog:
Bebauungsplan/Einschränkungen
Größe des Grundstücks: Könnte ich in Erfahrung bringen, aber ist glaube ich für die Grundrissplanung irrelevant, oder?
Hang: nein
Grundflächenzahl: Könnte ich in Erfahrung bringen, aber ist glaube ich für die Grundrissplanung irrelevant, oder?
Geschossflächenzahl: Könnte ich in Erfahrung bringen, aber ist glaube ich für die Grundrissplanung irrelevant, oder?
Baufenster, Baulinie und -grenze: ?
Randbebauung: ?
Anzahl Stellplatz: Durch uns nutzbar: 1 Stellplatz vorm Haus
Geschossigkeit: EG, OG plus Keller - Durch uns nutzbar: EG und anteilig Keller
Dachform -
Stilrichtung: ?
Ausrichtung: ?
Maximale Höhen/Begrenzungen: ?
weitere Vorgaben: ?
Anforderungen der Bauherren
Stilrichtung, Dachform, Gebäudetyp - Zweifamilienhaus mit 2 Wohneinheiten, eigene Kellerräume und Gemeinschaftskeller. Für uns relevant: EG
Keller, Geschosse: Keller, EG, OG. Durch uns nutzbar: EG und anteilig Keller
Anzahl der Personen, Alter: 2 Erwachsene Mitte 30, 1 Baby - perspektivisch ggf. 1 weiteres Kind
Raumbedarf im EG und Keller: Aktuell: Küche (ggf. inkl. Esszimmer), Bad, Gäste-WC, 1 Schlafzimmer, 1 Kinderzimmer, 1 Arbeitszimmer, Abstellflächen (ggf. als Teil des Arbeitszimmers), Wohnzimmer (ggf. inkl. Esszimmer) - perspektivisch ggf. zweites Kinderzimmer (im Keller ist ein größerer Raum, welcher in der Vergangenheit schon mal ein Kinderzimmer war. Entweder könnte es dort wieder hin oder das Elternschlafzimmer wandert dort hin).
Büro: Familiennutzung oder Homeoffice? - Homeoffice (ggf. mit Abstellflächen) - es wird nur Platz für einen schreibtisch 140*80 und ein Bürostuhl benötigt.
Schlafgäste pro Jahr - selten
offene oder geschlossene Architektur - Gerne offene Küche mit Esszimmer oder Blick ins Esszimmer/Wohnzimmer. Aber es sollte idealerweise die Möglichkeit geben, die Küche beim Kochen von den restlichen Räumen zu trennen.
konservativ oder moderne Bauweise: gerne modern
offene Küche, Kochinsel: offene Küche - siehe oben, Kochinsel - gerne
Anzahl Essplätze: 4-6, Tendenz 6, wenn mal Gäste zu Besuch sind.
Kamin: Nein
Musik/Stereowand: Nein
Balkon, Dachterrasse: Terrasse
Garage, Carport: Stellplatz
Nutzgarten, Treibhaus: Garten
weitere Wünsche/Besonderheiten/Tagesablauf, gern auch Begründungen, warum dieses oder das nicht sein soll:
- Wir hätten gerne ein ausreichend großes Esszimmer/Wohnzimmer in dem auch das Kind später spielen kann. Herausforderung hierbei ist: Der Spielbereich sollte nicht mitten im Weg sein, so sehr stören, dass man ständig drüber stolpert.
- Obwohl das Haus eigentlich über große Räume (aus unserer Sicht und basierend auf unserer aktuellen Mietwohnung) verfügt, gibt es keine wirkliche Möglichkeit für eine "Abstellkammer" der üblichen Dinge wie Bügelbrett, Staubsauger etc., wenn man diese nicht immer aus dem Keller holen möchte. Hier wäre es schön, wenn sich hier eine Lösung finden ließe, ggf. auch durch Einbauschränke im Flur oder der Diele.
Hausentwurf
Von wem stammt die Planung: Das Haus wurde nach dem Bau (ehemals Bungalow) mehrfach baulich verändert (weiteres Stockwerk, Veränderung des Grundriss etc.), wer ursprünglich dafür verantwortlich war, wissen wir nicht und ist vermutlich auch irrelevant, oder?
aktueller Grundriss - Grafiken gemacht mit SweetHome3D hänge ich an.
Was gefällt besonders? Warum? - Das große Esszimmer und das große Wohnzimmer - das gefällt uns grundsätzlich ist aber ggf. für unsere aktuellen Bedarfe nicht optimal geschnitten bzw. "Platzverschwendung".
- Eher quadratische Räume, in der aktuellen Mietwohnung haben wir eher "Schläuche".
- Ebenerdiges Wohnen bis auf 2 Räume im Keller
Was gefällt nicht? Warum?:
- Gefühlt zu wenig Räume. Uns fehlen etwas die Ideen, dies zu verbessern.
- Es gibt aktuell eine Badewanne und eine kleine Dusche von 80x80 - der Klassiker: Duschtasse und Glastüren. Wir hätten hier gerne eine Badewanne (ggf. im Gäste-WC) und eine ebenerdige Dusche fürs Alter mit mind. 90er-Breite.
Preisschätzung laut Architekt/Planer: ?
Persönliches Preislimit fürs Haus, inkl. Ausstattung: Es wird innerhalb der Familie verkauft und der Preis ist entsprechend "gut". Ein Limit haben wir uns zunächst nicht gesetzt, wir möchten zunächst in Erfahrung bringen, was man daraus ohne große "faule Kompromisse" machen kann.
favorisierte Heiztechnik: aktuell sind Wandheizkörper unter den Fenstern ohne Heiznische. Es muss noch geklärt werden, ob eine Fußbodenheizung möglich ist. Falls ja, wäre das wahrscheinlich die gewählte Heiztechnik, aber ist aktuell noch nicht sicher.
Wenn Ihr verzichten müsst, auf welche Details/Ausbauten
-könnt Ihr verzichten: Idealerweise auf nichts - am ehesten auf eine offene Küche mit Kochinsel 🙂
-könnt Ihr nicht verzichten: ?
Warum ist der Entwurf so geworden, wie er jetzt ist?
Aktuell ist es einfach der Ist-Zustand. Daran weiter gearbeitet haben wir nicht. Wir führen im folgenden einfach mal unsere "Gedanken" auf und hoffen, dass dies zunächst reicht und hilft.
Der Plan und die Bemaßungen entstanden auf Basis des ursprünglichen Grundrissen und händischer Vermessung in den vergangenen Tagen. Es muss also im Detail nicht exakt so sein. Aber es sollte für die notwendigen Planungen/Ideen ausreichend genau sein. Wenn Euch etwas fehlt, dann sagt bitte Bescheid - wird dann nachgeliefert.
Der Grundriss sieht wie folgt aus:

1 - aktuelle Küche (Blickwinkel meiner Beschreibungen ist vom Fenster in den Raum)
4 - aktuelle Diele mit Zugang zum Garten (Schiebetür und Glasfront entlang der gesamte Seite)
5 - aktuelles Gäste-WC (Blickwinkel meiner Beschreibung ist von der Tür in den Raum)
7 - Hauptbad (Blickwinkel meiner Beschreibung ist von der Tür in den Raum)
Aktuelle Wasseranschlüsse lassen wir zunächst weg, da laut Aussage des aktuellen Besitzers fast alles durch Verlegung von Rohren an der Kellerdecke möglich ist (mal mit mehr, mal mit weniger Aufwand).
Folgende Ideen haben wir bisher - reicht die textuelle Beschreibung? Falls nein, zeichnen wir es in den Plan ein:
Variante 1:
Raum 1 und 2 werden miteinander verbunden. An der Wand wo aktuell Backofen, Kühlschrank etc. sind, kommt eine große und lange Arbeitsfläche bis in Raum 2 gehend. Das Kochfeld kommt im rechten Winkel ans "Ende" der Arbeitsfläche und läuft auf die Fensterseite zu (also als klassisches "L"). Rest von Raum 2 bleibt Esszimmer.
Raum 3 bleibt grundsätzlich das Wohnzimmer.
Raum 4 wird vom Flur abgetrennt und dort könnte das Arbeitszimmer/Abstellkammer seinen Platz finden: Problem hierbei, das ist der einzige Zugang zum Garten. Da dadurch im Sommer kein ruhiges Arbeiten möglich ist, müsste ein weiterer Zugang in Raum 3 gebaut werden. Alleiniger Zugang in Raum 3 erscheint nicht optimal, da man dann mit Gartenabfällen etc. durch das Wohnzimmer müsste.
Zusätzlich Frage: Der bisher große und offene Eingangsbereich könnte dadurch sehr klein und drückend wirken - man würde dann auf eine Wand von Raum 4 schauen. Und es fehlt die Möglichkeit einer Garderobe.
Raum 5 bekommt anstatt Waschmaschine und Wäschetrockner eine Badewanne.
Raum 6 wird Kinderzimmer
Raum 7: Das Waschbecken kommt auf die linke Seite, das WC bleibt wo es ist, an der rechten Seite wird die Dusche etwas breiter (falls das vom Raumgefühl und der "Bewegungsfreiheit" sinnvoll möglich ist) und auch etwas länger.
Raum 8 wird Schlafzimmer
Variante 2:
Raum 1 wird zum HomeOffice mit Abstellkammer-Anteil.
Raum 2 wird zum Wohnzimmer: "Problem" hierbei ist, dass der Raum für ein Wohnzimmer nicht gerade breit ist bzgl. Abstand Sofa - Sofatisch - TV an der Wand. Ggf. kann man etwas von Raum 1 zusätzlich wegnehmen - falls sinnvoll.
Raum 3 wird zur Küche mit Esszimmer (ggf. Zugang zum Garten, aber kein Muss). Hier fehlt uns eine Idee zur perfekten Aufteilung in "Küche" und "Esszimmer".
Raum 4 bleibt als große Diele erhalten.
Raum 5 bis 8 wie in Variante 1.
Es gäbe theoretisch noch einen Kellerraum, der als Abstellkammer und Speisekammer dienen könnte. Wäre ein Notlösung, weil das natürlich wenig komfortabel ist, dafür immer in den Keller zu müssen. Ebenfalls gibt es einen Kellerraum (das oben genannte ehemalige Kinderzimmer), der ausreichend groß ist für ein Arbeitszimmer mit Abstellkammer. Aber sollte es ein weiteres Kind geben, wird der Raum als Schlafzimmer benötigt und oben besteht dann ohne erneute Umbauten keine Möglichkeit für ein Arbeitszimmer mit Abstellkammer. Deshalb würden wir davon absehen. Hat jemand von Euch aber Ideen für diese Räume, dann liefern wir deren Grundrisse gerne nach.
Wir hoffen, dass unsere Ausführungen verständlich sind und auch unsere angedachten Varianten zumindest erahnen lassen, worauf wir mit unseren Ideen herausmöchten. Diese Ideen sind aber laienhaft und spontan gekommen - hier kann gerne vieles über den Haufen geworfen werden.
Vielen Dank im Voraus.
bevor ich das Anliegen weiter erläutere, hier der ausgefüllte Fragenkatalog:
Bebauungsplan/Einschränkungen
Größe des Grundstücks: Könnte ich in Erfahrung bringen, aber ist glaube ich für die Grundrissplanung irrelevant, oder?
Hang: nein
Grundflächenzahl: Könnte ich in Erfahrung bringen, aber ist glaube ich für die Grundrissplanung irrelevant, oder?
Geschossflächenzahl: Könnte ich in Erfahrung bringen, aber ist glaube ich für die Grundrissplanung irrelevant, oder?
Baufenster, Baulinie und -grenze: ?
Randbebauung: ?
Anzahl Stellplatz: Durch uns nutzbar: 1 Stellplatz vorm Haus
Geschossigkeit: EG, OG plus Keller - Durch uns nutzbar: EG und anteilig Keller
Dachform -
Stilrichtung: ?
Ausrichtung: ?
Maximale Höhen/Begrenzungen: ?
weitere Vorgaben: ?
Anforderungen der Bauherren
Stilrichtung, Dachform, Gebäudetyp - Zweifamilienhaus mit 2 Wohneinheiten, eigene Kellerräume und Gemeinschaftskeller. Für uns relevant: EG
Keller, Geschosse: Keller, EG, OG. Durch uns nutzbar: EG und anteilig Keller
Anzahl der Personen, Alter: 2 Erwachsene Mitte 30, 1 Baby - perspektivisch ggf. 1 weiteres Kind
Raumbedarf im EG und Keller: Aktuell: Küche (ggf. inkl. Esszimmer), Bad, Gäste-WC, 1 Schlafzimmer, 1 Kinderzimmer, 1 Arbeitszimmer, Abstellflächen (ggf. als Teil des Arbeitszimmers), Wohnzimmer (ggf. inkl. Esszimmer) - perspektivisch ggf. zweites Kinderzimmer (im Keller ist ein größerer Raum, welcher in der Vergangenheit schon mal ein Kinderzimmer war. Entweder könnte es dort wieder hin oder das Elternschlafzimmer wandert dort hin).
Büro: Familiennutzung oder Homeoffice? - Homeoffice (ggf. mit Abstellflächen) - es wird nur Platz für einen schreibtisch 140*80 und ein Bürostuhl benötigt.
Schlafgäste pro Jahr - selten
offene oder geschlossene Architektur - Gerne offene Küche mit Esszimmer oder Blick ins Esszimmer/Wohnzimmer. Aber es sollte idealerweise die Möglichkeit geben, die Küche beim Kochen von den restlichen Räumen zu trennen.
konservativ oder moderne Bauweise: gerne modern
offene Küche, Kochinsel: offene Küche - siehe oben, Kochinsel - gerne
Anzahl Essplätze: 4-6, Tendenz 6, wenn mal Gäste zu Besuch sind.
Kamin: Nein
Musik/Stereowand: Nein
Balkon, Dachterrasse: Terrasse
Garage, Carport: Stellplatz
Nutzgarten, Treibhaus: Garten
weitere Wünsche/Besonderheiten/Tagesablauf, gern auch Begründungen, warum dieses oder das nicht sein soll:
- Wir hätten gerne ein ausreichend großes Esszimmer/Wohnzimmer in dem auch das Kind später spielen kann. Herausforderung hierbei ist: Der Spielbereich sollte nicht mitten im Weg sein, so sehr stören, dass man ständig drüber stolpert.
- Obwohl das Haus eigentlich über große Räume (aus unserer Sicht und basierend auf unserer aktuellen Mietwohnung) verfügt, gibt es keine wirkliche Möglichkeit für eine "Abstellkammer" der üblichen Dinge wie Bügelbrett, Staubsauger etc., wenn man diese nicht immer aus dem Keller holen möchte. Hier wäre es schön, wenn sich hier eine Lösung finden ließe, ggf. auch durch Einbauschränke im Flur oder der Diele.
Hausentwurf
Von wem stammt die Planung: Das Haus wurde nach dem Bau (ehemals Bungalow) mehrfach baulich verändert (weiteres Stockwerk, Veränderung des Grundriss etc.), wer ursprünglich dafür verantwortlich war, wissen wir nicht und ist vermutlich auch irrelevant, oder?
aktueller Grundriss - Grafiken gemacht mit SweetHome3D hänge ich an.
Was gefällt besonders? Warum? - Das große Esszimmer und das große Wohnzimmer - das gefällt uns grundsätzlich ist aber ggf. für unsere aktuellen Bedarfe nicht optimal geschnitten bzw. "Platzverschwendung".
- Eher quadratische Räume, in der aktuellen Mietwohnung haben wir eher "Schläuche".
- Ebenerdiges Wohnen bis auf 2 Räume im Keller
Was gefällt nicht? Warum?:
- Gefühlt zu wenig Räume. Uns fehlen etwas die Ideen, dies zu verbessern.
- Es gibt aktuell eine Badewanne und eine kleine Dusche von 80x80 - der Klassiker: Duschtasse und Glastüren. Wir hätten hier gerne eine Badewanne (ggf. im Gäste-WC) und eine ebenerdige Dusche fürs Alter mit mind. 90er-Breite.
Preisschätzung laut Architekt/Planer: ?
Persönliches Preislimit fürs Haus, inkl. Ausstattung: Es wird innerhalb der Familie verkauft und der Preis ist entsprechend "gut". Ein Limit haben wir uns zunächst nicht gesetzt, wir möchten zunächst in Erfahrung bringen, was man daraus ohne große "faule Kompromisse" machen kann.
favorisierte Heiztechnik: aktuell sind Wandheizkörper unter den Fenstern ohne Heiznische. Es muss noch geklärt werden, ob eine Fußbodenheizung möglich ist. Falls ja, wäre das wahrscheinlich die gewählte Heiztechnik, aber ist aktuell noch nicht sicher.
Wenn Ihr verzichten müsst, auf welche Details/Ausbauten
-könnt Ihr verzichten: Idealerweise auf nichts - am ehesten auf eine offene Küche mit Kochinsel 🙂
-könnt Ihr nicht verzichten: ?
Warum ist der Entwurf so geworden, wie er jetzt ist?
Aktuell ist es einfach der Ist-Zustand. Daran weiter gearbeitet haben wir nicht. Wir führen im folgenden einfach mal unsere "Gedanken" auf und hoffen, dass dies zunächst reicht und hilft.
Der Plan und die Bemaßungen entstanden auf Basis des ursprünglichen Grundrissen und händischer Vermessung in den vergangenen Tagen. Es muss also im Detail nicht exakt so sein. Aber es sollte für die notwendigen Planungen/Ideen ausreichend genau sein. Wenn Euch etwas fehlt, dann sagt bitte Bescheid - wird dann nachgeliefert.
Der Grundriss sieht wie folgt aus:
1 - aktuelle Küche (Blickwinkel meiner Beschreibungen ist vom Fenster in den Raum)
- Aktuell ist auf der linken Seite der Herd und die Spülmaschine.
- Aktuell ist "oben" eine Schrankreihe mit Backofen, Mikrowelle und Kühlschrank
- Aktuell ist "unten" an den Fenster eine Arbeitsplatte. Aber die Fenster sind so niedrig, dass eine "ergonomische Arbeitshöhe" nicht möglich ist - das ist für uns so eigentlich keine Option mehr.
- Durchbruch zur Küche ist möglich über die bisherige Tür hinaus.
- Zwischen Esszimmer und Wohnzimmer ist aktuell eine damals moderne und klassische "Zieharmonika-Tür" verbaut.
4 - aktuelle Diele mit Zugang zum Garten (Schiebetür und Glasfront entlang der gesamte Seite)
5 - aktuelles Gäste-WC (Blickwinkel meiner Beschreibung ist von der Tür in den Raum)
- Aktuell ist oben das Waschbecken
- Aktuell ist rechts eine Toilette
- Aktuell ist links eine Waschmaschine und ein Wäschetrockner (wird nicht mehr benötigt, diese sollen zunächst in den Keller wandern)
7 - Hauptbad (Blickwinkel meiner Beschreibung ist von der Tür in den Raum)
- Aktuell ist links erst ein kleiner Schrank und danach eine Badewanne (vor bzw. unter dem Fenster)
- Aktuell ist geradeaus das WC
- Aktuell ist rechts erst ein Waschbecken und dann die Dusche
Aktuelle Wasseranschlüsse lassen wir zunächst weg, da laut Aussage des aktuellen Besitzers fast alles durch Verlegung von Rohren an der Kellerdecke möglich ist (mal mit mehr, mal mit weniger Aufwand).
Folgende Ideen haben wir bisher - reicht die textuelle Beschreibung? Falls nein, zeichnen wir es in den Plan ein:
Variante 1:
Raum 1 und 2 werden miteinander verbunden. An der Wand wo aktuell Backofen, Kühlschrank etc. sind, kommt eine große und lange Arbeitsfläche bis in Raum 2 gehend. Das Kochfeld kommt im rechten Winkel ans "Ende" der Arbeitsfläche und läuft auf die Fensterseite zu (also als klassisches "L"). Rest von Raum 2 bleibt Esszimmer.
Raum 3 bleibt grundsätzlich das Wohnzimmer.
Raum 4 wird vom Flur abgetrennt und dort könnte das Arbeitszimmer/Abstellkammer seinen Platz finden: Problem hierbei, das ist der einzige Zugang zum Garten. Da dadurch im Sommer kein ruhiges Arbeiten möglich ist, müsste ein weiterer Zugang in Raum 3 gebaut werden. Alleiniger Zugang in Raum 3 erscheint nicht optimal, da man dann mit Gartenabfällen etc. durch das Wohnzimmer müsste.
Zusätzlich Frage: Der bisher große und offene Eingangsbereich könnte dadurch sehr klein und drückend wirken - man würde dann auf eine Wand von Raum 4 schauen. Und es fehlt die Möglichkeit einer Garderobe.
Raum 5 bekommt anstatt Waschmaschine und Wäschetrockner eine Badewanne.
Raum 6 wird Kinderzimmer
Raum 7: Das Waschbecken kommt auf die linke Seite, das WC bleibt wo es ist, an der rechten Seite wird die Dusche etwas breiter (falls das vom Raumgefühl und der "Bewegungsfreiheit" sinnvoll möglich ist) und auch etwas länger.
Raum 8 wird Schlafzimmer
Variante 2:
Raum 1 wird zum HomeOffice mit Abstellkammer-Anteil.
Raum 2 wird zum Wohnzimmer: "Problem" hierbei ist, dass der Raum für ein Wohnzimmer nicht gerade breit ist bzgl. Abstand Sofa - Sofatisch - TV an der Wand. Ggf. kann man etwas von Raum 1 zusätzlich wegnehmen - falls sinnvoll.
Raum 3 wird zur Küche mit Esszimmer (ggf. Zugang zum Garten, aber kein Muss). Hier fehlt uns eine Idee zur perfekten Aufteilung in "Küche" und "Esszimmer".
Raum 4 bleibt als große Diele erhalten.
Raum 5 bis 8 wie in Variante 1.
Es gäbe theoretisch noch einen Kellerraum, der als Abstellkammer und Speisekammer dienen könnte. Wäre ein Notlösung, weil das natürlich wenig komfortabel ist, dafür immer in den Keller zu müssen. Ebenfalls gibt es einen Kellerraum (das oben genannte ehemalige Kinderzimmer), der ausreichend groß ist für ein Arbeitszimmer mit Abstellkammer. Aber sollte es ein weiteres Kind geben, wird der Raum als Schlafzimmer benötigt und oben besteht dann ohne erneute Umbauten keine Möglichkeit für ein Arbeitszimmer mit Abstellkammer. Deshalb würden wir davon absehen. Hat jemand von Euch aber Ideen für diese Räume, dann liefern wir deren Grundrisse gerne nach.
Wir hoffen, dass unsere Ausführungen verständlich sind und auch unsere angedachten Varianten zumindest erahnen lassen, worauf wir mit unseren Ideen herausmöchten. Diese Ideen sind aber laienhaft und spontan gekommen - hier kann gerne vieles über den Haufen geworfen werden.
Vielen Dank im Voraus.
G
GalileoNRW07.12.23 11:51kbt09 schrieb:
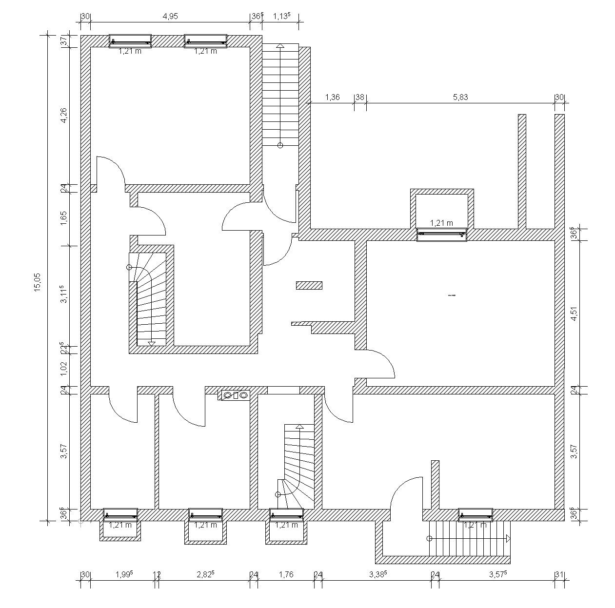
Mir fällt an der ganzen Konstellation als erstes auf .... wo sollen Fahrräder, Gartenzeugs etc. hin? Kellerzugang für euren Teil nur durch die Wohnung - oder?Auf was ihr alles achtet - nicht schlecht 🙂Der vom Keller hochgeladene Grundriss ist der ursprüngliche Grundriss. Ich hänge den aktuellen Ist-Zustand an, dort sieht man, dass es inzwischen weitere Zugänge zum Keller gibt.
Einen Zugang von außerhalb in den Garten gibt's nicht (unabhängig von der Konstellation). Unsere Fahrräder und "Gartenzeugs" müssen also in den Keller/Garten (ggf. in einen entsprechenden Schuppen).
G
GalileoNRW19.03.24 19:48Es hat (leider) etwas länger gedauert.
Die originalen Pläne hatte ich ja noch im Dezember hochgeladen. Gibt's hierzu noch Fragen?
Ansonsten hier weitere Daten:
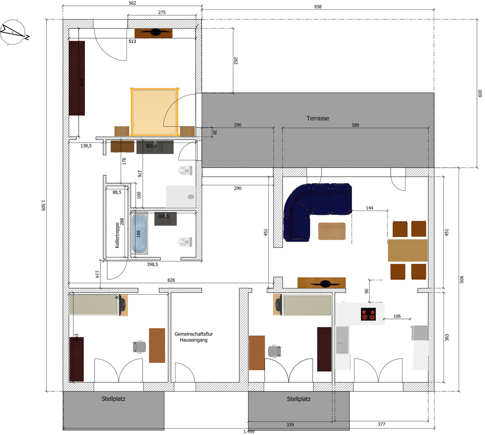
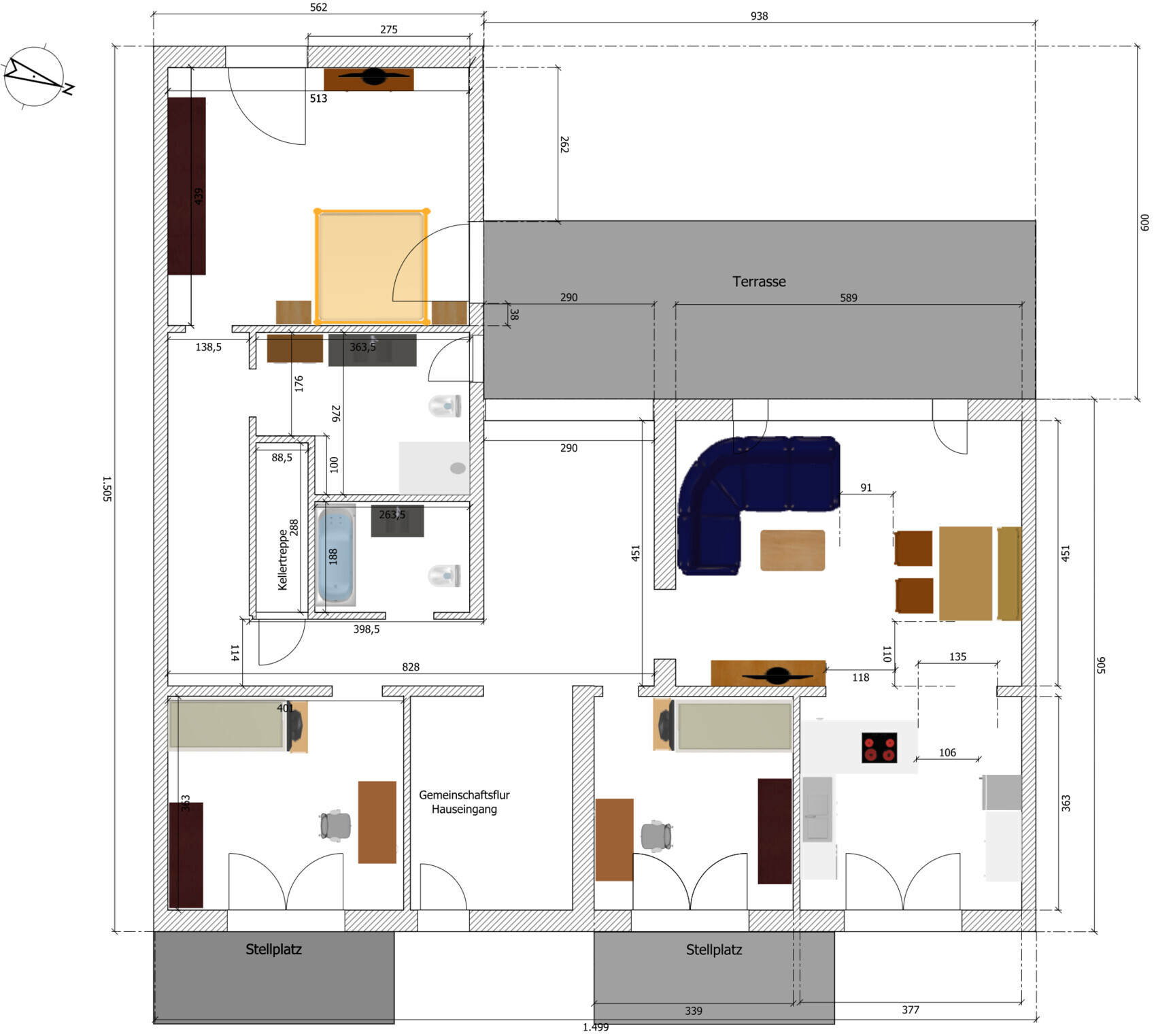
Wohnfläche sind ca. 122 qm.
Ansonsten hänge ich einfach mal unsere Ideen für die Raumaufteilung und die Platzierung der möbel eingezeichnet in die Pläne an. Die von mir in SweetHome3D verwendeten Maße sind die aus dem originalen Plan "angepasst" an die Realität inkl. der Ungenauigkeiten durch Fliesen, Putz etc.
Im Plan habe ich auch grob die Stellplätze sowie die Terrasse eingezeichnet. Ebenfalls ist ein Kompass zur Orientierung wo Norden ist eingezeichnet.
Ich habe, anders als im Ausgansbeitrag, es nun so gemacht, dass auf der "Wohnebene EG" ein Elternschlafzimmer sowie zwei Kinderzimmer (eines davon etwas kleiner als das andere) sind. Hierdurch ergibt sich ein Raum, in dem Wohn- und Esszimmer gemeinsam untergebracht werden muss. Hier bin ich mir unsicher, ob das so "wohnlich" und "praktikabel" ist. Hier habe ich mal die möglichen Durchgangsbreiten eingezeichnet. Bei der Küche habe ich einfach "irgendwas" eingezeichnet, da ich da noch keine wirkliche Vorstellung habe. Im "langen Flur links von unten nach oben laufend" planen wir ggf. Einbauschränke zu platzieren. Diese habe ich allerdings bisher nicht eingezeichnet. Der Zugang zur Terrasse ist aktuell weiterhin in der großen Diele angedacht (dort ist er jetzt bereits). Kann aber, wenn aus Eurer Sicht sinnvoll, auch geändert werden. Ebenso die Fenster im Wohnzimmer, weil das linke Fenster mit dem Sofa kollidieren wird/kann.
Im Folgenden drei Pläne mit Bitte um Feedback und Anregungen - falls mehr Details benötigt werden, bitte gerne Bescheid geben. Danke.
Plan 1 - Wohn/Esszimmer mit Stühlen und Sitzbank

Plan 2 - Wohn/Esszimmer mit Stühlen

Plan 3 - wie Plan 1 nur mit einer anderen Variation der Badezimmer

Wie gesagt, ich hoffe die weiteren Angaben helfen. Falls nicht, liefere ich weitere Infos nach.
Der Plan ist vermutlich "nicht schön, aber selten" - sorry an dieser Stelle. Ich bin bei so etwas eher talentfrei beim Zeichnen und auch ideenlos bei der Planung.
Die originalen Pläne hatte ich ja noch im Dezember hochgeladen. Gibt's hierzu noch Fragen?
Ansonsten hier weitere Daten:
Wohnfläche sind ca. 122 qm.
Ansonsten hänge ich einfach mal unsere Ideen für die Raumaufteilung und die Platzierung der möbel eingezeichnet in die Pläne an. Die von mir in SweetHome3D verwendeten Maße sind die aus dem originalen Plan "angepasst" an die Realität inkl. der Ungenauigkeiten durch Fliesen, Putz etc.
Im Plan habe ich auch grob die Stellplätze sowie die Terrasse eingezeichnet. Ebenfalls ist ein Kompass zur Orientierung wo Norden ist eingezeichnet.
Ich habe, anders als im Ausgansbeitrag, es nun so gemacht, dass auf der "Wohnebene EG" ein Elternschlafzimmer sowie zwei Kinderzimmer (eines davon etwas kleiner als das andere) sind. Hierdurch ergibt sich ein Raum, in dem Wohn- und Esszimmer gemeinsam untergebracht werden muss. Hier bin ich mir unsicher, ob das so "wohnlich" und "praktikabel" ist. Hier habe ich mal die möglichen Durchgangsbreiten eingezeichnet. Bei der Küche habe ich einfach "irgendwas" eingezeichnet, da ich da noch keine wirkliche Vorstellung habe. Im "langen Flur links von unten nach oben laufend" planen wir ggf. Einbauschränke zu platzieren. Diese habe ich allerdings bisher nicht eingezeichnet. Der Zugang zur Terrasse ist aktuell weiterhin in der großen Diele angedacht (dort ist er jetzt bereits). Kann aber, wenn aus Eurer Sicht sinnvoll, auch geändert werden. Ebenso die Fenster im Wohnzimmer, weil das linke Fenster mit dem Sofa kollidieren wird/kann.
Im Folgenden drei Pläne mit Bitte um Feedback und Anregungen - falls mehr Details benötigt werden, bitte gerne Bescheid geben. Danke.
Plan 1 - Wohn/Esszimmer mit Stühlen und Sitzbank
Plan 2 - Wohn/Esszimmer mit Stühlen
Plan 3 - wie Plan 1 nur mit einer anderen Variation der Badezimmer
Wie gesagt, ich hoffe die weiteren Angaben helfen. Falls nicht, liefere ich weitere Infos nach.
Der Plan ist vermutlich "nicht schön, aber selten" - sorry an dieser Stelle. Ich bin bei so etwas eher talentfrei beim Zeichnen und auch ideenlos bei der Planung.
GalileoNRW schrieb:
Der Plan ist vermutlich "nicht schönSo ist es. Allerdings ist nicht nur die Software (kann man das überhaupt von diesem Sch* Programm sagen?) „nicht schön“ , sondern empfinde ich die Idee, die Küche ins hintere Eck, ein Kinderzimmer ohne Zonierung in den Lärmpegel und den Chillbereich in den Eingang des Allraums zu setzen, nicht gerade überlegt.GalileoNRW schrieb:
was man daraus ohne große "faule Kompromisse" machen kann.Ich habe bei Deinen Ideen im Eingangspost an faule Kompromisse gedacht und muss es auch jetzt.Ich finde ja schon das Haus an sich (viel Keller, wenig Wohnfläche) als fauler Kompromiss, nur weil es günstig abgegeben wird.
Es ist in meinen Augen ein verbauter Bungalow, wo man sich wenig entfalten kann.
Wie ist denn Eure Budgetplanung bei diesem Haus?
Ich persönlich mag ja Herausforderungen, und wenn man etwas weniger an Grundfläche zur Verfügung hat, dann kann man dennoch etwas draus machen.
Doch dann würde ich, wenn eh schon aufwändig saniert werden muss wegen der EE-Gesetze etc, dann entkerne ich das Nötigste und ordne Neu. Ich würde nicht stopfen. Euch ist bewusst, dass einiges gemacht werden muss? Damit meine ich nicht die Dusche ohne Wandveränderung von 80 auf 90 zu bringen oder das Küchenfenster auf Aabeitsplatten-Höhe zu bringen - ich denke, das sind die geringsten Probleme und nimmt man so mit.
Erste Idee: Treppe in den Keller hin wohnlich öffnen, ggf sogar gerade in die Kellerbar hinein, planunteren Keller abgrenzen und den planoberen Anbau des Kellers in Wohnraumqualität sanieren, inkl. Fenster mit Ausblick. Kellerbar könnte Schlafzimmer, Waschkeller Bad werden.
Diese Möglichkeit im Hinterkopf entspannt das EG etwas. Zonierung Privat und Leben wäre möglich. Hauswirtschaftsraum im EG wäre auch noch drin.
Als erstes würde ich grob zonieren, eher ohne Wände, ggf später dann vorhandene Wände mit einbeziehen: Eingang -> Garderobe -> Küche und Lebensraum mit Terrasse
-> Privaträume, dazwischen AB und Hauswirtschaftsraum.
Ich frage mich, ob Ihr überhaupt eine Sanierung einplant? Und was ist bei Verkauf/Trennung mit dem Brandschutz? Da sind ja Kellerräume, die in den anderen Bereich reinragen würden, oder? Über welchen Zugang werden die Dachgeschossler den Keller betreten?
G
GalileoNRW19.03.24 22:15Danke für deine ausführliche Antwort.
Eine Sanierung ist nur insofern geplant, dass wir gerne unsere "Wünsche" umgesetzt hätten.
Die Fenster sind aus 2016 mit Isolierglas 3-Fach. Die Rohre für Wasser/Heizung sind aus 2004 in Kupfer. Die Elektrik wurde auch fortlaufend modernisiert.
Darauf basierend haben wir keine große Sanierung geplant und deshalb auch die Grundrisse nicht angepasst, sondern versucht aus dem was vorhanden ist, halbwegs etwas nutzbares zu machen.
Aber ich höre raus, dass der Grundriss, so wie er ist aktuell eher "hoffnungslos" ist und wir gut beraten wären, da etwas zu machen, weil es so einfach "nicht gut" ist?
Die "Dachgeschossler" kommen über eine Treppe im "Gemeinschaftsflur" in den Keller.
Was bedeutet "Kinderzimmer ohne Zonierung in den Lärmpegel"? Vor dem Haus verläuft keine Straße die "befahren" wird oder so, falls das mit "Lärmpegel" gemeint ist. Das ist eine schmale Zufahrt für 3 weitere Häuser. Und was ist eine Zonierung? Sorry für die ggf. blöden Fragen, aber das sagt mir alles nichts.
Was ist mit "Chillbereich in den Eingang des Allraums" gemeint? Der aktuell vorhandene Raum in der Diele?
ypg schrieb:Sowohl zwischen Keller und EG sowie EG und OG ist es Stahlbeton.
Ist das denn eine Holzdecke zwischen Keller und EG? Eher nicht, oder? Eher Stahlbeton?!
ypg schrieb:
Ich frage mich, ob Ihr überhaupt eine Sanierung einplant? Und was ist bei Verkauf/Trennung mit dem Brandschutz? Da sind ja Kellerräume, die in den anderen Bereich reinragen würden, oder? Über welchen Zugang werden die Dachgeschossler den Keller betreten?
Eine Sanierung ist nur insofern geplant, dass wir gerne unsere "Wünsche" umgesetzt hätten.
Die Fenster sind aus 2016 mit Isolierglas 3-Fach. Die Rohre für Wasser/Heizung sind aus 2004 in Kupfer. Die Elektrik wurde auch fortlaufend modernisiert.
Darauf basierend haben wir keine große Sanierung geplant und deshalb auch die Grundrisse nicht angepasst, sondern versucht aus dem was vorhanden ist, halbwegs etwas nutzbares zu machen.
Aber ich höre raus, dass der Grundriss, so wie er ist aktuell eher "hoffnungslos" ist und wir gut beraten wären, da etwas zu machen, weil es so einfach "nicht gut" ist?
Die "Dachgeschossler" kommen über eine Treppe im "Gemeinschaftsflur" in den Keller.
ypg schrieb:Sorry, hier komme ich mit den ganzen Begrifflichkeiten leider nicht mit.
sondern empfinde ich die Idee, die Küche ins hintere Eck, ein Kinderzimmer ohne Zonierung in den Lärmpegel und den Chillbereich in den Eingang des Allraums zu setzen, nicht gerade überlegt.
Was bedeutet "Kinderzimmer ohne Zonierung in den Lärmpegel"? Vor dem Haus verläuft keine Straße die "befahren" wird oder so, falls das mit "Lärmpegel" gemeint ist. Das ist eine schmale Zufahrt für 3 weitere Häuser. Und was ist eine Zonierung? Sorry für die ggf. blöden Fragen, aber das sagt mir alles nichts.
Was ist mit "Chillbereich in den Eingang des Allraums" gemeint? Der aktuell vorhandene Raum in der Diele?
Ähnliche Themen