G
GalileoNRW06.12.23 23:50Hallo zusammen,
bevor ich das Anliegen weiter erläutere, hier der ausgefüllte Fragenkatalog:
Bebauungsplan/Einschränkungen
Größe des Grundstücks: Könnte ich in Erfahrung bringen, aber ist glaube ich für die Grundrissplanung irrelevant, oder?
Hang: nein
Grundflächenzahl: Könnte ich in Erfahrung bringen, aber ist glaube ich für die Grundrissplanung irrelevant, oder?
Geschossflächenzahl: Könnte ich in Erfahrung bringen, aber ist glaube ich für die Grundrissplanung irrelevant, oder?
Baufenster, Baulinie und -grenze: ?
Randbebauung: ?
Anzahl Stellplatz: Durch uns nutzbar: 1 Stellplatz vorm Haus
Geschossigkeit: EG, OG plus Keller - Durch uns nutzbar: EG und anteilig Keller
Dachform -
Stilrichtung: ?
Ausrichtung: ?
Maximale Höhen/Begrenzungen: ?
weitere Vorgaben: ?
Anforderungen der Bauherren
Stilrichtung, Dachform, Gebäudetyp - Zweifamilienhaus mit 2 Wohneinheiten, eigene Kellerräume und Gemeinschaftskeller. Für uns relevant: EG
Keller, Geschosse: Keller, EG, OG. Durch uns nutzbar: EG und anteilig Keller
Anzahl der Personen, Alter: 2 Erwachsene Mitte 30, 1 Baby - perspektivisch ggf. 1 weiteres Kind
Raumbedarf im EG und Keller: Aktuell: Küche (ggf. inkl. Esszimmer), Bad, Gäste-WC, 1 Schlafzimmer, 1 Kinderzimmer, 1 Arbeitszimmer, Abstellflächen (ggf. als Teil des Arbeitszimmers), Wohnzimmer (ggf. inkl. Esszimmer) - perspektivisch ggf. zweites Kinderzimmer (im Keller ist ein größerer Raum, welcher in der Vergangenheit schon mal ein Kinderzimmer war. Entweder könnte es dort wieder hin oder das Elternschlafzimmer wandert dort hin).
Büro: Familiennutzung oder Homeoffice? - Homeoffice (ggf. mit Abstellflächen) - es wird nur Platz für einen schreibtisch 140*80 und ein Bürostuhl benötigt.
Schlafgäste pro Jahr - selten
offene oder geschlossene Architektur - Gerne offene Küche mit Esszimmer oder Blick ins Esszimmer/Wohnzimmer. Aber es sollte idealerweise die Möglichkeit geben, die Küche beim Kochen von den restlichen Räumen zu trennen.
konservativ oder moderne Bauweise: gerne modern
offene Küche, Kochinsel: offene Küche - siehe oben, Kochinsel - gerne
Anzahl Essplätze: 4-6, Tendenz 6, wenn mal Gäste zu Besuch sind.
Kamin: Nein
Musik/Stereowand: Nein
Balkon, Dachterrasse: Terrasse
Garage, Carport: Stellplatz
Nutzgarten, Treibhaus: Garten
weitere Wünsche/Besonderheiten/Tagesablauf, gern auch Begründungen, warum dieses oder das nicht sein soll:
- Wir hätten gerne ein ausreichend großes Esszimmer/Wohnzimmer in dem auch das Kind später spielen kann. Herausforderung hierbei ist: Der Spielbereich sollte nicht mitten im Weg sein, so sehr stören, dass man ständig drüber stolpert.
- Obwohl das Haus eigentlich über große Räume (aus unserer Sicht und basierend auf unserer aktuellen Mietwohnung) verfügt, gibt es keine wirkliche Möglichkeit für eine "Abstellkammer" der üblichen Dinge wie Bügelbrett, Staubsauger etc., wenn man diese nicht immer aus dem Keller holen möchte. Hier wäre es schön, wenn sich hier eine Lösung finden ließe, ggf. auch durch Einbauschränke im Flur oder der Diele.
Hausentwurf
Von wem stammt die Planung: Das Haus wurde nach dem Bau (ehemals Bungalow) mehrfach baulich verändert (weiteres Stockwerk, Veränderung des Grundriss etc.), wer ursprünglich dafür verantwortlich war, wissen wir nicht und ist vermutlich auch irrelevant, oder?
aktueller Grundriss - Grafiken gemacht mit SweetHome3D hänge ich an.
Was gefällt besonders? Warum? - Das große Esszimmer und das große Wohnzimmer - das gefällt uns grundsätzlich ist aber ggf. für unsere aktuellen Bedarfe nicht optimal geschnitten bzw. "Platzverschwendung".
- Eher quadratische Räume, in der aktuellen Mietwohnung haben wir eher "Schläuche".
- Ebenerdiges Wohnen bis auf 2 Räume im Keller
Was gefällt nicht? Warum?:
- Gefühlt zu wenig Räume. Uns fehlen etwas die Ideen, dies zu verbessern.
- Es gibt aktuell eine Badewanne und eine kleine Dusche von 80x80 - der Klassiker: Duschtasse und Glastüren. Wir hätten hier gerne eine Badewanne (ggf. im Gäste-WC) und eine ebenerdige Dusche fürs Alter mit mind. 90er-Breite.
Preisschätzung laut Architekt/Planer: ?
Persönliches Preislimit fürs Haus, inkl. Ausstattung: Es wird innerhalb der Familie verkauft und der Preis ist entsprechend "gut". Ein Limit haben wir uns zunächst nicht gesetzt, wir möchten zunächst in Erfahrung bringen, was man daraus ohne große "faule Kompromisse" machen kann.
favorisierte Heiztechnik: aktuell sind Wandheizkörper unter den Fenstern ohne Heiznische. Es muss noch geklärt werden, ob eine Fußbodenheizung möglich ist. Falls ja, wäre das wahrscheinlich die gewählte Heiztechnik, aber ist aktuell noch nicht sicher.
Wenn Ihr verzichten müsst, auf welche Details/Ausbauten
-könnt Ihr verzichten: Idealerweise auf nichts - am ehesten auf eine offene Küche mit Kochinsel 🙂
-könnt Ihr nicht verzichten: ?
Warum ist der Entwurf so geworden, wie er jetzt ist?
Aktuell ist es einfach der Ist-Zustand. Daran weiter gearbeitet haben wir nicht. Wir führen im folgenden einfach mal unsere "Gedanken" auf und hoffen, dass dies zunächst reicht und hilft.
Der Plan und die Bemaßungen entstanden auf Basis des ursprünglichen Grundrissen und händischer Vermessung in den vergangenen Tagen. Es muss also im Detail nicht exakt so sein. Aber es sollte für die notwendigen Planungen/Ideen ausreichend genau sein. Wenn Euch etwas fehlt, dann sagt bitte Bescheid - wird dann nachgeliefert.
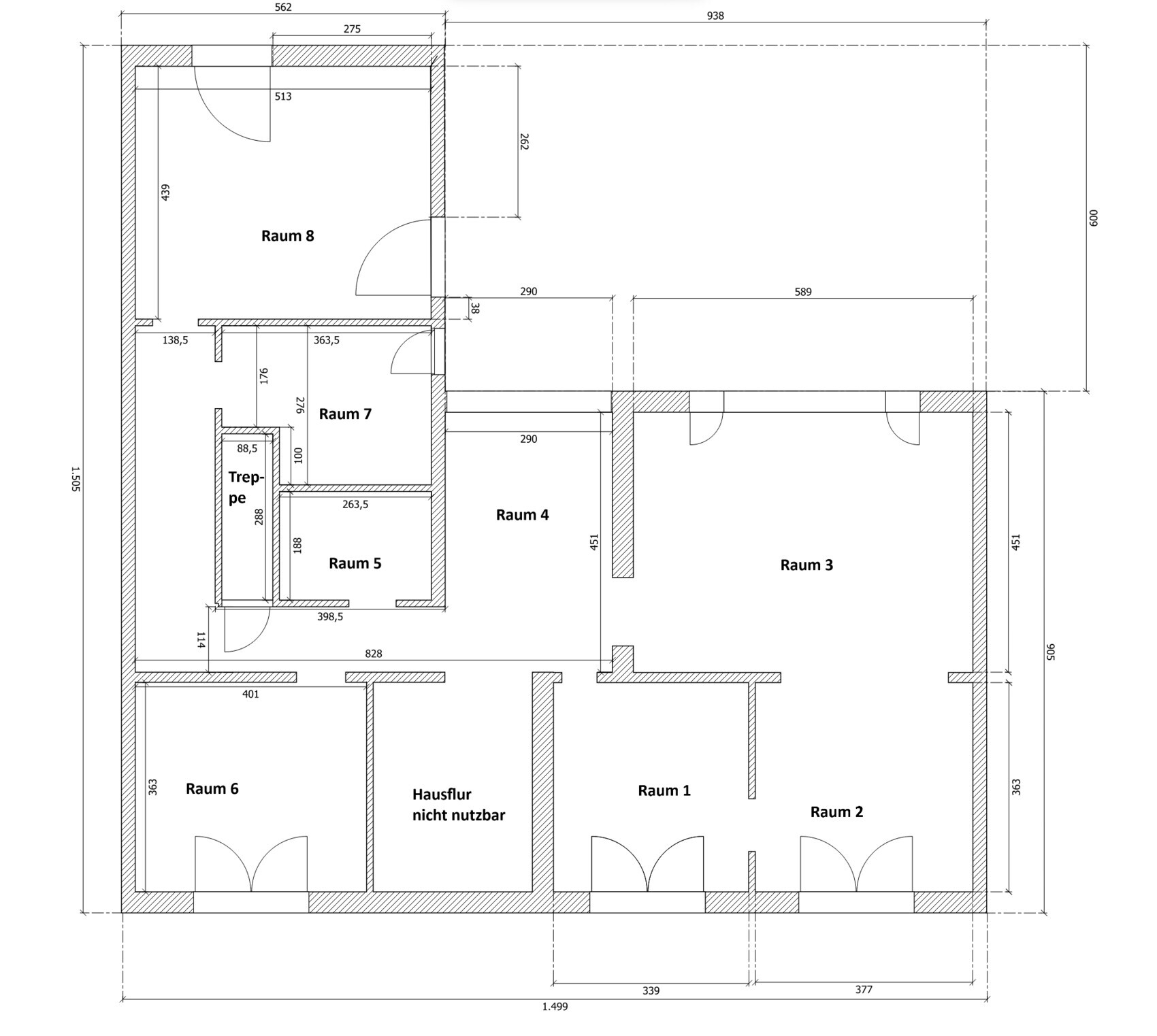
Der Grundriss sieht wie folgt aus:

1 - aktuelle Küche (Blickwinkel meiner Beschreibungen ist vom Fenster in den Raum)
4 - aktuelle Diele mit Zugang zum Garten (Schiebetür und Glasfront entlang der gesamte Seite)
5 - aktuelles Gäste-WC (Blickwinkel meiner Beschreibung ist von der Tür in den Raum)
7 - Hauptbad (Blickwinkel meiner Beschreibung ist von der Tür in den Raum)
Aktuelle Wasseranschlüsse lassen wir zunächst weg, da laut Aussage des aktuellen Besitzers fast alles durch Verlegung von Rohren an der Kellerdecke möglich ist (mal mit mehr, mal mit weniger Aufwand).
Folgende Ideen haben wir bisher - reicht die textuelle Beschreibung? Falls nein, zeichnen wir es in den Plan ein:
Variante 1:
Raum 1 und 2 werden miteinander verbunden. An der Wand wo aktuell Backofen, Kühlschrank etc. sind, kommt eine große und lange Arbeitsfläche bis in Raum 2 gehend. Das Kochfeld kommt im rechten Winkel ans "Ende" der Arbeitsfläche und läuft auf die Fensterseite zu (also als klassisches "L"). Rest von Raum 2 bleibt Esszimmer.
Raum 3 bleibt grundsätzlich das Wohnzimmer.
Raum 4 wird vom Flur abgetrennt und dort könnte das Arbeitszimmer/Abstellkammer seinen Platz finden: Problem hierbei, das ist der einzige Zugang zum Garten. Da dadurch im Sommer kein ruhiges Arbeiten möglich ist, müsste ein weiterer Zugang in Raum 3 gebaut werden. Alleiniger Zugang in Raum 3 erscheint nicht optimal, da man dann mit Gartenabfällen etc. durch das Wohnzimmer müsste.
Zusätzlich Frage: Der bisher große und offene Eingangsbereich könnte dadurch sehr klein und drückend wirken - man würde dann auf eine Wand von Raum 4 schauen. Und es fehlt die Möglichkeit einer Garderobe.
Raum 5 bekommt anstatt Waschmaschine und Wäschetrockner eine Badewanne.
Raum 6 wird Kinderzimmer
Raum 7: Das Waschbecken kommt auf die linke Seite, das WC bleibt wo es ist, an der rechten Seite wird die Dusche etwas breiter (falls das vom Raumgefühl und der "Bewegungsfreiheit" sinnvoll möglich ist) und auch etwas länger.
Raum 8 wird Schlafzimmer
Variante 2:
Raum 1 wird zum HomeOffice mit Abstellkammer-Anteil.
Raum 2 wird zum Wohnzimmer: "Problem" hierbei ist, dass der Raum für ein Wohnzimmer nicht gerade breit ist bzgl. Abstand Sofa - Sofatisch - TV an der Wand. Ggf. kann man etwas von Raum 1 zusätzlich wegnehmen - falls sinnvoll.
Raum 3 wird zur Küche mit Esszimmer (ggf. Zugang zum Garten, aber kein Muss). Hier fehlt uns eine Idee zur perfekten Aufteilung in "Küche" und "Esszimmer".
Raum 4 bleibt als große Diele erhalten.
Raum 5 bis 8 wie in Variante 1.
Es gäbe theoretisch noch einen Kellerraum, der als Abstellkammer und Speisekammer dienen könnte. Wäre ein Notlösung, weil das natürlich wenig komfortabel ist, dafür immer in den Keller zu müssen. Ebenfalls gibt es einen Kellerraum (das oben genannte ehemalige Kinderzimmer), der ausreichend groß ist für ein Arbeitszimmer mit Abstellkammer. Aber sollte es ein weiteres Kind geben, wird der Raum als Schlafzimmer benötigt und oben besteht dann ohne erneute Umbauten keine Möglichkeit für ein Arbeitszimmer mit Abstellkammer. Deshalb würden wir davon absehen. Hat jemand von Euch aber Ideen für diese Räume, dann liefern wir deren Grundrisse gerne nach.
Wir hoffen, dass unsere Ausführungen verständlich sind und auch unsere angedachten Varianten zumindest erahnen lassen, worauf wir mit unseren Ideen herausmöchten. Diese Ideen sind aber laienhaft und spontan gekommen - hier kann gerne vieles über den Haufen geworfen werden.
Vielen Dank im Voraus.
bevor ich das Anliegen weiter erläutere, hier der ausgefüllte Fragenkatalog:
Bebauungsplan/Einschränkungen
Größe des Grundstücks: Könnte ich in Erfahrung bringen, aber ist glaube ich für die Grundrissplanung irrelevant, oder?
Hang: nein
Grundflächenzahl: Könnte ich in Erfahrung bringen, aber ist glaube ich für die Grundrissplanung irrelevant, oder?
Geschossflächenzahl: Könnte ich in Erfahrung bringen, aber ist glaube ich für die Grundrissplanung irrelevant, oder?
Baufenster, Baulinie und -grenze: ?
Randbebauung: ?
Anzahl Stellplatz: Durch uns nutzbar: 1 Stellplatz vorm Haus
Geschossigkeit: EG, OG plus Keller - Durch uns nutzbar: EG und anteilig Keller
Dachform -
Stilrichtung: ?
Ausrichtung: ?
Maximale Höhen/Begrenzungen: ?
weitere Vorgaben: ?
Anforderungen der Bauherren
Stilrichtung, Dachform, Gebäudetyp - Zweifamilienhaus mit 2 Wohneinheiten, eigene Kellerräume und Gemeinschaftskeller. Für uns relevant: EG
Keller, Geschosse: Keller, EG, OG. Durch uns nutzbar: EG und anteilig Keller
Anzahl der Personen, Alter: 2 Erwachsene Mitte 30, 1 Baby - perspektivisch ggf. 1 weiteres Kind
Raumbedarf im EG und Keller: Aktuell: Küche (ggf. inkl. Esszimmer), Bad, Gäste-WC, 1 Schlafzimmer, 1 Kinderzimmer, 1 Arbeitszimmer, Abstellflächen (ggf. als Teil des Arbeitszimmers), Wohnzimmer (ggf. inkl. Esszimmer) - perspektivisch ggf. zweites Kinderzimmer (im Keller ist ein größerer Raum, welcher in der Vergangenheit schon mal ein Kinderzimmer war. Entweder könnte es dort wieder hin oder das Elternschlafzimmer wandert dort hin).
Büro: Familiennutzung oder Homeoffice? - Homeoffice (ggf. mit Abstellflächen) - es wird nur Platz für einen schreibtisch 140*80 und ein Bürostuhl benötigt.
Schlafgäste pro Jahr - selten
offene oder geschlossene Architektur - Gerne offene Küche mit Esszimmer oder Blick ins Esszimmer/Wohnzimmer. Aber es sollte idealerweise die Möglichkeit geben, die Küche beim Kochen von den restlichen Räumen zu trennen.
konservativ oder moderne Bauweise: gerne modern
offene Küche, Kochinsel: offene Küche - siehe oben, Kochinsel - gerne
Anzahl Essplätze: 4-6, Tendenz 6, wenn mal Gäste zu Besuch sind.
Kamin: Nein
Musik/Stereowand: Nein
Balkon, Dachterrasse: Terrasse
Garage, Carport: Stellplatz
Nutzgarten, Treibhaus: Garten
weitere Wünsche/Besonderheiten/Tagesablauf, gern auch Begründungen, warum dieses oder das nicht sein soll:
- Wir hätten gerne ein ausreichend großes Esszimmer/Wohnzimmer in dem auch das Kind später spielen kann. Herausforderung hierbei ist: Der Spielbereich sollte nicht mitten im Weg sein, so sehr stören, dass man ständig drüber stolpert.
- Obwohl das Haus eigentlich über große Räume (aus unserer Sicht und basierend auf unserer aktuellen Mietwohnung) verfügt, gibt es keine wirkliche Möglichkeit für eine "Abstellkammer" der üblichen Dinge wie Bügelbrett, Staubsauger etc., wenn man diese nicht immer aus dem Keller holen möchte. Hier wäre es schön, wenn sich hier eine Lösung finden ließe, ggf. auch durch Einbauschränke im Flur oder der Diele.
Hausentwurf
Von wem stammt die Planung: Das Haus wurde nach dem Bau (ehemals Bungalow) mehrfach baulich verändert (weiteres Stockwerk, Veränderung des Grundriss etc.), wer ursprünglich dafür verantwortlich war, wissen wir nicht und ist vermutlich auch irrelevant, oder?
aktueller Grundriss - Grafiken gemacht mit SweetHome3D hänge ich an.
Was gefällt besonders? Warum? - Das große Esszimmer und das große Wohnzimmer - das gefällt uns grundsätzlich ist aber ggf. für unsere aktuellen Bedarfe nicht optimal geschnitten bzw. "Platzverschwendung".
- Eher quadratische Räume, in der aktuellen Mietwohnung haben wir eher "Schläuche".
- Ebenerdiges Wohnen bis auf 2 Räume im Keller
Was gefällt nicht? Warum?:
- Gefühlt zu wenig Räume. Uns fehlen etwas die Ideen, dies zu verbessern.
- Es gibt aktuell eine Badewanne und eine kleine Dusche von 80x80 - der Klassiker: Duschtasse und Glastüren. Wir hätten hier gerne eine Badewanne (ggf. im Gäste-WC) und eine ebenerdige Dusche fürs Alter mit mind. 90er-Breite.
Preisschätzung laut Architekt/Planer: ?
Persönliches Preislimit fürs Haus, inkl. Ausstattung: Es wird innerhalb der Familie verkauft und der Preis ist entsprechend "gut". Ein Limit haben wir uns zunächst nicht gesetzt, wir möchten zunächst in Erfahrung bringen, was man daraus ohne große "faule Kompromisse" machen kann.
favorisierte Heiztechnik: aktuell sind Wandheizkörper unter den Fenstern ohne Heiznische. Es muss noch geklärt werden, ob eine Fußbodenheizung möglich ist. Falls ja, wäre das wahrscheinlich die gewählte Heiztechnik, aber ist aktuell noch nicht sicher.
Wenn Ihr verzichten müsst, auf welche Details/Ausbauten
-könnt Ihr verzichten: Idealerweise auf nichts - am ehesten auf eine offene Küche mit Kochinsel 🙂
-könnt Ihr nicht verzichten: ?
Warum ist der Entwurf so geworden, wie er jetzt ist?
Aktuell ist es einfach der Ist-Zustand. Daran weiter gearbeitet haben wir nicht. Wir führen im folgenden einfach mal unsere "Gedanken" auf und hoffen, dass dies zunächst reicht und hilft.
Der Plan und die Bemaßungen entstanden auf Basis des ursprünglichen Grundrissen und händischer Vermessung in den vergangenen Tagen. Es muss also im Detail nicht exakt so sein. Aber es sollte für die notwendigen Planungen/Ideen ausreichend genau sein. Wenn Euch etwas fehlt, dann sagt bitte Bescheid - wird dann nachgeliefert.
Der Grundriss sieht wie folgt aus:
1 - aktuelle Küche (Blickwinkel meiner Beschreibungen ist vom Fenster in den Raum)
- Aktuell ist auf der linken Seite der Herd und die Spülmaschine.
- Aktuell ist "oben" eine Schrankreihe mit Backofen, Mikrowelle und Kühlschrank
- Aktuell ist "unten" an den Fenster eine Arbeitsplatte. Aber die Fenster sind so niedrig, dass eine "ergonomische Arbeitshöhe" nicht möglich ist - das ist für uns so eigentlich keine Option mehr.
- Durchbruch zur Küche ist möglich über die bisherige Tür hinaus.
- Zwischen Esszimmer und Wohnzimmer ist aktuell eine damals moderne und klassische "Zieharmonika-Tür" verbaut.
4 - aktuelle Diele mit Zugang zum Garten (Schiebetür und Glasfront entlang der gesamte Seite)
5 - aktuelles Gäste-WC (Blickwinkel meiner Beschreibung ist von der Tür in den Raum)
- Aktuell ist oben das Waschbecken
- Aktuell ist rechts eine Toilette
- Aktuell ist links eine Waschmaschine und ein Wäschetrockner (wird nicht mehr benötigt, diese sollen zunächst in den Keller wandern)
7 - Hauptbad (Blickwinkel meiner Beschreibung ist von der Tür in den Raum)
- Aktuell ist links erst ein kleiner Schrank und danach eine Badewanne (vor bzw. unter dem Fenster)
- Aktuell ist geradeaus das WC
- Aktuell ist rechts erst ein Waschbecken und dann die Dusche
Aktuelle Wasseranschlüsse lassen wir zunächst weg, da laut Aussage des aktuellen Besitzers fast alles durch Verlegung von Rohren an der Kellerdecke möglich ist (mal mit mehr, mal mit weniger Aufwand).
Folgende Ideen haben wir bisher - reicht die textuelle Beschreibung? Falls nein, zeichnen wir es in den Plan ein:
Variante 1:
Raum 1 und 2 werden miteinander verbunden. An der Wand wo aktuell Backofen, Kühlschrank etc. sind, kommt eine große und lange Arbeitsfläche bis in Raum 2 gehend. Das Kochfeld kommt im rechten Winkel ans "Ende" der Arbeitsfläche und läuft auf die Fensterseite zu (also als klassisches "L"). Rest von Raum 2 bleibt Esszimmer.
Raum 3 bleibt grundsätzlich das Wohnzimmer.
Raum 4 wird vom Flur abgetrennt und dort könnte das Arbeitszimmer/Abstellkammer seinen Platz finden: Problem hierbei, das ist der einzige Zugang zum Garten. Da dadurch im Sommer kein ruhiges Arbeiten möglich ist, müsste ein weiterer Zugang in Raum 3 gebaut werden. Alleiniger Zugang in Raum 3 erscheint nicht optimal, da man dann mit Gartenabfällen etc. durch das Wohnzimmer müsste.
Zusätzlich Frage: Der bisher große und offene Eingangsbereich könnte dadurch sehr klein und drückend wirken - man würde dann auf eine Wand von Raum 4 schauen. Und es fehlt die Möglichkeit einer Garderobe.
Raum 5 bekommt anstatt Waschmaschine und Wäschetrockner eine Badewanne.
Raum 6 wird Kinderzimmer
Raum 7: Das Waschbecken kommt auf die linke Seite, das WC bleibt wo es ist, an der rechten Seite wird die Dusche etwas breiter (falls das vom Raumgefühl und der "Bewegungsfreiheit" sinnvoll möglich ist) und auch etwas länger.
Raum 8 wird Schlafzimmer
Variante 2:
Raum 1 wird zum HomeOffice mit Abstellkammer-Anteil.
Raum 2 wird zum Wohnzimmer: "Problem" hierbei ist, dass der Raum für ein Wohnzimmer nicht gerade breit ist bzgl. Abstand Sofa - Sofatisch - TV an der Wand. Ggf. kann man etwas von Raum 1 zusätzlich wegnehmen - falls sinnvoll.
Raum 3 wird zur Küche mit Esszimmer (ggf. Zugang zum Garten, aber kein Muss). Hier fehlt uns eine Idee zur perfekten Aufteilung in "Küche" und "Esszimmer".
Raum 4 bleibt als große Diele erhalten.
Raum 5 bis 8 wie in Variante 1.
Es gäbe theoretisch noch einen Kellerraum, der als Abstellkammer und Speisekammer dienen könnte. Wäre ein Notlösung, weil das natürlich wenig komfortabel ist, dafür immer in den Keller zu müssen. Ebenfalls gibt es einen Kellerraum (das oben genannte ehemalige Kinderzimmer), der ausreichend groß ist für ein Arbeitszimmer mit Abstellkammer. Aber sollte es ein weiteres Kind geben, wird der Raum als Schlafzimmer benötigt und oben besteht dann ohne erneute Umbauten keine Möglichkeit für ein Arbeitszimmer mit Abstellkammer. Deshalb würden wir davon absehen. Hat jemand von Euch aber Ideen für diese Räume, dann liefern wir deren Grundrisse gerne nach.
Wir hoffen, dass unsere Ausführungen verständlich sind und auch unsere angedachten Varianten zumindest erahnen lassen, worauf wir mit unseren Ideen herausmöchten. Diese Ideen sind aber laienhaft und spontan gekommen - hier kann gerne vieles über den Haufen geworfen werden.
Vielen Dank im Voraus.
GalileoNRW schrieb:
für die Grundrissplanung irrelevant, oder?Vielleicht schreibst Du mal, um wieviel Qm es geht, wo die Terrasse ist, wo Norden und die Strasse ist… wo der Eingang und die Stellplätze sind. So ganz irrelevant ist nämlich das ein oder andere nicht.Und dann zeichne doch einfach mal alles maßstabsgetreu nach und möbliere es mit Euren Ideen: Abriss in gelb, Zumauern in rot… dann kann man sehen, ob einiges machbar ist. Denn das muss schon nachvollziehbar sein. Es sind ja Eure Ideen, die ihr eventuell durchführen wollt und keine Handlungsempfehlung oder Schulaufgabe für das Forum.
By the way finde ich es wichtig, wer das verkauft. Ist es der, der oben wohnt? Ist es der Eigentümer des ganzen Hauses oder ist es nur der Eigentümer der EG-Wohnung?
Liefer mal alles nach. Zudem sind die Original-Entwürfe wichtig für die Feststellung der tragenden Wände Und die Eigenschaft der Fenster.
Und wenn das OG auch vorliegt, dann her damit.
Ihr habt demnach das ältere Reihenhaus zu den Akten gelegt und nun etwas jüngeres gefunden (?)
Für einen Verdacht genügt mir die Zeichnung allerdings schon: daß es kein Reihenhaus, sondern ein Kettenhaus wäre (?)
https://www.instagram.com/11antgmxde/
https://www.linkedin.com/company/bauen-jetzt/
GalileoNRW schrieb:Bis zu dem Punkt mit dem Nachzeichnen fand ich die Einleitung noch gut :-(
aktueller Grundriss - Grafiken gemacht mit SweetHome3D hänge ich an.
GalileoNRW schrieb:Ob es des Fischers Frau war, die den Umbau wollte, ist in der Tat unwichtig. Aber Unterlagen (Bauakte !) sollte es zu Bau und Umbau(ten) noch geben. Grundrisse und mindestens ein Schnitt wären hilfreich.
Von wem stammt die Planung: Das Haus wurde nach dem Bau (ehemals Bungalow) mehrfach baulich verändert (weiteres Stockwerk, Veränderung des Grundriss etc.), wer ursprünglich dafür verantwortlich war, wissen wir nicht und ist vermutlich auch irrelevant, oder?
Für einen Verdacht genügt mir die Zeichnung allerdings schon: daß es kein Reihenhaus, sondern ein Kettenhaus wäre (?)
https://www.instagram.com/11antgmxde/
https://www.linkedin.com/company/bauen-jetzt/
G
GalileoNRW07.12.23 01:11Erst mal vielen Dank für Eure Antworten.



Zum restlichen Beitrag von @ypg schreibe ich später etwas.
11ant schrieb:Ja, genau. Vom älteren Reihenhaus haben wir die Finger gelassen. Das war uns in Summe bei dem aufgerufenen Preis tatsächlich zu teuer.
Ihr habt demnach das ältere Reihenhaus zu den Akten gelegt und nun etwas jüngeres gefunden (?)
ypg schrieb:Das jetzige Haus befindet sich bereits im Familienbesitz (in zweiter Generation, erste Generation verstorben). Dem aktuellen Besitzer gehört das gesamte Haus und das gesamte Grundstück. Das Haus wurde damals als Bungalow gebaut, dann kam das OG drauf und es wurde so aufgeteilt, dass EG und OG separat betreten werden können. Der jetzige Eigentümer bleibt nach Kauf/Verkauf im OG. Wir gehen ins EG.
By the way finde ich es wichtig, wer das verkauft. Ist es der, der oben wohnt? Ist es der Eigentümer des ganzen Hauses oder ist es nur der Eigentümer der EG-Wohnung?
11ant schrieb:Was genau meinst Du damit? Stehe etwas auf dem Schlauch.
Bis zu dem Punkt mit dem Nachzeichnen fand ich die Einleitung noch gut :-(
11ant schrieb:Musste kurz googlen 🙂 Ein Kettenhaus ist es nicht. Ob das offiziell ein Reihenhaus ist vom Fachbegriff her? Für mich als Laie schon. Das Haus auf folgendem Bild (Norden ist oben - aber ich mache noch einen Kompass in den SH3D-Entwurf), welches mit dem x markiert ist, ist das aktuelle Objekt. Es befindet sich in einer Stichstraße. Die Stellplätze sind direkt vorm Haus (parallel zum Haus, zeichne ich aber noch oben in den Plan wie gewünscht ein).
Für einen Verdacht genügt mir die Zeichnung allerdings schon: daß es kein Reihenhaus, sondern ein Kettenhaus wäre (?)
11ant schrieb:
Aber Unterlagen (Bauakte !) sollte es zu Bau und Umbau(ten) noch geben. Grundrisse und mindestens ein Schnitt wären hilfreich.
ypg schrieb:Ich lade die originale Grundrisse hoch. Ich habe den Keller und das EG. Das OG wurde später draufgesetzt. Den Grundriss habe ich aktuell nichts zur Hand.
Zudem sind die Original-Entwürfe wichtig für die Feststellung der tragenden Wände Und die Eigenschaft der Fenster.
Und wenn das OG auch vorliegt, dann her damit.
Zum restlichen Beitrag von @ypg schreibe ich später etwas.
G
GalileoNRW07.12.23 01:17GalileoNRW schrieb:
Wir gehen ins EG.und bekommen die auf dem originalen Plan (siehe oben) als Kellerbar und Öltank (nicht mehr vorhanden) bezeichnete Räume. Waschküche und Heizung werden allgemeine Räume. Der Rest gehört zum OG.GalileoNRW schrieb:
Das jetzige Haus befindet sich bereits im Familienbesitz (in zweiter Generation, erste Generation verstorben). Dem aktuellen Besitzer gehört das gesamte Haus und das gesamte Grundstück. Das Haus wurde damals als Bungalow gebaut, dann kam das OG drauf und es wurde so aufgeteilt, dass EG und OG separat betreten werden können. Der jetzige Eigentümer bleibt nach Kauf/Verkauf im OG. Wir gehen ins EG.Bei einem Fernsehkommissar hängt der schöne Spruch an der Wand: "mit Familie iß´ und lach´, aber nie Geschäfte mach´" ;-)GalileoNRW schrieb:
Was genau meinst Du damit? Stehe etwas auf dem Schlauch.Ich meine die typischen "Übertragungsfehler" beim Abmalen von Plänen.GalileoNRW schrieb:
Ein Kettenhaus ist es nicht. Ob das offiziell ein Reihenhaus ist vom Fachbegriff her?Ah ja, ein Kettenhaus ist es hier tatsächlich nicht, sondern der Begriff "Reihenhaus" paßt formell am ehesten. Allerdings ist es wohl insofern atypisch, wie es zwar beidseitig angebaut ist, aber nicht das mit dem Begriff klassisch assoziierte aneinandergesetzte Serienhaus.https://www.instagram.com/11antgmxde/
https://www.linkedin.com/company/bauen-jetzt/
Ähnliche Themen