Hallo zusammen,
bevor ich das Anliegen weiter erläutere, hier der ausgefüllte Fragenkatalog:
Bebauungsplan/Einschränkungen
Größe des Grundstücks: Könnte ich in Erfahrung bringen, aber ist glaube ich für die Grundrissplanung irrelevant, oder?
Hang: nein
Grundflächenzahl: Könnte ich in Erfahrung bringen, aber ist glaube ich für die Grundrissplanung irrelevant, oder?
Geschossflächenzahl: Könnte ich in Erfahrung bringen, aber ist glaube ich für die Grundrissplanung irrelevant, oder?
Baufenster, Baulinie und -grenze: ?
Randbebauung: ?
Anzahl Stellplatz: Durch uns nutzbar: 1 Stellplatz vorm Haus
Geschossigkeit: EG, OG plus Keller - Durch uns nutzbar: EG und anteilig Keller
Dachform -
Stilrichtung: ?
Ausrichtung: ?
Maximale Höhen/Begrenzungen: ?
weitere Vorgaben: ?
Anforderungen der Bauherren
Stilrichtung, Dachform, Gebäudetyp - Zweifamilienhaus mit 2 Wohneinheiten, eigene Kellerräume und Gemeinschaftskeller. Für uns relevant: EG
Keller, Geschosse: Keller, EG, OG. Durch uns nutzbar: EG und anteilig Keller
Anzahl der Personen, Alter: 2 Erwachsene Mitte 30, 1 Baby - perspektivisch ggf. 1 weiteres Kind
Raumbedarf im EG und Keller: Aktuell: Küche (ggf. inkl. Esszimmer), Bad, Gäste-WC, 1 Schlafzimmer, 1 Kinderzimmer, 1 Arbeitszimmer, Abstellflächen (ggf. als Teil des Arbeitszimmers), Wohnzimmer (ggf. inkl. Esszimmer) - perspektivisch ggf. zweites Kinderzimmer (im Keller ist ein größerer Raum, welcher in der Vergangenheit schon mal ein Kinderzimmer war. Entweder könnte es dort wieder hin oder das Elternschlafzimmer wandert dort hin).
Büro: Familiennutzung oder Homeoffice? - Homeoffice (ggf. mit Abstellflächen) - es wird nur Platz für einen schreibtisch 140*80 und ein Bürostuhl benötigt.
Schlafgäste pro Jahr - selten
offene oder geschlossene Architektur - Gerne offene Küche mit Esszimmer oder Blick ins Esszimmer/Wohnzimmer. Aber es sollte idealerweise die Möglichkeit geben, die Küche beim Kochen von den restlichen Räumen zu trennen.
konservativ oder moderne Bauweise: gerne modern
offene Küche, Kochinsel: offene Küche - siehe oben, Kochinsel - gerne
Anzahl Essplätze: 4-6, Tendenz 6, wenn mal Gäste zu Besuch sind.
Kamin: Nein
Musik/Stereowand: Nein
Balkon, Dachterrasse: Terrasse
Garage, Carport: Stellplatz
Nutzgarten, Treibhaus: Garten
weitere Wünsche/Besonderheiten/Tagesablauf, gern auch Begründungen, warum dieses oder das nicht sein soll:
- Wir hätten gerne ein ausreichend großes Esszimmer/Wohnzimmer in dem auch das Kind später spielen kann. Herausforderung hierbei ist: Der Spielbereich sollte nicht mitten im Weg sein, so sehr stören, dass man ständig drüber stolpert.
- Obwohl das Haus eigentlich über große Räume (aus unserer Sicht und basierend auf unserer aktuellen Mietwohnung) verfügt, gibt es keine wirkliche Möglichkeit für eine "Abstellkammer" der üblichen Dinge wie Bügelbrett, Staubsauger etc., wenn man diese nicht immer aus dem Keller holen möchte. Hier wäre es schön, wenn sich hier eine Lösung finden ließe, ggf. auch durch Einbauschränke im Flur oder der Diele.
Hausentwurf
Von wem stammt die Planung: Das Haus wurde nach dem Bau (ehemals Bungalow) mehrfach baulich verändert (weiteres Stockwerk, Veränderung des Grundriss etc.), wer ursprünglich dafür verantwortlich war, wissen wir nicht und ist vermutlich auch irrelevant, oder?
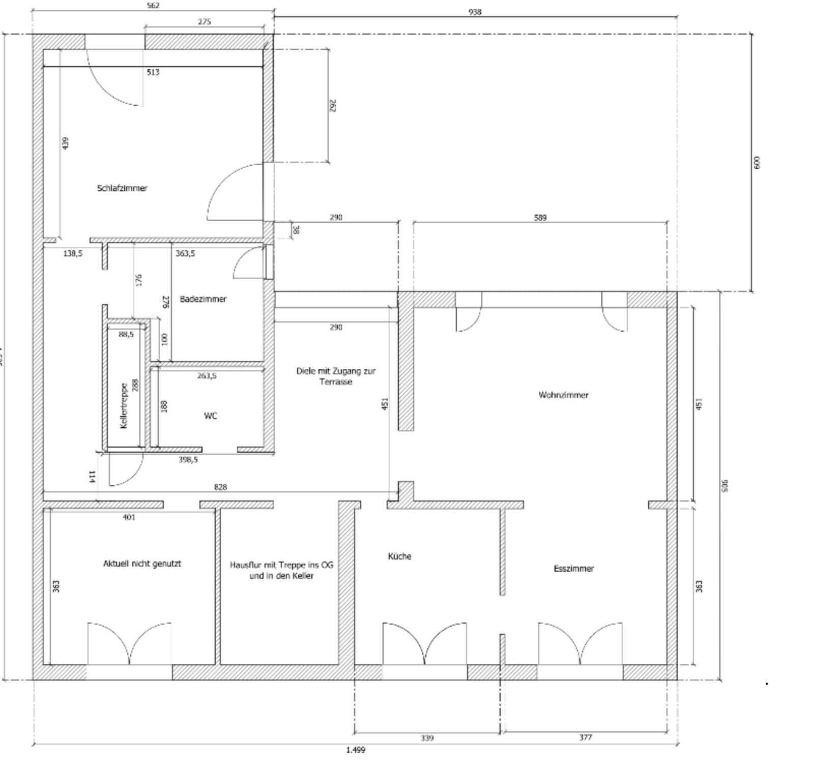
aktueller Grundriss - Grafiken gemacht mit SweetHome3D hänge ich an.
Was gefällt besonders? Warum? - Das große Esszimmer und das große Wohnzimmer - das gefällt uns grundsätzlich ist aber ggf. für unsere aktuellen Bedarfe nicht optimal geschnitten bzw. "Platzverschwendung".
- Eher quadratische Räume, in der aktuellen Mietwohnung haben wir eher "Schläuche".
- Ebenerdiges Wohnen bis auf 2 Räume im Keller
Was gefällt nicht? Warum?:
- Gefühlt zu wenig Räume. Uns fehlen etwas die Ideen, dies zu verbessern.
- Es gibt aktuell eine Badewanne und eine kleine Dusche von 80x80 - der Klassiker: Duschtasse und Glastüren. Wir hätten hier gerne eine Badewanne (ggf. im Gäste-WC) und eine ebenerdige Dusche fürs Alter mit mind. 90er-Breite.
Preisschätzung laut Architekt/Planer: ?
Persönliches Preislimit fürs Haus, inkl. Ausstattung: Es wird innerhalb der Familie verkauft und der Preis ist entsprechend "gut". Ein Limit haben wir uns zunächst nicht gesetzt, wir möchten zunächst in Erfahrung bringen, was man daraus ohne große "faule Kompromisse" machen kann.
favorisierte Heiztechnik: aktuell sind Wandheizkörper unter den Fenstern ohne Heiznische. Es muss noch geklärt werden, ob eine Fußbodenheizung möglich ist. Falls ja, wäre das wahrscheinlich die gewählte Heiztechnik, aber ist aktuell noch nicht sicher.
Wenn Ihr verzichten müsst, auf welche Details/Ausbauten
-könnt Ihr verzichten: Idealerweise auf nichts - am ehesten auf eine offene Küche mit Kochinsel 🙂
-könnt Ihr nicht verzichten: ?
Warum ist der Entwurf so geworden, wie er jetzt ist?
Aktuell ist es einfach der Ist-Zustand. Daran weiter gearbeitet haben wir nicht. Wir führen im folgenden einfach mal unsere "Gedanken" auf und hoffen, dass dies zunächst reicht und hilft.
Der Plan und die Bemaßungen entstanden auf Basis des ursprünglichen Grundrissen und händischer Vermessung in den vergangenen Tagen. Es muss also im Detail nicht exakt so sein. Aber es sollte für die notwendigen Planungen/Ideen ausreichend genau sein. Wenn Euch etwas fehlt, dann sagt bitte Bescheid - wird dann nachgeliefert.
Der Grundriss sieht wie folgt aus:

1 - aktuelle Küche (Blickwinkel meiner Beschreibungen ist vom Fenster in den Raum)
4 - aktuelle Diele mit Zugang zum Garten (Schiebetür und Glasfront entlang der gesamte Seite)
5 - aktuelles Gäste-WC (Blickwinkel meiner Beschreibung ist von der Tür in den Raum)
7 - Hauptbad (Blickwinkel meiner Beschreibung ist von der Tür in den Raum)
Aktuelle Wasseranschlüsse lassen wir zunächst weg, da laut Aussage des aktuellen Besitzers fast alles durch Verlegung von Rohren an der Kellerdecke möglich ist (mal mit mehr, mal mit weniger Aufwand).
Folgende Ideen haben wir bisher - reicht die textuelle Beschreibung? Falls nein, zeichnen wir es in den Plan ein:
Variante 1:
Raum 1 und 2 werden miteinander verbunden. An der Wand wo aktuell Backofen, Kühlschrank etc. sind, kommt eine große und lange Arbeitsfläche bis in Raum 2 gehend. Das Kochfeld kommt im rechten Winkel ans "Ende" der Arbeitsfläche und läuft auf die Fensterseite zu (also als klassisches "L"). Rest von Raum 2 bleibt Esszimmer.
Raum 3 bleibt grundsätzlich das Wohnzimmer.
Raum 4 wird vom Flur abgetrennt und dort könnte das Arbeitszimmer/Abstellkammer seinen Platz finden: Problem hierbei, das ist der einzige Zugang zum Garten. Da dadurch im Sommer kein ruhiges Arbeiten möglich ist, müsste ein weiterer Zugang in Raum 3 gebaut werden. Alleiniger Zugang in Raum 3 erscheint nicht optimal, da man dann mit Gartenabfällen etc. durch das Wohnzimmer müsste.
Zusätzlich Frage: Der bisher große und offene Eingangsbereich könnte dadurch sehr klein und drückend wirken - man würde dann auf eine Wand von Raum 4 schauen. Und es fehlt die Möglichkeit einer Garderobe.
Raum 5 bekommt anstatt Waschmaschine und Wäschetrockner eine Badewanne.
Raum 6 wird Kinderzimmer
Raum 7: Das Waschbecken kommt auf die linke Seite, das WC bleibt wo es ist, an der rechten Seite wird die Dusche etwas breiter (falls das vom Raumgefühl und der "Bewegungsfreiheit" sinnvoll möglich ist) und auch etwas länger.
Raum 8 wird Schlafzimmer
Variante 2:
Raum 1 wird zum HomeOffice mit Abstellkammer-Anteil.
Raum 2 wird zum Wohnzimmer: "Problem" hierbei ist, dass der Raum für ein Wohnzimmer nicht gerade breit ist bzgl. Abstand Sofa - Sofatisch - TV an der Wand. Ggf. kann man etwas von Raum 1 zusätzlich wegnehmen - falls sinnvoll.
Raum 3 wird zur Küche mit Esszimmer (ggf. Zugang zum Garten, aber kein Muss). Hier fehlt uns eine Idee zur perfekten Aufteilung in "Küche" und "Esszimmer".
Raum 4 bleibt als große Diele erhalten.
Raum 5 bis 8 wie in Variante 1.
Es gäbe theoretisch noch einen Kellerraum, der als Abstellkammer und Speisekammer dienen könnte. Wäre ein Notlösung, weil das natürlich wenig komfortabel ist, dafür immer in den Keller zu müssen. Ebenfalls gibt es einen Kellerraum (das oben genannte ehemalige Kinderzimmer), der ausreichend groß ist für ein Arbeitszimmer mit Abstellkammer. Aber sollte es ein weiteres Kind geben, wird der Raum als Schlafzimmer benötigt und oben besteht dann ohne erneute Umbauten keine Möglichkeit für ein Arbeitszimmer mit Abstellkammer. Deshalb würden wir davon absehen. Hat jemand von Euch aber Ideen für diese Räume, dann liefern wir deren Grundrisse gerne nach.
Wir hoffen, dass unsere Ausführungen verständlich sind und auch unsere angedachten Varianten zumindest erahnen lassen, worauf wir mit unseren Ideen herausmöchten. Diese Ideen sind aber laienhaft und spontan gekommen - hier kann gerne vieles über den Haufen geworfen werden.
Vielen Dank im Voraus.
bevor ich das Anliegen weiter erläutere, hier der ausgefüllte Fragenkatalog:
Bebauungsplan/Einschränkungen
Größe des Grundstücks: Könnte ich in Erfahrung bringen, aber ist glaube ich für die Grundrissplanung irrelevant, oder?
Hang: nein
Grundflächenzahl: Könnte ich in Erfahrung bringen, aber ist glaube ich für die Grundrissplanung irrelevant, oder?
Geschossflächenzahl: Könnte ich in Erfahrung bringen, aber ist glaube ich für die Grundrissplanung irrelevant, oder?
Baufenster, Baulinie und -grenze: ?
Randbebauung: ?
Anzahl Stellplatz: Durch uns nutzbar: 1 Stellplatz vorm Haus
Geschossigkeit: EG, OG plus Keller - Durch uns nutzbar: EG und anteilig Keller
Dachform -
Stilrichtung: ?
Ausrichtung: ?
Maximale Höhen/Begrenzungen: ?
weitere Vorgaben: ?
Anforderungen der Bauherren
Stilrichtung, Dachform, Gebäudetyp - Zweifamilienhaus mit 2 Wohneinheiten, eigene Kellerräume und Gemeinschaftskeller. Für uns relevant: EG
Keller, Geschosse: Keller, EG, OG. Durch uns nutzbar: EG und anteilig Keller
Anzahl der Personen, Alter: 2 Erwachsene Mitte 30, 1 Baby - perspektivisch ggf. 1 weiteres Kind
Raumbedarf im EG und Keller: Aktuell: Küche (ggf. inkl. Esszimmer), Bad, Gäste-WC, 1 Schlafzimmer, 1 Kinderzimmer, 1 Arbeitszimmer, Abstellflächen (ggf. als Teil des Arbeitszimmers), Wohnzimmer (ggf. inkl. Esszimmer) - perspektivisch ggf. zweites Kinderzimmer (im Keller ist ein größerer Raum, welcher in der Vergangenheit schon mal ein Kinderzimmer war. Entweder könnte es dort wieder hin oder das Elternschlafzimmer wandert dort hin).
Büro: Familiennutzung oder Homeoffice? - Homeoffice (ggf. mit Abstellflächen) - es wird nur Platz für einen schreibtisch 140*80 und ein Bürostuhl benötigt.
Schlafgäste pro Jahr - selten
offene oder geschlossene Architektur - Gerne offene Küche mit Esszimmer oder Blick ins Esszimmer/Wohnzimmer. Aber es sollte idealerweise die Möglichkeit geben, die Küche beim Kochen von den restlichen Räumen zu trennen.
konservativ oder moderne Bauweise: gerne modern
offene Küche, Kochinsel: offene Küche - siehe oben, Kochinsel - gerne
Anzahl Essplätze: 4-6, Tendenz 6, wenn mal Gäste zu Besuch sind.
Kamin: Nein
Musik/Stereowand: Nein
Balkon, Dachterrasse: Terrasse
Garage, Carport: Stellplatz
Nutzgarten, Treibhaus: Garten
weitere Wünsche/Besonderheiten/Tagesablauf, gern auch Begründungen, warum dieses oder das nicht sein soll:
- Wir hätten gerne ein ausreichend großes Esszimmer/Wohnzimmer in dem auch das Kind später spielen kann. Herausforderung hierbei ist: Der Spielbereich sollte nicht mitten im Weg sein, so sehr stören, dass man ständig drüber stolpert.
- Obwohl das Haus eigentlich über große Räume (aus unserer Sicht und basierend auf unserer aktuellen Mietwohnung) verfügt, gibt es keine wirkliche Möglichkeit für eine "Abstellkammer" der üblichen Dinge wie Bügelbrett, Staubsauger etc., wenn man diese nicht immer aus dem Keller holen möchte. Hier wäre es schön, wenn sich hier eine Lösung finden ließe, ggf. auch durch Einbauschränke im Flur oder der Diele.
Hausentwurf
Von wem stammt die Planung: Das Haus wurde nach dem Bau (ehemals Bungalow) mehrfach baulich verändert (weiteres Stockwerk, Veränderung des Grundriss etc.), wer ursprünglich dafür verantwortlich war, wissen wir nicht und ist vermutlich auch irrelevant, oder?
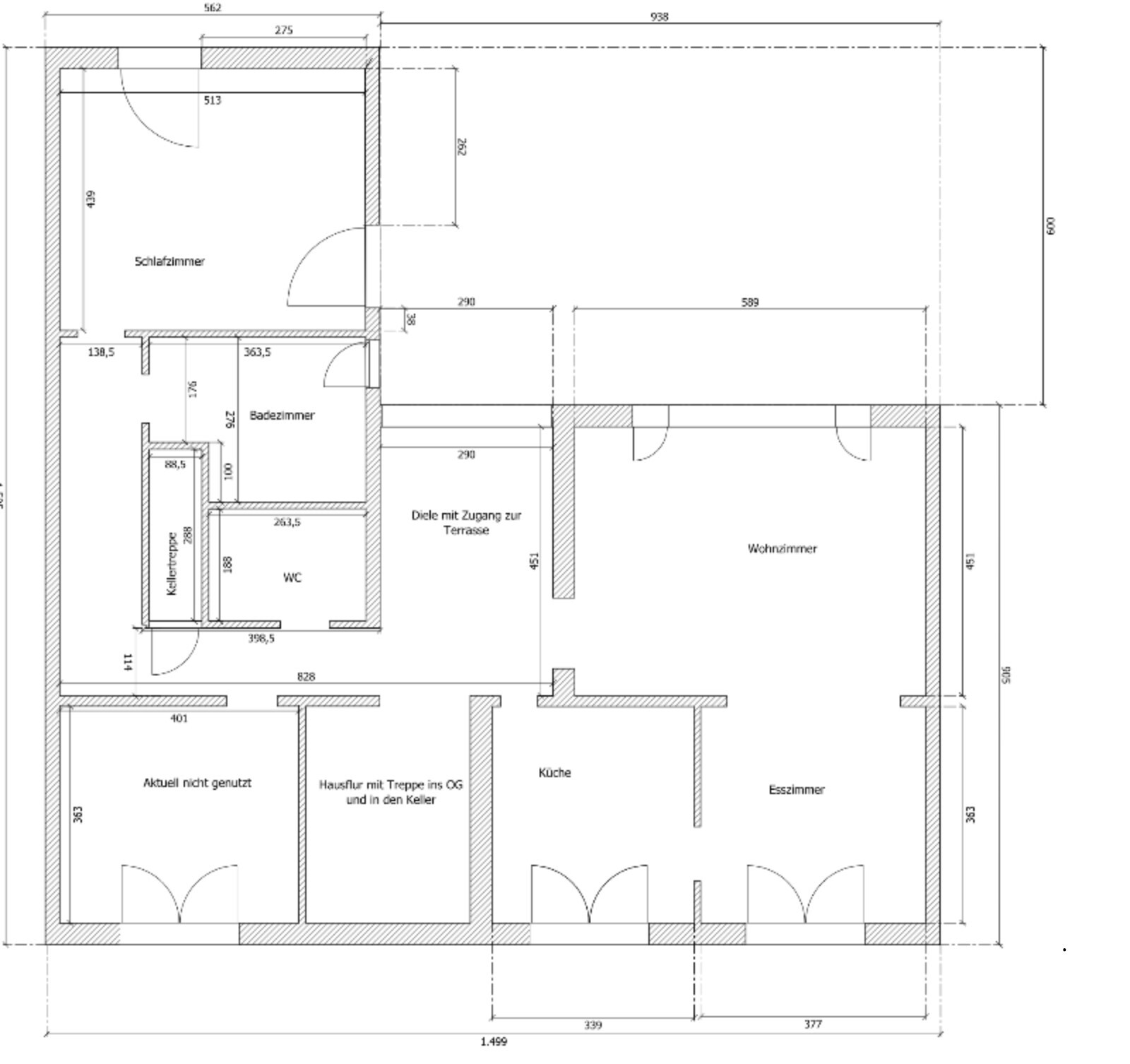
aktueller Grundriss - Grafiken gemacht mit SweetHome3D hänge ich an.
Was gefällt besonders? Warum? - Das große Esszimmer und das große Wohnzimmer - das gefällt uns grundsätzlich ist aber ggf. für unsere aktuellen Bedarfe nicht optimal geschnitten bzw. "Platzverschwendung".
- Eher quadratische Räume, in der aktuellen Mietwohnung haben wir eher "Schläuche".
- Ebenerdiges Wohnen bis auf 2 Räume im Keller
Was gefällt nicht? Warum?:
- Gefühlt zu wenig Räume. Uns fehlen etwas die Ideen, dies zu verbessern.
- Es gibt aktuell eine Badewanne und eine kleine Dusche von 80x80 - der Klassiker: Duschtasse und Glastüren. Wir hätten hier gerne eine Badewanne (ggf. im Gäste-WC) und eine ebenerdige Dusche fürs Alter mit mind. 90er-Breite.
Preisschätzung laut Architekt/Planer: ?
Persönliches Preislimit fürs Haus, inkl. Ausstattung: Es wird innerhalb der Familie verkauft und der Preis ist entsprechend "gut". Ein Limit haben wir uns zunächst nicht gesetzt, wir möchten zunächst in Erfahrung bringen, was man daraus ohne große "faule Kompromisse" machen kann.
favorisierte Heiztechnik: aktuell sind Wandheizkörper unter den Fenstern ohne Heiznische. Es muss noch geklärt werden, ob eine Fußbodenheizung möglich ist. Falls ja, wäre das wahrscheinlich die gewählte Heiztechnik, aber ist aktuell noch nicht sicher.
Wenn Ihr verzichten müsst, auf welche Details/Ausbauten
-könnt Ihr verzichten: Idealerweise auf nichts - am ehesten auf eine offene Küche mit Kochinsel 🙂
-könnt Ihr nicht verzichten: ?
Warum ist der Entwurf so geworden, wie er jetzt ist?
Aktuell ist es einfach der Ist-Zustand. Daran weiter gearbeitet haben wir nicht. Wir führen im folgenden einfach mal unsere "Gedanken" auf und hoffen, dass dies zunächst reicht und hilft.
Der Plan und die Bemaßungen entstanden auf Basis des ursprünglichen Grundrissen und händischer Vermessung in den vergangenen Tagen. Es muss also im Detail nicht exakt so sein. Aber es sollte für die notwendigen Planungen/Ideen ausreichend genau sein. Wenn Euch etwas fehlt, dann sagt bitte Bescheid - wird dann nachgeliefert.
Der Grundriss sieht wie folgt aus:
1 - aktuelle Küche (Blickwinkel meiner Beschreibungen ist vom Fenster in den Raum)
- Aktuell ist auf der linken Seite der Herd und die Spülmaschine.
- Aktuell ist "oben" eine Schrankreihe mit Backofen, Mikrowelle und Kühlschrank
- Aktuell ist "unten" an den Fenster eine Arbeitsplatte. Aber die Fenster sind so niedrig, dass eine "ergonomische Arbeitshöhe" nicht möglich ist - das ist für uns so eigentlich keine Option mehr.
- Durchbruch zur Küche ist möglich über die bisherige Tür hinaus.
- Zwischen Esszimmer und Wohnzimmer ist aktuell eine damals moderne und klassische "Zieharmonika-Tür" verbaut.
4 - aktuelle Diele mit Zugang zum Garten (Schiebetür und Glasfront entlang der gesamte Seite)
5 - aktuelles Gäste-WC (Blickwinkel meiner Beschreibung ist von der Tür in den Raum)
- Aktuell ist oben das Waschbecken
- Aktuell ist rechts eine Toilette
- Aktuell ist links eine Waschmaschine und ein Wäschetrockner (wird nicht mehr benötigt, diese sollen zunächst in den Keller wandern)
7 - Hauptbad (Blickwinkel meiner Beschreibung ist von der Tür in den Raum)
- Aktuell ist links erst ein kleiner Schrank und danach eine Badewanne (vor bzw. unter dem Fenster)
- Aktuell ist geradeaus das WC
- Aktuell ist rechts erst ein Waschbecken und dann die Dusche
Aktuelle Wasseranschlüsse lassen wir zunächst weg, da laut Aussage des aktuellen Besitzers fast alles durch Verlegung von Rohren an der Kellerdecke möglich ist (mal mit mehr, mal mit weniger Aufwand).
Folgende Ideen haben wir bisher - reicht die textuelle Beschreibung? Falls nein, zeichnen wir es in den Plan ein:
Variante 1:
Raum 1 und 2 werden miteinander verbunden. An der Wand wo aktuell Backofen, Kühlschrank etc. sind, kommt eine große und lange Arbeitsfläche bis in Raum 2 gehend. Das Kochfeld kommt im rechten Winkel ans "Ende" der Arbeitsfläche und läuft auf die Fensterseite zu (also als klassisches "L"). Rest von Raum 2 bleibt Esszimmer.
Raum 3 bleibt grundsätzlich das Wohnzimmer.
Raum 4 wird vom Flur abgetrennt und dort könnte das Arbeitszimmer/Abstellkammer seinen Platz finden: Problem hierbei, das ist der einzige Zugang zum Garten. Da dadurch im Sommer kein ruhiges Arbeiten möglich ist, müsste ein weiterer Zugang in Raum 3 gebaut werden. Alleiniger Zugang in Raum 3 erscheint nicht optimal, da man dann mit Gartenabfällen etc. durch das Wohnzimmer müsste.
Zusätzlich Frage: Der bisher große und offene Eingangsbereich könnte dadurch sehr klein und drückend wirken - man würde dann auf eine Wand von Raum 4 schauen. Und es fehlt die Möglichkeit einer Garderobe.
Raum 5 bekommt anstatt Waschmaschine und Wäschetrockner eine Badewanne.
Raum 6 wird Kinderzimmer
Raum 7: Das Waschbecken kommt auf die linke Seite, das WC bleibt wo es ist, an der rechten Seite wird die Dusche etwas breiter (falls das vom Raumgefühl und der "Bewegungsfreiheit" sinnvoll möglich ist) und auch etwas länger.
Raum 8 wird Schlafzimmer
Variante 2:
Raum 1 wird zum HomeOffice mit Abstellkammer-Anteil.
Raum 2 wird zum Wohnzimmer: "Problem" hierbei ist, dass der Raum für ein Wohnzimmer nicht gerade breit ist bzgl. Abstand Sofa - Sofatisch - TV an der Wand. Ggf. kann man etwas von Raum 1 zusätzlich wegnehmen - falls sinnvoll.
Raum 3 wird zur Küche mit Esszimmer (ggf. Zugang zum Garten, aber kein Muss). Hier fehlt uns eine Idee zur perfekten Aufteilung in "Küche" und "Esszimmer".
Raum 4 bleibt als große Diele erhalten.
Raum 5 bis 8 wie in Variante 1.
Es gäbe theoretisch noch einen Kellerraum, der als Abstellkammer und Speisekammer dienen könnte. Wäre ein Notlösung, weil das natürlich wenig komfortabel ist, dafür immer in den Keller zu müssen. Ebenfalls gibt es einen Kellerraum (das oben genannte ehemalige Kinderzimmer), der ausreichend groß ist für ein Arbeitszimmer mit Abstellkammer. Aber sollte es ein weiteres Kind geben, wird der Raum als Schlafzimmer benötigt und oben besteht dann ohne erneute Umbauten keine Möglichkeit für ein Arbeitszimmer mit Abstellkammer. Deshalb würden wir davon absehen. Hat jemand von Euch aber Ideen für diese Räume, dann liefern wir deren Grundrisse gerne nach.
Wir hoffen, dass unsere Ausführungen verständlich sind und auch unsere angedachten Varianten zumindest erahnen lassen, worauf wir mit unseren Ideen herausmöchten. Diese Ideen sind aber laienhaft und spontan gekommen - hier kann gerne vieles über den Haufen geworfen werden.
Vielen Dank im Voraus.
G
GalileoNRW20.03.24 11:11Danke, ich werde mir das mal anschauen.
GalileoNRW schrieb:
Zugegeben... Meine bisherigen Beiträge können schlecht davon überzeugen, dass ich vorher schon einige andere "Grundriss"-Themen gelesen habe. Leider fehlt mir bei so etwas komplett das Talent. Ich bekomme es nicht hin, diese Ideen zu übertragenMich konntest Du bisher noch nicht einmal davon überzeugen, daß Du die Wirklichkeit Deines Gebäudes überhaupt erfassen (und auf Übereinstimmung mit Zeichnungen prüfen) kannst. Ich erkenne noch nicht einmal klar, ob Deine Eigenzeichnungen auf einem Ursprungs- oder "Stand nach Veränderung" Releasestand der professionellen Bauzeichnungen aufbauen. Wenn eine andere Laienplanungs-Software angenehmer lesbare Darstellungen ermöglicht, dann heilt das diesen wesentlichen Mangel nicht im geringsten !Höre (besser gestern als heute) auf, diesen Umbau ohne einen Architekten zu planen.
https://www.instagram.com/11antgmxde/
https://www.linkedin.com/company/bauen-jetzt/
G
GalileoNRW20.03.24 16:33Danke für die offene Kritik (ernst gemeint, keine Ironie).
Meine Eigenzeichnung basiert auf dem Ursprungsplan, den ich hier ebenfalls hochgeladen habe. Das Gebäude wurde damals größtenteils in Eigenleistung gebaut. Dementsprechend habe ich die Räume nochmals vermessen, um zu erkennen, ob irgendwo vom ursprünglichen Plan abgewichen worden ist. Die mit der Zeit erfolgten Umbauten habe ich ebenfalls vermessen, da hierzu keine Zeichnungen existieren. Diese drei "Grundlagen" habe ich in meiner Eigenzeichnung berücksichtigt, so wie ich das in meinem gestrigen Beitrag beschrieben habe.
Meine Eigenzeichnung basiert auf dem Ursprungsplan, den ich hier ebenfalls hochgeladen habe. Das Gebäude wurde damals größtenteils in Eigenleistung gebaut. Dementsprechend habe ich die Räume nochmals vermessen, um zu erkennen, ob irgendwo vom ursprünglichen Plan abgewichen worden ist. Die mit der Zeit erfolgten Umbauten habe ich ebenfalls vermessen, da hierzu keine Zeichnungen existieren. Diese drei "Grundlagen" habe ich in meiner Eigenzeichnung berücksichtigt, so wie ich das in meinem gestrigen Beitrag beschrieben habe.
G
GalileoNRW20.03.24 18:33Hier nochmal der Versuch, die damalige Pläne und die aktuellen Pläne sortiert aufzulisten:
Originale Pläne aus 1975
EG

Keller

Heutiger Stand nach den Umbauten
Hier gibt's keinen offiziellen Plan, deshalb ist hier die eigene Zeichnung in vereinfachter Form entstanden (ohne Treppen im und außerhalb des Gebäudes, aber textuell gekennzeichnet)
EG

Keller
Die Nutzung der Räume ist, bis auf "Öltank" und "Waschraum" identisch.
Öltank ist leer. Im Waschraum läuft nun die Treppe von oben runter.

Vielleicht/Hoffentlich wird es so verständlicher und räumt das bisherige Chaos etwas auf.
Originale Pläne aus 1975
EG
Keller
Heutiger Stand nach den Umbauten
Hier gibt's keinen offiziellen Plan, deshalb ist hier die eigene Zeichnung in vereinfachter Form entstanden (ohne Treppen im und außerhalb des Gebäudes, aber textuell gekennzeichnet)
EG
Keller
Die Nutzung der Räume ist, bis auf "Öltank" und "Waschraum" identisch.
Öltank ist leer. Im Waschraum läuft nun die Treppe von oben runter.
Vielleicht/Hoffentlich wird es so verständlicher und räumt das bisherige Chaos etwas auf.
GalileoNRW schrieb:
Hier gibt's keinen offiziellen Plan, deshalb ist hier die eigene Zeichnung in vereinfachter Form entstanden (ohne Treppen im und außerhalb des Gebäudes, aber textuell gekennzeichnet)Es ist wahrscheinlich einfacher und näher an der Wahrheit, wenn Du einfach mal die Änderungen in den Originalplan einzeichnest.Ähnliche Themen