ᐅ Grundrissplanung Einfamilienhaus mit Sattel- oder Walmdach
Erstellt am: 22.02.20 13:31
H
Hausbau_2021H
Hausbau_202122.02.20 13:31Hallo, wir würden auch gerne mal unsere Grundrissentwürfe vorstellen und eure Meinungen dazu hören.
Bebauungsplan/Einschränkungen
Größe des Grundstücks 1000 m²
Hang Nordhang
Grundflächenzahl
Geschossflächenzahl
Baufenster, Baulinie und -grenze
Randbebauung
Anzahl Stellplatz 2
Geschossigkeit 1,5
Dachform Sattel- oder Walmdach
Stilrichtung
Ausrichtung
Maximale Höhen/Begrenzungen
weitere Vorgaben
Anforderungen der Bauherren
Stilrichtung, Dachform, Gebäudetyp Satteldach
Keller, Geschosse Keller ; EG ; OG
Anzahl der Personen, Alter -
Raumbedarf im EG, OG 80 m²
Büro: Familiennutzung oder Homeoffice?
Schlafgäste pro Jahr -
offene oder geschlossene Architektur offen
konservativ oder moderne Bauweise modern
offene Küche, Kochinsel
Anzahl Essplätze
Kamin
Musik/Stereowand -
Balkon, Dachterrasse -
Garage, Carport
Nutzgarten, Treibhaus
Hausentwurf
Von wem stammt die Planung: -Do-it-Yourself
Was gefällt besonders? Warum?
Was gefällt nicht? Warum?
Preisschätzung lt Architekt/Planer: -
Persönliches Preislimit fürs Haus, inkl Ausstattung: -
favorisierte Heiztechnik: Luft-Wasser-Wärmepumpe
Wenn Ihr verzichten müsst, auf welche Details/Ausbauten
-könnt Ihr verzichten:
-könnt Ihr nicht verzichten:
Warum ist der Entwurf so geworden, wie er jetzt ist? ZB
Nach einigen Besuchen in Musterparks und dem durchblättern von allerlei Katalogen der gängigen Fertighausanbietern, an denen wir aber immer etwas auszusetzen hatten, haben wir uns selbst einen Grundriss entworfen.
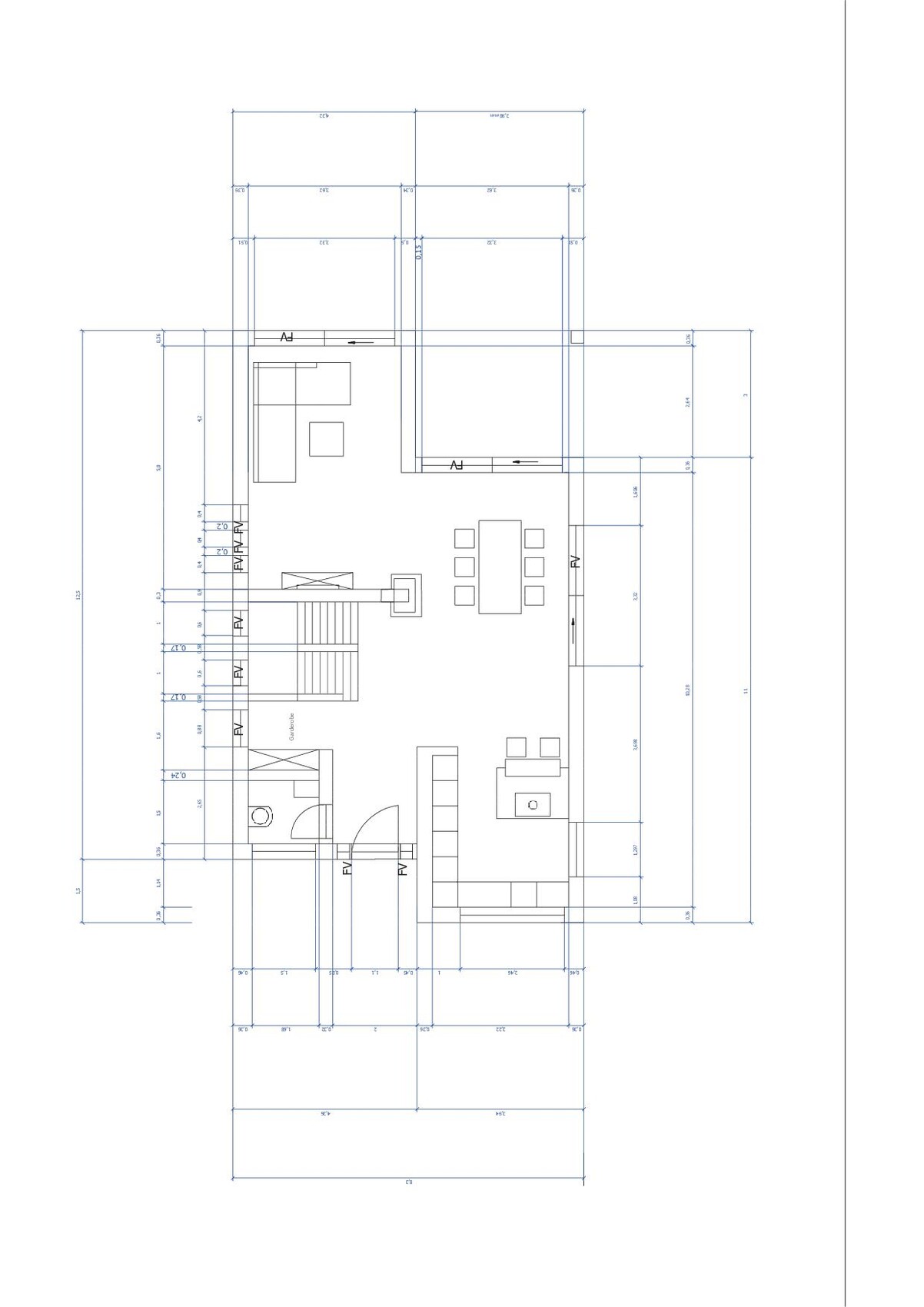
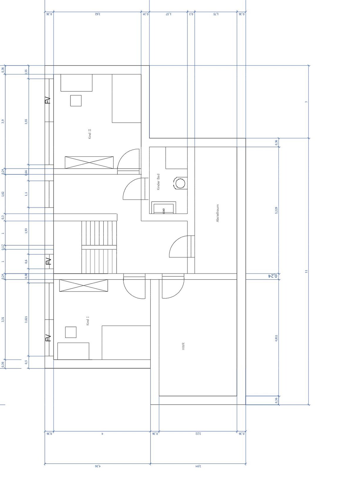
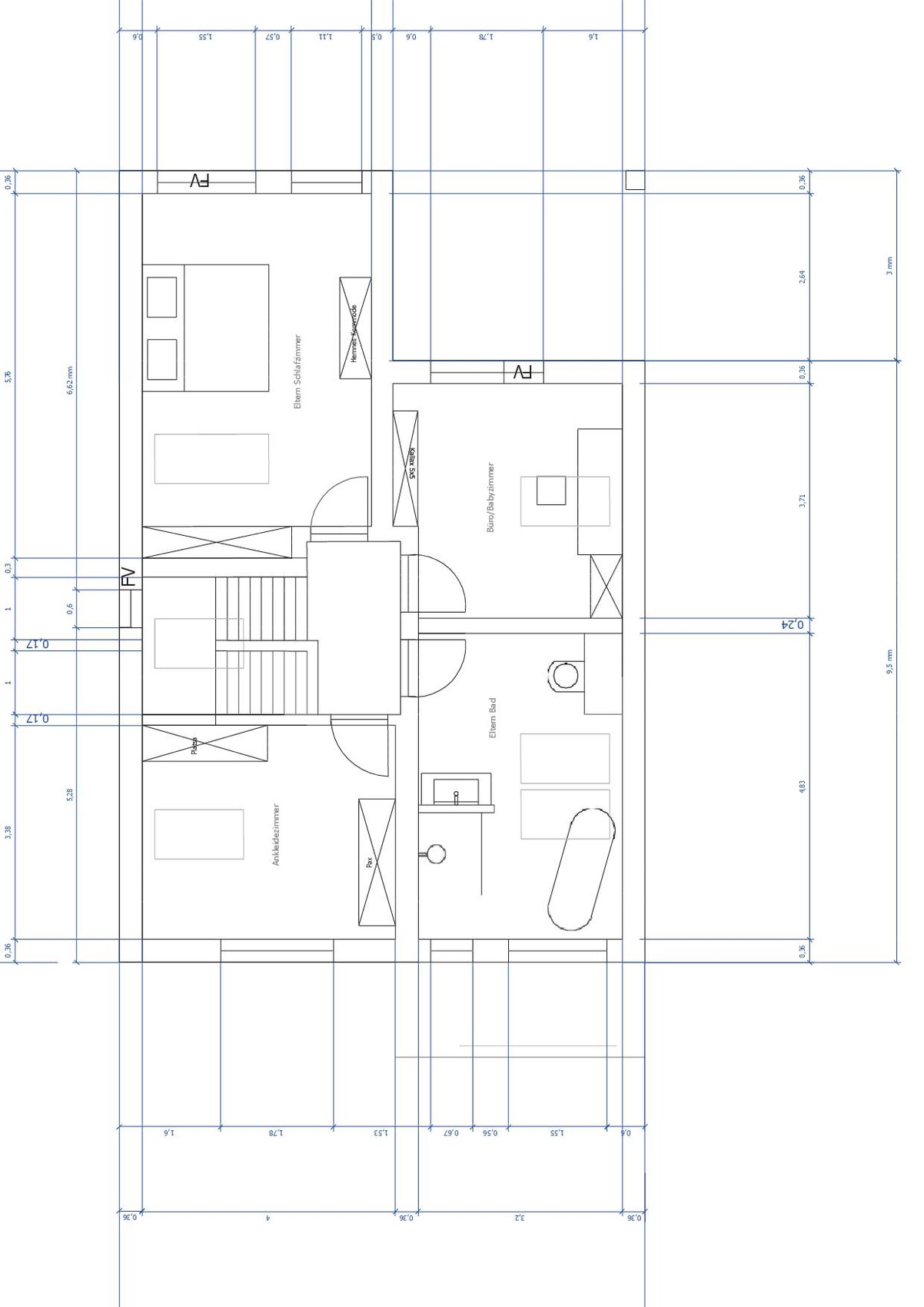
Unser Grundstück befindet sich an einem Wendehammer und einem leichten Nordhang. Es ist so vorgesehen, dass der Keller auf der einen Seite offen liegt und die dort entstehenden Räume als Wohnraum genutzt werden können. Die Terrasse liegt an der Südseite.
Ich hoffe es in den Zeichnungen ist alles lesbar, die Maße dienen vorerst nur zur Orientierung
Was haltet ihr von unseren Entwürfen?



Bebauungsplan/Einschränkungen
Größe des Grundstücks 1000 m²
Hang Nordhang
Grundflächenzahl
Geschossflächenzahl
Baufenster, Baulinie und -grenze
Randbebauung
Anzahl Stellplatz 2
Geschossigkeit 1,5
Dachform Sattel- oder Walmdach
Stilrichtung
Ausrichtung
Maximale Höhen/Begrenzungen
weitere Vorgaben
Anforderungen der Bauherren
Stilrichtung, Dachform, Gebäudetyp Satteldach
Keller, Geschosse Keller ; EG ; OG
Anzahl der Personen, Alter -
Raumbedarf im EG, OG 80 m²
Büro: Familiennutzung oder Homeoffice?
Schlafgäste pro Jahr -
offene oder geschlossene Architektur offen
konservativ oder moderne Bauweise modern
offene Küche, Kochinsel
Anzahl Essplätze
Kamin
Musik/Stereowand -
Balkon, Dachterrasse -
Garage, Carport
Nutzgarten, Treibhaus
Hausentwurf
Von wem stammt die Planung: -Do-it-Yourself
Was gefällt besonders? Warum?
Was gefällt nicht? Warum?
Preisschätzung lt Architekt/Planer: -
Persönliches Preislimit fürs Haus, inkl Ausstattung: -
favorisierte Heiztechnik: Luft-Wasser-Wärmepumpe
Wenn Ihr verzichten müsst, auf welche Details/Ausbauten
-könnt Ihr verzichten:
-könnt Ihr nicht verzichten:
Warum ist der Entwurf so geworden, wie er jetzt ist? ZB
Nach einigen Besuchen in Musterparks und dem durchblättern von allerlei Katalogen der gängigen Fertighausanbietern, an denen wir aber immer etwas auszusetzen hatten, haben wir uns selbst einen Grundriss entworfen.
Unser Grundstück befindet sich an einem Wendehammer und einem leichten Nordhang. Es ist so vorgesehen, dass der Keller auf der einen Seite offen liegt und die dort entstehenden Räume als Wohnraum genutzt werden können. Die Terrasse liegt an der Südseite.
Ich hoffe es in den Zeichnungen ist alles lesbar, die Maße dienen vorerst nur zur Orientierung
Was haltet ihr von unseren Entwürfen?
H
Hausbau_202122.02.20 13:47Links ist Norden und Rechts Süden. - Die Haustüre ist im Westen.
H
Hausbau_202122.02.20 13:56Was ist mit Höhenlinien gemeint?
Das Haus ist für 2 Erwachsene und 2 Kindern geplant.
Das Budget ist noch nicht definiert - je nach Ausstattung sind da ja große Unterschiede.
Die 2m Linie fehlt in der Darstellung weil die Dachneigung noch ungeklärt ist.
Das Haus ist für 2 Erwachsene und 2 Kindern geplant.
Das Budget ist noch nicht definiert - je nach Ausstattung sind da ja große Unterschiede.
Die 2m Linie fehlt in der Darstellung weil die Dachneigung noch ungeklärt ist.
Ähnliche Themen