Hallo Forum
Wir haben ein Grundstück reserviert und sind jetzt zusammen mit unserer Wunsch-Baufirma am planen. Aktuell haben wir noch nichts unterschrieben, allerdings sind die Planungen schon recht weit, genauso wie die Gespräche mit der Bank bzgl. Finanzierung.
Da nach der ersten Planung und der Unterschrift noch eine weitere Phase folgt, in welcher die Feinplanung zusammen mit einer Architektin der Firma erfolgt, würde ich mich über Feedback freuen, welches wir dann noch berücksichtigen könnten.
Vielen, vielen Dank.
Bebauungsplan/Einschränkungen
Anforderungen der Bauherren
Hausentwurf
Wenn Ihr verzichten müsst, auf welche Details/Ausbauten
Warum ist der Entwurf so geworden, wie er jetzt ist?
Was ist die wichtigste/grundlegende Frage zum Grundriss in 130 Zeichen zusammengefasst?
Noch wichtig



Wir haben ein Grundstück reserviert und sind jetzt zusammen mit unserer Wunsch-Baufirma am planen. Aktuell haben wir noch nichts unterschrieben, allerdings sind die Planungen schon recht weit, genauso wie die Gespräche mit der Bank bzgl. Finanzierung.
Da nach der ersten Planung und der Unterschrift noch eine weitere Phase folgt, in welcher die Feinplanung zusammen mit einer Architektin der Firma erfolgt, würde ich mich über Feedback freuen, welches wir dann noch berücksichtigen könnten.
Vielen, vielen Dank.
Bebauungsplan/Einschränkungen
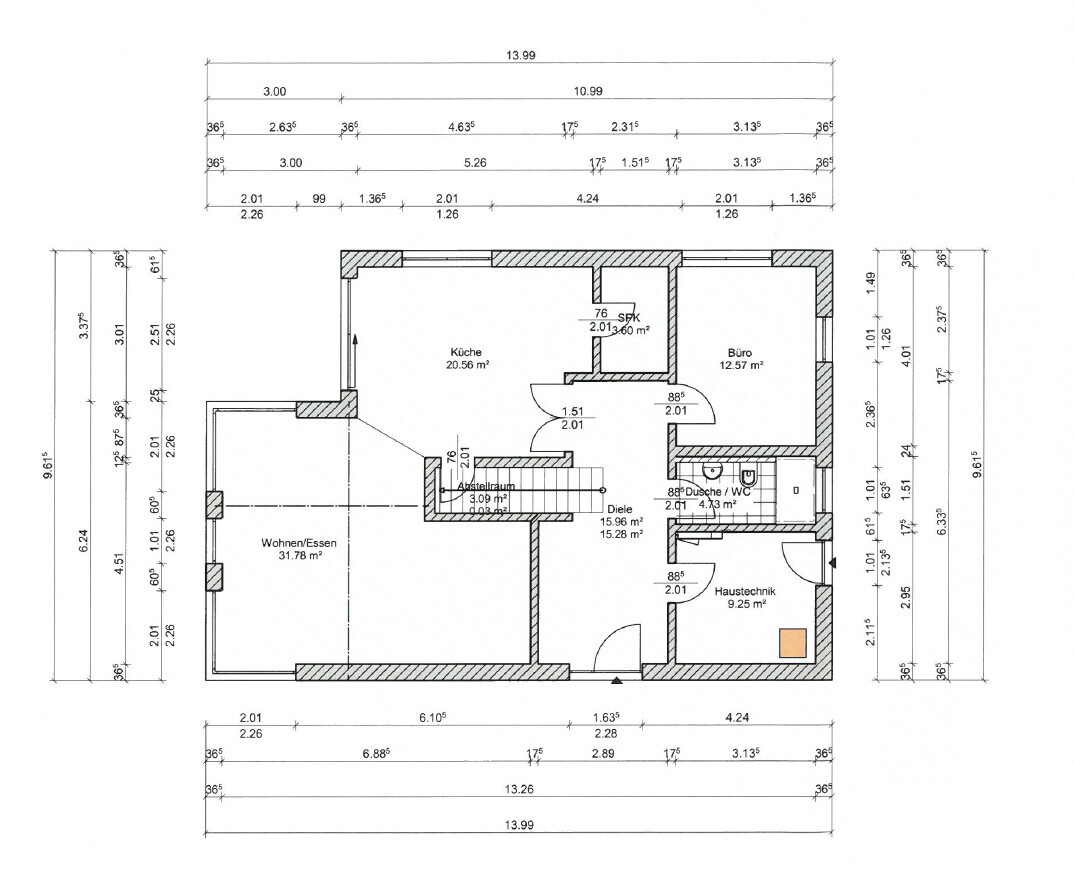
- Größe des Grundstücks: 649m²
- Hang: nein
- Randbebauung: 5m zur Straße im Norden, ansonsten die üblichen 3m
- Geschossigkeit: 2 Vollgeschosse erlaubt
- Dachform: kein Flachdach erlaubt
- Stilrichtung: offen
Anforderungen der Bauherren
- Stilrichtung, Dachform, Gebäudetyp: Massivhaus mit 1 geschössigem "Vorbau"; Satteldach
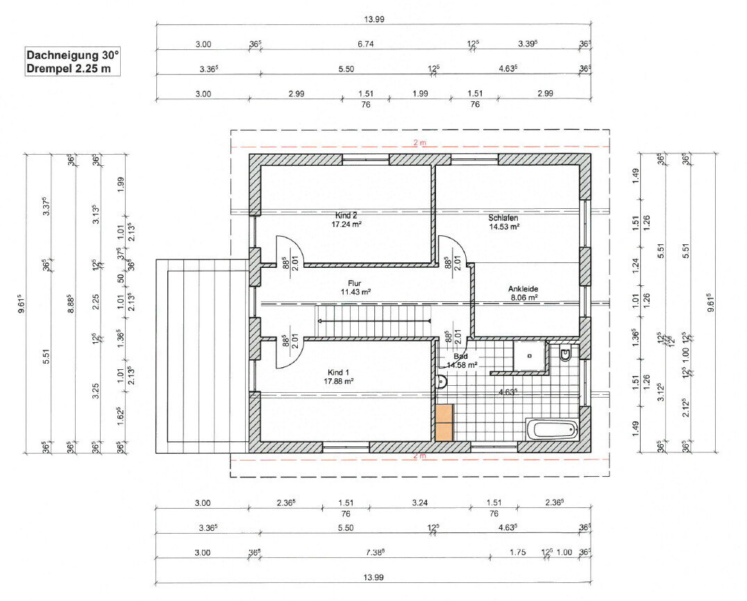
- Keller, Geschosse: kein Keller, 1,5 Geschosse (obwohl die Zeichnung noch 2 Vollgeschosse zeigt)
- Anzahl der Personen, Alter: 2 Erwachsene (36 und 34) und 1 Kind (2 Jahre). Ein weiteres Kind ist geplant.
- Raumbedarf im EG: Wohnen/Essen, Küche, Speisekammer, Büro/Gästezimmer, Gäste-WC, Hauswirtschaftsraum
- Raumbedarf im OG: 2 Kinderzimmer, Bad, Schlafzimmer
- Büro: 90% Familiennutzung, 10% Homeoffice
- Schlafgäste pro Jahr: nicht häufig, aber regelmäßig
- offene oder geschlossene Architektur: offen, aber auch geschlossene Teile, je nach Nutzung
- konservativ oder moderne Bauweise: konservativ, mit modernen Elementen
- offene Küche, Kochinsel: ja, ja
- Anzahl Essplätze: in der Küche keine, dafür ein großer Tisch im Wohn/Ess-Bereich (8+ Plätze)
- Kamin: nein
- Musik/Stereowand: nein
- Balkon, Dachterrasse: nein
- Garage, Carport: später Mal ein Carport
- Nutzgarten, Treibhaus: nein
- weitere Wünsche/Besonderheiten: nur ein Teil des OG soll einen Speicher erhalten, Rest der Zimmer hat einen offenen Giebel
Hausentwurf
- Von wem stammt die Planung: Planer eines Bauunternehmens. Nach der Unterschrift erfolgt die Feinplanung mit einer Architektin der gleichen Firma.
- Was gefällt besonders?:
- Trennung des Hauses in großzügigen Wohn/Ess/Küchen-Bereich und einen Bereich mit Gästezimmer, WC und Hauswirtschaftsraum.
- Vorbau mit vielen Fenstern und angrenzender Terrasse
- Viel Platz im OG
- Was gefällt nicht?
- Angst, dass zu wenig Platz für Wohnzimmer (Couch, etc.)
- Preisschätzung lt Architekt/Planer: 300.000 EUR
- Persönliches Preislimit fürs Haus, inkl Ausstattung: 350.000
- favorisierte Heiztechnik: Gas
Wenn Ihr verzichten müsst, auf welche Details/Ausbauten
- könnt Ihr verzichten:
- Wohnfläche könnte ggf. kleiner sein
- OG als Vollgeschoss
- könnt Ihr nicht verzichten:
- Anbau
- offener Bereich für Küche/Essen/Wohnen
Warum ist der Entwurf so geworden, wie er jetzt ist?
- viele Vorgaben von uns, die wir aus Bildern, Beispielen und anderen Plänen gewonnen haben
- aber auch ein Standard-Haus der Baufirma deckt einiges ab
Was ist die wichtigste/grundlegende Frage zum Grundriss in 130 Zeichen zusammengefasst?
- Reicht der Ess/Wohn Bereich für einen großen Esstisch (vor den Fenstern) und Couch etc. rechts in der Nische vor der Wand zum Flur?
- Grundsätzliches Feedback zur Anordnung der Räume
- Kann man die Treppe besser positionieren oder würde sich eine andere Treppe besser eignen?
Noch wichtig
- Positionierung von Dusche etc. im Bad im OG wird so nicht bleiben
- der Grundriss auf dem Bild mit der Lage des Hauses und dem Grundstück ist nicht mehr der aktuelle, aber von der Fläche und Lage gleich zur aktuellen Planung.
Hallo Nadori,
erst mal Glückwunsch zu einem Grundstück in Frankfurt
Ich fange mal gleich an was mir persönlich nicht gefallen würde:
- Wohnzimmer ist vom Laufweg meiner Meinung nach zu weit. Ich müsste durch die Küche durch um mich auf die Couch zu legen. Genau so mein Besuch müsste ich jedes mal über die Küche führen. Auch die Küchenplanung muss beachtet werden, da laut Grundriss nur eine Küchenzeile mit höchstens einer Kochinsel in Frage kommt ( rechts die Tür Speisekammer, links Ausgang zur Terrasse)
-Wohnzimmer möblieren, wo soll die Couch hin? Vor der Wand zu Diele, wo kommt dann der Fernseher hin? Gegenüber ist ja der Ausgang zur Terrasse
- Auch die Treppe im EG "versperrt" den Weg
- im OG sind die Kinderzimmer zwar groß aber gleichen einem Schlauch
erst mal Glückwunsch zu einem Grundstück in Frankfurt
Ich fange mal gleich an was mir persönlich nicht gefallen würde:
- Wohnzimmer ist vom Laufweg meiner Meinung nach zu weit. Ich müsste durch die Küche durch um mich auf die Couch zu legen. Genau so mein Besuch müsste ich jedes mal über die Küche führen. Auch die Küchenplanung muss beachtet werden, da laut Grundriss nur eine Küchenzeile mit höchstens einer Kochinsel in Frage kommt ( rechts die Tür Speisekammer, links Ausgang zur Terrasse)
-Wohnzimmer möblieren, wo soll die Couch hin? Vor der Wand zu Diele, wo kommt dann der Fernseher hin? Gegenüber ist ja der Ausgang zur Terrasse
- Auch die Treppe im EG "versperrt" den Weg
- im OG sind die Kinderzimmer zwar groß aber gleichen einem Schlauch
Hallo!
Bitte stell den aktuellen Lageplan des Grundstücks ein. Bezogen auf den gezeigten Lageplan fände ich weder die Position des Hauses auf dem Grundstück noch die Situierung der Eingangstür gut gelöst...
Wir haben mit Architekt gebaut, vielleicht äußert sich hier ja noch jemand mit GU zur Vorgehensweise, erst mal einen Ausgangs-Grundriss als Vertragsbasis zu nehmen und dann erst die Feinplanung zu machen. Mir persönlich kommt das aber etwas ... unglücklich vor bzw. für mich schaut es ein bisschen danach aus, die Katze im Sack zu kaufen?! Oder werdet ihr für diesen ersten Vertrag schon alle Extras, z. B. Anzahl Steckdosen, bodengleiche Dusche o. ö. festlegen? Und was würde passieren, wenn bei der Feinplanung dann ganz andere Abmessungen herauskommen? *grübel*
Bitte stell den aktuellen Lageplan des Grundstücks ein. Bezogen auf den gezeigten Lageplan fände ich weder die Position des Hauses auf dem Grundstück noch die Situierung der Eingangstür gut gelöst...
Wir haben mit Architekt gebaut, vielleicht äußert sich hier ja noch jemand mit GU zur Vorgehensweise, erst mal einen Ausgangs-Grundriss als Vertragsbasis zu nehmen und dann erst die Feinplanung zu machen. Mir persönlich kommt das aber etwas ... unglücklich vor bzw. für mich schaut es ein bisschen danach aus, die Katze im Sack zu kaufen?! Oder werdet ihr für diesen ersten Vertrag schon alle Extras, z. B. Anzahl Steckdosen, bodengleiche Dusche o. ö. festlegen? Und was würde passieren, wenn bei der Feinplanung dann ganz andere Abmessungen herauskommen? *grübel*
Ohne Ansichten, nur aus den Grundrissen geschlossen würde ich sagen: mit diesem Mega-Kniestock schaut der Baukörper für Frankfurt ein wenig sehr alpin aus.
Gehe ich recht in der Annahme, daß zwischen Technikraum und Flurstück 40/13 eine "bauseitige" Doppelgarage hin soll ?
https://www.instagram.com/11antgmxde/
https://www.linkedin.com/company/bauen-jetzt/
Gehe ich recht in der Annahme, daß zwischen Technikraum und Flurstück 40/13 eine "bauseitige" Doppelgarage hin soll ?
https://www.instagram.com/11antgmxde/
https://www.linkedin.com/company/bauen-jetzt/
Vielen Dank für die schnellen Antworten!
@niri09
Grundstück ist (leider) nicht in Frankfurt, bisher nicht im Lotto gewonnen
Ist ca. 60km davon entfernt.
@Maria16
@niri09
Grundstück ist (leider) nicht in Frankfurt, bisher nicht im Lotto gewonnen
Ist ca. 60km davon entfernt.
- Laufweg Wohnzimmer haben wir schon mehrfach gehört und stimmt natürlich. Auf der anderen Seite ist das Wohnzimmer dadurch sehr geschützt und ein eher privater Raum. ist uns wichtiger als der Laufweg.
- Küchenplanung erfolgt noch vor der Feinplanung, damit der Raum noch entsprechend angepasst werden kann. Gewolltes Ziel ist wirklich nur eine Zeile mit Kochinsel.
- Wohnzimmer bzw. Couch Bereich werde ich im Plan noch mal kennzeichnen später
- Schlacuhige Kinderzimmer nehme ich so noch mal mit, hast du nicht ganz unrecht.
@Maria16
- Lageplan werde ich aktualisieren und noch mal neu einstellen. Eingangstür ist nicht mehr an dieser Stelle, Position des Hauses aber schon. Haben hier schon sehr viele Varianten probiert und diese gefällt uns am besten...
- Wir bauen schlüsselfertig und im ersten Vertrag sind schon alle Dinge geregelt (Anzahl Steckdosen, Art der Duschen, etc.). Solange der finanzielle Rahmen gleich bleibt, kann aus einem 1,5geschössigen Haus auch noch ein Bungalow werden Weicht man dann von gewissen, festgelegten Standards ab, zahlt man Aufpreise. Genauso kann man aber auch Dinge wiederum reduzieren, für die man dann Gutschriften bekommt.
Ist eine lokale Baufirma, die einen tollen Ruf hat. Wir kennen auch einige Leute, die ihr Haus damit realisiert haben. Daher sind wir bzgl. diesem Vorgehen eigentlich ganz entspannt und mögen die Flexibilität.
- Kniestock wird noch auf ca. 160cm reduziert. Ein Update der Pläne erwarten wir in den nächsten Tagen. Wir mögen Dachschrägen, hat aber auch finanzielle Gründe.
- Zwischen Technikraum und Flurstück 40/13 sollen langfristig Mal ein Carport oder 1-2 Garagen hin, absolut richtig.
Ähnliche Themen