Hallo liebe Häuslebauer,
meine Frau und ich wollen nächstes Jahr den Bau unseres Eigenheims in Angriff nehmen und sind deshalb jetzt schon fleißig am Planen. Das Grundstück mit 900 m² ist bereits in unserem Besitz (geerbt). Die Nord-West Grenze des Grundstücks ist ein kleiner Bach (u.a. ein Grund ohne Keller zu bauen), daran angrenzend große Bäume bis zum Baufenster. Die Süd-Ost Grenze ist eine Straße (ruhige Sackgasse). Die beiden angrenzenden Grundstücke sind noch leer, wobei im Nordosten demnächst ein Mehrfamilienhaus gebaut wird. Das Südwestliche Grundstück (500m²) gehört meinen Eltern und soll ohne Not weder bebaut noch verkauft werden (kann von uns als Garten genutzt werden). Die Ausrichtung der Wohnräume soll deshalb auch in die Südwestliche Richtung gehen.
Das Haus sollte Platz für 2 Erwachsene und 3 Kinder haben, am besten aber auch noch funktionieren, sollten es nur 2 oder sogar 4 Kinder werden. Wenn die Kinder irgendwann mal aus dem Haus sind, sollte es die Möglichkeit geben, den oberen Stock als eigene Wohnung nutzen zu können.
Wir haben jetzt die ersten Entwürfe unseres Architekten bekommen und wollten jetzt ein paar Meinungen hören, bevor wir zu sehr ins Detail planen und uns nachher grundsätzliche Unstimmigkeiten auffallen.
Zu Variante 1: Der Architekt hat hier um den Preis zu drücken das Dach möglichst niedrig angesetzt und arbeitet dafür mit Dachfenstern und Gauben, das gefällt uns optisch gut, ich bin aber eigentlich kein großer Fan davon ("Loch" im Dach, doof zu putzen, schlechtere Dämmung). Zum Erdgeschoss ist zu sagen, dass das Zimmer am Eingang ein bisschen zu klein ist und der separate Ausgang in den Garten zwischen Wohnzimmer und Bad eingespart werden kann. Im OG fehlt uns eine Abstellkammer bzw. ein Platz für einen großen Schrank (Bettwäsche, Handtücher, evtl. Staubsauger usw.). Gefallen tut uns vor allem der große überdachte Durchgang in den Garten auf der Haustürseite und das ausgesparte Eck mit der Terrasse.
Zu Variante 2: Hier ist das OG aufgrund des höheren Daches viel flexibler, der Schätzpreis des Hauses aber auch gleich mal 15.000 höher. Auf den ersten Blick dachten wir, dass das zu viele kleine Zimmer sind, aber auf den zweiten Blick gefällt es uns eigentlich sehr gut. Das kleine Zimmer links neben dem Bad kann entweder Gästezimmer, Arbeitszimmer, Schlafzimmer für 1-2 Kinder oder später eine Küche werden. Ich denke ein bisschen Feinarbeit muss man hier auf jeden Fall noch investieren, aber das Prinzip gefällt uns gut. Was uns bei V2 nicht gefällt, ist der Durchgang vom Carport in den Garten durch den Schuppen.
Abgesehen von allgemeinen Ideen und Verbesserungsvorschlägen zum Grundriss würde uns besonders interessieren, was ihr meint zum Thema Gauben und Dachfenster vs. 1m höherer Kniestock, wie viel Geld lässt sich damit sparen und welche tatsächlichen Nachteile hat man mit vielen Dachfenstern und Gauben.
Bebauungsplan/Einschränkungen
Größe des Grundstücks: 900m², bzw. 1400m² (siehe Text)
Hang: nein
Grundflächenzahl: 0,4
Geschossflächenzahl: 0,8
Geschossigkeit: 2 Vollgeschosse erlaubt
Dachform: Satteldach 25°-38°
Ausrichtung: Firstlinie parallel zu Straße, also Nord-Ost nach Südwest
Anforderungen der Bauherren
Stilrichtung, Gebäudetyp: Modernes Holzhaus
Keller, Geschosse: Kein Keller, 1,5 - 2 Geschosse, oberes Geschoss später abtrennbar
Anzahl der Personen, Alter: 2 Erwachsene, 3 Kinder (1. 1 Jahr, 2. im Bauch und 3. in Planung)
Raumbedarf im EG: Küche, Wohnen, Essen, Duschbad, Technik & Hauswirtschaft, 1 Zimmer oder je nach OG die Möglichkeit später eines abzutrennen
Raumbedarf im OG: Bad, 3-4 Zimmer
Büro: kleiner Arbeitsplatz für PC usw wünschenswert
Schlafgäste pro Jahr: kein extra Gästezimmer benötigt
offene oder geschlossene Architektur: offen
konservativ oder moderne Bauweise: egal, eher modern
offene Küche, Kochinsel: ja und ja
Anzahl Essplätze: 8
Garage, Carport: Carport für 2 Autos mit Schuppen für Fahrräder und Gartenzubehör
Hausentwurf
Von wem stammt die Planung: Architekt
Was gefällt besonders?
V1: überdachte EckTerrasse, Anordnung Technik - Schuppen - Carport - Haustür, Licht im Wohnzimmer von 2 entgegengesetzten Seiten
V2: Aufteilung oberer Stock
Was gefällt nicht?
V1: viele Dachfenster und Gauben
V2: Durchgang an der Haustürseite in den Garten nur durch Schuppen möglich
Preisschätzung lt Architekt/Planer: V1 430.000, V2 445.000 (alles dabei, außer Küche und Erschließung)
Persönliches Preislimit fürs Haus, inkl Ausstattung: 500.000
favorisierte Heiztechnik: Wärmepumpe
Wenn Ihr verzichten müsst, auf welche Details/Ausbauten
-könnt Ihr verzichten: 2. überdachter Stellplatz
-könnt Ihr nicht verzichten: großer Fahrrad/Geräteschuppen




meine Frau und ich wollen nächstes Jahr den Bau unseres Eigenheims in Angriff nehmen und sind deshalb jetzt schon fleißig am Planen. Das Grundstück mit 900 m² ist bereits in unserem Besitz (geerbt). Die Nord-West Grenze des Grundstücks ist ein kleiner Bach (u.a. ein Grund ohne Keller zu bauen), daran angrenzend große Bäume bis zum Baufenster. Die Süd-Ost Grenze ist eine Straße (ruhige Sackgasse). Die beiden angrenzenden Grundstücke sind noch leer, wobei im Nordosten demnächst ein Mehrfamilienhaus gebaut wird. Das Südwestliche Grundstück (500m²) gehört meinen Eltern und soll ohne Not weder bebaut noch verkauft werden (kann von uns als Garten genutzt werden). Die Ausrichtung der Wohnräume soll deshalb auch in die Südwestliche Richtung gehen.
Das Haus sollte Platz für 2 Erwachsene und 3 Kinder haben, am besten aber auch noch funktionieren, sollten es nur 2 oder sogar 4 Kinder werden. Wenn die Kinder irgendwann mal aus dem Haus sind, sollte es die Möglichkeit geben, den oberen Stock als eigene Wohnung nutzen zu können.
Wir haben jetzt die ersten Entwürfe unseres Architekten bekommen und wollten jetzt ein paar Meinungen hören, bevor wir zu sehr ins Detail planen und uns nachher grundsätzliche Unstimmigkeiten auffallen.
Zu Variante 1: Der Architekt hat hier um den Preis zu drücken das Dach möglichst niedrig angesetzt und arbeitet dafür mit Dachfenstern und Gauben, das gefällt uns optisch gut, ich bin aber eigentlich kein großer Fan davon ("Loch" im Dach, doof zu putzen, schlechtere Dämmung). Zum Erdgeschoss ist zu sagen, dass das Zimmer am Eingang ein bisschen zu klein ist und der separate Ausgang in den Garten zwischen Wohnzimmer und Bad eingespart werden kann. Im OG fehlt uns eine Abstellkammer bzw. ein Platz für einen großen Schrank (Bettwäsche, Handtücher, evtl. Staubsauger usw.). Gefallen tut uns vor allem der große überdachte Durchgang in den Garten auf der Haustürseite und das ausgesparte Eck mit der Terrasse.
Zu Variante 2: Hier ist das OG aufgrund des höheren Daches viel flexibler, der Schätzpreis des Hauses aber auch gleich mal 15.000 höher. Auf den ersten Blick dachten wir, dass das zu viele kleine Zimmer sind, aber auf den zweiten Blick gefällt es uns eigentlich sehr gut. Das kleine Zimmer links neben dem Bad kann entweder Gästezimmer, Arbeitszimmer, Schlafzimmer für 1-2 Kinder oder später eine Küche werden. Ich denke ein bisschen Feinarbeit muss man hier auf jeden Fall noch investieren, aber das Prinzip gefällt uns gut. Was uns bei V2 nicht gefällt, ist der Durchgang vom Carport in den Garten durch den Schuppen.
Abgesehen von allgemeinen Ideen und Verbesserungsvorschlägen zum Grundriss würde uns besonders interessieren, was ihr meint zum Thema Gauben und Dachfenster vs. 1m höherer Kniestock, wie viel Geld lässt sich damit sparen und welche tatsächlichen Nachteile hat man mit vielen Dachfenstern und Gauben.
Bebauungsplan/Einschränkungen
Größe des Grundstücks: 900m², bzw. 1400m² (siehe Text)
Hang: nein
Grundflächenzahl: 0,4
Geschossflächenzahl: 0,8
Geschossigkeit: 2 Vollgeschosse erlaubt
Dachform: Satteldach 25°-38°
Ausrichtung: Firstlinie parallel zu Straße, also Nord-Ost nach Südwest
Anforderungen der Bauherren
Stilrichtung, Gebäudetyp: Modernes Holzhaus
Keller, Geschosse: Kein Keller, 1,5 - 2 Geschosse, oberes Geschoss später abtrennbar
Anzahl der Personen, Alter: 2 Erwachsene, 3 Kinder (1. 1 Jahr, 2. im Bauch und 3. in Planung)
Raumbedarf im EG: Küche, Wohnen, Essen, Duschbad, Technik & Hauswirtschaft, 1 Zimmer oder je nach OG die Möglichkeit später eines abzutrennen
Raumbedarf im OG: Bad, 3-4 Zimmer
Büro: kleiner Arbeitsplatz für PC usw wünschenswert
Schlafgäste pro Jahr: kein extra Gästezimmer benötigt
offene oder geschlossene Architektur: offen
konservativ oder moderne Bauweise: egal, eher modern
offene Küche, Kochinsel: ja und ja
Anzahl Essplätze: 8
Garage, Carport: Carport für 2 Autos mit Schuppen für Fahrräder und Gartenzubehör
Hausentwurf
Von wem stammt die Planung: Architekt
Was gefällt besonders?
V1: überdachte EckTerrasse, Anordnung Technik - Schuppen - Carport - Haustür, Licht im Wohnzimmer von 2 entgegengesetzten Seiten
V2: Aufteilung oberer Stock
Was gefällt nicht?
V1: viele Dachfenster und Gauben
V2: Durchgang an der Haustürseite in den Garten nur durch Schuppen möglich
Preisschätzung lt Architekt/Planer: V1 430.000, V2 445.000 (alles dabei, außer Küche und Erschließung)
Persönliches Preislimit fürs Haus, inkl Ausstattung: 500.000
favorisierte Heiztechnik: Wärmepumpe
Wenn Ihr verzichten müsst, auf welche Details/Ausbauten
-könnt Ihr verzichten: 2. überdachter Stellplatz
-könnt Ihr nicht verzichten: großer Fahrrad/Geräteschuppen
Sciurus schrieb:
schade, dass eigenen Ideen hier so schlecht gemacht werden.Wenn sie gut sind, werden sie nicht schlecht gemacht.
Oder möchtest Du belogen werden? Du hast einen Architekten, der beglückt mit Gradlinigkeit - das ist gut. Und es ist seine Aufgabe, Euren letzten Plan noch mal zu überarbeiten. Das wird schon, ich bin da zuversichtlich.
Gruss Yvonne
Du hast mit deiner Idee das ganze Haus kleiner gemacht und sie entspricht daher eben nicht meiner Anregung. Da ist nicht mal ein ordentlicher Garderobenbereich übrig geblieben. Und deshalb habe ich mich zu deiner Skizze(Idee) auch gleich gar nicht richtig geäußert.
Und, möbliere doch einfach mal das Schlafzimmer in deiner Variante. Es funktioniert nicht, behaupte ich, ohne konkrete Maße zu sehen. Denn Maße hast du ja in deiner Planungsvariante leider gleich ganz unterschlagen
Und, möbliere doch einfach mal das Schlafzimmer in deiner Variante. Es funktioniert nicht, behaupte ich, ohne konkrete Maße zu sehen. Denn Maße hast du ja in deiner Planungsvariante leider gleich ganz unterschlagen
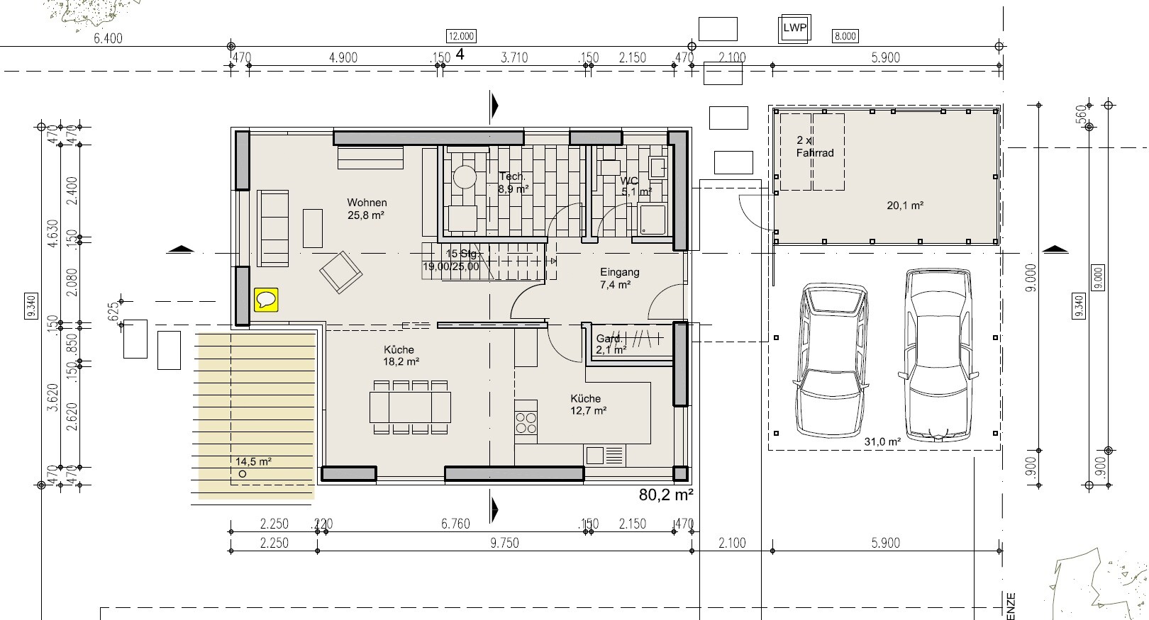
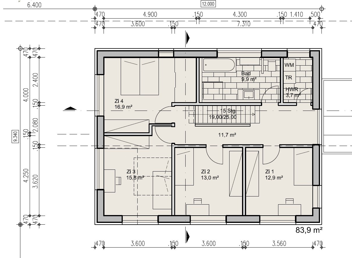
Wir sind mit unseren Planungen ein ganzes Stückchen weitergekommen und wollen mal unseren neuen Grundriss vorstellen. Wir haben jetzt im unteren Stockwerk kein extra Zimmer mehr und die Treppe hat einen neue Position bekommen. Die im Grundriss gezeichnete Küche ist nur ein Platzhalter. Wer hier noch gute Ideen hat, immer her damit.
Im oberen Stockwerk gefällt uns noch nicht, dass man im Bad als erstes frontal vor das WC reinkommt, ansonsten sind wir mit dem Grundriss im Prinzip sehr zufrieden. Haben wir noch was wichtiges übersehen?



Im oberen Stockwerk gefällt uns noch nicht, dass man im Bad als erstes frontal vor das WC reinkommt, ansonsten sind wir mit dem Grundriss im Prinzip sehr zufrieden. Haben wir noch was wichtiges übersehen?
Habt ihr schon Kinder? Ich würde die Treppe drehen. Finde den offenen Wohnbereich in einer Familie mit kleinen Kindern oder auch mit Jugendlichen nicht so sinnvoll. Und anders herum musste die Treppe ja auch funktionieren und sogar ohne, dass ihr durch den Schmutzbereich laufen müsst, wenn ihr hoch geht. aumen:
Die Aufteilung im Bad OG finde ich auch nicht gut. Du stehst mit dem Rücken zum Licht am Waschtisch... nicht so praktisch. Ist das Fenster fix?
Die Aufteilung im Bad OG finde ich auch nicht gut. Du stehst mit dem Rücken zum Licht am Waschtisch... nicht so praktisch. Ist das Fenster fix?
Ähnliche Themen