P
planenbauen22.05.17 18:18Hallo liebes forum,
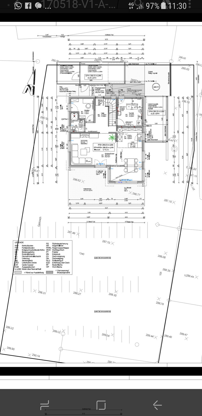
Wir planen ein Einfamilienhaus auf ein 668qm großes nordhang Grundstück ( leichtes Gefälle.
Wir wollten dazu eure Meinung lesen.
Modernes 1,5 Geschoss
Satteldach 35grad neigung
Ohne keller, eg+dg kniestock 1,20m
Wohnfläche 140qm
nutzfläche 11qm
Garage Carport
Offene Architektur
Planung von Fertighaus Firma
Offene Küche


Wir planen ein Einfamilienhaus auf ein 668qm großes nordhang Grundstück ( leichtes Gefälle.
Wir wollten dazu eure Meinung lesen.
Modernes 1,5 Geschoss
Satteldach 35grad neigung
Ohne keller, eg+dg kniestock 1,20m
Wohnfläche 140qm
nutzfläche 11qm
Garage Carport
Offene Architektur
Planung von Fertighaus Firma
Offene Küche
Klassisches Siedlerhaus, etwas modern aufgemotzt. Funktioniert seit 100 Jahren. Anders planen würde ich Hauswirtschaftsraum, mit Hintertür zur Seite ins Carport. Im Gäste-WC keine Dusche, gibt im Büro nicht so viele Ecken und Winkel, Wohnzimmer bekäme bei mir ne Tür zum Flur. Und dem Haus fehlt ein Abstellraum. Das Schlafzimmer wäre mir zu eng. 60 knapp neben Betten ist schon leicht kriechig, Karsten
P
planenbauen23.05.17 00:01Danke für die schnelle Antworten.
- Büro und dusch-wc waren oder sind unsere größten Überlegungen, wie wir das am besten machen. Da wir im eg unbedingt eine Dusche haben wollen.
- Als abstellraum wird bauseits unter der Treppe vor der Türe noch ein kleiner Raum geschlossen ausserdem soll noch hinter der Garage noch ein 9qm größer Raum entstehen.
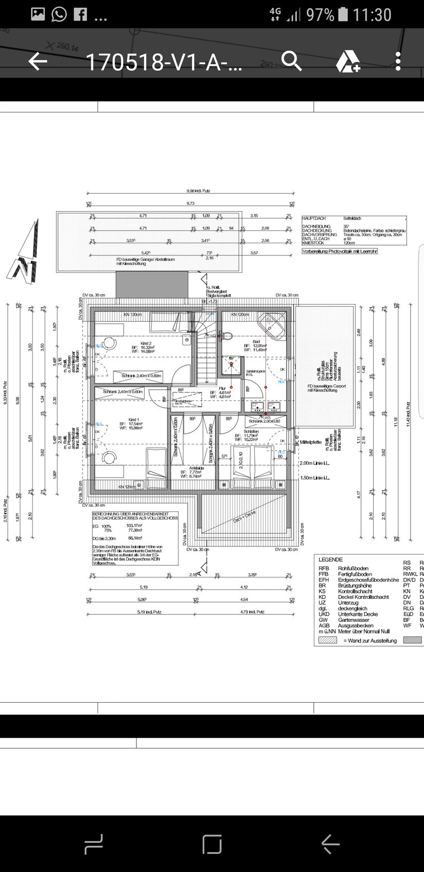
- Wir haben die ankleide im og vergrößert was zum kleineren Schlafzimmer geführt hat sollten wir ankleiden doch kleiner machen dann wird die ankleiden aber vilt zu schmal für 2 schränke?
- nein das ist noch nicht die ausführungsplanung wir dürfen hier noch einmal mit rotem Stift Wände verschieben, Fenster anders positionieren allerdings das letzte mal danach wird der Bauantrag erstellt.
- Wie findet ihr die Fenster positionen in der Küche und das daneben, sollten wir besser Ein breites daraus machen statt zwei neben einander.
Liebe Grüsse
- Büro und dusch-wc waren oder sind unsere größten Überlegungen, wie wir das am besten machen. Da wir im eg unbedingt eine Dusche haben wollen.
- Als abstellraum wird bauseits unter der Treppe vor der Türe noch ein kleiner Raum geschlossen ausserdem soll noch hinter der Garage noch ein 9qm größer Raum entstehen.
- Wir haben die ankleide im og vergrößert was zum kleineren Schlafzimmer geführt hat sollten wir ankleiden doch kleiner machen dann wird die ankleiden aber vilt zu schmal für 2 schränke?
- nein das ist noch nicht die ausführungsplanung wir dürfen hier noch einmal mit rotem Stift Wände verschieben, Fenster anders positionieren allerdings das letzte mal danach wird der Bauantrag erstellt.
- Wie findet ihr die Fenster positionen in der Küche und das daneben, sollten wir besser Ein breites daraus machen statt zwei neben einander.
Liebe Grüsse
Also, wir haben es gleich mit der Garage, Abstellraum, Zwischengang zum Haus, auf der anderen Küchenseite den Carport. Kannst ja mal schauen in unserem verlinkten Baublog.
Bei der Garage würde ich die Tür nach draußen als überflüssig sehen, Abstellraum dahinter würde ich von außen begehbar machen. Wenn mal ein Auto in der Garage steht, nützen die Türen darin keinem.
Soll die Garage an die Grenze? Von wo fährt man denn das Grundstück an? Kann man gut in die Garage lenken? Wenn die Strasse oben liegt, dann würde eine Verschiebung von allem um 3 Meter gut tun, damit man den Wendekreis bewältigt.
Garderobe fehlt mir, kann man aber unter der Treppe gut machen 🙂
In der Küche würde ich mind. einen 30er Schrank mehr bei der Spüle planen (Spüle mit Müll als 60er, Grundstück als 60er und Fläche zum Bestücken, also insgesamt 180?! Kochinsel mind. 80 Tiefe, dann spritzt auch nichts nach hinten.
Insgesamt kann man dann die Küche besser betreten und mit zwei Personen gleichzeitig bedienen und arbeiten.
Tür zum WZ in gleicher Flucht wie Eingangstür.
Schlafzimmer würde ich von der Ankleide begehen (Flurtür weg), und unter die Schräge passt gut ein Einbauschrank bzw. Regale / Kleiderstange. Eventuell reicht die L-Form vom Schrank, dann könnte man für das Schlafzimmer noch 20-30cm rausschinden. Ein Dachfenster wäre aber auch schön.
Oder aber mal auf ein 160er Bett umsteigen 😉
Oben ist Norden, oder?
Dusche würde ich drehen und das Klo aus der 2-Meter-Linie rausschieben.
Gruß, Yvonne
Bei der Garage würde ich die Tür nach draußen als überflüssig sehen, Abstellraum dahinter würde ich von außen begehbar machen. Wenn mal ein Auto in der Garage steht, nützen die Türen darin keinem.
Soll die Garage an die Grenze? Von wo fährt man denn das Grundstück an? Kann man gut in die Garage lenken? Wenn die Strasse oben liegt, dann würde eine Verschiebung von allem um 3 Meter gut tun, damit man den Wendekreis bewältigt.
Garderobe fehlt mir, kann man aber unter der Treppe gut machen 🙂
In der Küche würde ich mind. einen 30er Schrank mehr bei der Spüle planen (Spüle mit Müll als 60er, Grundstück als 60er und Fläche zum Bestücken, also insgesamt 180?! Kochinsel mind. 80 Tiefe, dann spritzt auch nichts nach hinten.
Insgesamt kann man dann die Küche besser betreten und mit zwei Personen gleichzeitig bedienen und arbeiten.
Tür zum WZ in gleicher Flucht wie Eingangstür.
Schlafzimmer würde ich von der Ankleide begehen (Flurtür weg), und unter die Schräge passt gut ein Einbauschrank bzw. Regale / Kleiderstange. Eventuell reicht die L-Form vom Schrank, dann könnte man für das Schlafzimmer noch 20-30cm rausschinden. Ein Dachfenster wäre aber auch schön.
Oder aber mal auf ein 160er Bett umsteigen 😉
Oben ist Norden, oder?
Dusche würde ich drehen und das Klo aus der 2-Meter-Linie rausschieben.
Gruß, Yvonne
P
planenbauen23.05.17 11:25Hab mir euer Blog angeschaut sieht sehr gelungen aus.werden bestimmt mehr draus lesen.
- geplant war vom abstellraum zur Eingangstür eine Türe mit Überdachung (vom Auto ins Haus im trockenen).
Tür dann nur von Garage in abstellraum.
- es gibt jetzt ein Anhang zum Grundstück (Lageplan) da sieht man dass dies die einzigste möglichkeit ist die Einfahrt zu planen. Norden ist oben also da wo die doppelhäuser stehen.
- die Küchen Planung ist nicht von uns kommt aber als nächster Schritt gut dass du es ansprichst. Wir wollen die Küche auf der Fenster Seite im Osten verlängern Richtung Esszimmer. Das wegen auch die Frage zu den Fenster(n) in der Küche. Ein langes, zwei normale, schmal breit hoch gesetzt oder sogar eine bodentief?
- Tür im wz lassen wir so weil wir das Sofa andersrum stellen möchten so das wir Richtung Süden schauen da auch diese Wand etwas breiteres Sofa erlaubt.
- ankleide Tür dann von 90 auf 77 somit etwas kleinere ankleide, dennoch bleiben die zwei Grossen Schränke dafür bisschen Raum Gewinn im Schlafzimmer.
Dachfenster kommt denke ich auch mit rein obwohl das vilt die Energie effizient beeinflusst aber denke das die Kfw 40 effizienz trotz Fenster erreicht wird. Aktuell sind wir etwas besser so sogar.
- verschiedene bad Varianten wurde im Anhang mit eingefügt bin mal gespannt auf eure Ideen.
Liebe Grüsse aus dem Schwabenland



- geplant war vom abstellraum zur Eingangstür eine Türe mit Überdachung (vom Auto ins Haus im trockenen).
Tür dann nur von Garage in abstellraum.
- es gibt jetzt ein Anhang zum Grundstück (Lageplan) da sieht man dass dies die einzigste möglichkeit ist die Einfahrt zu planen. Norden ist oben also da wo die doppelhäuser stehen.
- die Küchen Planung ist nicht von uns kommt aber als nächster Schritt gut dass du es ansprichst. Wir wollen die Küche auf der Fenster Seite im Osten verlängern Richtung Esszimmer. Das wegen auch die Frage zu den Fenster(n) in der Küche. Ein langes, zwei normale, schmal breit hoch gesetzt oder sogar eine bodentief?
- Tür im wz lassen wir so weil wir das Sofa andersrum stellen möchten so das wir Richtung Süden schauen da auch diese Wand etwas breiteres Sofa erlaubt.
- ankleide Tür dann von 90 auf 77 somit etwas kleinere ankleide, dennoch bleiben die zwei Grossen Schränke dafür bisschen Raum Gewinn im Schlafzimmer.
Dachfenster kommt denke ich auch mit rein obwohl das vilt die Energie effizient beeinflusst aber denke das die Kfw 40 effizienz trotz Fenster erreicht wird. Aktuell sind wir etwas besser so sogar.
- verschiedene bad Varianten wurde im Anhang mit eingefügt bin mal gespannt auf eure Ideen.
Liebe Grüsse aus dem Schwabenland
Ähnliche Themen