ᐅ Grundriss die IV! :-)
Erstellt am: 02.01.13 11:25
Hier unser Grundriss.. Vielleicht hat doch noch irgendjemand noch ein paar nützliche Tipps dazu... Würden uns sehr freuen..
Es handelt sich um eine Doppelhaushälfte im Bauhausstil...





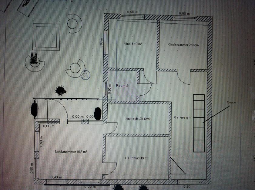
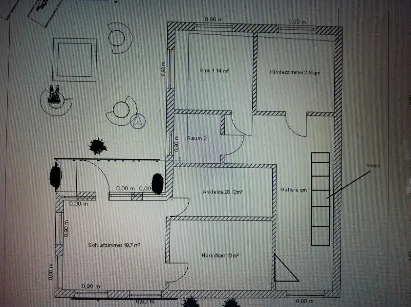
1. Bild: OG
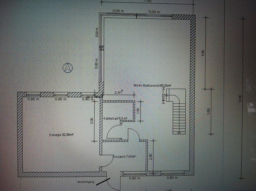
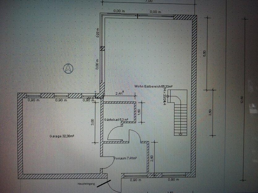
2. Bild: EG
3. Bild: Hausansicht von hinten
4. Bild: Hausansicht von vorn
5. Bild: Hausansicht von hinten
lg Familie Böhm





Es handelt sich um eine Doppelhaushälfte im Bauhausstil...
1. Bild: OG
2. Bild: EG
3. Bild: Hausansicht von hinten
4. Bild: Hausansicht von vorn
5. Bild: Hausansicht von hinten
lg Familie Böhm
M
Musketier02.01.13 14:26Das Schlafzimmer ist interessant.
Wenn eines eurer Kinder morgens im Bad ist, seit ihr im Schlafzimmer eingesperrt.
Noch schlimmer, wenn es vergißt die 2. Tür aufzumachen und ist schon aus dem Haus.
Außerdem gleicht es einem Wintergarten
Die qm angaben der Ankleide passen nicht.
Eingangstür nach außen öffnend?
im OG zu viel Verkehrsfläche
Innentüren ungünstig.
Zum Rest ist mangels möblierung nichts zu sagen
Wenn eines eurer Kinder morgens im Bad ist, seit ihr im Schlafzimmer eingesperrt.
Noch schlimmer, wenn es vergißt die 2. Tür aufzumachen und ist schon aus dem Haus.
Außerdem gleicht es einem Wintergarten
Die qm angaben der Ankleide passen nicht.
Eingangstür nach außen öffnend?
im OG zu viel Verkehrsfläche
Innentüren ungünstig.
Zum Rest ist mangels möblierung nichts zu sagen
Francis schrieb:
Vielleicht hat doch noch irgendjemand noch ein paar nützliche Tipps dazu... ja, ab in den Rundordner. Da funktioniert ja gar nix.
Entschuldige meine Direktheit, aber da helfen auch keine Tipps mehr. Würde den Rahmen des Forums sprengen. Eine komplette Neuplanung ist notwendig
Gruß
P
perlenmann03.01.13 09:14 😎Wozu ein Esszimmer, wenn die Küche fehlt? Ach, ich vergaß, es gibt ja PizzaTaxis.
Das mit dem Bad OG ist echt cool. Als Kind würde ich immer abschließen
Wenigstens konnte ich etwas schmunzeln.
Das mit dem Bad OG ist echt cool. Als Kind würde ich immer abschließen
Wenigstens konnte ich etwas schmunzeln.
Hallo Francis,
ich muss den anderen Recht geben, der Grundriss wir so in der Planung nicht funktionieren. Als grobe Skizze für eure Wünsche ist er erstmal Okay aber wenn man den Grundriss im Detail betrachtet wirft er viele viele Problem und Fehler auf bzw. sind einige wichtige notwendigkeiten in deinem Grundriss nicht berücksichtigt. Und Gerade da es kein 08/15 Haus sein soll ist ein guter Architekt wichtig. Da man sich in vielen Punkten im Grenzbereich bewegt, greifen viele Punkte der Statik und Bauphysik erheblich in die Gestaltung mit ein.
z.B.
- die linke obere Ecke im Wohnraum EG, die Decke wird an der einen Wand auf ca. 5m nicht gestützt. Da wird man einen kräftigen Oberzug brauchen um die Durchbiegungen in Grenzen zu halten. Da das OG aber auskragt wird das auch schwierig.
- du hast fast keine Fläche für Schränke und ein Arbeitszimmer das den Name nicht verdient hat.
- die Tür zur Ankleide liegt im Mauerwerk
- Das Bad im OG hat kein Fenster
- Die Kinderzimmer sind wahrscheinlich sehr dunkel
- Die Treppen passen nicht zueinander
- und und und....
Gruß Bratac
ich muss den anderen Recht geben, der Grundriss wir so in der Planung nicht funktionieren. Als grobe Skizze für eure Wünsche ist er erstmal Okay aber wenn man den Grundriss im Detail betrachtet wirft er viele viele Problem und Fehler auf bzw. sind einige wichtige notwendigkeiten in deinem Grundriss nicht berücksichtigt. Und Gerade da es kein 08/15 Haus sein soll ist ein guter Architekt wichtig. Da man sich in vielen Punkten im Grenzbereich bewegt, greifen viele Punkte der Statik und Bauphysik erheblich in die Gestaltung mit ein.
z.B.
- die linke obere Ecke im Wohnraum EG, die Decke wird an der einen Wand auf ca. 5m nicht gestützt. Da wird man einen kräftigen Oberzug brauchen um die Durchbiegungen in Grenzen zu halten. Da das OG aber auskragt wird das auch schwierig.
- du hast fast keine Fläche für Schränke und ein Arbeitszimmer das den Name nicht verdient hat.
- die Tür zur Ankleide liegt im Mauerwerk
- Das Bad im OG hat kein Fenster
- Die Kinderzimmer sind wahrscheinlich sehr dunkel
- Die Treppen passen nicht zueinander
- und und und....
Gruß Bratac
Ähnliche Themen