ᐅ Grundrissplanung Einfamilienhaus 150qm - Tipps zur Verbesserung?
Erstellt am: 22.01.19 13:30
F
Franky73Franky73 schrieb:
Katja langsam nehme ich das bald nicht mehr Ernst! Wo bitte bei der Variante 2 ist der Hauswirtschaftsraum noch bei der Küche?Mir scheint, Du weißt schon selbst nicht mehr, wovon Du redest.Dürfen wir also davon ausgehen, dass Du eigentlich Variante 3 meinst?
kaho674 schrieb:
Mir scheint, Du weißt schon selbst nicht mehr, wovon Du redest.

Dürfen wir also davon ausgehen, dass Du eigentlich Variante 3 meinst?Ja genau die ist es! Bin selbst ich schon durcheinander gekommen! SORRY!Die Treppe würde gespiegelt so das man dann direkt hoch und so auch auf den Balkon gehen kann.
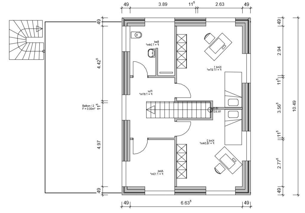
kaho674 schrieb:
Damit keine Verwirrung entsteht, dass ist die 3:


Fast genau so ist der Stand . Gäste-WC ist etwas breiter dafür nicht so tief und die Badewanne etwas weiter rechts rüber.Ähnliche Themen