ᐅ Grundrissplanung Doppelhaushälfte 115 m² für 3-köpfige Familie
Erstellt am: 11.06.24 09:53
P
Princi162P
Princi16211.06.24 09:53Hallo zusammen,
wir stehen aktuell mit einem Bauträger in Kontakt, da wir unser aktuelles Haus gern verkaufen und neu bauen würden. Aktuelles Haus ist ein Anbau, hat 140 m², ist aber schon fast 40 Jahre alt.
In dem neu entstehenden Baugebiet werden hauptsächlich Doppelhäuser gebaut, was wir uns als kleine Familie sehr gut vorstellen können.
Hier erstmal der ausgefüllte Fragebogen:
Bebauungsplan/Einschränkungen
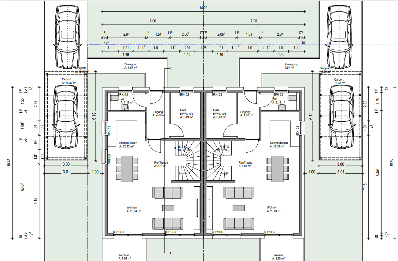
Größe des Grundstücks: 330 m² (11 x 33 Meter)
Hang: nein
Grundflächenzahl: 0,25
Geschossflächenzahl: -
Baufenster, Baulinie und -grenze: 3 Meter zur Grundstücksgrenze
Randbebauung: zulässig bis 3 Meter Höhe
Anzahl Stellplatz: 2
Geschossigkeit: 1 + Staffelgeschoss
Dachform: Satteldach
Stilrichtung: modern, zeitlos
Ausrichtung: siehe Grundriss
Maximale Höhen/Begrenzungen: Oberkante baulicher Anlagen max. 7 Meter
Anforderungen der Bauherren
Stilrichtung, Dachform, Gebäudetyp: Doppelhaushälfte mit Satteldach
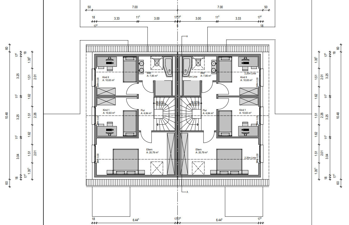
Keller, Geschosse: kein Keller, 2 Geschosse
Anzahl der Personen, Alter: 2 Erwachsene (37 & 36), 1 Kleinkind (soll auch bei einem Kind bleiben)
Raumbedarf im EG, OG: insgesamt 115 m²
Büro: Familiennutzung oder Homeoffice? Beide ab und zu Homeoffice, eventuell 2. Arbeitsplatz?
Schlafgäste pro Jahr: 0
offene oder geschlossene Architektur: offen
konservativ oder moderne Bauweise: -
offene Küche, Kochinsel: Offene Küche mit Halbinsel
Anzahl Essplätze: 6-8
Kamin: -
Musik/Stereowand: -
Balkon, Dachterrasse: -
Garage, Carport: -
Nutzgarten, Treibhaus: aktuell nicht in Planung
Die in unserem selbst entworfenen Grundriss eingezeichneten möbel sind aktuell vorhanden und würden wir erstmal mitnehmen.
Hausentwurf
Von wem stammt die Planung:
- Planer eines Bauunternehmens
- Do-it-Yourself
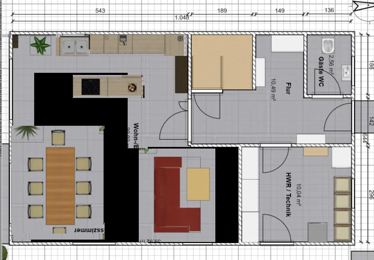
Was gefällt besonders? Warum? Der große Wohn-/Essbereich mit offener Küche, viele Fenster im EG für Helligkeit
Was gefällt nicht? Warum? Auf dem ursprünglichen Grundriss: die offene Treppe, Kinderzimmer zu klein, Anordnung der Stellplätze, fehlender Stauraum, Hauswirtschaftsraum zu klein
Auf unserem selbst entworfenen Grundriss: die problematische Anordnung von Sofa/Fernseher und Esstisch
Preisschätzung laut Architekt/Planer: 389.000 € (Sonderwünsche wie zusätzliche Fenster und weitere Änderungen noch nicht berücksichtigt)
Persönliches Preislimit fürs Haus, inkl. Ausstattung: 450.000 €
favorisierte Heiztechnik: Wärmepumpe mit Vorbereitung für Photovoltaik
Wenn Ihr verzichten müsst, auf welche Details/Ausbauten
-könnt Ihr verzichten: -
-könnt Ihr nicht verzichten: -
Warum ist der Entwurf so geworden, wie er jetzt ist?
Auf unserem selbst entworfenen Grundriss ist mehr Stauraum vorhanden und die Anordnung und Größe der Zimmer im OG gefällt uns besser.
Wie schon geschrieben, sind wir noch nicht ganz glücklich mit dem Erdgeschoss bzw. wissen nicht, wie wir unsere Möbel am besten stellen sollen.
Die Treppe nimmt auf unserem Plan nun weniger Platz weg, allerdings ist noch nicht klar, ob wir die Treppenform verändern dürfen.
Wir wünschen uns auf jeden Fall eine Treppe, die im Flur liegt und vom Wohn-/Essbereich abgetrennt ist, da wir aktuell eine offene Treppe haben und uns das von der Lautstärke gar nicht gefällt.
Vielleicht habt ihr noch Ideen, wie man die Treppe anders integrieren kann.
Laut Bauträger können wir aktuell noch Änderungen am Grundriss vornehmen, in welchem Maße das allerdings geht, müssen wir morgen (Termin beim Bauträger) nochmal in Erfahrung bringen.
Ursprünglich war ja zum Beispiel der Hauswirtschaftsraum im Westen geplant, was nicht ganz ideal ist.
Auch das Thema Stauraum macht uns noch etwas Bauchschmerzen. Auch wenn im Hauswirtschaftsraum jetzt mehr Platz ist und wir gern unter der Treppe auch noch einen kleinen Abstellraum hätten, wie eingezeichnet.
Vielleicht könnte man im OG noch etwas vom Kinderzimmer abzwacken für einen weiteren Abstellraum? Das Zimmer ist mittlerweile eigentlich schon zu groß…
Das Thema 2. Arbeitsplatz falls mein Mann und ich mal gleichzeitig im Homeoffice sind haben wir auch noch nicht berücksichtigt.
Aufgrund der geringen Grundflächenzahl ist auch das Thema Außenanlagen nicht so einfach. Wir finden die Anordnung der Stellplätze hintereinander nicht gut und würden diese eher beide vor dem Haus anordnen.
Müssten dann allerdings auf das Carport verzichten, was aber erstmal nicht so wichtig ist, da es unter Sonderwunsch laufen würde.
Habt ihr Ideen, wie sich diese Punkte umsetzen lassen bzw. wie man den Grundriss verändern könnte, um unseren Vorstellungen gerecht zu werden?
Ich weiß, auf 115 m² sind die Möglichkeiten begrenzt.
Lieben Dank!






wir stehen aktuell mit einem Bauträger in Kontakt, da wir unser aktuelles Haus gern verkaufen und neu bauen würden. Aktuelles Haus ist ein Anbau, hat 140 m², ist aber schon fast 40 Jahre alt.
In dem neu entstehenden Baugebiet werden hauptsächlich Doppelhäuser gebaut, was wir uns als kleine Familie sehr gut vorstellen können.
Hier erstmal der ausgefüllte Fragebogen:
Bebauungsplan/Einschränkungen
Größe des Grundstücks: 330 m² (11 x 33 Meter)
Hang: nein
Grundflächenzahl: 0,25
Geschossflächenzahl: -
Baufenster, Baulinie und -grenze: 3 Meter zur Grundstücksgrenze
Randbebauung: zulässig bis 3 Meter Höhe
Anzahl Stellplatz: 2
Geschossigkeit: 1 + Staffelgeschoss
Dachform: Satteldach
Stilrichtung: modern, zeitlos
Ausrichtung: siehe Grundriss
Maximale Höhen/Begrenzungen: Oberkante baulicher Anlagen max. 7 Meter
Anforderungen der Bauherren
Stilrichtung, Dachform, Gebäudetyp: Doppelhaushälfte mit Satteldach
Keller, Geschosse: kein Keller, 2 Geschosse
Anzahl der Personen, Alter: 2 Erwachsene (37 & 36), 1 Kleinkind (soll auch bei einem Kind bleiben)
Raumbedarf im EG, OG: insgesamt 115 m²
Büro: Familiennutzung oder Homeoffice? Beide ab und zu Homeoffice, eventuell 2. Arbeitsplatz?
Schlafgäste pro Jahr: 0
offene oder geschlossene Architektur: offen
konservativ oder moderne Bauweise: -
offene Küche, Kochinsel: Offene Küche mit Halbinsel
Anzahl Essplätze: 6-8
Kamin: -
Musik/Stereowand: -
Balkon, Dachterrasse: -
Garage, Carport: -
Nutzgarten, Treibhaus: aktuell nicht in Planung
Die in unserem selbst entworfenen Grundriss eingezeichneten möbel sind aktuell vorhanden und würden wir erstmal mitnehmen.
Hausentwurf
Von wem stammt die Planung:
- Planer eines Bauunternehmens
- Do-it-Yourself
Was gefällt besonders? Warum? Der große Wohn-/Essbereich mit offener Küche, viele Fenster im EG für Helligkeit
Was gefällt nicht? Warum? Auf dem ursprünglichen Grundriss: die offene Treppe, Kinderzimmer zu klein, Anordnung der Stellplätze, fehlender Stauraum, Hauswirtschaftsraum zu klein
Auf unserem selbst entworfenen Grundriss: die problematische Anordnung von Sofa/Fernseher und Esstisch
Preisschätzung laut Architekt/Planer: 389.000 € (Sonderwünsche wie zusätzliche Fenster und weitere Änderungen noch nicht berücksichtigt)
Persönliches Preislimit fürs Haus, inkl. Ausstattung: 450.000 €
favorisierte Heiztechnik: Wärmepumpe mit Vorbereitung für Photovoltaik
Wenn Ihr verzichten müsst, auf welche Details/Ausbauten
-könnt Ihr verzichten: -
-könnt Ihr nicht verzichten: -
Warum ist der Entwurf so geworden, wie er jetzt ist?
Auf unserem selbst entworfenen Grundriss ist mehr Stauraum vorhanden und die Anordnung und Größe der Zimmer im OG gefällt uns besser.
Wie schon geschrieben, sind wir noch nicht ganz glücklich mit dem Erdgeschoss bzw. wissen nicht, wie wir unsere Möbel am besten stellen sollen.
Die Treppe nimmt auf unserem Plan nun weniger Platz weg, allerdings ist noch nicht klar, ob wir die Treppenform verändern dürfen.
Wir wünschen uns auf jeden Fall eine Treppe, die im Flur liegt und vom Wohn-/Essbereich abgetrennt ist, da wir aktuell eine offene Treppe haben und uns das von der Lautstärke gar nicht gefällt.
Vielleicht habt ihr noch Ideen, wie man die Treppe anders integrieren kann.
Laut Bauträger können wir aktuell noch Änderungen am Grundriss vornehmen, in welchem Maße das allerdings geht, müssen wir morgen (Termin beim Bauträger) nochmal in Erfahrung bringen.
Ursprünglich war ja zum Beispiel der Hauswirtschaftsraum im Westen geplant, was nicht ganz ideal ist.
Auch das Thema Stauraum macht uns noch etwas Bauchschmerzen. Auch wenn im Hauswirtschaftsraum jetzt mehr Platz ist und wir gern unter der Treppe auch noch einen kleinen Abstellraum hätten, wie eingezeichnet.
Vielleicht könnte man im OG noch etwas vom Kinderzimmer abzwacken für einen weiteren Abstellraum? Das Zimmer ist mittlerweile eigentlich schon zu groß…
Das Thema 2. Arbeitsplatz falls mein Mann und ich mal gleichzeitig im Homeoffice sind haben wir auch noch nicht berücksichtigt.
Aufgrund der geringen Grundflächenzahl ist auch das Thema Außenanlagen nicht so einfach. Wir finden die Anordnung der Stellplätze hintereinander nicht gut und würden diese eher beide vor dem Haus anordnen.
Müssten dann allerdings auf das Carport verzichten, was aber erstmal nicht so wichtig ist, da es unter Sonderwunsch laufen würde.
Habt ihr Ideen, wie sich diese Punkte umsetzen lassen bzw. wie man den Grundriss verändern könnte, um unseren Vorstellungen gerecht zu werden?
Ich weiß, auf 115 m² sind die Möglichkeiten begrenzt.
Lieben Dank!
S
Schorsch_baut11.06.24 11:55Der Wohn-Essbereich bei Eurem Entwurf wird sich anfühlen, wie eine 1-Zimmer Wohnung, so eng wie alles auf einem Raum ist.
P
Princi16211.06.24 12:41Ja, genau das sehen wir eben auch als Problem... aber wie könnte man diesen großen Raum besser ausnutzen und aufteilen?
S
Schorsch_baut11.06.24 13:10P
Princi16211.06.24 13:11Schorsch_baut schrieb:
Wie wäre denn so etwas? Oder lässt sich die Küche nur in die Ecke bauen?Oh, wow, das gefällt mir schon sehr gut.Dankeschön!
Hallo,
ja, ich kenne den Entwurf.
Das Problem ist halt, dass vieles nicht mehr richtig funktioniert. Erst einmal die Treppe, die alles beeinflusst: die ist unter einem Standard, also sehr schwer zu begehen und dadurch gefahranfällig. Wenn Du hier mal schaust:
https://www.hausbau-forum.de/threads/grundriss-planung-unbedingt-vor-beitrag-erstellung-lesen.11714/
ganz unten, da sind die anzustrebenden Mindestmaße. Und ja, wer gross ist und es in Kauf nimmt, der baut auch mit 200 x 220, aber Du komprimierst die Treppe auf 189 x 175. Das ist dann einfach nur steil, die Stufen schmal... und da diese konisch verlaufen, arg gefährlich. Man würde sich jeden Tag ärgern. Ich weiss auch gar nicht, ob der noch als Rettungsweg gilt. Dadurch, dass darunter ein AB soll, wirst Du die Treppe mit Wänden eingrenzen. Somit wirst Du kaum Möbel oder mal eine Leiter nach oben bekommen.
Die Küche bei Dir ist nicht funktionstüchtig. Deine Hochschränke sind keine 60cm breit. Bei zwei Hochschränke für Kühlschrank und Ofen/Lebensmittel muss man 130 einplanen, bei drei 190, eine Kochinsel sollte 90cm tief sein, damit das spritzende Fett auf der Oberfläche bleibt und nicht hinten auf den Boden spritzt.
Bei 6 Metern Breite den Allraum noch in zwei Hauptbereiche einzugrenzen, ist schlicht blöd. Damit funktioniert eigentlich kaum etwas im EG außer Gäste-WC, Flur und Hauswirtschaftsraum.
Im OG ähnlich: Das Bad dort funktioniert mit 1-2 Personen gemeinsam. Das Schlafzimmer ist so komprimiert bei Dir, dass die Tür an den Kleiderschrank randonnert. Ggf kannst Du in dem Bereich der Tür keinen 60er Schrank stellen, weil er ansonsten das Türscharnier blockiert.
Weitergehend stimmen Deine Maße nicht? Zumindest planst Du mit Maßen, die nicht kongruent zum Originalplan sind.
Grundsätzlich kann man zB das WC halbieren, da hält man sich nicht auf. Und einen 10 qm Flur sollte man sich in einem 115qm-DH einfach abschminken. Schicke Nische/Schrank _im_ Flur, aber keine große Extranische.
Es ist ganz klar, dass man keine Wunder von der Fläche erwarten kann. Aber man sollte sich dem auch beugen, was man zur Verfügung hat und das Beste daraus machen. Den Treppenantritt in den Flur zu legen, zerrt an anderem. Ggf mag es noch die Tage gelingen (ich probiere mich mal), allerdings hat es zur Folge, dass die Treppe weiter planoben beginnen muss und dadurch der Hauptraum nicht schön zu zonieren ist.
Die Küche würde ich dann an die lange Mittelwand setzen.
Ich habe den Eindruck, dass Du Dich von den Vorgaben und Kommentaren jetzt nicht beeindrucken lässt und krampfhaft an Deinem Entwurf festhältst, ohne zu sehen, dass auch er es nicht wert ist, gebaut zu werden?!
Euch war aber bei der Unterschrift bewusst, dass es an Stauraum mangelt, auch ohne Dachboden?
ja, ich kenne den Entwurf.
Das Problem ist halt, dass vieles nicht mehr richtig funktioniert. Erst einmal die Treppe, die alles beeinflusst: die ist unter einem Standard, also sehr schwer zu begehen und dadurch gefahranfällig. Wenn Du hier mal schaust:
https://www.hausbau-forum.de/threads/grundriss-planung-unbedingt-vor-beitrag-erstellung-lesen.11714/
ganz unten, da sind die anzustrebenden Mindestmaße. Und ja, wer gross ist und es in Kauf nimmt, der baut auch mit 200 x 220, aber Du komprimierst die Treppe auf 189 x 175. Das ist dann einfach nur steil, die Stufen schmal... und da diese konisch verlaufen, arg gefährlich. Man würde sich jeden Tag ärgern. Ich weiss auch gar nicht, ob der noch als Rettungsweg gilt. Dadurch, dass darunter ein AB soll, wirst Du die Treppe mit Wänden eingrenzen. Somit wirst Du kaum Möbel oder mal eine Leiter nach oben bekommen.
Die Küche bei Dir ist nicht funktionstüchtig. Deine Hochschränke sind keine 60cm breit. Bei zwei Hochschränke für Kühlschrank und Ofen/Lebensmittel muss man 130 einplanen, bei drei 190, eine Kochinsel sollte 90cm tief sein, damit das spritzende Fett auf der Oberfläche bleibt und nicht hinten auf den Boden spritzt.
Bei 6 Metern Breite den Allraum noch in zwei Hauptbereiche einzugrenzen, ist schlicht blöd. Damit funktioniert eigentlich kaum etwas im EG außer Gäste-WC, Flur und Hauswirtschaftsraum.
Im OG ähnlich: Das Bad dort funktioniert mit 1-2 Personen gemeinsam. Das Schlafzimmer ist so komprimiert bei Dir, dass die Tür an den Kleiderschrank randonnert. Ggf kannst Du in dem Bereich der Tür keinen 60er Schrank stellen, weil er ansonsten das Türscharnier blockiert.
Weitergehend stimmen Deine Maße nicht? Zumindest planst Du mit Maßen, die nicht kongruent zum Originalplan sind.
Grundsätzlich kann man zB das WC halbieren, da hält man sich nicht auf. Und einen 10 qm Flur sollte man sich in einem 115qm-DH einfach abschminken. Schicke Nische/Schrank _im_ Flur, aber keine große Extranische.
Es ist ganz klar, dass man keine Wunder von der Fläche erwarten kann. Aber man sollte sich dem auch beugen, was man zur Verfügung hat und das Beste daraus machen. Den Treppenantritt in den Flur zu legen, zerrt an anderem. Ggf mag es noch die Tage gelingen (ich probiere mich mal), allerdings hat es zur Folge, dass die Treppe weiter planoben beginnen muss und dadurch der Hauptraum nicht schön zu zonieren ist.
Die Küche würde ich dann an die lange Mittelwand setzen.
Ich habe den Eindruck, dass Du Dich von den Vorgaben und Kommentaren jetzt nicht beeindrucken lässt und krampfhaft an Deinem Entwurf festhältst, ohne zu sehen, dass auch er es nicht wert ist, gebaut zu werden?!
Euch war aber bei der Unterschrift bewusst, dass es an Stauraum mangelt, auch ohne Dachboden?
Ähnliche Themen