Grundrissplanung Bungalow planen

4,00 Stern(e) 3 Votes
Zuletzt aktualisiert 10.10.2025
Sie befinden sich auf der Seite 8 der Diskussion zum Thema: Grundrissplanung Bungalow planen
>> Zum 1. Beitrag <<

Y

ypg

Besser wird es nicht... viel zu verschachtelt, Du drehst Dich da im Kreis!
Ich würde das Gebäude als H-Form planen. Eingangsbereich hast Du mit Veranda, das gleiche würde ich auch in den Gartenbereich setzen, also Veranda im jetzigen Wohnbereich ran. Dann hast Du event. mehr Möglichkeiten der Raumplanung. Ich verstehe nämlich nicht, dass Du die Überdachung in die blöde Ecke festsetzt, sowie das Elternbad als gefangenen Raum in die Süd?ecke packst.
Küche ist ein guter Ansatz also kann ich mir gut vorstellen, wenn der Tresen gleich vorn an der Tür anfängt und oben beim Hauswirtschaftsraum dann den Durchgang etwas vergrößern. Den Durchgang am Kamin braucht man nicht. Dann hast Du auch eine sichtgeschützte Küchenecke (dort am Kamin).

Gruss Yvonne
 
B

Bamue89

Hm... ich sehe dass es wenig zielführend ist. Scheine dass leider nicht zufriedenstellend bewerkstelligen zu können. Hab den Trick noch nicht entdeckt wie man einen ähnlich großen Bungalow ohne Verschachtelung planen soll. Auch nach mehreren Tagen Recherche im Internet erschließen sich mir kaum andere Lösungen. Verstehe Ebenfalls das Problem nicht, das Eltern bad in die Ecke zu setzen. Darum gibt es 3 Bäder damit dieses halt nicht für jeden Zugänglich sein soll. Versuche nochmal anders zu planen aber glaube dass es der o.g. Grundriss der letzte öffentlich eingestellte ist. Irgendwie ist mir die Lust vergangen. Trotzdem Danke
 
D

DNL

Und darum gibt es eben Leute, die das ein paar Jahre studieren und ein paar Jahre Berufserfahrung haben. Die beauftragt man in so einem Fall und bezahlt sie dafür, dass sie das können. :)
 
kbt09

kbt09

@Bamue89 ... das ist ja auch alles nicht einfach. Einfacher ist es immer, Ungereimtheiten, Fehler usw. festzustellen. Was macht eigentlich dein Architekt?
Ich fände es ja sehr schade, die weitere Entwicklung nicht mehr zu sehen.

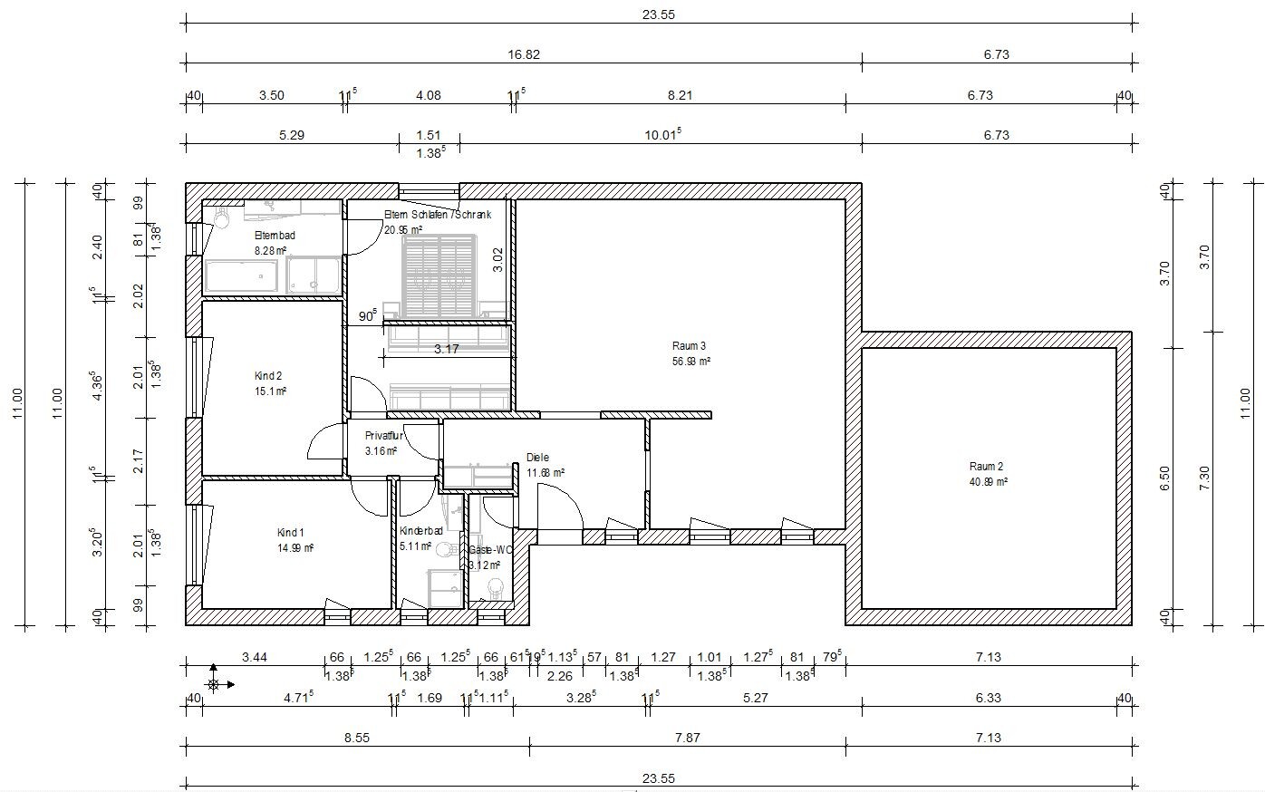
Ich habe mal gerade Wände zum Privatteil gesetzt. Bin allerdings auch etwas größer geworden. Eigentlich gefällt mir das Bad da oben links in der Ecke auch nicht so gut, könnte auch aufwändiger in der Ausführung werden, wg. WC-Abfluss.
Trotzdem mal als eine Skizze.

2D-Grundriss eines Hauses mit mehreren Zimmern, Fluren und Türen
 
Zuletzt aktualisiert 10.10.2025
Im Forum Grundrissplanung / Grundstücksplanung gibt es 2513 Themen mit insgesamt 87223 Beiträgen


Ähnliche Themen zu Grundrissplanung Bungalow planen
Nr.ErgebnisBeiträge
1Nord-Nordwest Ausrichtung mit Veranda = dunkles Haus? 12
2 2 Vollgeschosse, Durchgang Garage, Hauswirtschaftsraum unter Treppe 25
3Durchgang Haus/Garage (~2,6m) gelegentlich kindersicher verschließen 18
4Versteckter Durchgang in Speisekammer - Erfahrungen gesucht 28
5Geschlossene Küche planen mit Durchgang zum Hauswirtschaftsraum 18
6Luftwärmepumpe mit Kamin, wasserführender Ofen, Warmwassererhitzung 26
7Erdwärmepumpe, Solar und Kamin als Heizung? 15
8Nibe F750 Wärmepumpe mit Kamin zur Entlastung? 16
9Gasbrennwert-Therme oder LW Wärmepumpe zum wasserführenden Kamin? 18
10Luft-Wasser-Wärmepumpe mit Solarthermie und Kamin? Kosten/Nutzen/Sinn 34
11Kamin mit Wärmerückgewinnung 10
12Kombination aus Luftwärme-Pumpe und wasserführenden Kamin 14
13Unterdruckwächter / Kamin 4 pa ? 36
14Kamin ab 01.04.16 bei KFW 55 nicht mehr erlaubt ? - Seite 219
15braune Flecken über dem Kamin - Seite 210
16KFW70 mit Gas-Brennwert+Solar-Warmwasser+Kamin 10
17Erfahrungen mit Kamin mit Wassertasche 34
18Kamin für KFW 55 Haus 22
19Kamin innen- oder außenliegend? - Seite 222
20Kamin und kohlenstoffmonoxid 29

Oben