Hallo zusammen,
ich bin gerade an Badplanung bei unserem Neubau. Ich bin mir bei meinem Grundriss aber noch unsicher und möchte ihn daher mal zeigen und bitte um Tipps und Anregungen was man besser machen könnte.
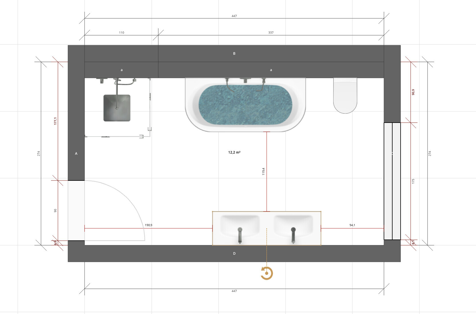
Grundsätzlich glaube ich dass das Problem ist, dass wir die Türe nicht anders platzieren können. Das Fenster ist auch nicht gut für den Grundriss, allerdings wäre dann die Außenansicht nicht mehr symmetrisch. Bei dem Eck zwischen Dusche und Badewanne bin ich mir auch nicht sicher, ob uns das stört. Ich bekomme es aber auch nicht wirklich weggeplant.
Wir haben eigentlich keine besonderen Ansprüche an das Bad. Was mich aber immer stört, sind Glas-Duschkabinen. Mir gefallen die Verstrebungen nicht. Außerdem empfinde ich es trotz der Verstrebungen immer wackelig und instabil.
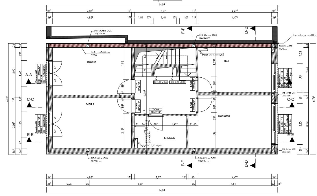
Anbei sende ich mal den Plan aus einem 3D Programm. Fließen und Farben bitte nicht beachten. Dort sind auch die Maße zu sehen. Der erforderliche Schacht ist mit 20x60cm für Sanitär und Elektro vorgesehen. Er befindet sich oben rechts im Plan. Dadurch entsteht eine Vorsatzwand von 24cm. Was sagt ihr dazu? Wir sind 2 Erwachsene und 2 Kinder.
Besten Dank.
Gruß Martin



ich bin gerade an Badplanung bei unserem Neubau. Ich bin mir bei meinem Grundriss aber noch unsicher und möchte ihn daher mal zeigen und bitte um Tipps und Anregungen was man besser machen könnte.
Grundsätzlich glaube ich dass das Problem ist, dass wir die Türe nicht anders platzieren können. Das Fenster ist auch nicht gut für den Grundriss, allerdings wäre dann die Außenansicht nicht mehr symmetrisch. Bei dem Eck zwischen Dusche und Badewanne bin ich mir auch nicht sicher, ob uns das stört. Ich bekomme es aber auch nicht wirklich weggeplant.
Wir haben eigentlich keine besonderen Ansprüche an das Bad. Was mich aber immer stört, sind Glas-Duschkabinen. Mir gefallen die Verstrebungen nicht. Außerdem empfinde ich es trotz der Verstrebungen immer wackelig und instabil.
Anbei sende ich mal den Plan aus einem 3D Programm. Fließen und Farben bitte nicht beachten. Dort sind auch die Maße zu sehen. Der erforderliche Schacht ist mit 20x60cm für Sanitär und Elektro vorgesehen. Er befindet sich oben rechts im Plan. Dadurch entsteht eine Vorsatzwand von 24cm. Was sagt ihr dazu? Wir sind 2 Erwachsene und 2 Kinder.
Besten Dank.
Gruß Martin
Kannst du ggf zu den "geht ja gar nicht anders"-Rahmenbedingungen ein paar größere Ausschnitte mitbringen? Also ggf den Plan der ganzen Etage und der Außenansicht, wo man das symmetrie-Problem sieht (bei uns sind die Fenster zB zwar einigermaßen symmetrisch platziert aber trotzdem nicht identisch in den Etagen). Vielleicht ändert das gar nichts, aber vielleicht fällt ja auch nem schlauen Mitforisten auch da noch was ein.
Persönlich kann ich nicht wirklich viel beitragen. Erinnert mich entfernt an das Bad in unserer letzten Mietwohnung, was ich immer funktional aber nicht sonderlich schön fand...
Persönlich kann ich nicht wirklich viel beitragen. Erinnert mich entfernt an das Bad in unserer letzten Mietwohnung, was ich immer funktional aber nicht sonderlich schön fand...
mayglow schrieb:
Kannst du ggf zu den "geht ja gar nicht anders"-Rahmenbedingungen ein paar größere Ausschnitte mitbringen? Also ggf den Plan der ganzen Etage und der Außenansicht, wo man das symmetrie-Problem sieht (bei uns sind die Fenster zB zwar einigermaßen symmetrisch platziert aber trotzdem nicht identisch in den Etagen). Vielleicht ändert das gar nichts, aber vielleicht fällt ja auch nem schlauen Mitforisten auch da noch was ein.
Persönlich kann ich nicht wirklich viel beitragen. Erinnert mich entfernt an das Bad in unserer letzten Mietwohnung, was ich immer funktional aber nicht sonderlich schön fand...Gerne hier noch das Bild einer Vorderansicht und ein Bild des 1.OG.K
K a t j a20.10.23 18:58Ich denke, die Aufteilung ist schon nah am Optimum. Die Waschbecken würde ich noch weiter Richtung Fenster schieben aber sonst nix ändern.
K a t j a schrieb:
Ich denke, die Aufteilung ist schon nah am Optimum. Die Waschbecken würde ich noch weiter Richtung Fenster schieben aber sonst nix ändern.Danke für die Rückmeldung. Wir wollten jetzt noch eine Kleinigkeit ändern. Und zwar die Wand zwischen Dusche und Wanne weglassen und eine Glaswand statt der Ziegelwand machen. Die Duschbreite dann evtl. von 1,2m auf 1,1m reduzieren, damit zwischen der Dusche und der Wanne noch ca. 50cm Platz sind um quasi eine freistehende Wanne installieren zu können. Was meinst du dazu?
K
K a t j a21.10.23 21:02Ich persönlich mag frei stehende Wannen nicht so. Wo soll man denn da das Weinglas abstellen und das Buch ablegen?
Ähnliche Themen