
RomeoZwo
1m als Duschbreite reicht sehr gut. Da würde ich die Wanne nicht für verkürzen.
Alternativ wäre die Trennwand natürlich auch aus Glas.
Nachteil: Muss geputzt werden (vielleicht besser wenn satiniert)
Vorteil: Tageslicht in der Dusche, Nur 1cm Dicke, Bad wirkt insgesamt großzügiger, luftiger.
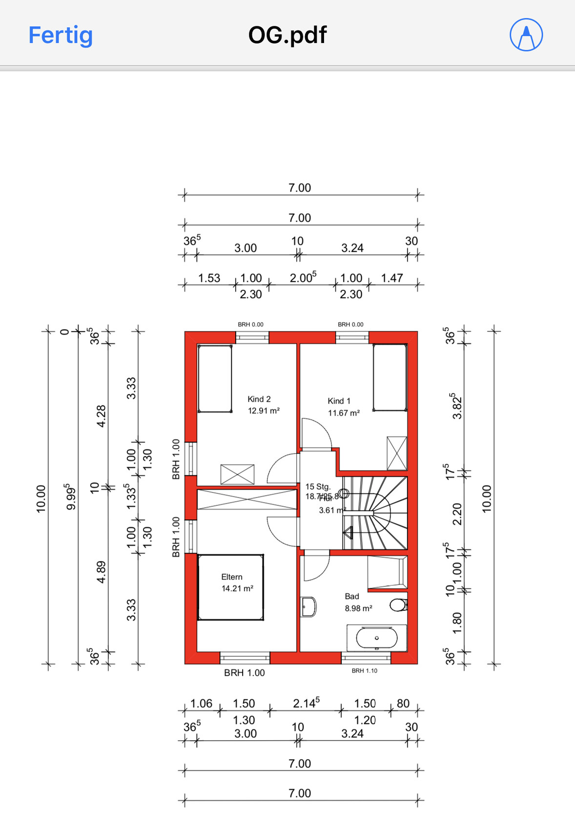
Zu den Grundrissen, dürft ihr im Reihenhaus das Badfenster schieben/verkleiner? Ist zumindest in Unterschied vom roten zum grünen Plan.
Alternativ wäre die Trennwand natürlich auch aus Glas.
Nachteil: Muss geputzt werden (vielleicht besser wenn satiniert)
Vorteil: Tageslicht in der Dusche, Nur 1cm Dicke, Bad wirkt insgesamt großzügiger, luftiger.
Zu den Grundrissen, dürft ihr im Reihenhaus das Badfenster schieben/verkleiner? Ist zumindest in Unterschied vom roten zum grünen Plan.