
Ruksson
Danke für eure Kommentare.
Also der Grundriss befindet sich ja aktuell noch in Bearbeitung. Bei der Küche ist es so, dass die Insel definitiv ein wenig größer sein soll. Ich hoffe ich konnte zu einigen Anmerkungen etwas Stellung nehmen, ihr merkt, auch wir haben noch einige Gedanken, die in Umsetzung sind bzw. noch umgesetzt werden sollen. Viele eurer Punkte habe ich schon in das Gespräch mit meiner Frau genommen. Vielen Dank dafür schon mal.

Das Bett würde ich gerne mit der Kopfseite Richtung Flur stellen aber leider passt es dann mit der Länge nicht mehr und man kann vorne sehr schlecht/nicht am Bett vorbei.
Also der Grundriss befindet sich ja aktuell noch in Bearbeitung. Bei der Küche ist es so, dass die Insel definitiv ein wenig größer sein soll. Ich hoffe ich konnte zu einigen Anmerkungen etwas Stellung nehmen, ihr merkt, auch wir haben noch einige Gedanken, die in Umsetzung sind bzw. noch umgesetzt werden sollen. Viele eurer Punkte habe ich schon in das Gespräch mit meiner Frau genommen. Vielen Dank dafür schon mal.
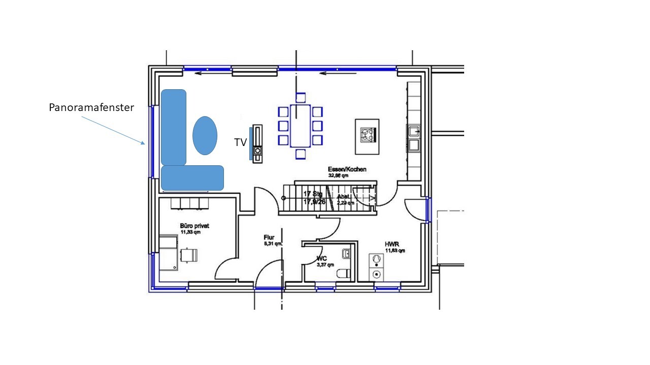
Hier sind wir noch dabei die Elemente auszuwählen. Da sind wir auch flexibel, dass es zwei Elemente werden und eines davon dann die Schiebetür hat. Die Idee sieht vor, dass das Fenster im Wohnzimmer festverglast sein soll und Essbereich die Fensterfront hin kommt und auf jeden Fall Teile davon Schiebeelemente haben werden.Mich wundert gerade, wo @pagoni2020 es anspricht, dass man 5 Meter als 2 Elemente einplant. Weißt, wie schwer 5qm Glas sind? Gibt es das überhaupt?
Wir hatten uns hier bewusst auf den Vorsprung vom Büro geeinigt, um dem Wohnzimmer noch etwas mehr Privatsphäre zu geben, wenn jemand den Wohn/Essbereich betritt. Man würde sonst hinein kommen und schaut natürlich direkt nach links auf das Sofa und mit dem Vorsprung ist dort ein kleiner Sichtschutz.Auf Trennwand und Tür im Bereich Durchgang Flur/Essen/Treppe würde ich am Treppenansatz ganz verzichten. Im Gegensatz zu @pagoni2020 sehe ich den Grundriss eher schmaler: den Tisch quer, für die Küche unter 5 Meter Breite und den Versatz Büro/WZ raus.
Die Trennwand mit dem Kamin soll noch länger werden aber Richtung Außenwand offen bleiben, da das Wohnzimmer selber etwas kleiner ist und man dadurch den Raum etwas offener gestalten könnte. Die gesamte Wand soll aber etwas Richtung Außenwand rutschen, sodass der Kamin am unteren Ende sitzt.Ich würde wohl WZ abgrenzen mit einer Wand Richtung Außenwand, am Ende der Wand dann den Kamin, zw Außenwand und Kamin dann einen Durchgang. Ohne Zarge. Eventuell Schiebetür.
Hier sieht meine Frau eine große Glastür vor, wobei ein Teil fest sein soll und die Tür nach links zu öffnen wäre. Ähnlich wie die Tür hier:Auf Trennwand und Tür im Bereich Durchgang Flur/Essen/Treppe würde ich am Treppenansatz ganz verzichten.
Ich habe mich vielleicht unglücklich ausgedrückt. Wir haben ihm unsere Ideen mitgegeben, diese hat er angefangen umzusetzen und wir befinden uns aktuell im Austausch über Kleinigkeiten, die wir an gewissen Stellen ausbessern möchten.Wenn ihr einen Architekten beauftragt warum habt ihr diesen nicht ersteinmal frei planen lassen und habt ihr lediglich Eure textlichen Ideen vorgebracht; ich empfände das als vergebene Chance und schade, denn der hat das gelernt und kann anders denken.
Diese Baustelle ist auf jeden Fall auf unserer Liste und befindet sich noch in Arbeit.Vom Bett aus schaut man direkt auf die Badezimmertür, das Bad an sich braucht noch Planung, da das Waschbecken direkt hinter der Tür nicht so gut liegt; des Weiteren kollidieren die Tür mit der Duschtür.
Das Bett würde ich gerne mit der Kopfseite Richtung Flur stellen aber leider passt es dann mit der Länge nicht mehr und man kann vorne sehr schlecht/nicht am Bett vorbei.
Den Tipp für einen Abstellraum haben wir von unserem Bauleiter bekommen. Er meinte, dass etwas Stellfläche im Obergeschoss nie schaden kann und dieser Platz dort hat sich angeboten.Im OG verursacht wieder der Übeltäter Treppeunnötige Flurfläche; muss dieser Mini-Abstellraum sein?
Wenn da noch eine Tür reinkommt bringt der wohl nicht viel oder?