ᐅ Grundrissoptimierung - Kamin-Problem
Erstellt am: 24.08.24 01:09
HomeSweetHome124.08.24 01:09
Hallo zusammen,
wir sind gerade dabei, unseren Grundriss zu optimieren, und ich hoffe, hier ein paar gute Ratschläge zu bekommen.
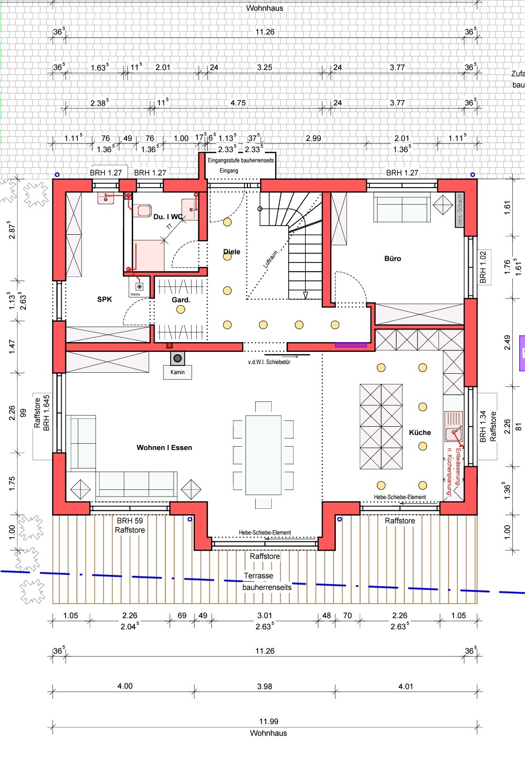
Ein besonderes Augenmerk liegt auf dem Kamin, der aktuell noch nicht unseren Vorstellungen entspricht.
Unser Wunsch wäre es, den Kamin weiter nach Osten zu verschieben, sodass er besser zwischen Wohnzimmer und Esszimmer platziert ist.
Das würde eine schönere Raumatmosphäre schaffen und den Kamin als zentrales Element zwischen den beiden Räumen hervorheben.
Das Problem hierbei ist, dass der Kaminschacht im Obergeschoss dann die Stellfläche für den Kleiderschrank im Elternschlafzimmer blockiert und auch die Tür behindert.
Wir stehen vor der Herausforderung, eine Lösung zu finden, die sowohl den Kamin im Erdgeschoss als auch die Raumnutzung im Obergeschoss berücksichtigt.
Hat jemand von euch Ideen, wie wir das Problem lösen könnten? Vielleicht durch das Versetzen der Türen oder eine andere Planung des Flures?
Eventuell habt ihr ähnliche Erfahrungen gemacht oder kreative Ansätze, die uns weiterhelfen könnten.
Ich freue mich über eure Vorschläge und Anregungen! Den Grundriss hänge ich an, damit ihr euch ein besseres Bild machen könnt.
Vielen Dank im Voraus!


wir sind gerade dabei, unseren Grundriss zu optimieren, und ich hoffe, hier ein paar gute Ratschläge zu bekommen.
Ein besonderes Augenmerk liegt auf dem Kamin, der aktuell noch nicht unseren Vorstellungen entspricht.
Unser Wunsch wäre es, den Kamin weiter nach Osten zu verschieben, sodass er besser zwischen Wohnzimmer und Esszimmer platziert ist.
Das würde eine schönere Raumatmosphäre schaffen und den Kamin als zentrales Element zwischen den beiden Räumen hervorheben.
Das Problem hierbei ist, dass der Kaminschacht im Obergeschoss dann die Stellfläche für den Kleiderschrank im Elternschlafzimmer blockiert und auch die Tür behindert.
Wir stehen vor der Herausforderung, eine Lösung zu finden, die sowohl den Kamin im Erdgeschoss als auch die Raumnutzung im Obergeschoss berücksichtigt.
Hat jemand von euch Ideen, wie wir das Problem lösen könnten? Vielleicht durch das Versetzen der Türen oder eine andere Planung des Flures?
Eventuell habt ihr ähnliche Erfahrungen gemacht oder kreative Ansätze, die uns weiterhelfen könnten.
Ich freue mich über eure Vorschläge und Anregungen! Den Grundriss hänge ich an, damit ihr euch ein besseres Bild machen könnt.
Vielen Dank im Voraus!
motorradsilke24.08.24 07:25
Der Kamin muss ja nicht zwingend direkt neben dem Schornstein stehen. Eine gewisse Strecke kannst du mit Rohren überbrücken.
Du musst für den Schornstein eh gewisse Abstände zum Nachbarn beachten.
Du musst für den Schornstein eh gewisse Abstände zum Nachbarn beachten.
Schorsch_baut24.08.24 08:40
Den Grundriss vom OG würde ich in der Gesamtheit noch mal überdenken.
ypg24.08.24 08:51
Er könnte zb in der Garderobe landen, oben rückt dann die Dusche etwas nach planoben.
Wo soll denn der genannte Osten sein?
Und wenn der Schornstein oben aus dem Schlafzimmer wegfällt, habt ihr auch nicht mehr Schrankfläche. Für wen muss das reichen?
Ihr plant das Schlafzimmer als Durchgangsraum, das würde ich definitiv ändern.
Wo kommt denn die Technik hin?
Wo soll denn der genannte Osten sein?
Und wenn der Schornstein oben aus dem Schlafzimmer wegfällt, habt ihr auch nicht mehr Schrankfläche. Für wen muss das reichen?
Ihr plant das Schlafzimmer als Durchgangsraum, das würde ich definitiv ändern.
Wo kommt denn die Technik hin?
HomeSweetHome124.08.24 10:27
Schorsch_baut schrieb:
Den Grundriss vom OG würde ich in der Gesamtheit noch mal überdenken.Hi, warum das denn? Was fällt denn negativ auf?
HomeSweetHome124.08.24 10:29
motorradsilke schrieb:
Der Kamin muss ja nicht zwingend direkt neben dem Schornstein stehen. Eine gewisse Strecke kannst du mit Rohren überbrücken.
Du musst für den Schornstein eh gewisse Abstände zum Nachbarn beachten.Hallo, danke für deine Antwort. Das "Problem" ist ja aber der Schornstein, bzw. dessen Platzierung..
Damit im EG und OG der Schornstein einen passenden Weg hat..
Ähnliche Themen