ᐅ Schornstein in Wand verschieben - Vorteile - Nachteile?
Erstellt am: 28.06.18 09:43
Hallo zusammen,
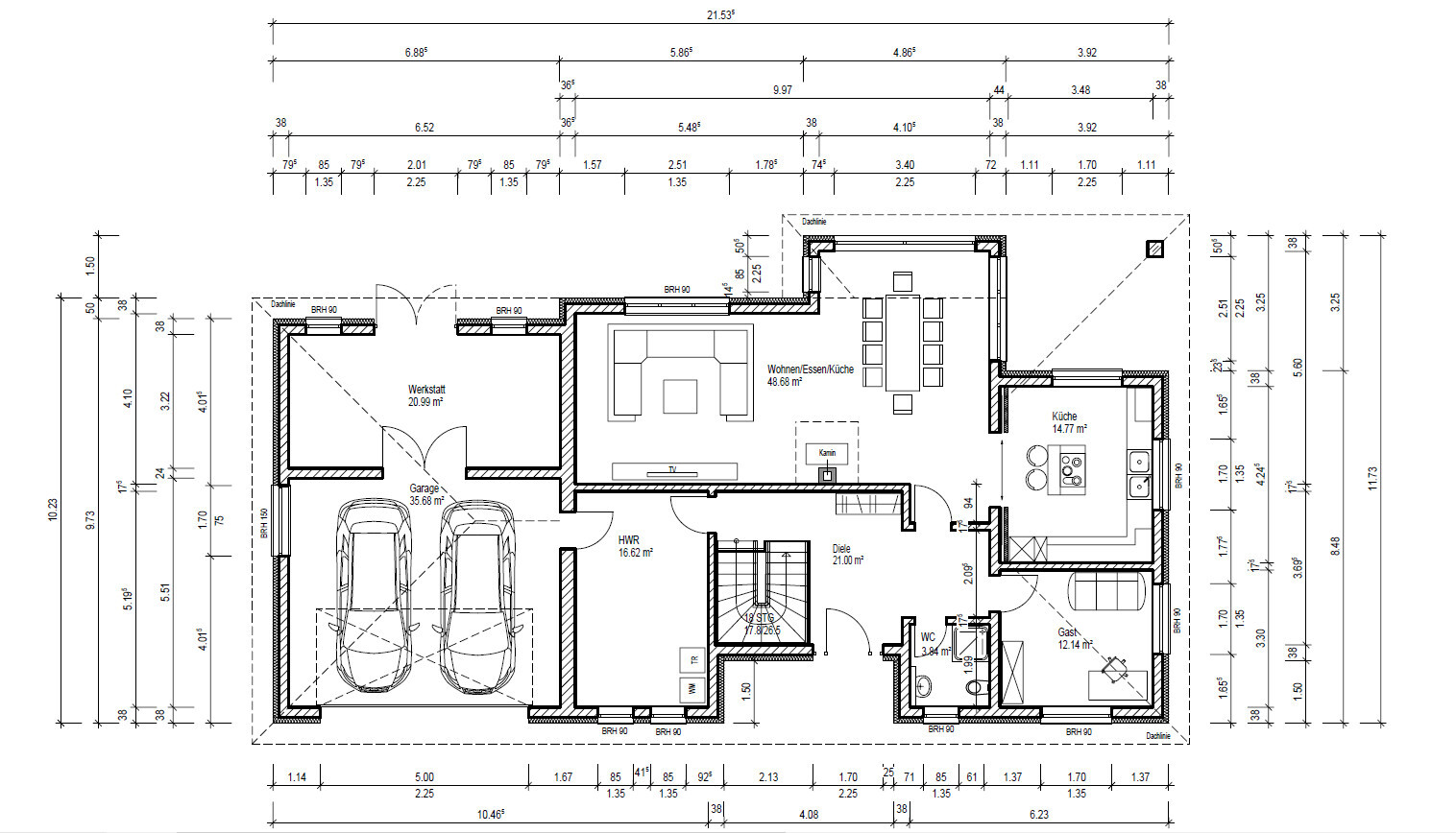
unser Grundriss steht eigentlich schon eine ganze Weile. Bei den Statikberechnungen ist nun aufgefallen, dass die Lage des Schornsteins ungünstig für die Dachkonstruktion ist. Dieser verläuft genau durch die Gratsparren.
Nun hatte ich mich mit dem Architekturbüro geeinigt, dass wir den Schornstein einen halben Meter verschieben. Heute morgen fiel dann wohl aber auf, dass das nicht reicht und weitere 8 cm verschoben werden müsste, da der Dachdecker auch noch Platz für die Verblechung am Grat bräuchte (keine Ahnung was genau damit gemeint ist).
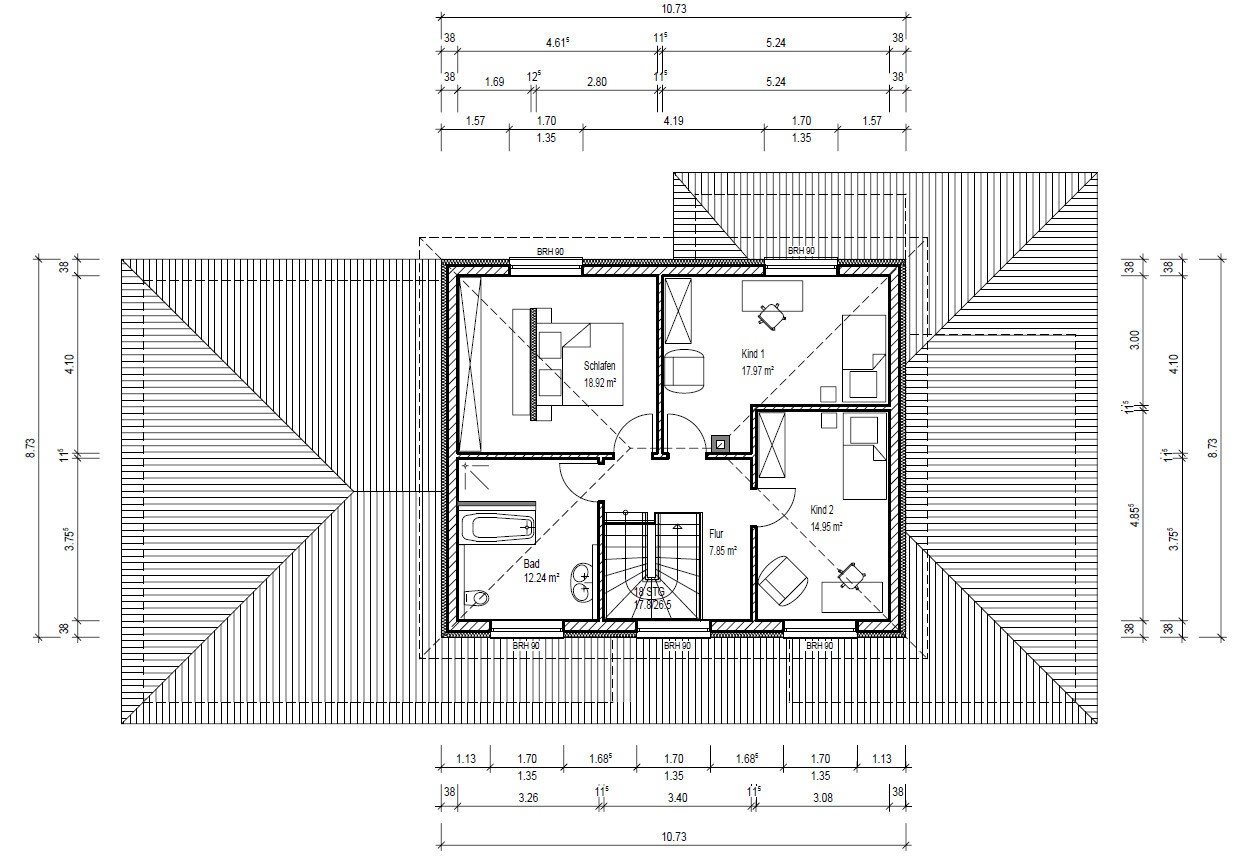
dem zufolge steht der Schornstein im OG nun in der Wand zwischen den beiden Kinderzimmern.
Abgesehen davon, dass der Schornstein sich nun im EG immer weiter nach rechts verschiebt und damit die Optik leidet, gibt es Nachteile die uns hier entstehen? Bspw. Schallprobleme o.Ä.?
(Als Wand ist eine 11,5 cm Kalksandsteinwand geplant.)

unser Grundriss steht eigentlich schon eine ganze Weile. Bei den Statikberechnungen ist nun aufgefallen, dass die Lage des Schornsteins ungünstig für die Dachkonstruktion ist. Dieser verläuft genau durch die Gratsparren.
Nun hatte ich mich mit dem Architekturbüro geeinigt, dass wir den Schornstein einen halben Meter verschieben. Heute morgen fiel dann wohl aber auf, dass das nicht reicht und weitere 8 cm verschoben werden müsste, da der Dachdecker auch noch Platz für die Verblechung am Grat bräuchte (keine Ahnung was genau damit gemeint ist).
dem zufolge steht der Schornstein im OG nun in der Wand zwischen den beiden Kinderzimmern.
Abgesehen davon, dass der Schornstein sich nun im EG immer weiter nach rechts verschiebt und damit die Optik leidet, gibt es Nachteile die uns hier entstehen? Bspw. Schallprobleme o.Ä.?
(Als Wand ist eine 11,5 cm Kalksandsteinwand geplant.)
denz. schrieb:
Heute morgen fiel dann wohl aber auf, dass das nicht reicht und weitere 8 cm verschoben werden müsste, da der Dachdecker auch noch Platz für die Verblechung am Grat bräuchteWohl eher 12,5 Ich sage es ganz offen: ich habe an manchen Tagen schlicht keine Lust, selber in der Beitragshistorie eines TE herumzusuchen, ob und wo das Haus (oder zumindest mal die Grundrisse) im ganzen zu sehen ist/sind. Die auf den wunden Punkt gezoomten Bildauschnittchen geben aber die Zusammenhänge mangelhaft her, was die Ratgabe erschwert.
https://www.instagram.com/11antgmxde/
https://www.linkedin.com/company/bauen-jetzt/
Wir haben den Kamin quasi doppelt - Gas und Sichtofen. Und das dann beiderseits der Wand. Das einzig negative, das mit aufgefallen ist: es gibt eine kleine Dehnungsfuge in der Wand, die mit Silicon (???) geschlossen werden musst und natürlich trotzdem sichtbar bleibt; auch der Putzer muss natürlich etwas mehr aufpassen und ggf. mit Gewebe arbeiten.
Ach ja, und im Zweifelsfall strahlt die Wärme in zwei Räume leicht ab bei euch (nehme an, es ist für einen Kaminofen).
Teilweise wurden die Kamine bei uns aber auch ummauert- redet mit euren Planer, wo wirklich das Fertigteil vom Kamin bleibt und wo Wände gesetzt werden können/ müssen.
Ach ja, und im Zweifelsfall strahlt die Wärme in zwei Räume leicht ab bei euch (nehme an, es ist für einen Kaminofen).
Teilweise wurden die Kamine bei uns aber auch ummauert- redet mit euren Planer, wo wirklich das Fertigteil vom Kamin bleibt und wo Wände gesetzt werden können/ müssen.
Ach so habe nicht daran gedacht, dass der gesamte Grundriss nötig ist.
Musst und sollst du natürlich auch nicht zusammen suchen:
Aber wieso 12,5?
Ok das leicht Wärme abgestrahlt wird ist nicht so schlimm.
Wir bauen mit einem GU. Dieser stellt den Fertigteilschornstein, sowie Wand und verputzt auch. Von daher sollte er das hoffentlich unter einen Hut kriegen.
Ich könnte mir halt vorstellen, dass der Putz im anderen Kinderzimmer leichter reißt an der Stelle wo der Übergang von Schornstein (Was für eine Art Stein ist das eig?) und Kalksandsteinwand.
Musst und sollst du natürlich auch nicht zusammen suchen:
Aber wieso 12,5?
Ok das leicht Wärme abgestrahlt wird ist nicht so schlimm.
Wir bauen mit einem GU. Dieser stellt den Fertigteilschornstein, sowie Wand und verputzt auch. Von daher sollte er das hoffentlich unter einen Hut kriegen.
Ich könnte mir halt vorstellen, dass der Putz im anderen Kinderzimmer leichter reißt an der Stelle wo der Übergang von Schornstein (Was für eine Art Stein ist das eig?) und Kalksandsteinwand.
Ich meine mich zu entsinnen, dass ich von Anfang an gemeint hatte, dass der Schornstein in die Ecke soll.
Wir haben unseren Schornstein im OG auch als "Wand" verbaut. Also die Zimmerwand wurde an den Schornstein bündig herangeführt und dann gemeinsam verblendet. Wüßte nicht, was das für Nachteile haben sollte. Schall im Kinderzimmer? Schnarchen die nachts schon so laut?
Welchen Kamin habt Ihr denn ausgesucht für's WZ? Mit einer deckenhohen Gestaltung kann man Schornsteine wunderbar verschwinden lassen, egal ob links, rechts oder mittig an der Wand.
Wir haben unseren Schornstein im OG auch als "Wand" verbaut. Also die Zimmerwand wurde an den Schornstein bündig herangeführt und dann gemeinsam verblendet. Wüßte nicht, was das für Nachteile haben sollte. Schall im Kinderzimmer? Schnarchen die nachts schon so laut?
Welchen Kamin habt Ihr denn ausgesucht für's WZ? Mit einer deckenhohen Gestaltung kann man Schornsteine wunderbar verschwinden lassen, egal ob links, rechts oder mittig an der Wand.
Zwölfeinhalb statt acht, weil ich immer ganze Oktameterschritte machen würde. Stellt Deine Zeichnung die Verschiebung +50 oder schon +50 +8 dar ?
Schade, daß die anderen Zeichnungen in diesem Fall nicht dazu führen, daß ich mit einer raffinierteren / eleganteren Idee dienen könnte.
Ich muß gestehen, als ich Deine Pläne seinerzeit gesehen und kommentiert habe, den Schornstein im Grat wohl übersehen zu haben. Mindestens in der Ansichtsdarstellung hätte das auffallen müssen.
Wenn es da oben nur um 8 cm geht (na ja, mit Toleranz vielleicht lieber 10), dann ließe sich vielleicht die Gratlinie verschieben, indem man die Dachüberstände leicht variiert ?
Das schiene mir eleganter, als den Schornstein im Kinderzimmer auch noch vorspringen lassen zu müssen.
Der "Materialwechsel" Innenwand / Schornstein ist unproblematisch, eine Dehnungsfuge kann man im Farbton angleichen.
https://www.instagram.com/11antgmxde/
https://www.linkedin.com/company/bauen-jetzt/
Schade, daß die anderen Zeichnungen in diesem Fall nicht dazu führen, daß ich mit einer raffinierteren / eleganteren Idee dienen könnte.
Ich muß gestehen, als ich Deine Pläne seinerzeit gesehen und kommentiert habe, den Schornstein im Grat wohl übersehen zu haben. Mindestens in der Ansichtsdarstellung hätte das auffallen müssen.
Wenn es da oben nur um 8 cm geht (na ja, mit Toleranz vielleicht lieber 10), dann ließe sich vielleicht die Gratlinie verschieben, indem man die Dachüberstände leicht variiert ?
Das schiene mir eleganter, als den Schornstein im Kinderzimmer auch noch vorspringen lassen zu müssen.
Der "Materialwechsel" Innenwand / Schornstein ist unproblematisch, eine Dehnungsfuge kann man im Farbton angleichen.
https://www.instagram.com/11antgmxde/
https://www.linkedin.com/company/bauen-jetzt/
Ähnliche Themen