ᐅ Schornstein falsch eingezeichnet
Erstellt am: 04.01.16 18:05
hallo, wir haben folgende Problematik: der Architekt hat den Schornstein im OG falsch eingezeichnet. Als nun die Maurer nachdem der Schornstein hochgezogen war im OG los legen wollten haben diese festgestellt das der Schornstein um ca 1 Meter falsch eingezeichnet war und dieser nun den kompletten Grundriss, der vorher quadratisch, praktisch gut war umwirft und dieser nun recht verwinkelt wird.
Unser Bauunternehmen hat diesen Fehler beim Einreichen des Bauantrags ect nicht gesehen.
Wir würden den Schornstein gern komplett versetzen, dies geht aber angeblich aus bautechnischen Gründen nicht. Allerdings hat das Bauunternehmen diese Gründe nicht spezifiziert, so dass ich dem kein Glauben schenke und eigentlich auf eine Versetzung bestehen wollen würde. Das Haus ist schon verklinkert und gedeckt.
Nun meine Fragen: ist eine Versetzung/Abriss Neuaufbau eines Schornsteins wirklich so problematisch?
Wenn wir nun mit dem verwinkelten unliebsamen Grundriss leben müssen, können wir dann Rechnungen bezüglich der Zeichnungen zurück fordern und auch weitere Wiedergutmachungen verlangen? Schließlich müssen wir dann unser Leben in den verwinkelten Räumen verbringen und werden uns sicher häufig drüber aufregen, da der Schornstein nun direkt am Ende der Treppe rauskommt.
Vielen Dank für eure Meinungen. Das ein Schornstein, Kamin aus Dämmungsgründen nicht notwendig ist, ist mir klar...
Unser Bauunternehmen hat diesen Fehler beim Einreichen des Bauantrags ect nicht gesehen.
Wir würden den Schornstein gern komplett versetzen, dies geht aber angeblich aus bautechnischen Gründen nicht. Allerdings hat das Bauunternehmen diese Gründe nicht spezifiziert, so dass ich dem kein Glauben schenke und eigentlich auf eine Versetzung bestehen wollen würde. Das Haus ist schon verklinkert und gedeckt.
Nun meine Fragen: ist eine Versetzung/Abriss Neuaufbau eines Schornsteins wirklich so problematisch?
Wenn wir nun mit dem verwinkelten unliebsamen Grundriss leben müssen, können wir dann Rechnungen bezüglich der Zeichnungen zurück fordern und auch weitere Wiedergutmachungen verlangen? Schließlich müssen wir dann unser Leben in den verwinkelten Räumen verbringen und werden uns sicher häufig drüber aufregen, da der Schornstein nun direkt am Ende der Treppe rauskommt.
Vielen Dank für eure Meinungen. Das ein Schornstein, Kamin aus Dämmungsgründen nicht notwendig ist, ist mir klar...
B
Bauexperte04.01.16 19:58Baust Du mit Keller oder auf Bodenplatte?
Grüße, Bauexperte
Bauexperte
Grüße, Bauexperte
Bauexperte
Wie das Ganze rechtlich ist, kann ich nicht sagen - Laienmeinung widerspricht da ja oft der Wahrheit - und selbst die Wahrheit ist oft teuer und unwegsam.
Poste doch mal den Grundriss, vielleicht hat ja jemand hier eine gestalterische Idee (natürlich nur für den Fall, dass das wirklich unverhältnismäßig wäre den Schornstein zu versetzen).
Poste doch mal den Grundriss, vielleicht hat ja jemand hier eine gestalterische Idee (natürlich nur für den Fall, dass das wirklich unverhältnismäßig wäre den Schornstein zu versetzen).
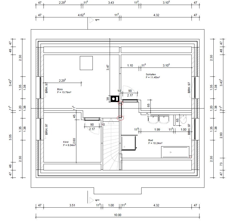
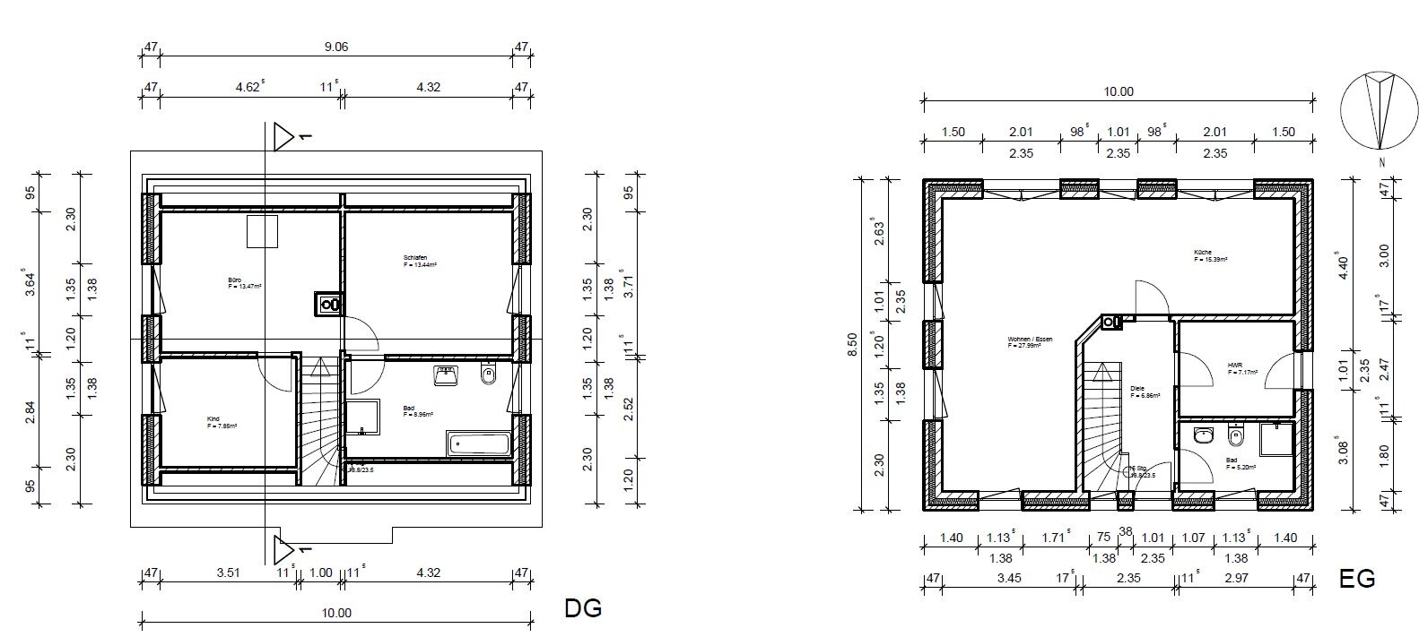
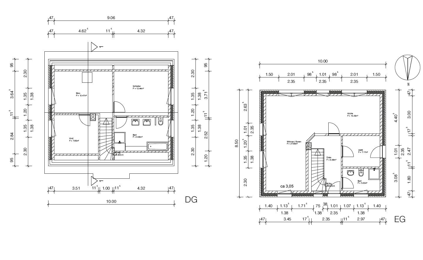
Der Bau ist ohne Keller auf Bodenplatte. Ich habe einmal den Grundriss wie er dem Bauamt vorliegt (zwischenablage01) beigefügt und die derzeitige Lösung mit den verwinkelten Räumen (zwischenablage02). Hier ist dann die Treppe steiler. Im Grundriss der geplant war habe ich mit Kuli den echten Stand des Schornsteins eingezeichnet. So wird deutlich das die geplante Tür zum Schlafzimmer nicht mehr realisierbar ist.... In der verwinkelten Lösung habe ich schon ein paar Möbel eingezeichnet, damit wir uns mehr damit anfreunden können... Funktioniert aber auch nicht so richtig...
Wir würden den Schornstein gern so versetzen, dass dieser neben der Treppe hoch geht und so dann oben im Kinderzimmer/Büro rauskommt. Also quasi der Schornstein um 90 Grad gedreht und dann links neben der schrägen Wand...(zwischenablage3)
Ich wäre echt für jede Lösung dankbar - ich bin einfach mit meinem Latein am Ende und der Architekt war bisher keine Hilfe, da die Lösung auch schon von mir kommt... Leider haben wir vorher nie eine Zeichnung wie in Zwischenablage03 gesehen... auch diese kommt nun von mir...



Wir würden den Schornstein gern so versetzen, dass dieser neben der Treppe hoch geht und so dann oben im Kinderzimmer/Büro rauskommt. Also quasi der Schornstein um 90 Grad gedreht und dann links neben der schrägen Wand...(zwischenablage3)
Ich wäre echt für jede Lösung dankbar - ich bin einfach mit meinem Latein am Ende und der Architekt war bisher keine Hilfe, da die Lösung auch schon von mir kommt... Leider haben wir vorher nie eine Zeichnung wie in Zwischenablage03 gesehen... auch diese kommt nun von mir...
Zwischenablage 1 war geplant von euch aus auch in Ordnung
Zwischenablage 2 zeigt den Stand im OG - wo steht der Kamin denn im EG?
Zwischenablage 3 zeigt - was eigentlich? Was ihr nun haben wollen würdet?
Verstehe ich das richtig, dass das Kind stets durch das Schlafzimmer gehen muss, wenn es auf Toilette möchte, oder habt ihr kein Kind?
Der Schornstein ist für einen Kamin?
Zwischenablage 2 zeigt den Stand im OG - wo steht der Kamin denn im EG?
Zwischenablage 3 zeigt - was eigentlich? Was ihr nun haben wollen würdet?
Verstehe ich das richtig, dass das Kind stets durch das Schlafzimmer gehen muss, wenn es auf Toilette möchte, oder habt ihr kein Kind?
Der Schornstein ist für einen Kamin?
U
Username_wahl04.01.16 23:078 qm Kinderzimmer mit Schräge ist nicht so üppig
Ähnliche Themen