ᐅ Grundrissoptimierung Einfamilienhaus: Giebeleingang und Keller
Erstellt am: 02.01.25 19:27
F
FlowerstoneH
hanghaus202303.01.25 09:10Danke für die Rückmeldung.
Auch hier noch an Alle ein Gesundes Neues Jahr.
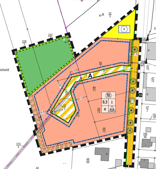
Ich dachte eigentlich an den ganzen Bebauungsplan mit Textfassung. Wie soll man sonst die Dachauswirkungen beurteilen. Zu Garagen und Stellplätze ist oft auch eine gesonderte Regelung enthalten.
Bitte keinen Link hier posten. Nenn den einfach.
Das Gelände erfordert keinen Keller. Das ist fast eben.
@ypg die Landesbauordnung sollte Niedersachsen sein.
Auch hier noch an Alle ein Gesundes Neues Jahr.
Ich dachte eigentlich an den ganzen Bebauungsplan mit Textfassung. Wie soll man sonst die Dachauswirkungen beurteilen. Zu Garagen und Stellplätze ist oft auch eine gesonderte Regelung enthalten.
Bitte keinen Link hier posten. Nenn den einfach.
Das Gelände erfordert keinen Keller. Das ist fast eben.
@ypg die Landesbauordnung sollte Niedersachsen sein.
H
hanghaus202303.01.25 10:41Hier gibt es einen Beitrag mit einem etwas kleineren Haus.
https://www.hausbau-forum.de/threads/grundriss-fuer-11m-x-8-25m-ok.24781/page-8
eventuell geht da noch etwas schmaler??
https://www.hausbau-forum.de/threads/grundriss-fuer-11m-x-8-25m-ok.24781/page-8
eventuell geht da noch etwas schmaler??
hanghaus2023 schrieb:
@ypg die Landesbauordnung sollte Niedersachsen seinSollte?Ich tausche mich sehr gern mit Dir aus @hanghaus2023 und schätze Deine Hilfe.
Allerdings schließe ich auf die fehlende Antwort des TEs darauf, dass er nicht weiter diskutieren mag.
H
hanghaus202303.01.25 12:08ypg schrieb:
Allerdings schließe ich auf die fehlende Antwort des TEs darauf, dass er nicht weiter diskutieren mag.Zumindest liest Er ja noch was hier geschrieben wird. Ist vermutlich nicht so leicht auf die vielen Beiträge gleich zu reagieren.F
Flowerstone03.01.25 13:11Hallo Zusammen und Danke für die vielen und guten Rückmeldungen!
Ich möchte mir hier Zeit nehmen, um in mich zu gehen und möglichst sinnvolle Antworten zu geben. Bitte nicht böse sein, wenn ich etwas länger brauche.
Hier ein Versuch alles strukturiert und möglichst transparent zu beantworten:
1. Thema Schrägen Bad/Hauswirtschaftsraum nicht bedacht: Stimmt, danke für den guten Hinweis. Je nach dem wie hoch unser Kniestock am Ende wird, muss man das weiter nach innen versetzen.
2. 500k Budget: Hier haben wir tatsächlich 15k für Außenanlagen und Carport eingeplant. Ja ist knapp, wir wollen aber draußen so viel wie geht in Eigenleistung machen. Wenn's für außen aber gar nicht hinkommt, haben wir aber ggf. noch ein bisschen Spielraum nach oben. Ansonsten trauen wir uns zu Böden, Wände und Fußbodenheizung in Eigenleistung machen.
3. Landesbauordnung ist Niedersachsen. Wenn ich also richtig recherchiert habe, muss das OG in weniger als 2/3 der Grundfläche des EG eine max. Raumhöhe von 2,20m haben. Korrekt?
4. Unsere Gedanken die für einen Windfang sprechen: Nasser Hund kann nicht direkt ins Haus laufen. Hauskatze versucht nicht immer auf die Straße zu laufen. Schmutzbereich klarer abgetrennt. Große Garderobe, getrennt vom Wohnbereich.
5. Großer Garderobenschrank im Windfang: Ja, stimmt. Ist im hin und her planen irgendwie abhanden gekommen. Hier könnte man ja ggf. eine 200x60cm Nische Richtung Büro planen, ohne dass im Büro zu viel Platz verloren geht (um potenziell ein Doppelbett unterzukriegen). Oder keine gute Idee?
6. Bad im Schmutzbereich: Stimmt, guter Punkt, danke. Eingang würde im sauberen Bereich definitiv besser sein. Müsste man schauen, wie man das im Grundriss organisiert bekommt. Denke ich mal drüber nach.
7. Kinderzimmer und Schlafzimmer tauschen: Danke für den anderen Blickwinkel, habe ich so noch nicht drüber nachgedacht. Vermutlich wäre das Schlafzimmer im Norden wirklich sinnvoller.
8. Küche offen/geschlossen/Schiebetür: Auch ein gutes Argument. Es frisst echt viel Platz. Grundsätzlich finden wir eine offene Küche am schönsten. Auf der anderen Seite die "klassischen" Befürchtungen von Unordnung und Lärm, die wir nicht "wegsperren" können. Deswegen ist die Schiebetür-Lösung herausgekommen. Hier müssen wir wohl noch mal drüber meditieren. Auch hier danke für den Hinweis.
9. Unsere Gedanken zum Keller:
9.1 Ordnung: Pferdesachen, Reifen, Sportgeräte, Musikinstrumente, Papiermüll, Pfand etc. muss nicht im Wohnbereich gelagert werden/Platz finden.
9.2 Sicherheit/Flexibilität: Ich kenne mehrere Familien, die plötzlich 3 statt 2 Kinder hatten. Ohne Keller könnte hätten wir dann kein Büro mehr, was zwingend notwendig ist.
9.3 Party/Hobbyraum: Wir sind beide mit einem Keller aufgewachsen und haben den für Partys/ Hobbys viel genutzt.
9.4. Wir hätten auch gerne einen Sauna/Wellness Raum.
9.5 Unsere (vermutlich zu naive) Rechnung dahinter: Wir sparen uns die Garage und das Aufschütten des Grundstücks und haben so quasi schon einen halben Keller (Bei Nachbarn waren Garage + Aufschütten über 50k, daher der Wert). Ggf. kann man von dem Aushub etwas zum auffüllen des Gartens (nach vorherigem Beiseiteschieben des Mutterbodens) nutzen, da wir hinten im Garten über 1m Gefälle haben. Zusätzlich muss die Technik nicht ins EG, was Platz spart (habe ich aber offensichtlich in meinem Grundriss noch nicht geschafft).
10.
11. Bebauungsplan kommt gleich separat.
Ich hoffe ich hab's geschafft die Fragen halbwegs ausreichend zu beantworten. Ich merke aber, es war eine gute Entscheidung hier zu posten. Jetzt müssen wir uns noch mal auf einem ganz anderen Intensitätslevel mit dem ganzen auseinandersetzen. Danke!
Ich möchte mir hier Zeit nehmen, um in mich zu gehen und möglichst sinnvolle Antworten zu geben. Bitte nicht böse sein, wenn ich etwas länger brauche.
Hier ein Versuch alles strukturiert und möglichst transparent zu beantworten:
1. Thema Schrägen Bad/Hauswirtschaftsraum nicht bedacht: Stimmt, danke für den guten Hinweis. Je nach dem wie hoch unser Kniestock am Ende wird, muss man das weiter nach innen versetzen.
2. 500k Budget: Hier haben wir tatsächlich 15k für Außenanlagen und Carport eingeplant. Ja ist knapp, wir wollen aber draußen so viel wie geht in Eigenleistung machen. Wenn's für außen aber gar nicht hinkommt, haben wir aber ggf. noch ein bisschen Spielraum nach oben. Ansonsten trauen wir uns zu Böden, Wände und Fußbodenheizung in Eigenleistung machen.
3. Landesbauordnung ist Niedersachsen. Wenn ich also richtig recherchiert habe, muss das OG in weniger als 2/3 der Grundfläche des EG eine max. Raumhöhe von 2,20m haben. Korrekt?
4. Unsere Gedanken die für einen Windfang sprechen: Nasser Hund kann nicht direkt ins Haus laufen. Hauskatze versucht nicht immer auf die Straße zu laufen. Schmutzbereich klarer abgetrennt. Große Garderobe, getrennt vom Wohnbereich.
5. Großer Garderobenschrank im Windfang: Ja, stimmt. Ist im hin und her planen irgendwie abhanden gekommen. Hier könnte man ja ggf. eine 200x60cm Nische Richtung Büro planen, ohne dass im Büro zu viel Platz verloren geht (um potenziell ein Doppelbett unterzukriegen). Oder keine gute Idee?
6. Bad im Schmutzbereich: Stimmt, guter Punkt, danke. Eingang würde im sauberen Bereich definitiv besser sein. Müsste man schauen, wie man das im Grundriss organisiert bekommt. Denke ich mal drüber nach.
7. Kinderzimmer und Schlafzimmer tauschen: Danke für den anderen Blickwinkel, habe ich so noch nicht drüber nachgedacht. Vermutlich wäre das Schlafzimmer im Norden wirklich sinnvoller.
8. Küche offen/geschlossen/Schiebetür: Auch ein gutes Argument. Es frisst echt viel Platz. Grundsätzlich finden wir eine offene Küche am schönsten. Auf der anderen Seite die "klassischen" Befürchtungen von Unordnung und Lärm, die wir nicht "wegsperren" können. Deswegen ist die Schiebetür-Lösung herausgekommen. Hier müssen wir wohl noch mal drüber meditieren. Auch hier danke für den Hinweis.
9. Unsere Gedanken zum Keller:
9.1 Ordnung: Pferdesachen, Reifen, Sportgeräte, Musikinstrumente, Papiermüll, Pfand etc. muss nicht im Wohnbereich gelagert werden/Platz finden.
9.2 Sicherheit/Flexibilität: Ich kenne mehrere Familien, die plötzlich 3 statt 2 Kinder hatten. Ohne Keller könnte hätten wir dann kein Büro mehr, was zwingend notwendig ist.
9.3 Party/Hobbyraum: Wir sind beide mit einem Keller aufgewachsen und haben den für Partys/ Hobbys viel genutzt.
9.4. Wir hätten auch gerne einen Sauna/Wellness Raum.
9.5 Unsere (vermutlich zu naive) Rechnung dahinter: Wir sparen uns die Garage und das Aufschütten des Grundstücks und haben so quasi schon einen halben Keller (Bei Nachbarn waren Garage + Aufschütten über 50k, daher der Wert). Ggf. kann man von dem Aushub etwas zum auffüllen des Gartens (nach vorherigem Beiseiteschieben des Mutterbodens) nutzen, da wir hinten im Garten über 1m Gefälle haben. Zusätzlich muss die Technik nicht ins EG, was Platz spart (habe ich aber offensichtlich in meinem Grundriss noch nicht geschafft).
10.
hanghaus2023 schrieb:Schaue ich mir heute Abend an, danke.
Hier gibt es einen Beitrag mit einem etwas kleineren Haus.
11. Bebauungsplan kommt gleich separat.
Ich hoffe ich hab's geschafft die Fragen halbwegs ausreichend zu beantworten. Ich merke aber, es war eine gute Entscheidung hier zu posten. Jetzt müssen wir uns noch mal auf einem ganz anderen Intensitätslevel mit dem ganzen auseinandersetzen. Danke!
F
Flowerstone03.01.25 13:12hanghaus2023 schrieb:
Ich dachte eigentlich an den ganzen Bebauungsplan mit Textfassung. Wie soll man sonst die Dachauswirkungen beurteilen. Zu Garagen und Stellplätze ist oft auch eine gesonderte Regelung enthalten.
Bitte keinen Link hier posten. Nenn den einfach.Ich wusste nicht, wie ich das ohne Link bereitstellen soll. Hier also Screenshots. Ich hoffe das ist okay.Ähnliche Themen