ᐅ Grundrissoptimierung Einfamilienhaus 5 Personen (Flachdach-Bungalow >200qm)
Erstellt am: 29.05.20 11:07
A
akanezumiA
akanezumi29.05.20 11:07Hallo zusammen,
wir sind mitten in der Planung zum Neubau eines Hauses. Es soll ein großzügiges Flachdach-Bungalow für 5 Personen werden. Ich würde mich über Anregungen und Gedanken zum Grundriss freuen.
Bebauungsplan/Einschränkungen
Größe des Grundstücks: 1.300qm
Hang: ja, wenig, genaue Angaben gerade nicht parat
Randbebauung: Max. 9m Länge, 3m Höhe (genutzt für Carport + Abstellen)
Anzahl Stellplätze: 2
Geschossigkeit: EG + Keller
Dachform: Flachdach
Ausrichtung: siehe Plan
Anforderungen der Bauherren
Stilrichtung, Dachform, Gebäudetyp, Keller, Geschosse: teilunterkellerter Bungalow mit Flachdach
Anzahl der Personen, 2 Erwachsene, 3 Kinder (4,8,9)
Raumbedarf im EG: ca. 200qm
Raumbedarf im Keller: ca. 85qm
Büro: reine Familiennutzung
Schlafgäste pro Jahr: ja, daher eigenes Gästezimmer geplant
offene oder geschlossene Architektur: offene Architektur
konservativ oder moderne Bauweise: modern
offene Küche, Kochinsel: jein
Anzahl Essplätze: 8 bis 10
Kamin: ja
Musik/Stereowand: ja
Balkon, Dachterrasse: nein
Garage, Carport: ja, Doppelcarport
Hausentwurf
Von wem stammt die Planung: Architekt + DIY
Preisschätzung lt Architekt/Planer: 750.000 (nur der Bau ohne Grundstück und Möbel)
favorisierte Heiztechnik: Fußbodenheizung / Erdwärme
Lage auf dem Grundstück:
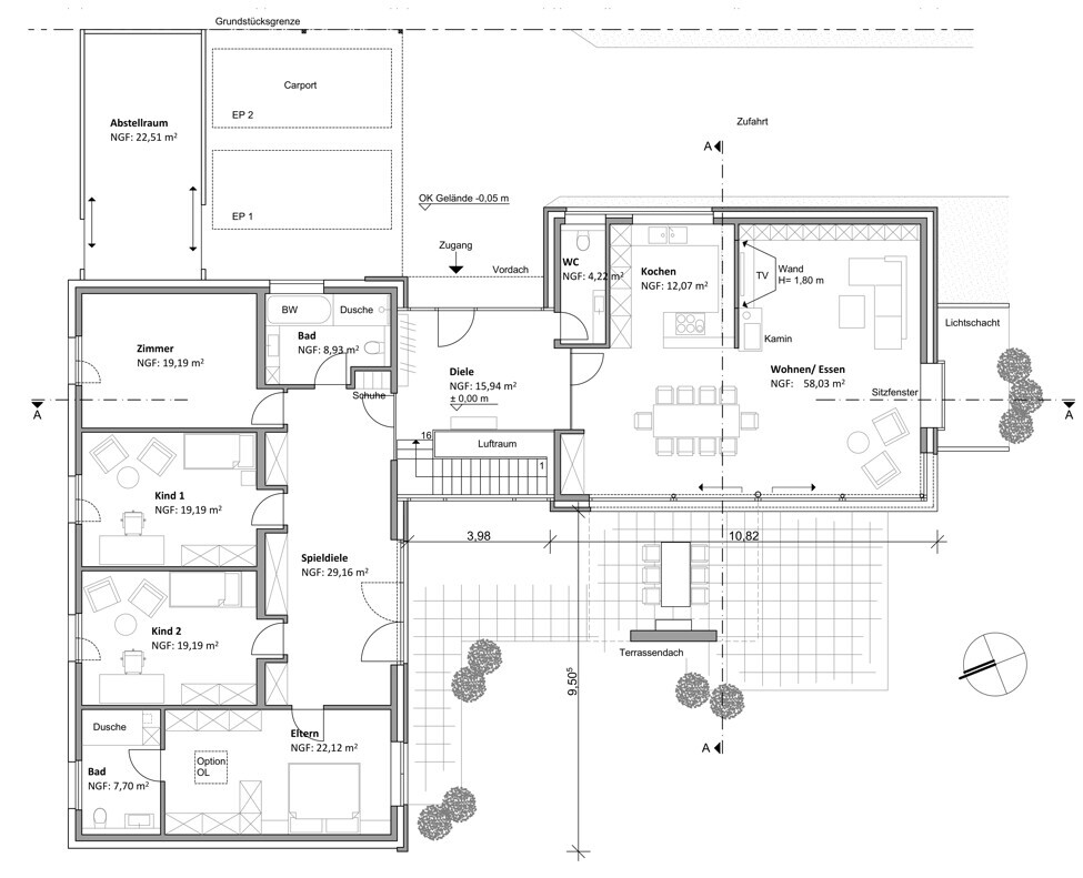
Das Grundstück ist rechteckig (ca. 30 x 44m) und fast genau in Nord-Süd-Richtung ausgerichtet. Die Straße verläuft an der südlichen Grenze. Das Haus soll ziemlich im Norden stehen (5-7m bis zur Grundstücksgrenze), damit der größte Teil des Gartens Richtung Süden ist. Grundstücksgrenzen sind begrünt und fast nicht einsehbar.
Eigene Gedanken:
Wir wollten sehr gerne alle Wohnräume auf einer Ebene haben. Das Gebäude besteht im Prinzip aus zwei Kuben, einen "privaten" Teil im Norden des Grundstücks und einen "eher öffentlichen" Teil im Südwesten. Verbunden werden beide Teile durch die Eingangsdiele.
Wir haben uns großzügige Wohn- und Schlafräume gewünscht (da wo man sich die meiste Zeit aufhält) mit großen bodentiefen Fensterflächen. Außerdem war uns eine permanentes Gästezimmer für Übernachtungsgäste und/oder Aupair wichtig.
Die Schlafräume der Kinder sind alle nach Norden raus und sollen jeweils Tür + Fenster in den Garten bekommen.
Wir sind beide keine großen Wellness-Anhänger, daher sind die Badezimmer eher kleiner und funktional geplant. Wichtig war uns außerdem ein vollwertiges Badezimmer in der Nähe des Gästezimmers (Keller). Ggf. wird das Gäste-WC in der Diele noch gestrichen und der Raum der Küche zugeordnet.
Außerdem war uns wichtig, dass wir einen großen Bereich für den Esstisch haben, an dem ohne Probleme und Umbau bis zu 10 Personen Platz haben.
Im Keller gibt es einen großen Flur, in dem ggf. unter der Treppe auch noch ein Schreibtisch passt für Nähmaschine o.ä. Außerdem einen großen Raum für verschiedene Zwecke (Kinder, Party, Ablage, Bar).
Sowohl Erdgeschoss als auch Keller sollen großzügige Deckenhöhen haben (aktuell planen wir mind. 2,70m im EG inkl. abgehängter Decke).
Aktuelle Gedanken / Herausforderungen:
- Das Sitzfenster wird voraussichtlich noch gestrichen, dafür soll die Fensterfläche um die Ecke etwas weiter gezogen werden.
- Der Carport/Abstellraum wird voraussichtlich ein oder zwei Meter weiter nach Norden wandern.
- Das Gäste-WC in der Diele wirklich streichen (3 Badezimmer sollten ja massig ausreichen)
- Ist der Technik-Raum groß genug für Erdwärme-Heizung, Schaltschrank (KNX) und Netzwerkschrank?
- Bei der Aufteilung der Küche sind wir uns noch etwas unsicher
- Türen von der Eingangsdielen sollen ggf. als Glas-Schiebetüren umgesetzt werden (da diese voraussichtlich eh meist offen stehen)
Was erhoffen wir uns:
Wir würden uns über Gedanken und Anregungen zur Planung freuen. Fallen Euch Dinge auf, an die wir nicht gedacht haben oder die man besser machen kann? Es kann nicht schaden, wenn noch mal jemand andere mit neutralem Blick über unseren Entwurf schaut.



wir sind mitten in der Planung zum Neubau eines Hauses. Es soll ein großzügiges Flachdach-Bungalow für 5 Personen werden. Ich würde mich über Anregungen und Gedanken zum Grundriss freuen.
Bebauungsplan/Einschränkungen
Größe des Grundstücks: 1.300qm
Hang: ja, wenig, genaue Angaben gerade nicht parat
Randbebauung: Max. 9m Länge, 3m Höhe (genutzt für Carport + Abstellen)
Anzahl Stellplätze: 2
Geschossigkeit: EG + Keller
Dachform: Flachdach
Ausrichtung: siehe Plan
Anforderungen der Bauherren
Stilrichtung, Dachform, Gebäudetyp, Keller, Geschosse: teilunterkellerter Bungalow mit Flachdach
Anzahl der Personen, 2 Erwachsene, 3 Kinder (4,8,9)
Raumbedarf im EG: ca. 200qm
Raumbedarf im Keller: ca. 85qm
Büro: reine Familiennutzung
Schlafgäste pro Jahr: ja, daher eigenes Gästezimmer geplant
offene oder geschlossene Architektur: offene Architektur
konservativ oder moderne Bauweise: modern
offene Küche, Kochinsel: jein
Anzahl Essplätze: 8 bis 10
Kamin: ja
Musik/Stereowand: ja
Balkon, Dachterrasse: nein
Garage, Carport: ja, Doppelcarport
Hausentwurf
Von wem stammt die Planung: Architekt + DIY
Preisschätzung lt Architekt/Planer: 750.000 (nur der Bau ohne Grundstück und Möbel)
favorisierte Heiztechnik: Fußbodenheizung / Erdwärme
Lage auf dem Grundstück:
Das Grundstück ist rechteckig (ca. 30 x 44m) und fast genau in Nord-Süd-Richtung ausgerichtet. Die Straße verläuft an der südlichen Grenze. Das Haus soll ziemlich im Norden stehen (5-7m bis zur Grundstücksgrenze), damit der größte Teil des Gartens Richtung Süden ist. Grundstücksgrenzen sind begrünt und fast nicht einsehbar.
Eigene Gedanken:
Wir wollten sehr gerne alle Wohnräume auf einer Ebene haben. Das Gebäude besteht im Prinzip aus zwei Kuben, einen "privaten" Teil im Norden des Grundstücks und einen "eher öffentlichen" Teil im Südwesten. Verbunden werden beide Teile durch die Eingangsdiele.
Wir haben uns großzügige Wohn- und Schlafräume gewünscht (da wo man sich die meiste Zeit aufhält) mit großen bodentiefen Fensterflächen. Außerdem war uns eine permanentes Gästezimmer für Übernachtungsgäste und/oder Aupair wichtig.
Die Schlafräume der Kinder sind alle nach Norden raus und sollen jeweils Tür + Fenster in den Garten bekommen.
Wir sind beide keine großen Wellness-Anhänger, daher sind die Badezimmer eher kleiner und funktional geplant. Wichtig war uns außerdem ein vollwertiges Badezimmer in der Nähe des Gästezimmers (Keller). Ggf. wird das Gäste-WC in der Diele noch gestrichen und der Raum der Küche zugeordnet.
Außerdem war uns wichtig, dass wir einen großen Bereich für den Esstisch haben, an dem ohne Probleme und Umbau bis zu 10 Personen Platz haben.
Im Keller gibt es einen großen Flur, in dem ggf. unter der Treppe auch noch ein Schreibtisch passt für Nähmaschine o.ä. Außerdem einen großen Raum für verschiedene Zwecke (Kinder, Party, Ablage, Bar).
Sowohl Erdgeschoss als auch Keller sollen großzügige Deckenhöhen haben (aktuell planen wir mind. 2,70m im EG inkl. abgehängter Decke).
Aktuelle Gedanken / Herausforderungen:
- Das Sitzfenster wird voraussichtlich noch gestrichen, dafür soll die Fensterfläche um die Ecke etwas weiter gezogen werden.
- Der Carport/Abstellraum wird voraussichtlich ein oder zwei Meter weiter nach Norden wandern.
- Das Gäste-WC in der Diele wirklich streichen (3 Badezimmer sollten ja massig ausreichen)
- Ist der Technik-Raum groß genug für Erdwärme-Heizung, Schaltschrank (KNX) und Netzwerkschrank?
- Bei der Aufteilung der Küche sind wir uns noch etwas unsicher
- Türen von der Eingangsdielen sollen ggf. als Glas-Schiebetüren umgesetzt werden (da diese voraussichtlich eh meist offen stehen)
Was erhoffen wir uns:
Wir würden uns über Gedanken und Anregungen zur Planung freuen. Fallen Euch Dinge auf, an die wir nicht gedacht haben oder die man besser machen kann? Es kann nicht schaden, wenn noch mal jemand andere mit neutralem Blick über unseren Entwurf schaut.
Daran, dass du noch keine Antwort bekommen hast, merkt man, dass der Grundriss doch recht speziell ist (großes Grundstück, konsequente Trennung von Wohnen / Familie) und euer Architekt eure Wünsche schon recht weit umgesetzt hat.
Ich würde im privaten Bereich noch über eine bessere Trennung Kinder zu Eltern nachdenken. Auch würde ich die Kinderzimmer eher in der Westseite anordnen und den Elternbereich im Nordosten. Sollte ein Elternteil aber oft später/früher kommen/gehen ist ein Schlafzimmer nah am Carport sich auch nicht optimal.#
Die 1,80m hohe Trennwand im Wohnzimmer finde ich komisch. Die würde ich raumhoch machen. Die Küche hat auch so genug Offenheit.

Ich würde im privaten Bereich noch über eine bessere Trennung Kinder zu Eltern nachdenken. Auch würde ich die Kinderzimmer eher in der Westseite anordnen und den Elternbereich im Nordosten. Sollte ein Elternteil aber oft später/früher kommen/gehen ist ein Schlafzimmer nah am Carport sich auch nicht optimal.#
Die 1,80m hohe Trennwand im Wohnzimmer finde ich komisch. Die würde ich raumhoch machen. Die Küche hat auch so genug Offenheit.
A
akanezumi29.05.20 19:59Pinky0301 schrieb:
Ich finde es schade, dass ihr so viel Fläche bebaut. Die Kinder freuen sich sicher über ein eigenes Stockwerk, nicht so nah am Eltern-Schlafzimmer.Hmm. Ich glaube, dass Grundstück gibt das her. Der Garten bleibt nach wie vor noch groß genug. Aktuell wohnen wir auf 4 Etagen (Keller, EG, 1. OG und DG) verteilt und das hat dazu geführt, dass wir möglichst keine Treppen mehr wollen. Außerdem wird man ja auch nicht jünger...akanezumi schrieb:
Es wurde uns immer nur gesagt, was wir alles nicht dürfen, aber nie genau welche Dinge wir einhalten müssen (Baugrenzen, etc. es gab ebenfalls keinen Bebauungsplan)
Ich habe dann auf ein persönliches Gespräch mit der Sachbearbeiterin und dem Vorgesetzten und unserem Architekten gedrängt. Dieses war sehr freundlich und konstruktiv, wir haben dann nochmal mit unserem Architekten umgeplant und ab dann ging es sehr schnell. Ende November den neuen Entwurf eingereicht, kurz vor Weihnachten die mündliche Zusage, erster Werktag Januar dann die offizielle Bestätigung.Das ist schön zu lesen. Magst Du uns an den Veränderungen des Entwurfes teilhaben lassen ?https://www.instagram.com/11antgmxde/
https://www.linkedin.com/company/bauen-jetzt/
M
majuhenema26.04.21 11:46Die interessieren mich auch sehr!
Ähnliche Themen