ᐅ Grundrisskizzen nach erstem Gespräch: Was sollten wir überdenken?
Erstellt am: 29.10.18 09:27
S
Susi1983Hallo liebes Forum,
ich hab hier schon oft anonym mitgelesen und wollte jetzt doch mal eure Meinung lesen.
Wir hatten vergangene Woche ein erstes Gespräch mit einem Architekten und haben uns über unsere Vorstellungen unterhalten. Ein paar Bilder und Grundrisse welche wir im Internet gefunden haben hatten wir mit. Das Gespräch war sehr nett und heute morgen hat er uns ein paar Skizzen geschickt.
Grundsätzlich gefallen uns die Grundrisse ganz gut, er meint das können wir alles noch anpassen und schieben, dazu würden wir einen Vertrag für die Vorplanung schließen.
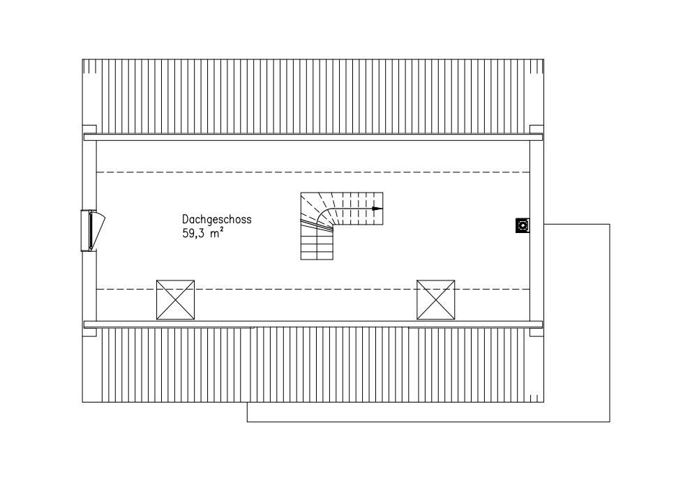
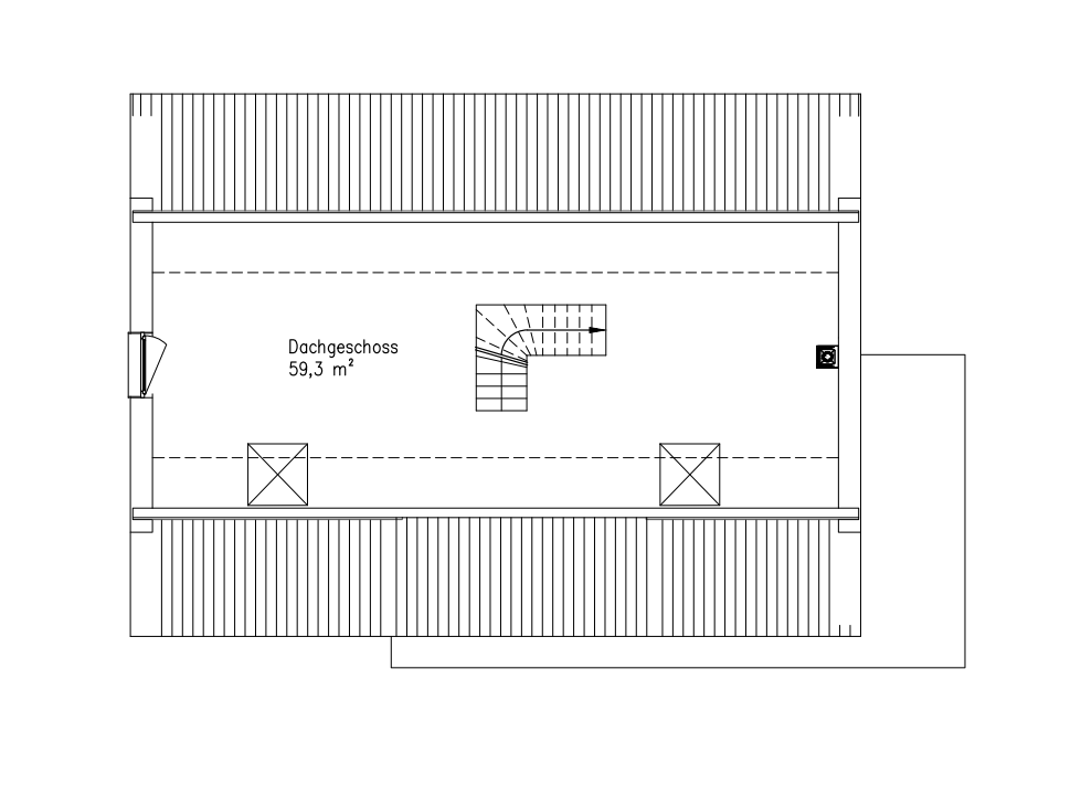
Ein Grundstück haben wir schon, bei den Skizzen ist Süden unten. Das Dachgeschoss wollen wir später selber ausbauen.
Das Haus hätte ca. 230 m² + 60 m² Dachgeschoss. Einen Keller brauchen wir nicht, auf dem Grundstück steht eine große Scheune, welche wir als Lager, geräteschuppen usw. nutzen.
Budget für das Haus (haben wir auch dem Architekten genannt) sind etwa 500 T€.
Wir haben uns aber noch nicht so viele Gedanken über Ausstattung usw. gemacht.
Liebe Grüße




ich hab hier schon oft anonym mitgelesen und wollte jetzt doch mal eure Meinung lesen.
Wir hatten vergangene Woche ein erstes Gespräch mit einem Architekten und haben uns über unsere Vorstellungen unterhalten. Ein paar Bilder und Grundrisse welche wir im Internet gefunden haben hatten wir mit. Das Gespräch war sehr nett und heute morgen hat er uns ein paar Skizzen geschickt.
Grundsätzlich gefallen uns die Grundrisse ganz gut, er meint das können wir alles noch anpassen und schieben, dazu würden wir einen Vertrag für die Vorplanung schließen.
Ein Grundstück haben wir schon, bei den Skizzen ist Süden unten. Das Dachgeschoss wollen wir später selber ausbauen.
Das Haus hätte ca. 230 m² + 60 m² Dachgeschoss. Einen Keller brauchen wir nicht, auf dem Grundstück steht eine große Scheune, welche wir als Lager, geräteschuppen usw. nutzen.
Budget für das Haus (haben wir auch dem Architekten genannt) sind etwa 500 T€.
Wir haben uns aber noch nicht so viele Gedanken über Ausstattung usw. gemacht.
Liebe Grüße
M
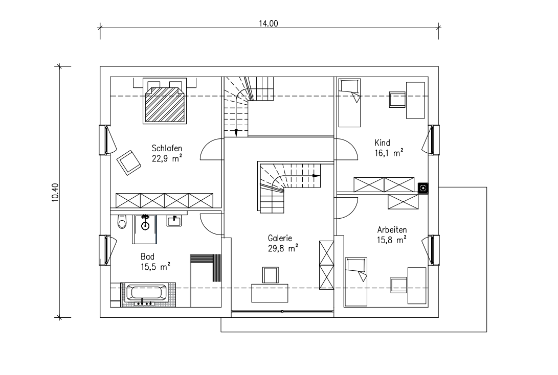
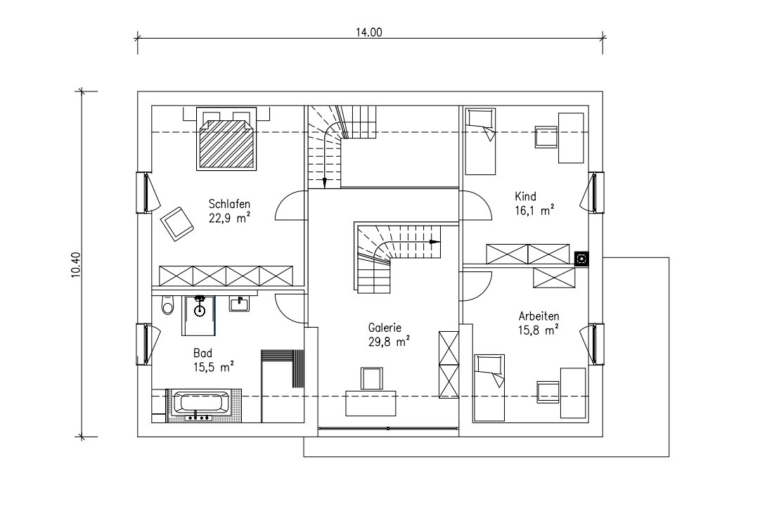
Mottenhausen29.10.18 09:40Ich würde die Galerie als Atelier nutzen und stattdessen den Essbereich ans Fenster schieben, da sonst recht finster so mittig drinne.
Dann könnt ihr auch die Treppe EG-OG unter die Treppe OG-DG schieben (enorme Platzersparnis). Im Foyer wird Platz für ein brauchbares Gästebad, denn das ist aktuell zu klein für die Hausgröße! Küche ließe sich dann mit Kochinsel gestalten. Die Minispeise-kammer bringt niemandem was.
Den Luftraum vom Foyer weg, über den Essbereich, sodass der Wohn-essbereich offener und moderner wirkt, das Galerie-Atelier wäre damit freistehend und nicht abgekapselt.
Dann könnt ihr auch die Treppe EG-OG unter die Treppe OG-DG schieben (enorme Platzersparnis). Im Foyer wird Platz für ein brauchbares Gästebad, denn das ist aktuell zu klein für die Hausgröße! Küche ließe sich dann mit Kochinsel gestalten. Die Minispeise-kammer bringt niemandem was.
Den Luftraum vom Foyer weg, über den Essbereich, sodass der Wohn-essbereich offener und moderner wirkt, das Galerie-Atelier wäre damit freistehend und nicht abgekapselt.
Danke für eure Hinweise.
Einen Lageplan haben wir leider nicht, das Grundstück ist schon lange in Familienbesitz, gibt aber kaum Unterlagen.
Westlich verläuft eine Straße (kommunal) südlich kommt ein Nachbar, nördlich Zufahrt, dann die Scheune, dann Nachbar und östlich ist erst nichts und dann Wald.
Es wird recht wahrscheinlich nicht bei 3 Bewohnern bleiben.
Einen Lageplan haben wir leider nicht, das Grundstück ist schon lange in Familienbesitz, gibt aber kaum Unterlagen.
Westlich verläuft eine Straße (kommunal) südlich kommt ein Nachbar, nördlich Zufahrt, dann die Scheune, dann Nachbar und östlich ist erst nichts und dann Wald.
Es wird recht wahrscheinlich nicht bei 3 Bewohnern bleiben.
Susi1983 schrieb:
Danke für eure Hinweise.
Einen Lageplan haben wir leider nicht, das Grundstück ist schon lange in Familienbesitz, gibt aber kaum Unterlagen.
Westlich verläuft eine Straße (kommunal) südlich kommt ein Nachbar, nördlich Zufahrt, dann die Scheune, dann Nachbar und östlich ist erst nichts und dann Wald.
Es wird recht wahrscheinlich nicht bei 3 Bewohnern bleiben.Das bitte aufmalen mit Maßangaben!
Bitte zurück auf Start und den Fragebogen ausfüllen.
Ähnliche Themen