Ist auch eine Frage, ob man jetzt so der Megakoch ist. Manche kaufen sich ne Riesenküche und lassen sich dann ständig Pizzas liefern.
Das in einem kleinen Haus auch die Küche klein ist, fände ich nicht so schlimm. Allerdings kochen wir auch nur am Wochenende und sind nur zu zweit.
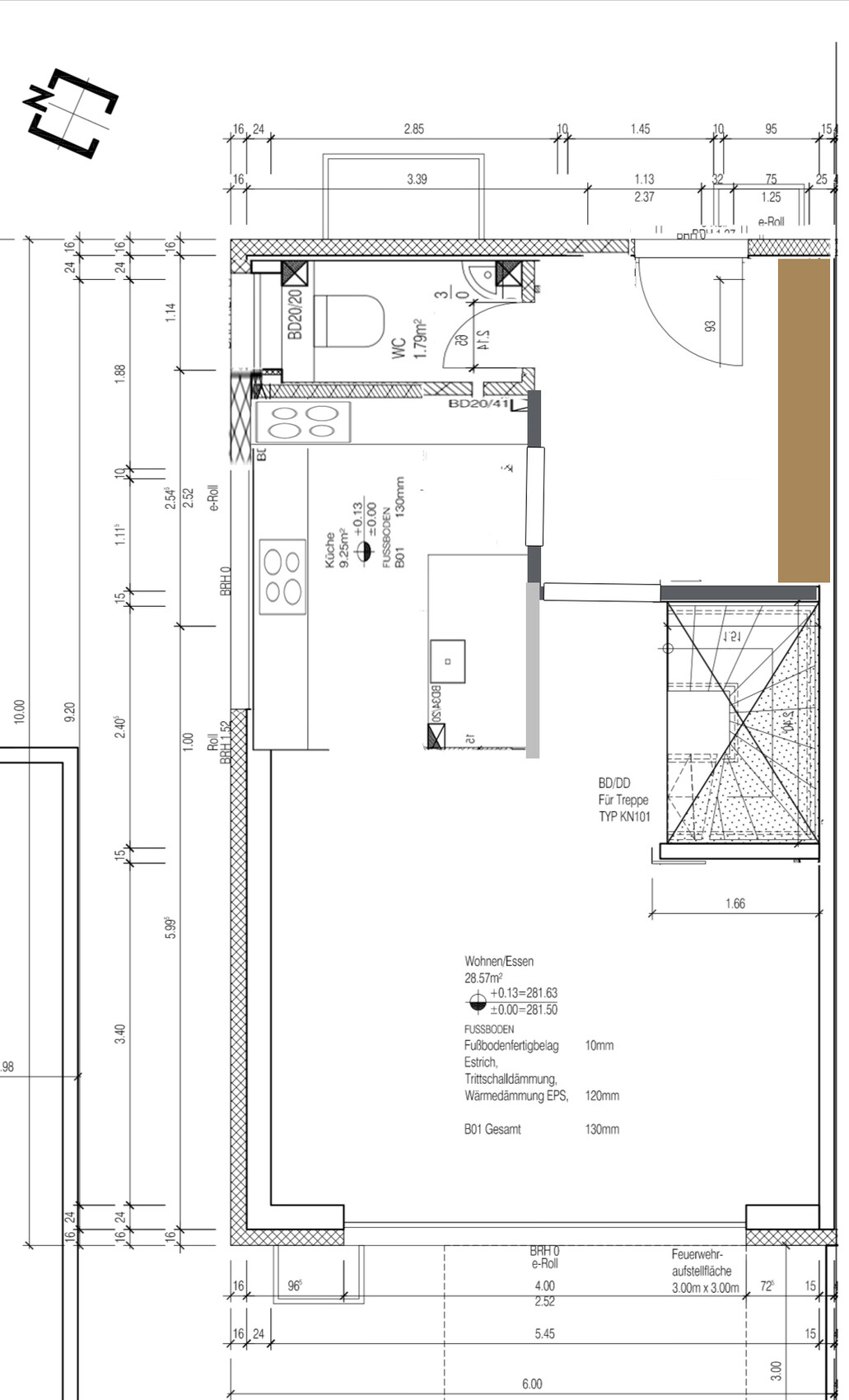
"Beides" geht dann so, wie es Yvonne vorgeschlagen hatte mit Küche drehen. Wäre auch einer meiner Favoriten. Fenster dann normale Brüstungshöhe aber auch schön breit, Hochschränke an die Wand zum WC. Wie tief die Sache in den Wohnbereich ragt, müsste man gut abwägen. Kleine Köche kleiner, große Köche größer.

Da wäre dann die restliche Möblierung auch gut zu wissen.