B
boysetsfire24.07.15 12:54Hallo zusammen,
unsere Planungen sind mittlerweile schon etwas konkreter geworden und es liegt uns der erste Entwurf unseres Bauunternehmers vor. Der Entwurf basiert auf unseren Zeichnungen die wir zusammen mit dem Bauunternehmer noch verfeinert haben.
Grundstück
945m²
leichte Hanglage bei der Auffahrt, Rest eben
Nachbargarage/Haus im Westen und Süden
Bebauungsplan
Kniestock: 75cm
Dachneigung: 42°
Geschosse: 1+DG
Satteldach
Anforderungen/Wünsche unsererseits
Anzahl Personen: 4 (wir + 2 geplante Kinder)
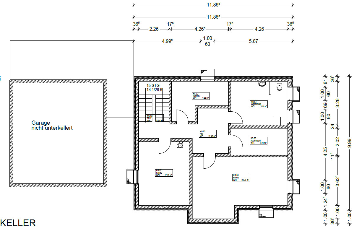
Keller
Garage mit 2 Stellplätzen
Zentrale Kontrollierte-Wohnraumlüftung
Heizung mit Fernwärme (Biogas)
EG
Büro im EG
WC mit Dusche im EG
Garderobe
offener Wohn-/Essbereich
Küche mit Kochinsel und Speis
Platz um auch mal 10 Personen am esstisch zu platzieren
Kamin im Wohn-/Essbereich
Abtrennung Wohn-/Essbereich möglich
Terrasse
DG
2 Kinderzimmer
Elternschlafzimmer mit Ankleide
Bad mit begehbarer, offener Dusche
Übergang zu Garagenraum (später evt. ausbaubar)
Wir stellen uns gerade bei den Themen
- ist das kleinere Kinderzimmer groß genug
- wie groß sollte eine Speis sein
noch die Frage ob die Planung so funktioniert, da uns hier die Erfahrung fehlt. Vielleicht könnt ihr uns mit eurer Erfahrung weiterhelfen bzw. fallen vielleicht noch andere Punkte auf die eurer Meinung nach fehlen/unpassend sind.
Wir danken schon mal für jede Hilfe! 🙂

unsere Planungen sind mittlerweile schon etwas konkreter geworden und es liegt uns der erste Entwurf unseres Bauunternehmers vor. Der Entwurf basiert auf unseren Zeichnungen die wir zusammen mit dem Bauunternehmer noch verfeinert haben.
Grundstück
945m²
leichte Hanglage bei der Auffahrt, Rest eben
Nachbargarage/Haus im Westen und Süden
Bebauungsplan
Kniestock: 75cm
Dachneigung: 42°
Geschosse: 1+DG
Satteldach
Anforderungen/Wünsche unsererseits
Anzahl Personen: 4 (wir + 2 geplante Kinder)
Keller
Garage mit 2 Stellplätzen
Zentrale Kontrollierte-Wohnraumlüftung
Heizung mit Fernwärme (Biogas)
EG
Büro im EG
WC mit Dusche im EG
Garderobe
offener Wohn-/Essbereich
Küche mit Kochinsel und Speis
Platz um auch mal 10 Personen am esstisch zu platzieren
Kamin im Wohn-/Essbereich
Abtrennung Wohn-/Essbereich möglich
Terrasse
DG
2 Kinderzimmer
Elternschlafzimmer mit Ankleide
Bad mit begehbarer, offener Dusche
Übergang zu Garagenraum (später evt. ausbaubar)
Wir stellen uns gerade bei den Themen
- ist das kleinere Kinderzimmer groß genug
- wie groß sollte eine Speis sein
noch die Frage ob die Planung so funktioniert, da uns hier die Erfahrung fehlt. Vielleicht könnt ihr uns mit eurer Erfahrung weiterhelfen bzw. fallen vielleicht noch andere Punkte auf die eurer Meinung nach fehlen/unpassend sind.
Wir danken schon mal für jede Hilfe! 🙂
B
boysetsfire24.07.15 12:55Der Hauswirtschaftsraum im EG ist übrigens das angedacht Büro.
boysetsfire schrieb:
Der Entwurf basiert auf unseren Zeichnungen die wir zusammen mit dem Bauunternehmer noch verfeinert haben.
]Das kann man leider erkennen.
Ich finde da gute Ansätze, doch leider sind die Räume zueinander überhaupt nicht abgestimmt in Bezug zu den Größen und ihren Nutzen.
Das hätte man in einer groben Skizze schon verbessern können.
Der BU hat einfach abgemalt.
Ich gehe gern heute Abend auf die Details ein, wenn ich am Rechner sitze. Ich denke aber, dass zwischenzeitlich sich noch andere zu Wort melden.
17 m² Wohnzimmerniesche, die du mit einer Schiebetür abtrennen willst - von was eigentlich? Einem undefinierten Freiraum ohne Möbel, der größer ist als das Wohnzimmer. Mir ist übrigens nicht klar, ob das Wohnzimmer mit dem Fenster jemals wirklich freundlich wird... das bekommt so für sich kaum die 12,5% hin.
Weiterhin hast du ein Kinderzimmer mit 25 m² und eines mit 11 m² - als Kind 2 bekäme ich da Komplexe.
Generell habt ihr viel zu viel Flurfläche - das kommt übrigens von der Treppe, die da so lieblos an den Rand geplant wurde - die Flure wirken sicherlich nicht mal einladend...
Finde das schon zu verkorkst, um das grad zu bügeln. Würde es ablegen und neu anfangen.
Weiterhin hast du ein Kinderzimmer mit 25 m² und eines mit 11 m² - als Kind 2 bekäme ich da Komplexe.
Generell habt ihr viel zu viel Flurfläche - das kommt übrigens von der Treppe, die da so lieblos an den Rand geplant wurde - die Flure wirken sicherlich nicht mal einladend...
Finde das schon zu verkorkst, um das grad zu bügeln. Würde es ablegen und neu anfangen.
Der Kommentar von @BeHaElJa erinnert mich daran, dass ich eine Begründung schreiben wollte. Meine sieht ähnlich aus.
Zum einen fehlt (nicht nur mir) der Grundstücksentwurf. Ansichten wären auch nicht schlecht.
Ein eigener Entwurf, der vom BU abgezeichnet wurde:
ein viel zu grosser Wohnbereich (Ihr wollt es grosszügig und eine Schiebetür wäre schick).
Essbereich ist zur Hälfte eine übergrosse leere Freifläche, dann auch noch mit Erker( must have), dafür kann man die Küche nicht gebrauchen: Eine Küchenzeile von ca. 3,40... zwei hochschränke links und rechts plus Apothekerschrank 😉 wie es in den 90ern typisch war. Dazwischen keine Ablagefläche für Obst, offene Getränkeflaschen und Kaffeemaschine. Grosszügigkeit sieht wieder anders aus als diese Küchenplanung. Und neben der Zeile eine Tür zur obligatorischen Speis, die auch woanders Platz hätte. Hier aber ist sie in das Büro hineingeschoben worden, weil sie nicht geplant wurde. Dafür ist das Büro nicht mehr möblierbar.(Speis, die muss auch noch irgendwo hin)
Man kann deutlich Eure Wünsche erkennen, die aber laienhaft ausgeführt wurden.
Im OG setzt es sich fort: die vorn gelagerte Treppe macht eine Raumanordnung recht schwer. (Treppe vorn, falls man später EG und OG trennen will) Statt anders zu planen, wird ein langer schmaler Flur gezogen, der dann in das eigentliche OG führt. Zu den verschieden grossen Kinderzimmers kann man nichts sagen... 2-3 qm wären sicherlich nicht auffällig, wenn man nicht nachmisst, aber knappe 14 qm... hui... das ist doch mal Grundlage für einen Minderwertigkeitkomplex fürs zweite Kind. 14 -16 qm je für beide Kinder reichen völlig.
Ankleide ist sehr klein, ich kann leider die qm nicht lesen. Allerdings sind nur geschätzte 40cm Schranktiefe eingezeichnet, 60 wäre normal. Dann würde man auch sehen, dass die Ankleide sehr klein ist.
Bad: bei 75cm Kniestock bei 42 Grad Dachneigung passt die Toilette überhaupt nicht dort, wo sie ist. Eine 2- Meter-Linie wäre von Vorteil. Pi mal Daumen habt ihr bei den Dachseiten auf einem Meter ungefähr 1,75 Höhe...
Über Fenstergrößen wurde gar nicht nachgedacht. Das sind zur Zeit kleine Öffnungen, sodass der Lichteinfall in den Räumen nicht ausreichen wird. ich seh da auch kein Schema, dass dabei auch die Ansichten mit berücksichtigt wurden.
Wie soll denn der Übergang von Garage zum Haus im OG gebaut werden? Soll da ein Kasten/Würfel im OG als Brücke gebaut werden?
Wenn Ihr so gross bauen wollt, würde ich mal überlegen, das Schlafzimmer mit Duschbad unten zu integrieren, oben dann das Büro. In den ersten Jahren der Kinder könnte man vorerst oben schlafen.
Ansonsten würde ich den Tipp geben, 10qm Grundfläche zu Streichen und von dem Ersparten etwas mehr an Kniestock und Fensterfläche zu investieren, den Rest einen externen Architekten als Honorar geben.
Was hat der BU den als Kostenvoranschlag genannt?
Gruss Yvonne
Zum einen fehlt (nicht nur mir) der Grundstücksentwurf. Ansichten wären auch nicht schlecht.
Ein eigener Entwurf, der vom BU abgezeichnet wurde:
ein viel zu grosser Wohnbereich (Ihr wollt es grosszügig und eine Schiebetür wäre schick).
Essbereich ist zur Hälfte eine übergrosse leere Freifläche, dann auch noch mit Erker( must have), dafür kann man die Küche nicht gebrauchen: Eine Küchenzeile von ca. 3,40... zwei hochschränke links und rechts plus Apothekerschrank 😉 wie es in den 90ern typisch war. Dazwischen keine Ablagefläche für Obst, offene Getränkeflaschen und Kaffeemaschine. Grosszügigkeit sieht wieder anders aus als diese Küchenplanung. Und neben der Zeile eine Tür zur obligatorischen Speis, die auch woanders Platz hätte. Hier aber ist sie in das Büro hineingeschoben worden, weil sie nicht geplant wurde. Dafür ist das Büro nicht mehr möblierbar.(Speis, die muss auch noch irgendwo hin)
Man kann deutlich Eure Wünsche erkennen, die aber laienhaft ausgeführt wurden.
Im OG setzt es sich fort: die vorn gelagerte Treppe macht eine Raumanordnung recht schwer. (Treppe vorn, falls man später EG und OG trennen will) Statt anders zu planen, wird ein langer schmaler Flur gezogen, der dann in das eigentliche OG führt. Zu den verschieden grossen Kinderzimmers kann man nichts sagen... 2-3 qm wären sicherlich nicht auffällig, wenn man nicht nachmisst, aber knappe 14 qm... hui... das ist doch mal Grundlage für einen Minderwertigkeitkomplex fürs zweite Kind. 14 -16 qm je für beide Kinder reichen völlig.
Ankleide ist sehr klein, ich kann leider die qm nicht lesen. Allerdings sind nur geschätzte 40cm Schranktiefe eingezeichnet, 60 wäre normal. Dann würde man auch sehen, dass die Ankleide sehr klein ist.
Bad: bei 75cm Kniestock bei 42 Grad Dachneigung passt die Toilette überhaupt nicht dort, wo sie ist. Eine 2- Meter-Linie wäre von Vorteil. Pi mal Daumen habt ihr bei den Dachseiten auf einem Meter ungefähr 1,75 Höhe...
Über Fenstergrößen wurde gar nicht nachgedacht. Das sind zur Zeit kleine Öffnungen, sodass der Lichteinfall in den Räumen nicht ausreichen wird. ich seh da auch kein Schema, dass dabei auch die Ansichten mit berücksichtigt wurden.
Wie soll denn der Übergang von Garage zum Haus im OG gebaut werden? Soll da ein Kasten/Würfel im OG als Brücke gebaut werden?
Wenn Ihr so gross bauen wollt, würde ich mal überlegen, das Schlafzimmer mit Duschbad unten zu integrieren, oben dann das Büro. In den ersten Jahren der Kinder könnte man vorerst oben schlafen.
Ansonsten würde ich den Tipp geben, 10qm Grundfläche zu Streichen und von dem Ersparten etwas mehr an Kniestock und Fensterfläche zu investieren, den Rest einen externen Architekten als Honorar geben.
Was hat der BU den als Kostenvoranschlag genannt?
Gruss Yvonne
Ähnliche Themen