ᐅ Schmuckes Eigenheim mit 140m2 auf 2 Vollgeschossen
Erstellt am: 08.03.18 15:10
R
rhönschaf08.03.18 15:10Hallo zusammen,
wir sind inzwischen kurz vor Bauantragstellung und möchten noch mal Meinungen von erfahrenen Häuslebauern hören. Im Freundes- und Verwandtenkreis haben wir den Entwurf bereits rumgezeigt, möchten jedoch eure Erfahrungen und Wissen nutzen.
Vielen Dank schon mal dafür!
Da der Entwurf von einem Architekten stammt, sind die gesetzlichen Bestimmungen eingehalten worden. Die angefügten PDF sind gedreht. Ich hab´s leider nicht hinbekommen sie anders abzuspeichern.
Bebauungsplan/Einschränkungen
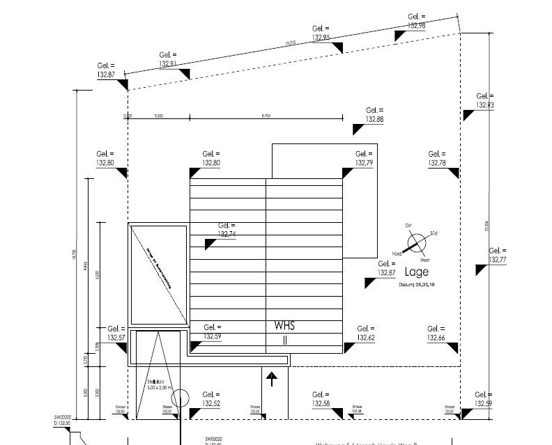
Größe des Grundstücks 386m²
Hang Nein
Grundflächenzahl 0,4
Geschossflächenzahl
Baufenster, Baulinie und -grenze 3m, keine sonstigen Vorschriften
Randbebauung zulässig
Anzahl Stellplatz 2, Garage und Zufahrt gelten jeweils als 1 Stellplatz
Geschossigkeit Max. 2 Vollgeschosse
Dachform Keine Einschränkung
Stilrichtung --
Ausrichtung --
Maximale Höhen/Begrenzungen 11m
weitere Vorgaben
Anforderungen der Bauherren
Stilrichtung, Dachform, Gebäudetyp Satteldach
Keller, Geschosse 2 Vollgeschosse
Anzahl der Personen, Alter 2, 34 und 27 Jahre
Raumbedarf im EG, OG Keine Besonderheiten
Büro: Familiennutzung oder Homeoffice? Familiennutzung
Schlafgäste pro Jahr Selten
offene oder geschlossene Architektur teils/teils
konservativ oder moderne Bauweise modern
offene Küche, Kochinsel offen, mit Theke
Anzahl Essplätze min. 4
Kamin Gewünscht
Musik/Stereowand Nein
Balkon, Dachterrasse Nein
Garage, Carport Garage
Nutzgarten, Treibhaus Nein
weitere Wünsche/Besonderheiten/Tagesablauf, gern auch Begründungen, warum dieses oder das nicht sein soll
Nichts Besonderes, ein schmuckes Eigenheim in dem man alt werden kann. Wir sitzen gerne draußen haben jedoch kein Interesse an Gartenarbeit (deshalb auch ein kleines Grundstück).
Weiter haben einen Hund, der aber pflegeleicht ist. Deswegen jedoch die Dusche im EG statt eines normalen Gäste-WC.
Hausentwurf
Von wem stammt die Planung: Architekt
Was gefällt besonders? Warum?
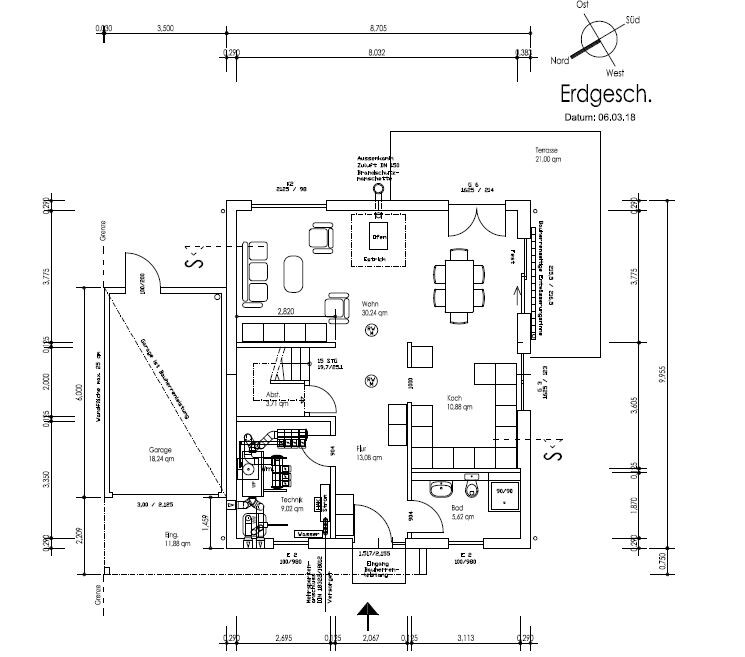
EG:
Persönliches Preislimit fürs Haus, inkl Ausstattung: passt so
favorisierte Heiztechnik: Luft-luftwärmepumpe
Wenn Ihr verzichten müsst, auf welche Details/Ausbauten
Entsprechende/Welche Wünsche wurden vom Architekten umgesetzt?
Wir benötigen keine zusätzlichen Raum im EG (Büro/Gästezimmer o.ä.). Die zwei Zusatzräume im OG sind für Gäste oder evtl. Kinder aus unserer Sicht ausreichend.
Wir taten uns zu Beginn sehr schwer und hatten viele Ideen im Kopf, z.B. eine gerade Treppe als kleinen Raumteiler Wohn-/Essbereich etc. Im Laufe der zeit hat sich dieser Entwurf herauskristallisiert, mit dem wir sehr zufrieden sind.
Unser erster Grundriss hatte zu Beginn die Außenmaße ~ 8,1 x 10,6m, wir haben aber schnell gemerkt, dass dies zu schmal ist und auf 8,7 x 10,0m gewechselt.
Was ist die wichtigste/grundlegende Frage zum Grundriss in 130 Zeichen zusammengefasst?
Wir haben den Grundriss und die Fensterplanung soweit abgeschlossen. Uns als Laien fällt kein Detail auf, welches wir vergessen haben. Wir haben wenig Platz zum Abstellen, das wissen wir, können aber damit leben (Garage wird Abstellkammer für Winterreifen, Fahrräder und alles was Frost verträgt).
Wir haben hochgesetzte Fenster im WZ und Schlafzimmer (Räume sind übereinander), was denkt ihr darüber? Wir sollten keine direkte Einsicht in diese Räume. Nachbarn haben wir auf 3 Seiten.
Edit: Habe die PDF gelöscht und JPG angehängt, dürfte jetzt einfacher sein.








wir sind inzwischen kurz vor Bauantragstellung und möchten noch mal Meinungen von erfahrenen Häuslebauern hören. Im Freundes- und Verwandtenkreis haben wir den Entwurf bereits rumgezeigt, möchten jedoch eure Erfahrungen und Wissen nutzen.
Vielen Dank schon mal dafür!
Da der Entwurf von einem Architekten stammt, sind die gesetzlichen Bestimmungen eingehalten worden. Die angefügten PDF sind gedreht. Ich hab´s leider nicht hinbekommen sie anders abzuspeichern.
Bebauungsplan/Einschränkungen
Größe des Grundstücks 386m²
Hang Nein
Grundflächenzahl 0,4
Geschossflächenzahl
Baufenster, Baulinie und -grenze 3m, keine sonstigen Vorschriften
Randbebauung zulässig
Anzahl Stellplatz 2, Garage und Zufahrt gelten jeweils als 1 Stellplatz
Geschossigkeit Max. 2 Vollgeschosse
Dachform Keine Einschränkung
Stilrichtung --
Ausrichtung --
Maximale Höhen/Begrenzungen 11m
weitere Vorgaben
Anforderungen der Bauherren
Stilrichtung, Dachform, Gebäudetyp Satteldach
Keller, Geschosse 2 Vollgeschosse
Anzahl der Personen, Alter 2, 34 und 27 Jahre
Raumbedarf im EG, OG Keine Besonderheiten
Büro: Familiennutzung oder Homeoffice? Familiennutzung
Schlafgäste pro Jahr Selten
offene oder geschlossene Architektur teils/teils
konservativ oder moderne Bauweise modern
offene Küche, Kochinsel offen, mit Theke
Anzahl Essplätze min. 4
Kamin Gewünscht
Musik/Stereowand Nein
Balkon, Dachterrasse Nein
Garage, Carport Garage
Nutzgarten, Treibhaus Nein
weitere Wünsche/Besonderheiten/Tagesablauf, gern auch Begründungen, warum dieses oder das nicht sein soll
Nichts Besonderes, ein schmuckes Eigenheim in dem man alt werden kann. Wir sitzen gerne draußen haben jedoch kein Interesse an Gartenarbeit (deshalb auch ein kleines Grundstück).
Weiter haben einen Hund, der aber pflegeleicht ist. Deswegen jedoch die Dusche im EG statt eines normalen Gäste-WC.
Hausentwurf
Von wem stammt die Planung: Architekt
Was gefällt besonders? Warum?
EG:
- Breiter gerader Flur: Einladend, genug Platz für Garderobe
- Wohn-/Essbereich, Küche in L-Form: Gefällt uns besser als alles auf einer Ebene
- Kein direkter Einblick des Nachbarn in das Wohnzimmer (Fenster hochgesetzt)
- Breiter lichtdurchfluteter Flur
- T-Bad
- Ankleide am Schlafzimmer
- Wir hätten gerne eine Podesttreppe, diese war jedoch preislich nicht drin
- Ein zusätzlicher Abstellraum im EG wäre toll, aber wir müssen uns wohl mit dem Technikraum und einer Abstellkammer unter der Treppe begnügen
- Aktuell passt in einer Mietwohnung der Platz auch mit ähnlichen Abtstellmöglichkeiten
Persönliches Preislimit fürs Haus, inkl Ausstattung: passt so
favorisierte Heiztechnik: Luft-luftwärmepumpe
Wenn Ihr verzichten müsst, auf welche Details/Ausbauten
- könnt Ihr verzichten: Kamin
- könnt Ihr nicht verzichten: Mehr kann man ja nicht mehr streichen
Entsprechende/Welche Wünsche wurden vom Architekten umgesetzt?
Wir benötigen keine zusätzlichen Raum im EG (Büro/Gästezimmer o.ä.). Die zwei Zusatzräume im OG sind für Gäste oder evtl. Kinder aus unserer Sicht ausreichend.
Wir taten uns zu Beginn sehr schwer und hatten viele Ideen im Kopf, z.B. eine gerade Treppe als kleinen Raumteiler Wohn-/Essbereich etc. Im Laufe der zeit hat sich dieser Entwurf herauskristallisiert, mit dem wir sehr zufrieden sind.
Unser erster Grundriss hatte zu Beginn die Außenmaße ~ 8,1 x 10,6m, wir haben aber schnell gemerkt, dass dies zu schmal ist und auf 8,7 x 10,0m gewechselt.
Was ist die wichtigste/grundlegende Frage zum Grundriss in 130 Zeichen zusammengefasst?
Wir haben den Grundriss und die Fensterplanung soweit abgeschlossen. Uns als Laien fällt kein Detail auf, welches wir vergessen haben. Wir haben wenig Platz zum Abstellen, das wissen wir, können aber damit leben (Garage wird Abstellkammer für Winterreifen, Fahrräder und alles was Frost verträgt).
Wir haben hochgesetzte Fenster im WZ und Schlafzimmer (Räume sind übereinander), was denkt ihr darüber? Wir sollten keine direkte Einsicht in diese Räume. Nachbarn haben wir auf 3 Seiten.
Edit: Habe die PDF gelöscht und JPG angehängt, dürfte jetzt einfacher sein.
Hallo,
nur mal auf die Schnelle: wo soll denn der TV hin? 3,75 m sind vermutlich etwas schmal für Couch und Fernseher.
Wofür sind die Zimmer 1 und 2? Zeichnet da mal Möbel rein und überlegt, ob man die Türen (auch beim Bad) nicht sinnvoller von den Zwischenwänden abrücken könnte, um dahinter Schränke stellen zu können (in den Zimmern dann am besten ca. 70 cm).
Und denkt mal drüber nach, ob man wirklich eine Ankleide braucht, wenn das Haus so klein ist! Zumal die Ankleide sogar (etwas) größer ist als das mögliche (Kinder-)Zimmer 1!?
nur mal auf die Schnelle: wo soll denn der TV hin? 3,75 m sind vermutlich etwas schmal für Couch und Fernseher.
Wofür sind die Zimmer 1 und 2? Zeichnet da mal Möbel rein und überlegt, ob man die Türen (auch beim Bad) nicht sinnvoller von den Zwischenwänden abrücken könnte, um dahinter Schränke stellen zu können (in den Zimmern dann am besten ca. 70 cm).
Und denkt mal drüber nach, ob man wirklich eine Ankleide braucht, wenn das Haus so klein ist! Zumal die Ankleide sogar (etwas) größer ist als das mögliche (Kinder-)Zimmer 1!?
Soweit ein funktionaler Entwurf.
Erdgeschoss find ich ganz gut, man muss es halt offen mögen und die Treppe im Wohnbereich darf einen nicht stören.
Wo stellt ihr denn nen Fernseher hin?
Oben finde ich weniger geschickt gelöst, wobei aus dem Eingangspost nicht klar wird, wie die weitere Planung bezüglich Kinder ist.
So wie jetzt gibt es ja eigentlich nur ein Kinderzimmer. Das kleine Zimmer ist als Büro oder Gästezimmer sicher nutzbar, als Kinderzimmer ist es schon ziemlich eng.
Dafür ist das Bad verhältnismäßig unnötig groß.
Ich würde das Bad verkleinern (auf etwa die Größe des jetzigen 'kleinen' Zimmers) und das Schlafzimmer daneben auf die Nordwest-Seite packen.
So entsteht auf der Südost-Seite Platz für zwei ordentliche Zimmer und ihr seit flexibel wenn es doch mal mehr als ein Kind gibt. Wenn nicht freut sich der Gast oder der Home-Office Benutzer über ein geräumiges Zimmer.
Erdgeschoss find ich ganz gut, man muss es halt offen mögen und die Treppe im Wohnbereich darf einen nicht stören.
Wo stellt ihr denn nen Fernseher hin?
Oben finde ich weniger geschickt gelöst, wobei aus dem Eingangspost nicht klar wird, wie die weitere Planung bezüglich Kinder ist.
So wie jetzt gibt es ja eigentlich nur ein Kinderzimmer. Das kleine Zimmer ist als Büro oder Gästezimmer sicher nutzbar, als Kinderzimmer ist es schon ziemlich eng.
Dafür ist das Bad verhältnismäßig unnötig groß.
Ich würde das Bad verkleinern (auf etwa die Größe des jetzigen 'kleinen' Zimmers) und das Schlafzimmer daneben auf die Nordwest-Seite packen.
So entsteht auf der Südost-Seite Platz für zwei ordentliche Zimmer und ihr seit flexibel wenn es doch mal mehr als ein Kind gibt. Wenn nicht freut sich der Gast oder der Home-Office Benutzer über ein geräumiges Zimmer.
Hallo,
ebenfalls auf die Schnelle:
EG gefällt ganz gut. Dusche unten halte ich für Quatsch. Weg damit und stattdessen kleine Speisekammer - tata - mehr Abstellplatz geschaffen.
Im OG rate ich eher zum Klassiker. Bad und Schlafzimmer auf eine Seite, 2 Kidis auf die andere Seite, gegenüber der Treppe Ankleide.
Skizze schnell geklaut, m² nicht beachten:

ebenfalls auf die Schnelle:
EG gefällt ganz gut. Dusche unten halte ich für Quatsch. Weg damit und stattdessen kleine Speisekammer - tata - mehr Abstellplatz geschaffen.
Im OG rate ich eher zum Klassiker. Bad und Schlafzimmer auf eine Seite, 2 Kidis auf die andere Seite, gegenüber der Treppe Ankleide.
Skizze schnell geklaut, m² nicht beachten:
Kaho, wenn jemand mit Hund eine Dusche unten will, kannst du die doch nicht als Quatsch abtun. Wir waren auch schon so manches mal froh mit 2 Hunden eine Dusche im EG gehabt zu haben. Im Winter möchte man den Hund wenn nötig nämlich nicht mitm Schlauch draußen abspritzen.
Alternative zur Dusche: Vorne ein Außenwasseranschluss mit Warmwasser.
Euer OG gefällt mir so auch nicht, obwohl das größer ist als unsere Doppelhaushälfte, wirkt alles viel kleiner. Ideen habe ich grad übers Handy eher weniger...
Alternative zur Dusche: Vorne ein Außenwasseranschluss mit Warmwasser.
Euer OG gefällt mir so auch nicht, obwohl das größer ist als unsere Doppelhaushälfte, wirkt alles viel kleiner. Ideen habe ich grad übers Handy eher weniger...
Ähnliche Themen