ᐅ Grundriss Überarbeitung, Tipps und Erfahrungen zur Verbesserung?
Erstellt am: 29.08.25 22:16
P
Philip StP
Philip St29.08.25 22:16Hallo,
wir haben uns von einer bekannten Baufirma in unserer Nähe einen Entwurf für unser zukünftiges Bauvorhaben anfertigen lassen und diesen auch bereits mehrmals überarbeitet. Für den aktuellen Plan würden wir sehr dankbar über Tipps oder alternative Gestaltungsideen sein.
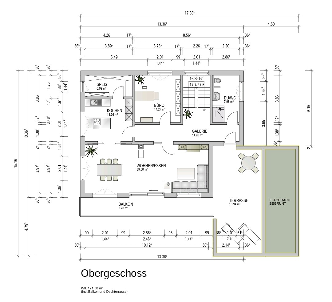
Wir hätten gerne einen Sichtdachstuhl und würden auf den sowieso sehr reduzierten Spitzboden gerne verzichten.
Die steile Einfahrt hätten wir in Kauf genommen, um eine bessere Aussicht zu erreichen.
Terrasse hinten ist aktuell nur durch den Garten erreichbar.
Gebaut werden soll aus verschiedenen Gründen erst in ca. 8 Monaten. Zwei Erwachsene, zwei Kinder (bis dahin 13 und 11 Jahre alt).
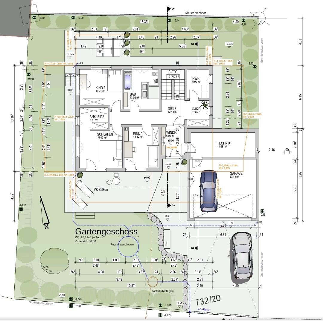
Leichtes Hanggrubdstück, 670qm.
Bebauungsplan/Einschränkungen
Kein Bebauungsplan
Größe des Grundstücks
670qm
Hang
Ja, aus Plan ersichtlich
Geschossflächenzahl
2 (Baufirma meinte, es wird sonst zu globig und wir wollen ja nur zwei Etagen)
Anzahl Stellplatz
Wir benötigen mindestens zwei Autos
Garage groß genug, um gut aussteigen zu können. Auch parken vor Garage muss möglich sein.
Dachform
Satteldach, versetztes Pultdach, noch flexibel, gerne Sichtdachstuhl, da Platz auf aktuellem Spitzboden verschwindend gering ist
Stilrichtung
Modern, mit viel Holz
Ausrichtung
Süden
Maximale Höhen/Begrenzungen
Mir nicht bekannt. Nachbar akzeptiert keine Abstandsflächenübernahme, daher haben wir auf dem Freisitz eine Begrünung zu ihm nach Osten errichtet.
Anforderungen der Bauherren
Anzahl der Personen
Zwei Erwachsene, 40 Jahre, zwei Kinder, 11 und 13 Jahre
Büro: Familiennutzung oder Homeoffice?
Büro als Gästezimmer nutzbar machen, kein Homeoffice notwendig. Trotzdem Schreibtisch und Schränke notwendig
Evtl später im OG als Schlafzimmer für die Eltern, damit ein Kind unten die Einliegerwohnung nutzen kann. Zwei Wohneinheiten also.
Schlafgäste pro Jahr
Sehr selten Besuch
offene oder geschlossene Architektur
Offen, aber mit Rückzugsmöglichkeiten
konservativ oder moderne Bauweise
Modern
offene Küche mit Kochinsel
Anzahl Essplätze 8
Kamin ja
Balkon aktuell eingezeichnet, er überspannt etwas die darunter befindliche Terrasse
Dachterrasse auf Garage
Garage als Großraumgarage mit etwas Stauraum
Nutzgarten für Zierpflanzen, viel Sträucher und eine Hecke an der Vorderseite, um Privatsphäre zu erreichen, wir würden gerne auf Schupfen verzichten können
weitere Wünsche/Besonderheiten/Tagesablauf, gern auch Begründungen, warum dieses oder das nicht sein soll
Wir wollen etwas den Ausblick nutzen, da das Grundstück sehr teuer war.
Wir sind mit dem momentanen Entwurf nicht ganz zufrieden, was ich bereits im Beitrag erklärt habe.
Steile Einfahrt, Weg von Garage zu Küche, Nach Treppe steht man vor einer Wand im OG und sieht nicht direkt aus den Fenstern, Dachterrasse isoliert, kein schneller Gartenzugang aus OG zur Terrasse im Norden
Hausentwurf
Von wem stammt die Planung:
Baufirma aus unserer Gegend, eine Architektin davon fertigte den Plan an
Was gefällt besonders? Warum?
Platz im Haus und draußen für kleines Grundstück gut genutzt
Es bleibt uns genug Gartenfläche übrig
Helle Räume, unten schlafen, oben wohnen, große Speise, Kamin im Wohnbereich, später zwei Wohneinheiten möglich, Podesttreppe
Preisschätzung laut Architekt/Planer:
680k mit Außenanlagen
Persönliches Preislimit fürs Haus, inkl. Ausstattung: 700k ohne Grundstück
favorisierte Heiztechnik: Luftwärmepumpe
Wenn Ihr verzichten müsst, auf welche Details/Ausbauten
Wir sind völlig flexibel
Warum ist der Entwurf so geworden, wie er jetzt ist? ZB
Standardentwurf vom Planer? Nein, er wurde individuell geplant, nur viel ohne uns und mit wenig Absprachen über Genauigkeiten, keine Tipps
Anbei noch Bilder und der Lageplan.











wir haben uns von einer bekannten Baufirma in unserer Nähe einen Entwurf für unser zukünftiges Bauvorhaben anfertigen lassen und diesen auch bereits mehrmals überarbeitet. Für den aktuellen Plan würden wir sehr dankbar über Tipps oder alternative Gestaltungsideen sein.
Wir hätten gerne einen Sichtdachstuhl und würden auf den sowieso sehr reduzierten Spitzboden gerne verzichten.
Die steile Einfahrt hätten wir in Kauf genommen, um eine bessere Aussicht zu erreichen.
Terrasse hinten ist aktuell nur durch den Garten erreichbar.
Gebaut werden soll aus verschiedenen Gründen erst in ca. 8 Monaten. Zwei Erwachsene, zwei Kinder (bis dahin 13 und 11 Jahre alt).
Leichtes Hanggrubdstück, 670qm.
Bebauungsplan/Einschränkungen
Kein Bebauungsplan
Größe des Grundstücks
670qm
Hang
Ja, aus Plan ersichtlich
Geschossflächenzahl
2 (Baufirma meinte, es wird sonst zu globig und wir wollen ja nur zwei Etagen)
Anzahl Stellplatz
Wir benötigen mindestens zwei Autos
Garage groß genug, um gut aussteigen zu können. Auch parken vor Garage muss möglich sein.
Dachform
Satteldach, versetztes Pultdach, noch flexibel, gerne Sichtdachstuhl, da Platz auf aktuellem Spitzboden verschwindend gering ist
Stilrichtung
Modern, mit viel Holz
Ausrichtung
Süden
Maximale Höhen/Begrenzungen
Mir nicht bekannt. Nachbar akzeptiert keine Abstandsflächenübernahme, daher haben wir auf dem Freisitz eine Begrünung zu ihm nach Osten errichtet.
Anforderungen der Bauherren
Anzahl der Personen
Zwei Erwachsene, 40 Jahre, zwei Kinder, 11 und 13 Jahre
Büro: Familiennutzung oder Homeoffice?
Büro als Gästezimmer nutzbar machen, kein Homeoffice notwendig. Trotzdem Schreibtisch und Schränke notwendig
Evtl später im OG als Schlafzimmer für die Eltern, damit ein Kind unten die Einliegerwohnung nutzen kann. Zwei Wohneinheiten also.
Schlafgäste pro Jahr
Sehr selten Besuch
offene oder geschlossene Architektur
Offen, aber mit Rückzugsmöglichkeiten
konservativ oder moderne Bauweise
Modern
offene Küche mit Kochinsel
Anzahl Essplätze 8
Kamin ja
Balkon aktuell eingezeichnet, er überspannt etwas die darunter befindliche Terrasse
Dachterrasse auf Garage
Garage als Großraumgarage mit etwas Stauraum
Nutzgarten für Zierpflanzen, viel Sträucher und eine Hecke an der Vorderseite, um Privatsphäre zu erreichen, wir würden gerne auf Schupfen verzichten können
weitere Wünsche/Besonderheiten/Tagesablauf, gern auch Begründungen, warum dieses oder das nicht sein soll
Wir wollen etwas den Ausblick nutzen, da das Grundstück sehr teuer war.
Wir sind mit dem momentanen Entwurf nicht ganz zufrieden, was ich bereits im Beitrag erklärt habe.
Steile Einfahrt, Weg von Garage zu Küche, Nach Treppe steht man vor einer Wand im OG und sieht nicht direkt aus den Fenstern, Dachterrasse isoliert, kein schneller Gartenzugang aus OG zur Terrasse im Norden
Hausentwurf
Von wem stammt die Planung:
Baufirma aus unserer Gegend, eine Architektin davon fertigte den Plan an
Was gefällt besonders? Warum?
Platz im Haus und draußen für kleines Grundstück gut genutzt
Es bleibt uns genug Gartenfläche übrig
Helle Räume, unten schlafen, oben wohnen, große Speise, Kamin im Wohnbereich, später zwei Wohneinheiten möglich, Podesttreppe
Preisschätzung laut Architekt/Planer:
680k mit Außenanlagen
Persönliches Preislimit fürs Haus, inkl. Ausstattung: 700k ohne Grundstück
favorisierte Heiztechnik: Luftwärmepumpe
Wenn Ihr verzichten müsst, auf welche Details/Ausbauten
Wir sind völlig flexibel
Warum ist der Entwurf so geworden, wie er jetzt ist? ZB
Standardentwurf vom Planer? Nein, er wurde individuell geplant, nur viel ohne uns und mit wenig Absprachen über Genauigkeiten, keine Tipps
Anbei noch Bilder und der Lageplan.
P
Papierturm30.08.25 08:33Ich versuch mich mal:
- Steigung Anfahrt: Ich sehe die Steigung nicht eingezeichnet und es ist zu früh am morgen für mich, um da nachzurechnen. Daher nur eine Warnung: Ich würde schauen, dass die Steigung maximal 10% ist. Alles, was deutlich steiler ist, wird zunehmend problematischer, insb. im Winter. (Ich habe immer noch Flashbacks von den Versuchen bei Schnee enge Gassen mit 15+ Steigung und einem untermotorisierten Kleinstwagen hochzukommen.)
- Obergeschoss: Ich würde da einige Räume tauschen. Kinderzimmer von NW nach SW, dafür das Elternschlafzimmer nach NW. Dies hätte mehrere Vorteile: 1. Das Elternschlafzimmer ist nicht als Sandwich zwischen den Kinderzimmern. 2. Das Kind im aktuell NW-Kinderzimmer bekommt mehr Sonne (Kinderzimmer sind viel mehr Aufenthaltsräume als Schlafzimmer).
- Außenfassade: Fensterflächen wirken auf mich etwas asymmetrisch und unruhig. (Mich stört das nicht. Es gibt jedoch Leute, die das stören wird.)
- Ich vermute, dass die Hausanschlüsse und co in den Technikraum kommen, nicht in den Hauswirtschaftsraum? Ansonsten: Hauswirtschaftsraum weit entfernt. Wird Versorger geben, die das nicht mitmachen. (Wir hatten z.B. tatsächlich die Vorgabe, dass wir den Hauswirtschaftsraum zur Straße planen mussten.)
- es kann sein, dass hier Stauraum knapp wird. Evtl. würde ich darüber nachdenken, unter die Treppe noch einen Mini-Abstellraum zu integrieren. (Dadurch, dass der Dachboden wegfällt, wird wohl viel Krams im Technik- und Hauswirtschaftsraum-Raum landen. Sowas wie Koffer und co könnten dann in den Treppenabstellraum.)
Vollkommen subjektiv:
- Mir gefällt die Küche nicht. Hauptsächlich, weil ich sie nicht so ganz in meinen Kopf bekomme. Kann auch an der Uhrzeit liegen. (Meine Entschuldigung heute für alles.)
- Es gibt so zwei, drei Stellen, wo ich über Fenster nachdenken würde.
-> Galerie OG nach Osten (das wird, glaube ich, viel für den Flur tun)
-> im Wohnzimmerbereich bin ich mir absolut nicht sicher, ob sich da auch ein Ostfenster noch für etwas Morgensonne anbieten würde. Dann wäre man jedoch sichtbar zur Terrasse, daher auch nicht ganz günstig.
- insgesamt ein sehr ambitioniertes Projekt. Bis auf die Platzierung von Schlafzimmer/Kinderzimmer und dem Fenster in Galerie OG gab es jetzt nichts, was mich jetzt direkt als problematisch angesprungen hat. (Aber: Papierturm heute komplett auf Schlafentzug und nicht zurechnungsfähig!)
- Steigung Anfahrt: Ich sehe die Steigung nicht eingezeichnet und es ist zu früh am morgen für mich, um da nachzurechnen. Daher nur eine Warnung: Ich würde schauen, dass die Steigung maximal 10% ist. Alles, was deutlich steiler ist, wird zunehmend problematischer, insb. im Winter. (Ich habe immer noch Flashbacks von den Versuchen bei Schnee enge Gassen mit 15+ Steigung und einem untermotorisierten Kleinstwagen hochzukommen.)
- Obergeschoss: Ich würde da einige Räume tauschen. Kinderzimmer von NW nach SW, dafür das Elternschlafzimmer nach NW. Dies hätte mehrere Vorteile: 1. Das Elternschlafzimmer ist nicht als Sandwich zwischen den Kinderzimmern. 2. Das Kind im aktuell NW-Kinderzimmer bekommt mehr Sonne (Kinderzimmer sind viel mehr Aufenthaltsräume als Schlafzimmer).
- Außenfassade: Fensterflächen wirken auf mich etwas asymmetrisch und unruhig. (Mich stört das nicht. Es gibt jedoch Leute, die das stören wird.)
- Ich vermute, dass die Hausanschlüsse und co in den Technikraum kommen, nicht in den Hauswirtschaftsraum? Ansonsten: Hauswirtschaftsraum weit entfernt. Wird Versorger geben, die das nicht mitmachen. (Wir hatten z.B. tatsächlich die Vorgabe, dass wir den Hauswirtschaftsraum zur Straße planen mussten.)
- es kann sein, dass hier Stauraum knapp wird. Evtl. würde ich darüber nachdenken, unter die Treppe noch einen Mini-Abstellraum zu integrieren. (Dadurch, dass der Dachboden wegfällt, wird wohl viel Krams im Technik- und Hauswirtschaftsraum-Raum landen. Sowas wie Koffer und co könnten dann in den Treppenabstellraum.)
Vollkommen subjektiv:
- Mir gefällt die Küche nicht. Hauptsächlich, weil ich sie nicht so ganz in meinen Kopf bekomme. Kann auch an der Uhrzeit liegen. (Meine Entschuldigung heute für alles.)
- Es gibt so zwei, drei Stellen, wo ich über Fenster nachdenken würde.
-> Galerie OG nach Osten (das wird, glaube ich, viel für den Flur tun)
-> im Wohnzimmerbereich bin ich mir absolut nicht sicher, ob sich da auch ein Ostfenster noch für etwas Morgensonne anbieten würde. Dann wäre man jedoch sichtbar zur Terrasse, daher auch nicht ganz günstig.
- insgesamt ein sehr ambitioniertes Projekt. Bis auf die Platzierung von Schlafzimmer/Kinderzimmer und dem Fenster in Galerie OG gab es jetzt nichts, was mich jetzt direkt als problematisch angesprungen hat. (Aber: Papierturm heute komplett auf Schlafentzug und nicht zurechnungsfähig!)
P
Philip St30.08.25 09:19Schon einmal vielen Dank für die sinnvollen Ideen, vor allem das Fenster im oberen Flur wird eingeplant. Uns war unten wichtig, aus dem Schlafzimmer auf die Terrasse zu gelangen und dort beispielsweise am Morgen oder Abend draußen sitzen zu können. Daher haben wir die Kinderzimmer nicht nebeneinander gesetzt. Wir denken auf jeden Fall darüber nach.
Die Steigung ist leider 2m auf 10m, 20 Prozent. Je weiter wir das Haus aber nach unten rutschen, desto schlechter der Ausblick. Je weiter nach oben desto weniger Platz hinter dem Haus für die eingezeichnete Sitzfläche an heißen Tagen.
Die Steigung ist leider 2m auf 10m, 20 Prozent. Je weiter wir das Haus aber nach unten rutschen, desto schlechter der Ausblick. Je weiter nach oben desto weniger Platz hinter dem Haus für die eingezeichnete Sitzfläche an heißen Tagen.
Ja, Ankleide vom Schlafzimmer begehbar ist doof, Schlafzimmer zw zwei Kinderzimmer ist doof, Kind im Norden ist doof, ein aus der Küche nicht zu erreichender Kräuter- und Gemüsegarten ist doof und ein Esstisch auf dem Balkon, der nicht an der Küche dran ist, ist auch doof.
Ob der Technikraum und die Leitungen nach oben Probleme machen (wo kommt der Schacht ins OG?), kann ich nicht sagen.
Ob die Zeichnung bedeutet, dass der Technikraum außerhalb der thermischen Hülle ist, kann ich auch nicht sagen.
Der Eingangsbereich mit Garderobe/Hauswirtschaftsraum rechts und Privat links ist gelungen.
Aber das war es dann auch: man geht die Treppe hoch und begegnet .. einer Wand!! Statt eines Ausblickes.
Die Küche wird als Arbeitsküche in die hinterste Ecke vom Haus gelegt, quer zum Eingang, weit entfernt von der Terrasse. Die Einkäufe werden also auch quer durchs Haus getragen. Wenn man das will, bitte. Ich finde das nicht mehr zeitgemäß. Ich hätte auch keine Lust, mich auf der Garage aufzuhalten, während unten der Garten mit allen Sinnen genossen werden könnte. Und wenn man sich die Dachterrasse mal anschaut, dann habe ich Zweifel, dass das ein Ort des Wohlfühlens werden kann. Die hat bis auf die eine Terrassentür keine Anbindung an das Haus (vom Fensterputzbalkon mal abgesehen)
Ob der Technikraum und die Leitungen nach oben Probleme machen (wo kommt der Schacht ins OG?), kann ich nicht sagen.
Ob die Zeichnung bedeutet, dass der Technikraum außerhalb der thermischen Hülle ist, kann ich auch nicht sagen.
Der Eingangsbereich mit Garderobe/Hauswirtschaftsraum rechts und Privat links ist gelungen.
Aber das war es dann auch: man geht die Treppe hoch und begegnet .. einer Wand!! Statt eines Ausblickes.
Die Küche wird als Arbeitsküche in die hinterste Ecke vom Haus gelegt, quer zum Eingang, weit entfernt von der Terrasse. Die Einkäufe werden also auch quer durchs Haus getragen. Wenn man das will, bitte. Ich finde das nicht mehr zeitgemäß. Ich hätte auch keine Lust, mich auf der Garage aufzuhalten, während unten der Garten mit allen Sinnen genossen werden könnte. Und wenn man sich die Dachterrasse mal anschaut, dann habe ich Zweifel, dass das ein Ort des Wohlfühlens werden kann. Die hat bis auf die eine Terrassentür keine Anbindung an das Haus (vom Fensterputzbalkon mal abgesehen)
P
Papierturm30.08.25 09:40Philip St schrieb:
Die Steigung ist leider 2m auf 10m, 20 Prozent. Je weiter wir das Haus aber nach unten rutschen, desto schlechter der Ausblick. Je weiter nach oben desto weniger Platz hinter dem Haus für die eingezeichnete Sitzfläche an heißen Tagen.20% ist sehr steil. Hier müssten die ersten und letzten Meter wahrscheinlich auch abgeflacht werden, damit man nicht aufsetzt mit manchen Autos.Ich würde da tatsächlich (was auch Nachteile hat!) drüber nachdenken, die Garage auf Straßenniveau einzugraben. Klar, müsste man dann Treppen ins Haus steigen (blöd für Einkäufe). Bei Schnee sich da auf die Nase zu legen oder mit dem Auto wegzuschlittern wird jedoch noch übler.
Alternativ umdenken und die Garage weiter nach hinten setzen. Klar, setzt größere Umplanungen voraus.
Ich würde hier empfehlen wirklich mal in der Umgebung irgendwo ne Steigung von 10%, 15% und 20% zu suchen, um ein Gefühl dafür zu bekommen.
Wenn ihr dann sagt, 20% geht, dann gut.
Ich kann nur sagen: 20% wäre mir viel zu steil.
P
Philip St30.08.25 11:38Was wäre dann die Lösung? Haus ganz nach unten setzen, auf Ausblick verzichten und dann aus dem OG hinten in den Garten gehen können? Dann ist die Garageneinfahrt quasi ebenerdig, aber auch im UG hinten kein Licht
Ähnliche Themen