Grundriss Stadtvilla, Einfamilienhaus Neubau Meinungen

4,90 Stern(e) 10 Votes
Zuletzt aktualisiert 22.11.2025
Sie befinden sich auf der Seite 7 der Diskussion zum Thema: Grundriss Stadtvilla, Einfamilienhaus Neubau Meinungen
>> Zum 1. Beitrag <<

M

Myrna_Loy

Mein Tipp ist auch hier - Freunde und Verwandte mit Kindern befragen und besuchen. Kein Mensch ohne Kinder kann sich auch nur im geringsten Vorstellen, wie viel Kram Kinder haben und Eltern für ihre Kinder benötigen. Ein Haus ohne Kinder muss/ kann ganz andere Anforderungen erfüllen, als ein Haus für eine Familie.
Das heißt in erster Linie Stauraum!!! und strategisch entlang der üblichen Aufenthaltslinien platzierte Bereiche, in denen Sachen abgelegt werden können oder greifbar sind. Und Bewegungsraum. Unser jetziger Flur ist z.B. hinter der Haustür nur 1,20 breit und wir könnten alle drei Monate renovieren, da die Wände verschrammt und dreckig sind. Vorm Bad haben wir noch so eine Engstelle, da rasseln wir zu dritt morgens regelmäßig aneinander.
Und ja, ich finde, Kinder sind vollwertige Mitbewohner, auf deren Bedürfnisse man eingehen sollte statt zu denken, die sind in 18 Jahren eh wieder weg.
 
11ant

11ant

Aber, man kann auch ungeeignete (miserable) Grundrisse „abkupfern“.
Ja, die frappierende Parallelität der beiden Entwürfe sehr nahe am Motto ;-) "zwei Dumme - ein Gedanke" (ibs. beim Speisekammereingang wirklich 1:1 derselbe Mist) legt nach Wahrscheinlichkeitserfahrung zumindest dieselbe Inspirationsquelle nahe. Allerdings erkenne ich (zumindest "noch") keinen populären Katalogentwurf darin - weder ein Musterhaus noch einen Pinterest / Instagram "Bestseller" ...
 
R

rothka92

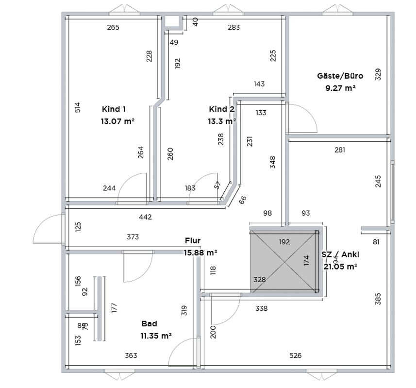
so, ich habe mir nochmal Gedanken um das OG gemacht, da uns eure berechtigte Kritik doch die Augen geöffnet hat, insbesondere was den engen Flur, die verwinkelten Kinderzimmer sowie das chaotische Ankleidezimmer angingen. Genau aus diesem Grund habe ich mich ja auch hier angemeldet.

Was haltet ihr von meinem jetzigen Entwurf? Diese ist natürlich nicht 100%ig maßstabsgetreu, da er nur von mir in einem Laien-Programm erstellt wurde.

Grundriss eines Apartments mit Kind 1, Kind 2, Bad, Flur, Gäste/Büro und SZ/Ankleide.
 
D

Drasleona

Sei mir nicht böse, aber ich finde es immer noch furchtbar... Du hast total viel Flurfläche, verwinkelt, dementsprechend dunkel. Die Kinderzimmer sind immer noch unförmig, wenn auch anders als vorher.
Ich würde die Treppe verändern. Wie wäre es denn, diese nach links an die Außenwand zu schieben? Dann könntest du schonmal ein großes Fenster machen und hättest Licht in Flur. Außerdem könntest du direkt neben dem Treppenaufgang einen Ausgang auf die Terrasse machen. Du müsstest also nicht das halbe Obergeschoss für diese "Zuwegung" zerstören.
 
Zuletzt aktualisiert 22.11.2025
Im Forum Grundrissplanung / Grundstücksplanung gibt es 2535 Themen mit insgesamt 87992 Beiträgen


Ähnliche Themen zu Grundriss Stadtvilla, Einfamilienhaus Neubau Meinungen
Nr.ErgebnisBeiträge
1Schallschutz Kinderzimmer 12
2Einfamilienhaus ~190qm, drei Kinderzimmer, ohne Keller - Feedback wäre mega - Seite 219
3Entwurf Einfamilienhaus mit 3 Kinderzimmer, Keller und Grenzbebauung - Seite 232
4Parkett von Flur in Zimmer durchlegen - Seite 217
5Kinderzimmer in Dachgeschoss zu klein geplant? - Seite 633
6Grundriss-Aufteilung OG - Elternbereich / 2 Kinderzimmer mit Bad 26
7Treppe im Flur, Grundriss steht eigentlich schon :o( - Seite 320
8Hauseingang mit Flur oder ohne 15
9Welcher Bodenbelag im Eingang/Flur? Wer hat Erfahrungen? Bilder? 14
10Grundrissplanung Wohnzimmer und Flur zu schmal? - Seite 221
11Ausreichend Licht im Flur? Bitte um Meinung 12
12Grundrissplanung: Flur im EG breit genug? 57
13Lichtplanung mit LED Spots für Flur 13
14Fliesen oder Vinyl in Küche und Flur 19
15Anzahl Einbauspots im Flur DG 50
16Wie viele Lampen im 7m langen Flur? 13
17Kontrollierte-Wohnraumlüftung auch im Flur? Haben wir nicht - stickig 11
18Treppe "ragt" in Flur hinein: Problematisch? 12
19Probleme bei der Flur-Möblierung, wer hat Ideen? - Seite 443
20Fehlender Lüftungsanlagen-Deckenauslass im Flur dramatisch? 12

Oben