ᐅ Grundrissentwurf Stadtvilla mit Keller Verbesserungsvorschlag?
Erstellt am: 08.10.19 21:00
C
canerolHallo zusammen,
wir sind gerade dabei für unser erworbenes Grundstück eine Stadtvilla zu planen. Es wäre schön wenn wir von euch Feedback bzw. Verbesserungen oder Anregungen zu den Grundrissen bekommen würden?
Bebauungsplan/Einschränkungen
Größe des Grundstücks: 448m2
Hang: Südhang, im Baufenster ca. 1.6 m abfallend vom Straßenniveau
Gebäudetyp: Einfamilienhaus Stadtvilla
Grundflächenzahl: 0,3
Geschossflächenzahl: 0,6
Baufenster, Baulinie und -grenze: Bautiefe Max. 14m Gebäudelänge 10.5m
Anzahl Stellplatz: 1 vor Garageneinfahrt
Geschossigkeit: 2 Vollgeschosse
Dachform: Satteldach, 25-45 Grad Zelt/Walmdach 15-25 Grad
Stilrichtung: modern
Ausrichtung: Süden
Maximale Höhen/Begrenzungen: keine Begrenzung
Anforderungen der Bauherren
Stilrichtung, Dachform, Gebäudetyp: Stadtvilla Zelt/Walmdach 25 Grad
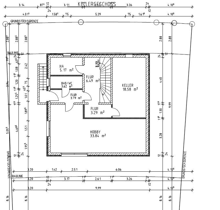
Keller, Geschosse: 2 Vollgeschoss und Kellerräume und Einliegerwohnung UG
Anzahl der Personen, Alter: 4 Personen, Alter: 46, 47, Kinder 20 und 16 Jahre
Raumbedarf im UG, [B]EG, OG:
UG:[/B] Einliegerwohnung Kinderzimmer 1 Kind 20 Jahre, WC & Dusche, 1 x Kellerraum, Hauswirschaftsraum
EG: Kochen/Essen/Wohnen,Arbeiten
OG: Kinderzimmer 2, Kind 16 Jahre, Bad, Schlafzimmer , Abstellraum (Waschmaschine Trockner)
offene oder geschlossene Architektur: offen
konservativ oder moderne Bauweise: konservativ
offene Küche, Kochinsel: offene Küche
Anzahl Essplätze: 4
Kamin: ja,
Musik/Stereowand: Nein
Balkon: nein
Terrasse: ja, unten im EG, laut Bebauungsplan Hälfte der Hausbreite
Zisterne: Nein
Garage, Carport: Garage
Hausentwurf
Von wem stammt die Planung:
-Bauingenieur
Kostenschätzung lt Bauingenieur 350.000€ inkl. Baunebenkosten und Hausanschlüssen
Persönliches Preislimit fürs Haus, inkl. Ausstattung: 370.000€
Heiztechnik: Erdwärme
Warum ist der Entwurf so geworden, wie er jetzt ist?
Da wir schon etwas ältere Kinder haben, wollten wir die Priorität gesetzt ,dass die Kinder große Räume bekommen. Da wir eine leichte Hanglage haben, hat sich hier der Keller mit der Einliegerwohnung angeboten. Hier hätte unser ältere Sohn sein Reich. Unsere Tochter hätte dann im Obergeschoss Ihr Zimmer. Unser Wohnzimmer sollte groß und offen sein.
Wir haben In der Familie (Schwiegervater) eine Tiefbau-Firma, daher würden wir relativ preisgünstig die Erdarbeiten und Außenanlagen erhalten.




wir sind gerade dabei für unser erworbenes Grundstück eine Stadtvilla zu planen. Es wäre schön wenn wir von euch Feedback bzw. Verbesserungen oder Anregungen zu den Grundrissen bekommen würden?
Bebauungsplan/Einschränkungen
Größe des Grundstücks: 448m2
Hang: Südhang, im Baufenster ca. 1.6 m abfallend vom Straßenniveau
Gebäudetyp: Einfamilienhaus Stadtvilla
Grundflächenzahl: 0,3
Geschossflächenzahl: 0,6
Baufenster, Baulinie und -grenze: Bautiefe Max. 14m Gebäudelänge 10.5m
Anzahl Stellplatz: 1 vor Garageneinfahrt
Geschossigkeit: 2 Vollgeschosse
Dachform: Satteldach, 25-45 Grad Zelt/Walmdach 15-25 Grad
Stilrichtung: modern
Ausrichtung: Süden
Maximale Höhen/Begrenzungen: keine Begrenzung
Anforderungen der Bauherren
Stilrichtung, Dachform, Gebäudetyp: Stadtvilla Zelt/Walmdach 25 Grad
Keller, Geschosse: 2 Vollgeschoss und Kellerräume und Einliegerwohnung UG
Anzahl der Personen, Alter: 4 Personen, Alter: 46, 47, Kinder 20 und 16 Jahre
Raumbedarf im UG, [B]EG, OG:
UG:[/B] Einliegerwohnung Kinderzimmer 1 Kind 20 Jahre, WC & Dusche, 1 x Kellerraum, Hauswirschaftsraum
EG: Kochen/Essen/Wohnen,Arbeiten
OG: Kinderzimmer 2, Kind 16 Jahre, Bad, Schlafzimmer , Abstellraum (Waschmaschine Trockner)
offene oder geschlossene Architektur: offen
konservativ oder moderne Bauweise: konservativ
offene Küche, Kochinsel: offene Küche
Anzahl Essplätze: 4
Kamin: ja,
Musik/Stereowand: Nein
Balkon: nein
Terrasse: ja, unten im EG, laut Bebauungsplan Hälfte der Hausbreite
Zisterne: Nein
Garage, Carport: Garage
Hausentwurf
Von wem stammt die Planung:
-Bauingenieur
Kostenschätzung lt Bauingenieur 350.000€ inkl. Baunebenkosten und Hausanschlüssen
Persönliches Preislimit fürs Haus, inkl. Ausstattung: 370.000€
Heiztechnik: Erdwärme
Warum ist der Entwurf so geworden, wie er jetzt ist?
Da wir schon etwas ältere Kinder haben, wollten wir die Priorität gesetzt ,dass die Kinder große Räume bekommen. Da wir eine leichte Hanglage haben, hat sich hier der Keller mit der Einliegerwohnung angeboten. Hier hätte unser ältere Sohn sein Reich. Unsere Tochter hätte dann im Obergeschoss Ihr Zimmer. Unser Wohnzimmer sollte groß und offen sein.
Wir haben In der Familie (Schwiegervater) eine Tiefbau-Firma, daher würden wir relativ preisgünstig die Erdarbeiten und Außenanlagen erhalten.
Die 370k sind schon sehr sehr eng bemessen. Ich weiß nicht wie viel Einsparpotenzial eure Erdarbeiten am Ende haben, aber welches Gewerk wie viel kostet soll würde ich noch mal durch kalkulieren.
Wieso so ein großes Kinderzimmer? Der/die ist doch in vielleicht in 2 Jahren schon raus. Ich würde das wenigstens so planen, dass man evtl. eine Ankleide + Gästezimmer später machen kann. Also aufpassen mit der Statik, dass man evtl. einen Durchbruch bei der Schlafzimmer Wand machen kann und eine neue Mauer zwischen den beiden Fenster im jetzigen Kinderzimmer ziehen kann. Dann wäre links ein Gästezimmer und rechts hättet ihr eine schöne Ankleide.
Kellerraum kann man ja in einen Party/Hobbyraum umfunktionieren wie im Plan.
Wieso so ein großes Kinderzimmer? Der/die ist doch in vielleicht in 2 Jahren schon raus. Ich würde das wenigstens so planen, dass man evtl. eine Ankleide + Gästezimmer später machen kann. Also aufpassen mit der Statik, dass man evtl. einen Durchbruch bei der Schlafzimmer Wand machen kann und eine neue Mauer zwischen den beiden Fenster im jetzigen Kinderzimmer ziehen kann. Dann wäre links ein Gästezimmer und rechts hättet ihr eine schöne Ankleide.
Kellerraum kann man ja in einen Party/Hobbyraum umfunktionieren wie im Plan.
danixf schrieb:
Die 370k sind schon sehr sehr eng bemessen. Ich weiß nicht wie viel Einsparpotenzial eure Erdarbeiten am Ende haben, aber welches Gewerk wie viel kostet soll würde ich noch mal durch kalkulieren.
Wieso so ein großes Kinderzimmer? Der/die ist doch in vielleicht in 2 Jahren schon raus. Ich würde das wenigstens so planen, dass man evtl. eine Ankleide + Gästezimmer später machen kann. Also aufpassen mit der Statik, dass man evtl. einen Durchbruch bei der Schlafzimmer Wand machen kann und eine neue Mauer zwischen den beiden Fenster im jetzigen Kinderzimmer ziehen kann. Dann wäre links ein Gästezimmer und rechts hättet ihr eine schöne Ankleide.
Kellerraum kann man ja in einen Party/Hobbyraum umfunktionieren wie im Plan.Vielen Dank für das Feedback..Wir haben uns auch Gedanken wegen der Kostenschätzung gemacht, laut dem Bauingenieur sollte das mit den Gesamtkosten passen? Ich habe mal die Kostenaufstellung angehängt, hier sind die einzelnen Gewerke beschrieben. Die Kostenschätzung beruht auf der Kubaturberechnung, welches mit 305€/m3 angesetzt worden ist.
Wie schon beschrieben werden wir die Erdarbeiten und Außenanlagen zum Selbstkostenpreis erhalten.
Noch Wohnen die Kinder bei uns, daher sollen Sie auch große Zimmer bekommen, im OG haben wir das große Kinderzimmer so geplant, dass wir aus dem großen Kinderzimmer zwei Zimmer machen und für Gästezimmer oder Ankleide nutzen.
seat88 schrieb:
Beide Kinder wohnen noch bei euch? Und beide in dem einen großen Zimmer? Verstehe ich das so richtig?Nein selbstverständlich nicht, beide Kinder haben eigene Zimmer die Tochter im OG und der Sohn im KG welches im Plan als Hobbyraum deklariert ist.Mh, ich möchte mal noch nicht auf den Grundriss eingehen, sondern erst mal in den Raum fragen, für welche Zukunft Ihr hier baut?
Bei 2 fast erwachsenen Kindern so groß zu bauen, halte ich für einen Fehler. Kommt natürlich darauf an, was die Kiddis so vorhaben in den nächsten Jahren. Wollen die noch 10 Jahre zu Hause wohnen? Oder gehen die vielleicht an die Uni in eine andere Stadt? Gibt's schon ne Freundin, mit der man vielleicht zusammenziehen will? Vermutlich wäre es billiger, Ihr finanziert Ihnen ne kleine Wohnung.
Auch wenn das jetzt noch unvorstellbar scheint oder Euch das Herz blutet, aber vermutlich sind die Kinder in 3-4 Jahren alle raus aus dem Haus. Dann habt Ihr die vielen Räume am Hals, die Ihr nicht braucht und was viel schlimmer ist den Riesenkredit, den auch niemand braucht. Angesichts des knappen Budget wären 2 Etagen dem gegenüber für alle ein Gewinn.
Bei 2 fast erwachsenen Kindern so groß zu bauen, halte ich für einen Fehler. Kommt natürlich darauf an, was die Kiddis so vorhaben in den nächsten Jahren. Wollen die noch 10 Jahre zu Hause wohnen? Oder gehen die vielleicht an die Uni in eine andere Stadt? Gibt's schon ne Freundin, mit der man vielleicht zusammenziehen will? Vermutlich wäre es billiger, Ihr finanziert Ihnen ne kleine Wohnung.
Auch wenn das jetzt noch unvorstellbar scheint oder Euch das Herz blutet, aber vermutlich sind die Kinder in 3-4 Jahren alle raus aus dem Haus. Dann habt Ihr die vielen Räume am Hals, die Ihr nicht braucht und was viel schlimmer ist den Riesenkredit, den auch niemand braucht. Angesichts des knappen Budget wären 2 Etagen dem gegenüber für alle ein Gewinn.
Ähnliche Themen