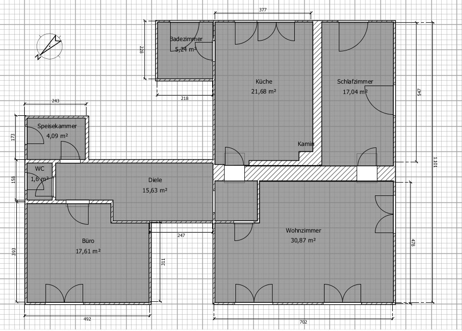
Ich möchte eine alte Wohnung renovieren und sanieren. Allerdings bin ich mit dem Grundriss unzufrieden. Die Wände zwischen Küche und Schlafzimmer, sowie zwischen Schlafzimmer und Wohnzimmer sind tragende Wände. Können die dann überhaupt entfernt werden?
Unten auf dem Grundriss verläuft die Straße, oben befindet sich der Gartenteil.
Wer hat Tipps für mich? Irgendwie kann ich mich nicht damit anfreunden nur die Räume zu renovieren.

Unten auf dem Grundriss verläuft die Straße, oben befindet sich der Gartenteil.
Wer hat Tipps für mich? Irgendwie kann ich mich nicht damit anfreunden nur die Räume zu renovieren.
Tja, was soll man dazu sagen .. wer soll denn alles einziehen? Welche Art von Räumen brauchst du? Welches Stockwerk ist die Wohnung? Wie sieht es mit den Möglichkeiten von Wasserverlegungen etc. aus? Heizung .. Fußbodenheizung? Wo kommt man in die Wohnung? Gibt es Balkon/Terrasse? Wo ist Treppenhaus? Gibt es einen Kellerraum? Trockenboden? usw. usw. .. du siehst, so ein Vorhaben schnippt man nicht mal eben aufgrund eines Grundrisses daher.
Ähnliche Themen