W
Mein Konto
Hausbau - Ratgeber
Bauherrenhilfe
- Bauherrenhilfe vor Vertragsabschluss
-- Warum einen unabhängigen Baubetreuer?
-- Vertragsgrundlagen
-- Bausumme
-- Zahlungsplan zur Kostenkontrolle
-- Pflichten des Bauherren vor Vertragsabschluss
-- Unterlagen beim Hausbau vor Vertragsabschluss
- Bauherrenhilfe nach Vertragsabschluss
-- Bauantrag bei Behörden
-- Bau-Genehmigungsverfahren bei Baubehörden
-- Bauspezifische Versicherungen
-- Bauzeitenplan
-- Baubeginn - die Letzten Pflichten der Bauherrschaft
- Bauherrenhilfe während der Bauzeit
- Gewährleistungsansprüche
- Bauabnahme
Baufinanzierung
- Baufinanzierung - Allgemeine Fragen
- Kreditarten
- Kredit-Konditionen
- Bausparen
- Staatliche Förderungen
- Verkehrswert
- Haushaltsrechnung und Bonität
Hausbau Planung
- Haustypen
- Hausbau Vorbereitungsarbeiten
- Das Baugrundstück
- Baugrund beim Hausbau
- Baurecht
- Gebäudeschutz
- Erdarbeiten und Wasserhaltung
- Stützmauern
- Einfriedung
- Untergeschoss
- Kanalisation
- Tragende Elemente
- Nichttragende Innenwände
- Fundation / Fundament
- Deckenkonstruktionen
- Dächer
- Kaminanlagen
- Treppen Rampen Leitern
- Dachbeläge und Spengler
- Fenster
- Sonnen und Wetterschutz
- Aussenputze
- Einbauten, Küchen, Türen
- Bodenbeläge und Unterlagsböden
- Parkett
- Gips, Wand, Decke
Haustechnik und Energie
- Heiztechnik
- Lüftung und Klimatechnik
- Sanitärtechnik
- Elektrotechnik
- Erneuerbare Energie
Whirlpools / Jacuzzi
Hausbau Magazin
- Baufinanzierung trotz Krise?
- Das Blockhaus
- Moderne Dämmstoffe im Vergleich
- Erker Vor- und Nachteile
- Glasflächen beim Hausbau
- Günstig ein Haus Bauen
- Mediterraner Hausbaustil
- Mehrgenerationenhaus
- Moderne Architektur
- Gartengestaltung leicht gemacht
- Traditioneller Ziegelbau
- Villa als höchster Traum
- Im Eigenheim Ruhestand geniessen
- Altbau sanieren
- Kauf einer Holzgarage
- Immobilienmakler
- Arbeitshandschuhe für den Winter
- Zuhause verschönern
- Outdoor-Plissees
- Schlafzimmer planen
- Terrassenüberdachung
- Wohngebäudeversicherung
- Zaunarten und Eigenschaften
- Hauseingang gestalten
- Der perfekte Grundriss
- Sparsamer heizen im Altbau
- Einfamilienhaus smart finanzieren
- Planung einer PV-Anlage
- Neues Haus
- Immobilienfinanzierung
- Installation einer Photovoltaikanlage
- Asbest erkennen und entfernen
- Sauna im Fokus - Wellness zuhause
- Erfolgreich vermieten
- Die perfekte Winterbekleidung
- Das Niedrigenergiehaus
- Der April und seine Stürme
- Architektonische Vielfalt
- Ökologisch und nachhaltig bauen
- Das perfekte Schlafzimmer
- Nachhaltige Energieversorgung
- Zukunftsorientiert bauen
- Nachhaltigkeit beim Hausbau
- Tiny Houses
- Wärmepumpen als nachhaltige Heizvariante
- Maßgeschneiderten Kleiderschrank
- Der richtige Baukredit
- Ratgeber für erfolgreichen Hausbau
- Haus als Altersvorsorge
Do-it-yourself Anleitungen
- Verlegeanleitung für Bodenbeläge und Parkett
- Bodenbeläge und Parkett reinigen und pflegen
- Malerarbeiten am Haus
- Garten Tipps
- Umzug und Reinigung

ᐅ Grundriss Schlafzimmer mit Bad und Ankleide


Erstellt am: 22.03.23 22:20

Hannah K22.03.23 22:20
Hallo liebe Community,

ich war bisher stille Mitleserin hier im Forum und bin immer wieder begeistert von den Ideen, die hier geteilt werden.
Nun brauche ich selbst Hilfe.

Wir planen aktuell einen Anbau an unserem Haus. Im OG soll dabei unser neues Schlafzimmer mit Bad en suite und Ankleide entstehen. Die bisherige Planung überzeugt uns leider noch nicht ganz. Evtl. könnt ihr uns ja weiterhelfen und habt eine kreative Idee zur Umplanung.

Was uns wichtig ist:
- planunten ist die Nord- und Straßenseite. Deshalb wollen wir den Schlafbereich am liebsten nach Möglichkeit auf der Südseite behalten
- alle Fenster und Wände im Zimmer sind veränderbar. Lediglich die Tür ins Schlafzimmer muss bleiben

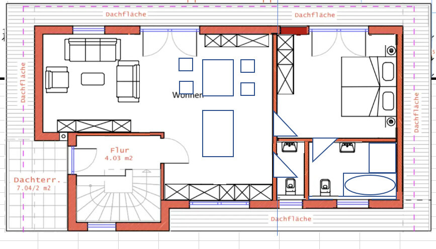
Anbei noch der Grundriss. Was meint ihr? Welche Alternativen hätten wir?

Vielen Dank im Voraus für eure Ideen und liebe Grüße

Hannah
Grundriss: Elternzimmer mit Bett, Ankleide und Du/WC.
ypg22.03.23 22:25
Das ist jetzt der Anbau. Und der soll an ein Bestandshaus?!
Zeigst Du den auch? Ich mein… gibt ja noch andere Möglichkeiten als das plumpe Verlängern eines Hauses für einen Schlafbereich, gerade auch im Süden. Vielleicht auch mit dem nächsten Wasseranschluss… Vor allem, weil der jetzige Vorschlag auch etwas überdimensioniert ist. Oder?
Hannah K22.03.23 22:31
Danke für deine rasche Antwort! Ja, das wäre der Anbau. Da wir am Bestandshaus wenig ändern wollten, habe ich den mal weggelassen, kann ihn aber gerne nachreichen. Du hast recht, evtl. hat hier jemand ja noch einen Tipp, den wir so gar nicht bedacht hatten… An der Form des Anbaus können wir aber leider nichts mehr ändern 🙁
Grundriss eines Obergeschosses mit Elternzimmer, zwei Kindzimmer, Flur, Bad, WC, HWR
kati133722.03.23 22:34
Ich würd' ja in wenigstens einem der Bäder eine Wanne einplanen. Die Umkleide finde ich relativ klein geraten, dafür noch nen großen Schrank im Schlafzimmer? Irgendwie doppelt gemoppelt. Das schöne an einem Entwurf mit Ankleide ist für mich, dass das Schlafzimmer gemütlich und überschaubar wird, weil da eben kein Schrankwand-Koloss drin steht. 🙂
Hannah K22.03.23 22:40
Der Einwand mit der Wanne ist plausibel und wir wollen tatsächlich im Kinderbad eine einbauen. Weder mein Mann noch ich sind nämlich Badewannennutzer…

Das mit dem Schrank stimmt auch. Unsere Befürchtung war nur, dass man sich erschlagen fühlt, wenn man das Schlafzimmer durch eine enge, aber lange Umkleide betritt???
Ibdk1423.03.23 07:51
Bitte nur als Skizze betrachten und natürlich nur möglich, wenn die Wände des Bades noch veränderbar sind.


Kleiner 2D-Grundriss zeigt Schlafzimmer und Bad in einer Wohnung
schlafzimmeranbauankleideschlafbereichwändebestandshauswanneumkleideschrank